2015春学期国家开放大学建筑制图与识图实训小作业1-4部分参考答案剖析
- 格式:doc
- 大小:562.50 KB
- 文档页数:21
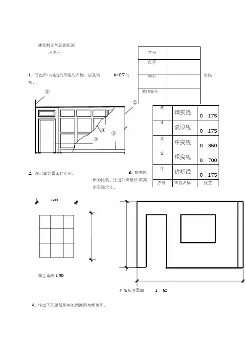
①⑤ ④③ 1500 1800 ② 11小作业一 1、写出图中指出的图线的名称,以及当b=0.7时的线宽。
2、注出窗立面图的比例。
3、根据所给的比例,注出外墙板长河高的实际尺寸。
窗立面图 1:50外墙板立面图 1:604、作出下列建筑形体的剖面图与断面图。
(1)作1—1剖面图。
学号姓名 得分教师签字⑤ 细实线 0.175 ④ 波浪线 0.175③ 中实线 0.35② 粗实线 0.7 ① 折断线 0.175 序号 图线名称 线宽(2)作形体的半剖面图。
(3)补绘1—1剖面图。
(4)补绘2—2剖面图(雨篷的材料为钢筋混凝土)。
(5)补绘2-2剖面图(6)补绘1—1、2—2、3—3断面图。
(7)补画1—1阶梯剖面图。
5、简答题(1)土木工程制图中的图线有几种?其用途有何不同?答:通常用的有粗、中、细。
被剖切到的建筑的外轮廓线、墙体、边框线等都用粗实线;建筑构配件轮廓线常用中实线绘制;其他的大部分都是用细实线绘制。
(2)标注尺寸时,绘制45°短线的起止符号应注意哪些问题?答:起止符号长度通常在2—3mm,采用中粗实线绘制。
(3)图名有何作用?在注写图名时要注意哪些规定?(4)剖面图与断面图的主要区别是什么?两者又有何联系?答:断面图只画剖切到的形体的外轮廓线,而剖面图还要再画出剖切到的形体的内部结构(5)简化画法意义何在?常用的简化画法有几种?其使用条件是什么?小作业二一、填空题1、结构是建筑物的基本部分,是用一定的建筑材料建成的,具有足够的抵抗能力的空间骨架,这种骨架就是结构。
2、建筑结构按使用的材料不同,可分为钢结构、木结构、混合结构和钢筋混凝土结构。
3、钢筋混凝土是由钢筋和混凝土两种材料复合材料。
钢筋的特点是抗拉力、抗压力强度都很高,而混凝土抗拉强度低,抗压强度高,在钢筋混凝土结构中,钢筋主要承受拉力,混凝土主要承受压力。
4、用钢筋混凝土制成的板、梁和柱等组成的结构物,叫做钢筋混凝土结构。
建筑制图与识图实训小作业四一、填空题1、结构施工图主要表达结构设计的内容,它是表示建筑物各承重构件(如基础、承重墙、柱、梁板、屋架等) 的布置、形状、大小、材料、构造及其相互关系的图样。
结构施工图一般有基础平面图、楼层结构布置平面图、屋面结构平面图和梁、板、柱及基础结构详图、楼梯结构详图、屋架结构详图.2、基础图一般包括基础平面图、基础断面详图和文字说明三部分。
基础平面图是表示基础未回填土前所作的水平投影的图样。
它是采用剖切在建筑物底层地面±0.000处将其剖开,移去剖切面以上的建筑物所作的水平投影图来表示。
3、基础的形式一般取决于上部承重构件的形式,如墙下的基础可做成条形基础;柱下的基础可做成独立基础.4、楼层结构平面图是采用假想沿楼面将建筑物水平剖切后所得的楼面的水平投影来表示。
5、楼层结构平面图中各承重构件的表达方法:习惯上定位轴线线表示各种梁的中心位置;预制楼板的布置不必按实际投影分块画出,而简化为一条对角线来表示楼板的布置范围,并沿对角线方向注出预制板的数量、代号和编号。
6、写出下列常用构件的代号或名称:圈梁QL 、屋架WJ 、过梁GL 、雨蓬YP 、基础梁JL 、连系梁LL 、阳台YT 、预埋件M 、楼梯板TB 、KJ 框架、TGB 天沟板、WB 屋面板、JL 基础梁、KWB 框架屋面板、TL 楼梯梁。
二、简答题1、简述建筑施工图和结构施工图的主要区别。
答:区别如下:建筑施工图(简称建施图)主要用来表示建筑物的规划位置、外部造型、内部各房间的布置、内外装修、构造及施工要求等.结构施工图(简称结施图) 主要表示建筑物承重结构的结构类型、结构布置、构件种类、数量、大小及做法。
建筑施工图内容:一般包括建筑施工图设计说明、总平面图、门窗表、建筑平面图、建筑立面图、建筑剖面图和建筑详图等图纸。
建筑结构施工图内容:一般有基础图、上部结构的布置图和结构详图等。
钢筋混凝土构件的布置图和结构详图。
建筑制图与识图实训小作业一1、写出图中指出的图线的名称,以及当b=0.7 时宽。
2、注出窗立面图的比例。
1500窗立面图1:504、作出下列建筑形体的剖面图与断面图。
学号姓名得分教师签字的线⑤细实线0.175④波浪线0.175③中实线0.350②粗实线0.700①折断线0.175序号图线名称线宽3、根据所给的比例,注出外墙板长河高的实际尺寸。
外墙板立面图1:601)作1—1 剖面图。
112)作形体的半剖面图。
3)补绘1—1 剖面图。
4)补绘2—2 剖面图(雨篷的材料为钢筋混凝土)5)补绘2-2 剖面图7)补画1—1 阶梯剖面图。
5、简答题(1)土木工程制图中的图线有几种?其用途有何不同?答:土木工程制图中的图线有6 种:(1)实线,用途为可见轮廓线,图例线;(2)虚线,用途为不可见轮廓线,图例线;(3)单点画线,用途为中心线,对称线;(4)双点画线,用途为假想轮廓线,成型前原始轮廓线;(5)折断线,用途为断开界线;(6)波浪线,用途为断开界线。
(2)标注尺寸时,绘制45°短线的起止符号应注意哪些问题?答:起止符号长度通常在2—3mm,采用中粗实线绘制。
(3)图名有何作用?在注写图名时要注意哪些规定?答:图名作用为表示图纸的代号和要表达的主要内容以及涉及工程的项目。
每个视图都应注出图名,图名注写在视图的下方为宜,并在图名下画一粗横线,其长度应以图名所占长度为准。
(4)剖面图与断面图的主要区别是什么?两者又有何联系?答:剖面图与断面图的区别共有三点:(1):所表达形体的对象不同:断面图中只画物体被剖开后的截面投影;而剖面图除了要画出截面的投影,还要画出剖切后物体的剩余部分的投影。
(2):通常,剖面图可采用多个剖切平面;而断面图一般只使用单一剖切平面。
(3):引入剖面图的目的是为了表达物体的内部形状和结构;而画断面图的目的则常用来表达物体中某一局部的断面形状。
均表达物 体的内部结构。
5)简化画法意义何在?常用的简化画法有几种?其使用条件是什么? 答:简化画法在不妨碍准物体的形状和结构表达完整,清晰的前提下,为减少画 图工作量和看图方便而确定的。
建筑制图与识图实训小作业一学号姓名得分教师签字1.写出图中指出的图线的名称,以及当b=0.7 时的线宽。
②①⑤细实线0.25b④波浪线0.25b③中实线0.5b④ ⑤②粗实线b①折断线0.25b③序号图线名称线宽2.注出窗立面图的比例。
3.根据所给的比例,注出外墙板长和高的实际尺寸。
15003815000窗立面图1:50外墙板立面图1:604.作出下列形体的剖面图与断面图。
(1)补全 1—1 剖视图中的漏线。
(1)作 1— 1 剖面图。
111- 1 剖面图( 2)作形体的半剖视图。
(3)补绘 1— 1 剖视图。
21122— 2剖面图1 - 1 剖面图(4)补绘 2— 2 剖视图(雨篷的材料为钢筋混凝土)。
21122 — 2 剖面1 — 1 剖面(5)补绘 1— 1 阶梯剖视图。
1 1 剖面图2---2 剖面图2112( 6)补绘 1— 1、 2— 2、 3— 3 断面图。
3213121— 1 断面图2— 2 断面图3— 3 断面图━━━━━━━━━━━━━━━(7)补画 1— 1 阶梯剖面图。
1- 1 剖面图5、简答题(1)土木工程制图中的图线有几种?其用途有何不同?答:土木工程制图中的图线有 6 种:①实线,用途为可见轮廓线,图例线;②虚线,用途为不可见轮廓线,图例线;③单点长画线,用途为中心线、对称线;④双点长画线,用途为假想轮廓线,成型前原始轮廓线;⑤折断线,用途为断开界线;⑥波浪线用途为断开界线。
(2)标注尺寸时,绘制45°短线的起止符号应注意哪些问题?答:尺寸起止符号在尺寸线与尺寸界线的相交点。
一般用中粗短斜线绘制,其倾斜方向应与尺寸线成顺时针 45°,长度宜为 2~ 3mm。
在轴测图中,尺寸起止符号为小圆点。
半径、直径与弧长的尺寸起点符号,宜用箭头表示。
(3)图名有何作用?在注写图名时要注意哪些规定?答:图名作用为表示图纸的代号和要表达的主要内容以及涉及工程的项目。
国开电大建筑制图基础实训(新疆兵团)形考作业四参考答案
题目1.1.迹点:
【答案】:
直线与投影面的交点。
题目2.2.直角投影定理:
【答案】:
若直角有一条边平行于某一投影面时,则该直角在该投影面上的投影仍然反映为直角。
题目3.3.开间:
【答案】:
指相邻两个横向定位轴线之间的距离。
题目4.4.进深:
【答案】:
指相邻两个纵向定位轴线之间的距离。
题目5.5.建筑剖面图:
【答案】:
指的是假想用一个或多个垂直于外墙轴线的铅垂剖切面,将房屋剖开,所得的投影图,简称剖面图。
题目6.1.制图的基本规定要求数量的数值注写应采用()
a. 正体阿拉伯数字
b. 正体罗马数字
c. 斜体阿拉伯数字
d. 斜体罗马数字
【答案】:正体阿拉伯数字
题目7.10. 在薄板板面标注板厚尺寸时,应在厚度数字前加厚度符号()
a. L。
国家开放大学《建筑制图基础》章节测试参考答案第一章制图的基本知识1.图纸幅面的简称是()A. 图框B. 会签栏C. 图幅D. 标题栏2.建筑制图的基本单位是()A. aB. cC. mD. b3.下列关于尺寸界线、尺寸线、尺寸起止符号说法有误的一项是()A. 半径、直径、角度与弧长的起止符号,宜用箭头表示B. 图样本身的任何图线均可用作尺寸线C. 尺寸线应用细实线绘制,应与被注长度平行D. 图样轮廓线可用作尺寸界限4.绘制尺寸界线时应采用()A. 粗实线B. 细虚线C. 细实线D. 粗虚线5.绘制尺寸起止符号时应采用()A. 中粗长线B. 单点长划线C. 波浪线D. 中粗断线6.下列关于尺寸数字说法有误的一项是()A. 尺寸数字一般应依据其方向注写在靠近尺寸线的上方中部B. 尺寸数字是形体的实际尺寸,与画图比例无关C. 图样上的尺寸单位在不同专业图中有具体规定,一般都省略不标D. 图样上的尺寸,应以尺寸数字为准,当然也可从图上直接量取7.下列关于尺寸的排列与布置说法有误的一项是()A. 互相平行的尺寸线,应从被注写的图样轮廓线由近向远整齐排列B. 尺寸宜标注在图样轮廓以内,可与图线、文字等相交C. 总尺寸的尺寸界线应靠近所指部位,中间的分尺寸界线可稍短,但其长度应相等D. 互相平行的尺寸线,其中较小尺寸应离轮廓线较近8.尺寸起止符号倾斜方向与尺寸界线应成()A. 45B. 180C. 90D. 609.图样轮廓线以外的尺寸线,距图样最外轮廓线之间的距离,不宜小于()A. 10mmB. 5mmC. 20mmD. 1mm10.平行排列的尺寸线的间距,宜为()A. 7~10mmB. 3~5mmC. 1~2mmD. 2~3mm11.下列关于半径、直径、球的尺寸标注说法有误的一项是()A. 在圆内标注的尺寸线应通过圆心,两端画箭头指至圆弧B. 半径的尺寸线应一端从圆心开始,另一端画箭头指向圆弧C. 球的尺寸标注方法与圆弧半径和圆直径的尺寸标注方法相同D. 标注圆的直径尺寸时,直径数字前不得加直径符号12.图纸上限定绘图区域的线框是指()A. 图框B. 标题栏C. 图幅D. 会签栏13.标注球的半径尺寸时,应在尺寸前加注符号()A. SRB. RSC. SD. R14.标注圆弧的弧长时,表示尺寸线应以()A. 箭头B. 平行与圆弧的直线C. 该圆弧同心的圆弧线表示D. 标注圆弧的弦长15.下列关于角度、弧长、弦长的标注说法有误的一项是()A. 角度的起止符号应以箭头表示,如没有足够的位置画箭头,可用圆点代替B. 角度的尺寸线应以圆弧表示C. 标注圆弧的弧长时,尺寸界线应垂直于该圆弧的弦D. 标注圆弧的弦长时,起止符号用中粗短线表示16.在薄板板面标注板厚尺寸时,应在厚度数字前加厚度符号()A. LB. RC. SD. t17.下列关于正方形、坡度、非圆曲线等尺寸标注说法有误的一项是()A. 坡度禁止用直角三角形标注B. 标注坡度时,应加注坡度符号C. 标注正方形的尺寸,可用“边长×边长”的形式,也可在边长数字前加正方形符号“□”D. 外形为非圆曲线的构件,可用坐标形式标注尺寸18.下列关于尺寸的简化标注说法有误的一项是()A. 对称构配件采用对称省略画法时,该对称构配件的尺寸线应不超过对称符号B. 构配件内构造要素(如孔、槽等)如相同,可仅标注其中一个要素的尺寸C. 杆件或管线的长度,可直接将尺寸数字沿杆件或管线的一侧注写D. 连续排列的等长尺寸,可用“个数×等长尺寸=总长”的形式标注19.制图前的准备工作不包括()A. 检查图样、修正错误B. 识读图样,选用适当大小的图纸和比例C. 在图板上固定图纸,绘出图框线和图标位置D. 准备工具和仪器20.一般制图的第一个步骤是()A. 检查图样、修正错误B. 底稿加深C. 绘制图样底稿D. 图纸整理21.一般制图的最后一个步骤是()A. 绘制图样底稿B. 底稿加深C. 图纸整理D. 检查图样、修正错误22.圆弧连接的关键是根据已知条件,确定()A. 圆弧的弦长B. 圆弧的直径大小C. 圆弧的弧长D. 连接圆弧的圆心和切点23.幅面代号为A4的图纸长、短边尺寸分别是()A. 420mm、297mmB. 841mm、594mmC. 1189mm、841mmD. 297mm、210mm24.在平面图形中确定尺寸位置的点、直线称为()A. 尺寸定型B. 尺寸标注C. 尺寸定位D. 尺寸基准25.用于确定平面图形中各个组成部分的形状和大小的尺寸是()A. 尺寸定位B. 尺寸定型C. 尺寸标注D. 尺寸基准26.用于确定平面图形中各个组成部分的相对位置的尺寸是()A. 尺寸标注B. 尺寸定位C. 尺寸基准D. 尺寸定型27.一个工程设计中,每个专业所使用的图纸除去目录及表格所采用的A4幅面,一般不多于()A. 3种B. 4种C. 1种D. 2种28.图形与实物相对应的线性尺寸之比称为()B. 图样C. 比例D. 祥例29.图形与实物相对应的线性尺寸之比称为()A. 2种B. 4种C. 3种D. 1种30.图样及说明中的汉字宜采用()A. 黑体B. 楷体C. 隶书D. 长仿宋体31.制图的基本规定要求数量的数值注写应采用()A. 正体罗马数字B. 斜体阿拉伯数字C. 斜体罗马数字D. 正体阿拉伯数字32.图纸中的拉丁字母、阿拉伯数字与罗马数等如需写成斜体字,其斜度应是从字的底线逆时针向上倾斜()A. 75B. 60C. 45D. 180第二章投影的基本知识1.在制图中,把光源称为()B. 投影面C. 投影中心D. 投影法2.平行投影法又分为()A. 水平投影法和垂直投影法B. 斜投影法和垂直投影法C. 中心投影和垂直投影法D. 正投影法和斜投影法3.在建筑制图中,最常用的投影法是平行投影法中的()A. 水平投影法B. 垂直投影法C. 正投影法D. 斜投影法4.形成物体的最基本几何元素包括()A. 点、曲线和曲面B. 点、曲线和平面C. 曲面、曲线、直线D. 点、直线和平面5.点的正投影仍然是点,直线的正投影一般仍为直线(特出情况例外),平面的正投影一般仍为原空间几何形状的平面(特出情况例外),这种性质称为正投影的()A. 同素性B. 从属性C. 定比性D. 平行性6.点在直线上,点的正投影一定在该直线的正投影上,点、直线在平面上,点和直线的正投影一定在该平面的正投影上,这种性质称为正投影的()A. 从属性B. 平行性C. 同素性D. 定比性7.线段上的点将该线段分成的比例,等于点的正投影分线段的正投影所成的比例,这种性质称为正投影的()A. 同素性B. 定比性C. 从属性D. 平行性8.两直线平行,它们的正投影也平行,且空间线段的长度之比等于它们正投影的长度之比,这种性质称为正投影的()A. 平行性B. 定比性C. 同素性D. 从属性9.当线段或平面平行于投影面时,其线段的投影长度反映线段的实长,平面的投影与原平面图形全等,这种性质称为正投影的()A. 定比性B. 全等性C. 从属性D. 同素性10.当直线垂直于投影面时,其直线的正投影积聚为一个点,这种性质称为正投影的()A. 积聚性B. 全等性C. 定比性D. 从属性11.H面是指()A. 形体断面C. 正立投影面D. 侧立投影面12.在制图中,把光线称为()A. 投影中心B. 投影法C. 投影线D. 投影面13.W面是指()A. 水平投影面B. 剖切面C. 侧立投影面D. 正立投影面14.V面是指()A. 水平投影面B. 剖切面C. 正立投影面D. 侧立投影面15.在H面上得到的正投影图叫()A. 侧面投影图B. 水平投影图C. 底面投影图D. 正面投影图16.在V面上得到的正投影图叫()A. 水平投影图B. 正面投影图C. 底面投影图D. 侧面投影图17.在W面上得到的正投影图叫()B. 水平投影图C. 正面投影图D. 侧面投影图18.投影面展开之后,W、H两个投影都反映形体的宽度,这种关系称为()A. 高平齐B. 长对正C. 高平正D. 宽相等19.投影面展开之后,V、W两个投影上下对齐,这种关系称为()A. 高平齐B. 长对正C. 宽相等D. 高平正20.投影面展开之后,V、H两个投影左右对齐,这种关系称为()A. 长对正B. 高平齐C. 宽相等D. 高平正21.正投影图是()A. 是在物体的水平投影上加注某些特征面、线以及控制点的高度数值的单面正投影B. 用平行投影的正投影法绘制的单面投影图C. 用中心投影法绘制的单面投影图D. 用平行投影的正投影法绘制的多面投影图22.下面关于正投影图特性说法有误的一项是()A. 正投影图立体感和直观性非常强B. 正投影图作图简单C. 正投影图度量性好D. 正投影图能反映形体各主要侧面的真实形状和大小23.在制图中,把承受影子的面称为()A. 投影面B. 投影法C. 投影线D. 投影中心24.轴测投影图是()A. 用平行投影的正投影法绘制的多面投影图B. 用中心投影法绘制的单面投影图C. 是在物体的水平投影上加注某些特征面、线以及控制点的高度数值的单面正投影D. 用平行投影的正投影法绘制的单面投影图25.下面关于轴侧投影图相关说法有误的一项是()A. 轴侧投影图绘制比较复杂B. 轴侧投影图能反映形体各主要侧面的真实形状和大小C. 轴侧投影图具有一定的立体感和直观性,常作为工程上的辅助性图样D. 轴侧投影图度量性不好26.透视投影图是()A. 用平行投影的正投影法绘制的多面投影图B. 用中心投影法绘制的单面投影图C. 是在物体的水平投影上加注某些特征面、线以及控制点的高度数值的单面正投影D. 用平行投影的正投影法绘制的单面投影图27.下面关于透视投影图相关说法有误的一项是()A. 透视投影图绘制比较简单B. 透视投影图与照相原理一致,它是以人眼为投影中心C. 透视投影图在土木工程中常作为设计方案和展览用的直观图样D. 透视投影图形逼真,具有良好的立体感28.标高投影图是()A. 用平行投影的正投影法绘制的单面投影图B. 用中心投影法绘制的单面投影图C. 是在物体的水平投影上加注某些特征面、线以及控制点的高度数值的单面正投影D. 用平行投影的正投影法绘制的多面投影图29.在制图中,形成投影的方法称为()A. 投影中心B. 投影线C. 投影面D. 投影法30.中心投影法中,当投影中心与投影面距离不变的情况下,形体距投影中心愈近,则影子()A. 不变B. 愈大C. 无法确定D. 愈小31.投影中心在有限的距离内,发出锥状的投影线,用这些投影线作出的形体的投影,称为()A. 垂直投影B. 中心投影C. 平行投影D. 水平投影32.当投影中心移至无限远处,投影线按一定的方向平行的投射下来(形成柱状),用平行投射线作出形体的投影,称为()A. 平行投影B. 中心投影C. 垂直投影D. 正投影33.平行投影法的投影线相互平行,若形体离投影面愈远,则投影大小()A. 无法确定B. 愈小C. 不变D. 愈大34.当投影线倾斜于投影面时所作出的平行投影,称为()A. 斜投影B. 正投影C. 中心投影D. 垂直投影第三章制图的基础知识1.构成形体最基本的几何元素是()。
建筑制图与识图实训小作业一1、写出图中指出的图线的名称,以及当b=0.7时的线宽。
2、注出窗立面图的比例。
3、根据所给的比例,注出外墙板长河高的实际尺寸。
窗立面图1:50外墙板立面图1:604、作出下列建筑形体的剖面图与断面图。
(1)作1—1剖面图。
11(2)作形体的半剖面图。
(3)补绘1—1剖面图。
(4)补绘2—2剖面图(雨篷的材料为钢筋混凝土)。
(5)补绘2-2剖面图(6)补绘1—1、2—2、3—3断面图。
(7)补画1—1阶梯剖面图。
5、简答题(1)土木工程制图中的图线有几种?其用途有何不同?答:通常用的有粗、中、细。
被剖切到的建筑的外轮廓线、墙体、边框线等都用粗实线;建筑构配件轮廓线常用中实线绘制;其他的大部分都是用细实线绘制。
(2)标注尺寸时,绘制45°短线的起止符号应注意哪些问题?答:起止符号长度通常在2—3mm,采用中粗实线绘制。
(3)图名有何作用?在注写图名时要注意哪些规定?(4)剖面图与断面图的主要区别是什么?两者又有何联系?答:断面图只画剖切到的形体的外轮廓线,而剖面图还要再画出剖切到的形体的内部结构(5)简化画法意义何在?常用的简化画法有几种?其使用条件是什么?小作业二一、填空题1、结构是建筑物的基本部分,是用一定的建筑材料建成的,具有足够的抵抗能力的空间骨架,这种骨架就是结构。
2、建筑结构按使用的材料不同,可分为钢结构、木结构、混合结构和钢筋混凝土结构。
3、钢筋混凝土是由钢筋和混凝土两种材料复合材料。
钢筋的特点是抗拉力、抗压力强度都很高,而混凝土抗拉强度低,抗压强度高,在钢筋混凝土结构中,钢筋主要承受拉力,混凝土主要承受压力。
4、用钢筋混凝土制成的板、梁和柱等组成的结构物,叫做钢筋混凝土结构。
5、钢筋混凝土结构中的钢筋,有的是由于受力需要而配置的,有的则是因为构造要求而安放的,这些钢筋的形式及作用各不相同,一般可分为:受力筋、箍筋、架立钢筋、分布钢筋和构造筋。
6、为了保护钢筋,防止锈蚀,防火及加强钢筋与混凝土的粘结力,在构件中的钢筋的外表面要留有保护层。
电大机械制图第一次作业参考答案第一次作业覆盖教材1-2章的内容:机械制图的基本知识与技能及投影法基本知识。
这部分作业共计12个大题,现给出全部作业答案(红色)和部分作业题讲评。
1.将给出的图形抄画在右边(5分)[讲评]第一题主要是手工绘图中各种图线及尺寸线的抄画练习,完成此题时要注意绘图工具及铅笔的使用。
绘图工具包括一副三角板、圆规、橡皮等;铅笔建议用三支:其硬度分别为H、HB、B,硬度为H的铅笔通常用来画细线、箭头;硬度为HB的铅笔通常用来粗实线直线和点划线圆弧;硬度为B的铅笔通常用来画粗实线圆弧。
请辅导教师示范用两个三角板配合画平行线过程。
题目1或题目2或题目3或题目4(数字取整,随意标注)题目5分析下列图形的特点,并注出尺寸(数值从图中量,取整数)。
题目6注出狭小部位的尺寸题目7注出各圆的直径题目8尺寸标注改错:下面图形中标出正确的尺寸(5分)题目9用1:1比例在指定位置画出平面图形,并标注尺寸。
(5分)[讲评]画平面图形时,一般先要分析平面图形,平面图形由那些几何要求组成;分析基准是那些要素;分析那些是已知线段,那些是中间线段,那些是连接线段。
本题作图思路:1)画φ12水平竖直中心线,R22水平中心线;2)画φ12圆、R48、R10圆弧、与R10相切的水平直线和45°直线;3)画R22圆弧先要根据其与R48内切的关系确定出R22水平方向的圆心位置后才能画R22圆弧;4)画R8、R5圆弧先根据其相邻线段两侧的关系确定出R8与R5圆弧的圆心再画圆弧。
题目10下图画图思路与上相同。
题目11将下图以2:1的比例画在A3图纸上,图名:几何作图。
(10分)[讲评]画图思路同4题。
题目12将下图用AutoCAD 软件作图,并用2:1比例打印输出,图名:几何作图。
(10分)[讲评]画图思路同4题。
用AutoCAD软件作图,实际就是用计算机模拟手工画图,AutoCAD二维绘图命令、二维编辑命令、尺寸标注设置及应用的熟练程度直接影响画图的质量和速度,这道题也是上机练习的题目,建议学员在辅导教师的指导下一步一步地绘制。
建筑制图与识图实训小作业一1、写出图中指出的图线的名称,以及当b=0.7时的线宽。
2、注出窗立面图的比例。
3、根据所给的比例,注出外墙板长河高的实际尺寸。
窗立面图1:50外墙板立面图1:604、作出下列建筑形体的剖面图与断面图。
(1)作1—1剖面图。
(2)作形体的半剖面图。
(3)补绘1—1剖面图。
(4)补绘2—2剖面图(雨篷的材料为钢筋混凝土)。
(5)补绘2-2剖面图(6)补绘1—1、2—2、3—3断面图。
(7)补画1—1阶梯剖面图。
5、简答题(1)土木工程制图中的图线有几种?其用途有何不同?答:土木工程制图中的图线有6种:(1)实线,用途为可见轮廓线,图例线;(2)虚线,用途为不可见轮廓线,图例线;(3)单点画线,用途为中心线,对称线;(4)双点画线,用途为假想轮廓线,成型前原始轮廓线;(5)折断线,用途为断开界线;(6)波浪线,用途为断开界线。
(2)标注尺寸时,绘制45°短线的起止符号应注意哪些问题?答:起止符号长度通常在2—3mm,采用中粗实线绘制。
(3)图名有何作用?在注写图名时要注意哪些规定?答:图名作用为表示图纸的代号和要表达的主要内容以及涉及工程的项目。
每个视图都应注出图名,图名注写在视图的下方为宜,并在图名下画一粗横线,其长度应以图名所占长度为准。
(4)剖面图与断面图的主要区别是什么?两者又有何联系?答:剖面图与断面图的区别共有三点:(1):所表达形体的对象不同:断面图中只画物体被剖开后的截面投影;而剖面图除了要画出截面的投影,还要画出剖切后物体的剩余部分的投影。
(2):通常,剖面图可采用多个剖切平面;而断面图一般只使用单一剖切平面。
(3):引入剖面图的目的是为了表达物体的内部形状和结构;而画断面图的目的则常用来表达物体中某一局部的断面形状。
均表达物体的内部结构。
(5)简化画法意义何在?常用的简化画法有几种?其使用条件是什么?答:简化画法在不妨碍准物体的形状和结构表达完整,清晰的前提下,为减少画图工作量和看图方便而确定的。
常用的简化画法有三种:(1)对称图形的简化画法,使用条件在对称图形的一半,画在对称的两端,且平等线在对称线两侧相等;(2)相同部分的简化画法,使用条件在物体上其有多个完全相同而连续排列的构造要求;(3)折断开图形简化画法,使用条件,较长的物体,沿长度方向的形状相同成单一规律变化。
小作业二一、填空题1、结构是建筑物的基本部分,是用一定的建筑材料建成的,具有足够的抵抗能力的空间骨架,这种骨架就是结构。
2、建筑结构按使用的材料不同,可分为钢结构、木结构、混合结构和钢筋混凝土结构。
3、钢筋混凝土是由钢筋和混凝土两种材料复合材料。
钢筋的特点是抗拉力、抗压力强度都很高,而混凝土抗拉强度低,抗压强度高,在钢筋混凝土结构中,钢筋主要承受拉力,混凝土主要承受压力。
4、用钢筋混凝土制成的板、梁和柱等组成的结构物,叫做钢筋混凝土结构。
5、钢筋混凝土结构中的钢筋,有的是由于受力需要而配置的,有的则是因为构造要求而安放的,这些钢筋的形式及作用各不相同,一般可分为:受力筋、箍筋、架立钢筋、分布钢筋和构造筋。
6、为了保护钢筋,防止锈蚀,防火及加强钢筋与混凝土的粘结力,在构件中的钢筋的外表面要留有保护层。
梁、柱的保护层最小厚度为25mm ,板和墙的保护层厚度为10~15mm ,且不应小于受力筋的直径。
7、钢筋布置图也就是钢筋混凝土构件详图中的配筋图,它包括立面图、断面图、钢筋详图及钢筋表。
8、说明钢筋图上所标注4Ф16和Ф6@150各字母和数字的意义:4表示根数;Ф表示一级钢筋直径符号;6表示钢筋直径;@表示相等中心距符号;150表示相邻钢筋中心距150mm 。
9、用平面图表示配置双层钢筋图时,顶层钢筋的画法是向下或向右,底层钢筋的画法是向上或向左。
10、在钢筋混凝土结构图中,钢筋的断面图例是,无弯钩钢筋的端部图例是或,无弯钩钢筋的搭接图例是。
二、根据梁的配筋图及钢筋表,绘制1-1及2-2断面三、补全梁的断面2-2、3-3,画全成型钢筋图(尺寸不注)并填写钢筋表2 – 2 1:m3 – 3 1:m4 – 4 1:m1 – 1梁立面图及成型钢筋图 1:m钢筋表四、简答题1、什么是钢筋混构图结构图?答:用钢筋混凝土制成的板、梁、柱,桥墩和桩等组成的结构物,叫做钢筋混凝土结构。
2、简述钢筋混凝土结构中的各类钢筋的作用?(1)受力钢筋。
指承受构件内拉、压应力的钢筋。
其配置根据受力通过计算确定,且应满足构造要求。
(2)架立筋。
架立筋一般设置在梁的受压区,与纵向受力钢筋平行,用于固定梁内钢筋的位置,并与受力筋形成钢筋骨架。
架立筋是按构造配置的。
(3)箍筋。
箍筋用于承受梁、柱中的剪力、扭矩,固定纵向受力钢筋的位置等。
(4)分布筋。
分布筋用于单向板、剪力墙中。
单向板中的分布筋与受力筋垂直。
其作用是将承受的荷载均匀地传递给受力筋,并固定受力筋的位置以及抵抗热胀冷缩所引起的温度变形。
在剪力墙中布置的水平和竖向分布筋,除上述作用外,不可参与承受外荷载。
(5)构造筋。
指因构造要求及施工安装需要而配置的钢筋。
如腰筋、吊筋、拉接筋等3、钢筋端部的弯钩常用哪几种形式?答:端部的弯钩常用的两种形式:(1)带有平直部分的半圆弯钩;(2)直弯钩4、什么是钢筋明细表?答:钢筋明细表:注明构件中各种钢筋的编号,简图,规格,长度,数量及总长等,编制施工预算,统计钢筋用料。
5、什么是钢筋详图?答:钢筋详图,对于配筋较为复杂的构件,应将各种编号的钢筋从构件中分离出来,用立面图想同的比例画成钢筋详图。
6、什么是钢屋架结构详图?主要内容有哪些?答:钢屋架的结构详图是表示钢屋架的形式和大小、型钢的规格、杆件的组合和连接情况详图,主要内容包括屋架简图、屋架详图(包括结点图)、杆件详图、连接板详图、预埋详图以及钢材用量表等。
7、什么是型钢?答:型钢-------钢结构的钢材,由轧钢厂按标准规格(型号)轧制而成。
8、焊缝代号主要由哪几部分组成?答:焊缝代号主要由图形符号、辅助符号和引出线等部分组成9、焊缝的图形符号表示什么?答:图形符号表示焊缝截面的基本形式一、填空题1、各种房屋,虽然在使用要求、外部造型、内部布局、结构形式以及细部构造上各不相同,但是构成建筑物的主要部分基本相同,一般有基础、墙、柱、楼面、屋面、门窗、楼梯以及台阶、散水、阳台、走廊、天沟、雨水管、勒脚、踢脚板等。
2、一套房屋施工图由建筑、结构、设备(给排水、采暖通风、电气)等专业共同配合协调,在技术设计的基础上绘制而成的。
房屋施工图分为建筑施工图、结构施工图和设备施工图。
3、在借用教材中图5-1和图5-2是小别墅住宅的剖切轴测图。
图中已注写出该房屋的各部分建筑名称有楼梯、门窗、内外墙、地面、台阶、天窗、装饰线脚、勒脚楼面、楼梯、基础、散水、屋面。
4、总平面图是表达新建房屋所在基地有关范围的总体布局。
它表示了新建房屋的位置、朝向以及周围环境的情况等。
5、建筑总平面图中标注的尺寸是以米为单位,一般标注到小数点后 3 位;其他建筑图样(平、立、剖面图)中所标注的尺寸则以毫米为单位;标高都是以米为单位。
6、建筑施工图除总平面图外,还有平面图、立面图、剖面图和详图。
7、建筑平面图(除屋顶平面图之外)实际上是剖切位置位于门窗洞口处的水平剖视图。
它主要表示建筑物的平面形状、房间布置、内外交通联系以及墙、柱、门窗等情况。
一般来说,四层房屋应分别画出4个建筑平面图。
当四层房屋的二、三层平面布置图完全相同时,可只画出一个共同的平面图,该平面图称为标准层平面图。
8、建筑平面图中的外部尺寸应注写三道,第一道尺寸表示总尺寸。
即指从一侧外墙边到另一侧外墙边的总长、总宽尺寸。
9、建筑立面图的图名可按墙面特征命名,也可按墙面的朝向命名,还可按建筑两端定位轴线命名。
10、标高是标注建筑物某一部位高度的一种尺寸形式。
它分为建筑标高和结构标高两种形式。
二、补图或填空1. 画出下列常用建筑材料图例(1)自然土壤(2)夯实土壤(3)钢筋混凝土(4)天然石材(5)空心砖(6)多孔材料(7)普通砖(8)防水材料2. 写出下列建筑材料的名称(1)砂、灰土(2)天然石材(3)饰面砖(4)金属3. 画出下列常用建筑图例P24(1)单扇平开门(2)双扇弹簧门(3)高窗(4)平开窗(5)墙上预留洞(6)墙上预留槽(7)顶层楼梯平面图(8)二层楼梯平面图三、解释下列符号的意义(1 详图编号(第4号详图)详图绘在本张图纸上(2 详图编号(第4号详图) 详图绘在第2张图纸上(4) 详图编号(第5号详图)2张图纸索引)四、根据给定的平面图,完成下述问题:1、填写平面图中的轴线编号;2、标注尺寸;3、标注室内标高(地面标高为零)五、根据楼梯剖面图完成楼梯底层平面图和二层平面图,要求尺寸、标高及标注完整建筑制图与识图实训Array小作业四一、填空题1、结构施工图主要表达结构设计的内容,它是表示建筑物各承重构件(如基础、承重墙、柱、梁板、屋架等)的布置、形状、大小、材料、构造及其相互关系的图样。
结构施工图一般有基础平面图、楼层结构布置平面图、屋面结构平面图和梁、板、柱及基础结构详图、楼梯结构详图、屋架结构详图。
2、基础图一般包括基础平面图、基础断面详图和文字说明三部分。
基础平面图是表示基础未回填土前所作的水平投影的图样。
它是采用剖切在建筑物底层地面±0.000处将其剖开,移去剖切面以上的建筑物所作的水平投影图来表示。
3、基础的形式一般取决于上部承重构件的形式,如墙下的基础可做成条形基础;柱下的基础可做成独立基础。
4、楼层结构平面图是采用假想沿楼面将建筑物水平剖切后所得的楼面的水平投影来表示。
5、楼层结构平面图中各承重构件的表达方法:习惯上定位轴线线表示各种梁的中心位置;预制楼板的布置不必按实际投影分块画出,而简化为一条对角线来表示楼板的布置范围,并沿对角线方向注出预制板的数量、代号和编号。
6、写出下列常用构件的代号或名称:圈梁QL 、屋架WJ 、过梁GL 、雨蓬YP 、基础梁JL 、连系梁LL 、阳台YT 、预埋件M 、楼梯板TB 、KJ 框架、TGB 天沟板、WB 屋面板、JL 基础梁、KWB 框架屋面板、TL 楼梯梁。
二、简答题1、简述建筑施工图和结构施工图的主要区别。
答:建筑施工图是代表建筑的外观尺寸,房间布置和环境,内处装修。
而结构施工图是:主要建筑物的主要承重构件类形和方案,以过计算确定的各种构件的构造,尺寸,材料。
2、什么是建筑平面图?答:建筑平面图是用来表达房屋建筑的平面形状,房间布置,内外交通联系以及墙,楼,门窗等结构配件的位置,尺寸,材料和做法等内容的图样。
3、建筑平面图是怎么形成的?答:建筑平面图是房屋的水平剖面图(屋顶平面图除外),也就是假想用水平的剖切平面在窗台上方把整幢房屋剖开,移去上面部分后的正投影俯视图,习惯上称它为平面图。