铝板_铝带理论重量
- 格式:pdf
- 大小:12.29 KB
- 文档页数:1
如何计算铝板重量铝板重量的计算是在工程领域中非常常见的一个计算问题。
正确计算铝板重量可以帮助我们更好地进行材料选择和工程设计。
本文将介绍如何计算铝板重量,并提供相关的公式和计算步骤。
一、铝板重量计算方法要计算铝板的重量,我们需要知道铝板的尺寸(长度、宽度和厚度)以及铝的密度。
一般情况下,铝板的密度约为2.7克/立方厘米。
铝板的重量(W)可以通过以下公式来计算:W = L × W × T × D其中,W代表铝板的重量(单位为克),L代表铝板的长度(单位为厘米),W代表铝板的宽度(单位为厘米),T代表铝板的厚度(单位为厘米),D代表铝的密度(单位为克/立方厘米)。
二、铝板重量计算实例举个例子来说明如何使用上述公式来计算铝板的重量。
假设有一块铝板,尺寸为长度100厘米、宽度50厘米、厚度1厘米。
首先,我们需要查阅相关资料获得铝的密度。
假设铝的密度为2.7克/立方厘米。
接下来,将数据代入公式中进行计算:W = 100 × 50 × 1 × 2.7通过计算,可以得到铝板的重量为13500克,即13.5千克。
三、计算注意事项在进行铝板重量计算时,需要注意以下几点:1. 单位统一:确保所使用的尺寸和密度单位一致,以避免计算错误。
2. 保留有效数字:根据实际需求和计算精度,灵活确定要保留的有效数字位数。
3. 精度损失:由于计算过程中可能存在计算误差以及数据来源的问题,所得结果应作为参考值,并充分考虑计算过程中的精度损失。
四、总结通过本文介绍的方法,我们可以准确计算铝板的重量。
铝板重量的计算对于工程设计和材料选择非常重要,能够为工程师和设计师提供帮助。
在实际应用中,可以根据具体需求进行一定的调整和优化。
希望本文对于铝板重量计算有所帮助。
铝板每平米理论重量表及常用知识一: 1000系列代表1050 1060 1070 1000系列铝板又被称为纯铝板,在所有系列中1000系列属于含铝量最多的一个系列。
纯度可以达到99.00%以上。
由于不含有其他技术元素,所以生产过程比较单一,价格相对比较便宜,是目前常规工业中最常用的一个系列。
目前市场上流通的大部分为1050以及1060系列。
1000系列铝板根据最后两位阿拉伯数字来确定这个系列的最低含铝量, 比如1050系列最后两位阿拉伯数字为50 ,根据国际牌号命名原则,含铝量必须达到99.5%以上方为合格产品。
我国的铝合金技术标准(GB/T3880-2021)中也明确规定1050含铝量达到99.5%.同样的道理1060系列铝板的含铝量必须达到99.6%以上。
二: 2000系列铝板代表2A16 (LY16) 2A06 (LY6) 2000系列铝板的特点是硬度较高,其中以铜原属含量最高,大概在3-5%左右。
2000系列铝板属于航空铝材,目前在常规工业中不常应用。
我国目前生产2000系列铝板的厂家较少。
质量还无法与国外相比。
目前进口的铝板主要是由韩国和德国生产企业提供。
随着我国航空航天事业的发展, 2000系列的铝板生产技术将进一步提高。
三: 3000系列铝板代表3003 3003 3A21为主。
又可以称为防锈铝板我国3000系列铝板生产工艺较为优秀。
3000系列铝板是由锰元素为主要成分。
含量在1.0-1.5之间。
是一款防锈功能较好的系列,常规应用在空调,冰箱,车底等潮湿环境中,价格高于1000系列,是一款较为常用的合金系列。
四: 4000系列铝板代表为4A014000系列的铝板属于含硅量较高的系列。
通常硅含量在4.5-6.0%之间。
属建筑用材料,机械零件,锻造用材,焊接材料;低熔点,耐蚀性好产品描述:具有耐热、耐磨的特性。
五: 5000系列代表5052.5005.5083.5A05系列。
5000系列铝板属于较常用的合金铝板系列,主要元素为镁,含镁量在3 -5%之间。
常用金属材料重量计算公式(每千只重量)园钢重量(公斤)=0.00617×直径×直径×长度方钢重量(公斤)=0.00785×边宽×边宽×长度六角钢重量(公斤)=0.0068×对边宽×对边宽×长度八角钢重量(公斤)=0.0065×对边宽×对边宽×长度螺纹钢重量(公斤)=0.00617×计算直径×计算直径×长度角钢重量(公斤)=0.00785×(边宽+边宽-边厚)×边厚×长度扁钢重量(公斤)=0.00785×厚度×边宽×长度钢管重量(公斤)=0.02466×壁厚×(外径-壁厚)×长度钢板重量(公斤)=7.85×厚度×面积园紫铜棒重量(公斤)=0.00698×直径×直径×长度园黄铜棒重量(公斤)=0.00668×直径×直径×长度园铝棒重量(公斤)=0.0022×直径×直径×长度方紫铜棒重量(公斤)=0.0089×边宽×边宽×长度方黄铜棒重量(公斤)=0.0085×边宽×边宽×长度方铝棒重量(公斤)=0.0028×边宽×边宽×长度六角紫铜棒重量(公斤)=0.0077×对边宽×对边宽×长度六角黄铜棒重量(公斤)=0.00736×边宽×对边宽×长度六角铝棒重量(公斤)=0.00242×对边宽×对边宽×长度紫铜板重量(公斤)=0.0089×厚×宽×长度黄铜板重量(公斤)=0.0085×厚×宽×长度铝板重量(公斤)=0.00171×厚×宽×长度园紫铜管重量(公斤)=0.028×壁厚×(外径-壁厚)×长度园黄铜管重量(公斤)=0.0267×壁厚×(外径-壁厚)×长度园铝管重量(公斤)=0.00879×壁厚×(外径-壁厚)×长度注:公式中长度单位为米,面积单位为平方米,其余单位均为毫米平方公里(km2)=100公顷(ha)=247.1英亩(acre)=0.386平方英里(mile2)1平方米(m2)=10.764平方英尺(ft2)1公顷(ha)=10000平方米(m2)=2.471英亩(acre)1平方英寸(in2)=6.452平方厘米(cm2)1英亩(acre)=0.4047公顷(ha)=4.047×10-3平方公里(km2)=4047平方米(m2)1平方英尺(ft2)=0.093平方米(m2)1平方码(yd2)=0.8361平方米(m2)1平方米(m2)=10.764平方英尺(ft2)1平方英里(mile2)=2.590平方公里(km2)2006-3-26 9:03:38 发表解答:长度换算1千米(km)=0.621英里(mile) 1米(m)=3.281英尺(ft)=1.094码(yd)1厘米(cm)=0.394英寸(in) 1英里(mile)=1.609千米(km) 1英寸(fm)=1.829(m)1英寸(in)=2.54厘米(cm)1海里(n mile)=1.852千米(km) 1码(yd)=3英尺(ft)1杆(rad)=16.5英尺(ft)1英里(mile)=5280英尺(ft)1海里(n mile)=1.1516英里(mile)1英尺(ft)=12英寸(in)常用有色金属材料理论重量简易计算公式注:W的单位为千克/米,其它单位为毫米。
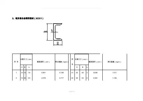
3、铝及铝合金槽形型材(XC311)主要尺寸(mm)2 序主要尺寸(mm)2 序号截面面积(cm )理论重量(kg/m)截面面积(cm )理论重量(kg/m)号H B b H B b 1 13 13 1.6 0.561 0.156 31 45 40 3 3.638 1.011 2 13 34 3.5 2.579 0.717 32 46 25 5 4.300 1.195 3 20 15 1.3 0.620 0.172 33 50 20 45.331 0.926 4 21 28 4 2.868 0.797 34 50 30 2 2.120 0.589 5 25 13 2.4 1.134 0.315 35 50 30 4 4.131 1.148 6 25 15 1.5 0.7950.221 36 55 25 5 4.819 1.340 7 25 18 1.5 0.870 0.242 37 55 30 3 3.299 0.917 8 25 18 2 1.140 0.317 38 60 25 4 4.131 1.148 925 20 2.5 1.520 0.423 39 60 35 5 6.000 1.668 10 25 20 4 2.280 0.634 40 60 40 4 4.480 1.245 11 25 25 5 3.250 0.904 41 63 38.3 4.8 6.275 1.744 12 30 15 1.5 0.870 0.242 42 64 38 4 5.3001.473 13 30 18 1.5 0.960 0.267 43 70 25 3 3.449 0.959 14 30 202 1.335 0.371 44 70 25 5 5.500 1.529 15 30 22 6 3.870 1.076 45 70 26 3.2 3.700 1.028 16 32 25 1.8 1.437 0.399 46 70 30 44.931 1.371 17 32 25 2.5 1.925 0.535 47 70 40 5 7.080 1.968 18 35 20 2.5 1.770 0.492 48 75 45 5 7.831 2.177 19 35 30 2 1.833 0.510 49 80 30 4.5 6.010 1.671 20 38 50 5 6.560 1.824 50 80 35 4.5 6.414 1.783 21 40 18 2 1.453 0.404 51 80 35 6 8.280 2.302 22 40 18 2.5 1.795 0.499 52 80 40 4 6.131 1.704 23 40 18 32.129 0.592 53 80 40 6 8.900 2.474 24 40 21 4 2.960 0.823 54 80 60 4 7.480 2.079 25 40 25 2 1.730 0.481 55 90 50 6 10.6802.969 26 40 25 3 2.549 0.709 56 100 40 6 10.080 2.802 27 4030 3.5 3.250 0.904 57 100 48 6.3 11.550 3.211 28 40 32 3 2.978 0.828 58 100 50 5 9.580 2.663 29 40 50 4 5.280 1.468 59 12840 9 17.100 4.754 30 45 20 3 2.370 0.6591、铝及铝合金直角角型材(XC111)主要尺主要尺寸主要尺寸截面面积截面面理论重量序 2 理论重量序号寸(mm) 2 理论重量(kg/m)序号(mm)2 (mm)截面面积(mm )(mm )积(mm )(kg/m)号(kg/m)HB b HB b HB b 1 12 1 0.234 0.065 25 25 1.3 0.734 0.204 49 38.3 5 3.590 0.998 2 12 2 0.440 0.122 26 25 1.6 0.777 0.216 50 38.3 6.3 4.444 1.235 3 12.5 1.6 0.377 0.105 27 25 2 0.964 0.268 51 40 2 1.564 0.435 4 15 10.294 0.082 28 25 2.5 1.189 0.331 52 40 2.5 1.944 0.540 5 151.2 0.353 0.098 29 25 3 1.410 0.392 53 40 32.320 0.645 6 15 1.5 0.434 0.121 30 253.2 1.509 0.429 54 40 3.5 2.671 0.743 7 15 2 0.564 0.157 31 25 3.5 1.641 0.456 55 40 3.5 2.694 0.749 8 15 3 0.820 0.223 32 25 4 1.857 0.516 56 40 4 3.057 0.850 9 161.6 0.429 0.119 33 25 52.242 0.623 57 40 53.750 1.043 10 162.4 0.726 0.202 34 27 2 1.041 0.289 58 45 43.475 0.961 11 181.5 0.524 0.146 35 27 2 1.090 0.303 59 45 5 4.277 1.189 12 182 0.684 0.190 36 30 1.5 0.884 0.246 60 503 2.920 0.812 13 191.6 0.585 0.163 37 30 2 1.164 0.324 61 50 4 3.857 1.072 14 192.4 0.861 0.239 38 30 2.5 1.438 0.400 62 50 5 4.777 1.328 1519 3.2 1.125 0.313 39 30 3 1.720 0.478 63 50 6 5.655 1.572 1620 1 0.397 0.110 40 30 4 2.240 0.623 64 50 6.5 6.110 1.699 17 20 1.2 0.473 0.131 41 32 2.4 1.491 0.415 65 50 12 10.600 2.947 18 20 1.5 0.584 0.162 42 32 3.2 1.957 0.554 66 60 5 5.7771.606 19 20 2 0.764 0.212 43 32 3.52.131 0.592 67 60 6 6.8551.906 20 20 3 1.140 0.137 44 32 6.5 3.723 1.036 68 75 7 10.0102.783 21 20 4 1.475 0.410 45 35 3 2.005 0.557 69 75 8 11.3603.158 22 20.5 1.6 0.633 0.176 46 35 4 2.657 0.739 70 75 10 14.000 3.892 23 23 2 0.680 0.245 47 38 2.4 1.773 0.498 71 90 5 8.750 2.433 24 25 1.2 0.597 0.166 48 38.3 3.5 2.562 0.712 7290 8 13.760 3.825注(1)铝及铝合金型材的尺寸、规格等摘自冶金工业部1970 年颁发的《铝及铝镁合金挤压型材》。
常用装饰材料重量计算方法:
1、铝单板:面积(㎡)*厚度(mm)*2.71=重量(Kg)
2、铝型材:[截面面积(㎡)*长度(m)*2.7]/1000=重量(Kg)
3、铝塑板(4mm):面积(㎡)*5.5=重量(Kg)
4、铝塑板(3mm):面积(㎡)*3.5=重量(Kg)
5、玻璃:面积(㎡)*厚度{单块玻璃的厚度相加,不包括中空部分(mm)}*2.5=重量(Kg)
6、石材(大理石):面积(㎡)*厚度(mm)*2.5=重量(Kg)
7、石材(花岗岩):面积(㎡)*厚度(mm)*(2.6-2.9)=重量(Kg)
8、基础(混凝土):面积(㎡)*厚度(mm)*1.34=重量(Kg)
9、钢材:根据米重计算
角钢:每米重量=0.00785*(边宽+边宽-边厚)*边厚
圆钢:每米重量=0.00617*直径*直径(螺纹钢和圆钢相同)
扁钢:每米重量=0.00785*厚度*边宽
管材:每米重量=0.02466*壁厚*(外径-壁厚)
板材:每米重量=7.85*厚度
黄铜管:每米重量=0.02670*壁厚*(外径-壁厚)
紫铜管:每米重量=0.02796*壁厚*(外径-壁厚)
铝花纹板:每平方米重量=2.96*厚度
有色金属比重:紫铜板8.9黄铜板8.5锌板7.2铅板11.37
有色金属板材的计算公式为:每平方米重量=比重*厚度。
3、铝及铝合金槽形型材(XC311)4 21 28 4 2.868 0.797 50 30 2 2.120 0.5895 25 13 2.4 1.134 0.315 50 30 4 4.131 1.1486 25 15 1.5 0.795 0.221 55 25 5 4.819 1.3407 25 18 1.5 0.870 0.242 55 30 3 3.299 0.9178 25 18 2 1.140 0.317 60 25 4 4.131 1.1489 25 20 2.5 1.520 0.423 60 35 5 6.000 1.66810 25 20 4 2.280 0.634 60 40 4 4.480 1.24511 25 25 5 3.250 0.904 63 38.3 4.8 6.275 1.74412 30 15 1.5 0.870 0.242 64 38 4 5.300 1.47313 30 18 1.5 0.960 0.267 70 25 3 3.449 0.95914 30 20 2 1.335 0.371 70 25 5 5.500 1.52915 30 22 6 3.870 1.076 70 26 3.2 3.700 1.02816 32 25 1.8 1.437 0.399 46 70 30 4 4.931 1.37117 32 25 2.5 1.925 0.535 47 70 40 5 7.080 1.96818 35 20 2.5 1.770 0.492 48 75 45 5 7.831 2.17719 35 30 2 1.833 0.510 49 80 30 4.5 6.010 1.67120 38 50 5 6.560 1.824 50 80 35 4.5 6.414 1.78321 40 18 2 1.453 0.404 51 80 35 6 8.280 2.30222 40 18 2.5 1.795 0.499 52 80 40 4 6.131 1.70423 40 18 3 2.129 0.592 53 80 40 6 8.900 2.47424 40 21 4 2.960 0.823 54 80 60 4 7.480 2.07925 40 25 2 1.730 0.481 55 90 50 6 10.680 2.96926 40 25 3 2.549 0.709 56 100 40 6 10.080 2.80227 40 30 3.5 3.250 0.904 57 100 48 6.3 11.550 3.21128 40 32 3 2.978 0.828 58 100 50 5 9.580 2.6631、铝及铝合金直角角型材(XC111)注(1)铝及铝合金型材的尺寸、规格等摘自冶金工业部1970年颁发的《铝及铝镁合金挤压型材》。
铝板重量的计算方法铝板是一种常见的金属材料,具有轻质、耐腐蚀、导电性好等特点,被广泛应用于航空航天、汽车制造、建筑装饰等领域。
在实际生产和工程设计中,经常需要对铝板的重量进行计算。
下面将介绍几种常见的铝板重量计算方法。
1. 根据密度计算。
铝板的密度是计算重量的重要参数。
一般来说,铝板的密度约为2.7g/cm³。
因此,可以通过以下公式计算铝板的重量:重量(kg)= 面积(m²)×厚度(m)×密度(kg/m³)。
例如,一块铝板的面积为1m²,厚度为0.01m,则其重量为:重量 = 1m²× 0.01m × 2700kg/m³ = 27kg。
2. 根据长度计算。
在一些情况下,我们可能只知道铝板的长度、宽度和厚度,而不知道其面积。
这时可以通过以下公式计算铝板的重量:重量(kg)= 长度(m)×宽度(m)×厚度(m)×密度(kg/m³)。
例如,一块铝板的长度为2m,宽度为1m,厚度为0.02m,则其重量为:重量 = 2m × 1m × 0.02m × 2700kg/m³ = 108kg。
3. 根据重量计算。
有时候,我们可能已经知道了铝板的重量,需要反推其面积或长度。
可以通过以下公式进行计算:面积(m²)= 重量(kg)÷(厚度(m)×密度(kg/m³))。
长度(m)= 重量(kg)÷(宽度(m)×厚度(m)×密度(kg/m³))。
例如,一块铝板的重量为50kg,厚度为0.015m,则其面积为:面积 = 50kg ÷(0.015m × 2700kg/m³) = 1.85m²。
4. 根据规格计算。
在一些情况下,我们可能已经知道了铝板的规格,如厚度、宽度等,可以直接使用铝板重量表进行查询,根据规格和重量进行对应。
铝板的重量计算公式是什么,铝板重量计算公式铝板的重量计算公式是什么?
1、断定核算用的长度单位
2、核算铝板的体积
V=长度*宽度*厚度
3、核算铝板的分量G=2.71(铝的比重)*体积
铝板的原料份许多商标:1001,,1002,1003等等之类,每种价格都不相同,常用的铝板是1060.
铝板理论核算公式:W=密度x厚x宽x长如:长1米*宽800mm*厚度3.0mm的铝板分量多少?
W=1000*800*3=2400000(mm?)=2400(cm?), 2400*2.71g=6504g=6.5公斤
长1米*宽800mm*厚度3.0mm的铝板分量为6.5公斤.
参考资料
中国铝业网: 铝板重量计算公式
展开全部
1、断定核算用的长度单位
2、核算铝板的体积
V=长度*宽度*厚度
3、核算铝板的分量G=2.71(铝的比重)*体积
铝板的原料份许多商标:1001,,1002,1003等等之类,每种价格都不相同,常用的铝板是1060.
铝板理论核算公式:W=密度x厚x宽x长如:长1米*宽800mm*厚度3.0mm的铝板分量多少?
W=1000*800*3=2400000(mm?)=2400(cm?), 2400*2.71g=6504g=6.5公斤
长1米*宽800mm*厚度3.0mm的铝板分量为6.5公斤.。
常用装饰材料重量计算
方法
-CAL-FENGHAI.-(YICAI)-Company One1
常用装饰材料重量计算方法:
1、铝单板:面积(㎡)*厚度(mm)*=重量(Kg)
2、铝型材:[截面面积(㎡)*长度(m)*]/1000=重量(Kg)
3、铝塑板(4mm):面积(㎡)*=重量(Kg)
4、铝塑板(3mm):面积(㎡)*=重量(Kg)
5、玻璃:面积(㎡)*厚度{单块玻璃的厚度相加,不包括中空部分(mm)}*=重量(Kg)
6、石材(大理石):面积(㎡)*厚度(mm)*=重量(Kg)
7、石材(花岗岩):面积(㎡)*厚度(mm)*()=重量(Kg)
8、基础(混凝土):面积(㎡)*厚度(mm)*=重量(Kg)
9、钢材:根据米重计算
角钢:每米重量=*(边宽+边宽-边厚)*边厚
圆钢:每米重量=*直径*直径(螺纹钢和圆钢相同)
扁钢:每米重量=*厚度*边宽
管材:每米重量=*壁厚*(外径-壁厚)
板材:每米重量=*厚度
黄铜管:每米重量=*壁厚*(外径-壁厚)
紫铜管:每米重量=*壁厚*(外径-壁厚)
铝花纹板:每平方米重量=*厚度
有色金属比重:紫铜板黄铜板锌板铅板
有色金属板材的计算公式为:每平方米重量=比重*厚度
2。
3、铝及铝合金槽形型材(XC311)主要尺寸(mm)2 序主要尺寸(mm)2 序号截面面积(cm )理论重量(kg/m)截面面积(cm )理论重量(kg/m)号H B b H B b 1 13 13 1.6 0.561 0.156 31 45 40 3 3.638 1.011 2 13 34 3.5 2.579 0.717 32 46 25 5 4.300 1.195 3 20 15 1.3 0.620 0.172 33 50 20 45.331 0.926 4 21 28 4 2.868 0.797 34 50 30 2 2.120 0.589 5 25 13 2.4 1.134 0.315 35 50 30 4 4.131 1.148 6 25 15 1.5 0.7950.221 36 55 25 5 4.819 1.340 7 25 18 1.5 0.870 0.242 37 55 30 3 3.299 0.917 8 25 18 2 1.140 0.317 38 60 25 4 4.131 1.148 9 25 20 2.5 1.520 0.423 39 60 35 5 6.000 1.668 10 25 20 4 2.280 0.634 40 60 40 4 4.480 1.245 11 25 25 5 3.250 0.904 41 63 38.3 4.8 6.275 1.744 12 30 15 1.5 0.870 0.242 42 64 38 4 5.3001.473 13 30 18 1.5 0.960 0.267 43 70 25 3 3.449 0.959 14 30 202 1.335 0.371 44 70 25 5 5.500 1.529 15 30 22 6 3.870 1.076 45 70 26 3.2 3.700 1.028 16 32 25 1.8 1.437 0.399 46 70 30 44.931 1.371 17 32 25 2.5 1.925 0.535 47 70 40 5 7.080 1.968 18 35 20 2.5 1.770 0.492 48 75 45 5 7.831 2.177 19 35 30 2 1.833 0.510 49 80 30 4.5 6.010 1.671 20 38 50 5 6.560 1.824 50 80 35 4.5 6.414 1.783 21 40 18 2 1.453 0.404 51 80 35 6 8.280 2.302 22 40 18 2.5 1.795 0.499 52 80 40 4 6.131 1.704 23 40 18 32.129 0.592 53 80 40 6 8.900 2.474 24 40 21 4 2.960 0.823 54 80 60 4 7.480 2.079 25 40 25 2 1.730 0.481 55 90 50 6 10.6802.969 26 40 25 3 2.549 0.709 56 100 40 6 10.080 2.802 27 40 303.5 3.250 0.904 57 100 48 6.3 11.550 3.211 28 40 32 3 2.978 0.828 58 100 50 5 9.580 2.663 29 40 50 4 5.280 1.468 59 128 40 9 17.1004.754 30 45 20 3 2.370 0.6591、铝及铝合金直角角型材(XC111)主要尺主要尺寸主要尺寸截面面积截面面理论重量序 2 理论重量序号寸(mm) 2 理论重量(kg/m)序号(mm)2 (mm)截面面积(mm )(mm )积(mm )(kg/m)号(kg/m)HB b HB b HB b 1 12 1 0.234 0.065 25 25 1.3 0.734 0.204 49 38.3 5 3.590 0.998 2 12 2 0.440 0.122 26 25 1.6 0.777 0.216 50 38.3 6.3 4.444 1.235 3 12.5 1.6 0.377 0.105 27 25 2 0.964 0.268 51 40 2 1.564 0.435 4 15 10.294 0.082 28 25 2.5 1.189 0.331 52 40 2.5 1.944 0.540 5 151.2 0.353 0.098 29 25 3 1.410 0.392 53 40 32.320 0.645 6 15 1.5 0.434 0.121 30 253.2 1.509 0.429 54 40 3.5 2.671 0.743 7 15 2 0.564 0.157 31 25 3.5 1.641 0.456 55 40 3.5 2.694 0.749 8 15 3 0.820 0.223 32 25 4 1.857 0.516 56 40 4 3.057 0.850 9 161.6 0.429 0.119 33 25 52.242 0.623 57 40 53.750 1.043 10 162.4 0.726 0.202 34 27 2 1.041 0.289 58 45 43.475 0.961 11 181.5 0.524 0.146 35 27 2 1.090 0.303 59 45 5 4.277 1.189 12 182 0.684 0.190 36 30 1.5 0.884 0.246 60 503 2.920 0.812 13 191.6 0.585 0.163 37 30 2 1.164 0.324 61 50 4 3.857 1.072 14 192.4 0.861 0.239 38 30 2.5 1.438 0.400 62 50 5 4.777 1.328 1519 3.2 1.125 0.313 39 30 3 1.720 0.478 63 50 6 5.655 1.572 1620 1 0.397 0.110 40 30 4 2.240 0.623 64 50 6.5 6.110 1.699 17 20 1.2 0.473 0.131 41 32 2.4 1.491 0.415 65 50 12 10.600 2.947 18 20 1.5 0.584 0.162 42 32 3.2 1.957 0.554 66 60 5 5.7771.606 19 20 2 0.764 0.212 43 32 3.52.131 0.592 67 60 6 6.8551.906 20 20 3 1.140 0.137 44 32 6.5 3.723 1.036 68 75 7 10.0102.783 21 20 4 1.475 0.410 45 35 3 2.005 0.557 69 75 8 11.3603.158 22 20.5 1.6 0.633 0.176 46 35 4 2.657 0.739 70 75 10 14.000 3.892 23 23 2 0.680 0.245 47 38 2.4 1.773 0.498 71 90 5 8.750 2.433 24 25 1.2 0.597 0.166 48 38.3 3.5 2.562 0.712 72 90 8 13.760 3.825注(1)铝及铝合金型材的尺寸、规格等摘自冶金工业部1970 年颁发的《铝及铝镁合金挤压型材》。
铝板每平米理论重量表及常用知识一: 1000系列代表1050 1060 1070 1000系列铝板又被称为纯铝板,在所有系列中1000系列属于含铝量最多的一个系列。
纯度可以达到99.00%以上。
由于不含有其他技术元素,所以生产过程比较单一,价格相对比较便宜,是目前常规工业中最常用的一个系列。
目前市场上流通的大部分为1050以及1060系列。
1000系列铝板根据最后两位阿拉伯数字来确定这个系列的最低含铝量, 比如1050系列最后两位阿拉伯数字为50 ,根据国际牌号命名原则,含铝量必须达到99.5%以上方为合格产品。
我国的铝合金技术标准(GB/T3880-2021)中也明确规定1050含铝量达到99.5%.同样的道理1060系列铝板的含铝量必须达到99.6%以上。
二: 2000系列铝板代表2A16 (LY16) 2A06 (LY6) 2000系列铝板的特点是硬度较高,其中以铜原属含量最高,大概在3-5%左右。
2000系列铝板属于航空铝材,目前在常规工业中不常应用。
我国目前生产2000系列铝板的厂家较少。
质量还无法与国外相比。
目前进口的铝板主要是由韩国和德国生产企业提供。
随着我国航空航天事业的发展, 2000系列的铝板生产技术将进一步提高。
三: 3000系列铝板代表3003 3003 3A21为主。
又可以称为防锈铝板我国3000系列铝板生产工艺较为优秀。
3000系列铝板是由锰元素为主要成分。
含量在1.0-1.5之间。
是一款防锈功能较好的系列,常规应用在空调,冰箱,车底等潮湿环境中,价格高于1000系列,是一款较为常用的合金系列。
四: 4000系列铝板代表为4A014000系列的铝板属于含硅量较高的系列。
通常硅含量在4.5-6.0%之间。
属建筑用材料,机械零件,锻造用材,焊接材料;低熔点,耐蚀性好产品描述:具有耐热、耐磨的特性。
五: 5000系列代表5052.5005.5083.5A05系列。
5000系列铝板属于较常用的合金铝板系列,主要元素为镁,含镁量在3 -5%之间。
铝板重量的计算
1.计算公式
铝板的质量=铝板厚度*宽度*长度*密度
2.铝板密度
纯铝的密度是2.7×10³kg/m³或者2.7g/cm³;
其他系列根据合金不同,从2.58~2.9之间都有,具体可参考下方的铝板密度表。
3.实例
假设长72.8mm 、宽38.0mm 、厚度3.0mm的铝板的体积V:
V=72.8*38.0*3.0(mm³)=8299.20(mm³)=8.29920(cm³)
该铝板的质量:8.29920*2.71g=22.4908g=0.0225kg
4.说明
严格按照表格进行理论计算,得出的结果往往比实际来得轻,因为铝板的实际厚度和尺寸没有那么精确,另外铝板覆膜之后也会影响到实际称重。
理论计算只是提供一个大致的参考。
有疑问可追问无锡鑫运亨通,谢谢。
铝板密度表。
1、铝及铝合金直角角型材(XC111)
注(1)铝及铝合金型材的尺寸、规格等摘自冶金工业部1970年颁发的《铝及铝镁合金挤压型材》。
(2)表内理论重量均按LY12合金比重(2.78)进行计算,其他材料的比重及换算系数如下:L1~L7(2.71)-0.975;
LF2(2.68)-0.964;LF11(2.65)-0.953;LF21(2.73)-0.982;LD2(2.70)-0.971;
LY11(2.80)-1.007;LY12(2.78)-1.000。
(3)铝型材主要生产单位有哈尔滨和西北铝加工厂等。
西北铝加工厂的产品断面为100~400cm2,宽度小于530mm。
(4)铝及铝合金型材规格的表示方法是型材类别组号加序号,如XC111-4,其中,XC表示型材,后面的数字依次为
类别、组号,连字符后的数字为顺序号。
2、铝及铝合金直丁字型材(XC211)
3、铝及铝合金槽形型材(XC311)
4、铝及铝合金等边等壁Z字形型材(XC411)
4、铝及铝合金等边等壁工字型材(XC511)
.146/wj/007-001-001.html。