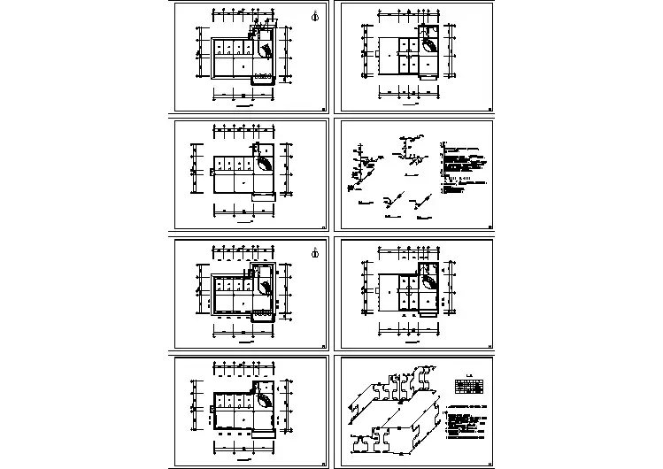
存水弯 DN50辽91T902/31.6 .其它未尽事宜均按<<采暖与卫生工程施工及验收规范>>(GBJ242-82)执行.DN1501 .采暖热媒采用95-70%%dC热水 ,阀门采用铜闸阀 . 4 .管道穿墙及楼板时设套管 ,3 .采暖管道及散热器除锈后 ,明装刷防锈漆一道 ,银粉两道 ,地沟内 防锈漆两道 ,并以30mm厚聚胺脂保温 ,外包2mm玻璃钢 .采暖入口在地梁下面 ,入口采用辽91T901页9施工 ,5 . 排气阀安装见91T901-27.详见地沟作法 敷设的管线刷说 明:图 例 型 闸 阀 Z15T-10 自动排气阀 LGZP型 散 热 器TTZ3-5-5(Z)/ 供 水 管 镀锌钢管 回 水 管 镀锌钢管 名 称 备 注图 例i=0.02%%p0.000DN150-1.300i=0.02DN100DN100DN1003.600%%p0.0009.9006.900P-11:100排水系统图-1.300圆形地漏 DN100DN150i=0.02DN100DN100DN75DN100DN100DN75DN100DN100DN100DN75DN100DN100存水弯 DN100卧室露台卧室客厅卧室卧室小间小间小间大厅小间小间小间大厅小间小间小间上北二层给排水平面图 1:100450018200475018200221007200221007200510019100660090025015002502504500660019100720036003600660025072003600250450025018003600540025036003600360022100720022100660018200250510015004750660018200720072002509006600250450072002210066002505100150072007200660024002506600360022100250540018003600360036002502503600250900三层给排水平面图 1:100一层给排水平面图 1:100卧室露台卧室客厅卧室卧室小间小间小间M-2大厅小间M-2小间小间大厅小间小间小间M-1上北450018200475018200221007200221007200510019100660090025015002502504500660019100720036003600660072003600360025025045002501800360054002503600360036002210072002210066001820025051001500475066001820072007200250900660025045007200221006600250510015007200720066002400250660036002210025054001800360036003600250250P1P2P3P4S13000P-2,31:100排水系统图P-41:100排水系统图DN75排水栓 DN40接座便 DN100圆形地漏 DN50存水弯 DN50接浴盆-1.3003.6003.300延时自闭冲洗阀 ACZ-20De250.100给水系统图S11:100三. 其 它1 .2 .3 .厨房的用水点,排水点可根据实际情况进行调整.排水S给水P图中标高以室内地坪为%%p0.000m ,图中所注尺寸除标高外 ,其它尺寸均以毫米计 .管线穿楼板及穿墙处应设套管 ,排 水 立 管PL图例及管线代号SL给 水 立 管3 .排水立管的清扫口的布置位置见排水系统图 ,安装高度为1000mm .二 .排 水2 .厨房及卫生间为初装修 ,卫生设备安装见辽94S301 .1 .排水系统管材采用排水硬聚氯乙烯(U-PVC)管 ,三通为90%%d采用方形深水封地漏 ,详见辽94S201/51 ,通气管出屋面的高度为700mm ,此段钢管做防腐处理 .排水通气管出屋面部分采用钢管,通气帽安装制作90%%D弯采用两个45%%d弯头,顺水三通 ,地上部分排水立管管线敷设时采用砂垫层基础 ,详见辽94S201/56 .地下每层设伸缩节 ,一 .给水说 明 :给水系统管材采用PPR管 ,接口连接方式为热溶连接 ,所有阀门均采用铜质阀门 ,铜制镀铬陶瓷密封片水嘴 .水嘴采用16 Z10i=0.003DN40DN20DN20DN20DN20DN20DN20DN20DN20DN20DN20DN20DN20DN20E'E'E'E'E'i=0.003DN25E'E'E'E'E'DN40i=0.003DN40DN40i=0.003DN40DN20DN40DN50DN25DN40DN40DN40DN40DN40DN25DN40DN40DN40DN40i=0.003一层给排水平面图 二层给排水平面图 三层给排水平面图 100-2.100S-1S-2S-3给排水系统图S-4%%p0.000De25De25De20De20De25De32De32De25De504 .未说明事项请按有关操作规程及规范执行 .一层采暖平面图 N-1N-2N-4N-3三层采暖平面图 二层采暖平面图 采暖系统图i=0.003DN50DN50DN50泄水阀DN1518 Z20 Z25090020 Z14 Z8 Z10 Z12 Z18 Z16 Z12 Z16 Z20 Z20 Z8 Z14 Z12 Z16 Z16 Z18 Z18 Z18 Z18 Z16 Z16 Z16 Z30 Z'30 Z'30 Z'30 Z'30 Z'30 Z'30 Z'30 Z'12 Z20 Z18 Z18 Z18 Z8 Z14 Z处 ,2 .散热器选用翼柱650型(T)和肋板型TL-527-24(T') ,其中肋板型层低窗台管材采用镀锌钢管 .散热器用于一散热器用于一2 .散热器选用翼柱650型(T)和肋板型TL-527-24(T') ,其中肋板型TL-527-24(Z')编辑部:gpszx@网易给排水网易 NetEase本图纸由浩辰ICAD软件提供技术支持水行业专业门户网站== 建 库 网中国建筑资料库第一门户网站=本图纸由浩辰ICAD软件提供技术支持本图纸由浩辰ICAD软件提供技术支持}=