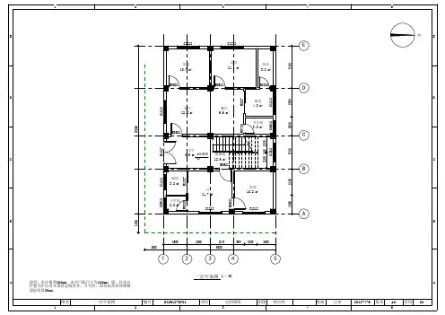
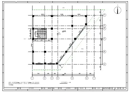
户型平面图 A单元平面放大
- 格式:pdf
- 大小:1.19 MB
- 文档页数:1
房子设计平面图:打造理想居住空间一、空间布局规划1. 确定房间功能在设计平面图之前,要明确各个房间的功能。
一般来说,包括客厅、卧室、厨房、卫生间、书房等。
根据家庭成员的需求,合理规划每个房间的面积和位置。
2. 考虑动线流畅动线流畅是衡量房子设计好坏的重要标准。
确保客厅、餐厅、厨房等公共区域之间的连接自然,避免交叉和拥堵。
同时,卧室、书房等私密空间应相对独立,保证居住者的隐私。
3. 合理划分区域根据家庭成员的生活习惯,合理划分区域。
例如,将客厅、餐厅、厨房设置在同一动线上,方便日常生活;将卧室、卫生间设置在相对安静的区域,保证休息质量。
二、空间尺寸设计1. 房间面积根据家庭成员数量和房间功能,合理分配房间面积。
一般来说,客厅面积宜在2030平方米,卧室面积宜在1218平方米,厨房面积宜在610平方米,卫生间面积宜在46平方米。
2. 窗户尺寸窗户尺寸应满足采光、通风和景观需求。
客厅、卧室等主要房间应设置较大窗户,卫生间、厨房等辅助房间可设置较小窗户。
3. 门洞尺寸门洞尺寸要考虑家具搬运和人员通行。
一般室内门洞宽度宜在9001000毫米,高度宜在2000毫米左右。
三、家具摆放与收纳1. 家具摆放根据房间功能和家具尺寸,合理摆放家具。
例如,沙发与电视柜之间的距离宜在23米,床与衣柜之间的距离宜在600800毫米。
2. 收纳设计充分利用墙面、过道等空间,设计收纳柜、吊柜等收纳设施。
例如,客厅可设置电视柜、书架,卧室可设置衣柜、床头柜,厨房可设置橱柜、吊柜等。
四、室内采光与通风1. 优化采光设计自然光对于居住环境的舒适度至关重要。
在设计时,应确保主要活动区域如客厅、卧室有充足的日照。
可以考虑采用大窗户、落地窗或者天窗来增加室内采光,同时注意窗户的朝向,避免西晒带来的不适。
合理的通风设计能够提升室内空气质量,保持居住环境的清新。
在设计时,要确保每个房间都有对外的窗户,形成穿堂风,特别是在厨房和卫生间这样的湿气较重区域。