迅达电梯安全回路BX安全回路
- 格式:pdf
- 大小:420.22 KB
- 文档页数:1
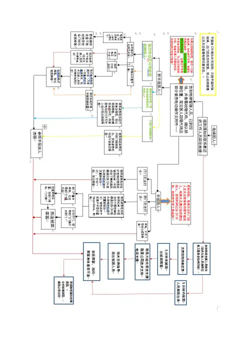
附件一常见抱闸故障:1413、1507、1508、1509、1510、1581、1582、1583、1584、1585、1653、1654、1655、1656、1663、1676、1679、1680、1686、1687、抱闸印版插头接线检查(画圈插头为松闸必须使用插头):1. J H断电检测2. K BV限速器3. S K-PEBO松闸控制线路4. M GB抱闸线圈输出电压线路5. B AT松闸电池一、可机房紧急电动运行(机房检修):1、上下极限动作,安全回路显示T1、T2、T3A亮,T3B之后熄灭,可用机房检修正常上下行运行2、限速器开关动作T1、T2亮,T3A之后熄灭,可用机房检修正常上下行运行3、安全钳开关动作T1、T2、T3A亮,T3B之后熄灭,可用机房检修正常上下行运行二、安全回路T4之后不通(T4、T5熄灭):故障代码148厅门断开,使用机房厅门门旁路功能,检修上下行,平层后断电扒门三、安全回路T5熄灭(需要把安装运行开启):故障代码149轿门断开,使用机房轿门门旁路功能,进入密码ABCD,command菜单,specialtrips,MOF改成on(安装运行可以屏蔽井道信息及门机信号),检修上下行,平层后断电扒门四、安全回路通,但是显示UNV 或门机状态是两个竖条(只要不是实心竖条):先进入密码,command 菜单,special trips,MOF 改成on (安装运行可以屏蔽井道信息及门机信号),检修上下行,平层后断电扒门 其他情况,断电松闸,楼层位置信息如下:五、其他:1、确定轿厢位置:断电后,屏幕左下会显示轿厢距离下一层平层位置,0代表平层,+代表比该层高,-代表比该层低,平层状态下安全回路左侧上边有个蓝色的灯会亮起,对应上下运行蓝灯上下的黄灯会亮2、M层平层或其他楼层平层但是当层门无法打开:。
扶梯静止时LED显示LED3(红灯)闪安全回路断开,运行闭锁,DIL开关不在正常位置(厂家预置位置)LED2(黄灯)闪停车闭锁亮扶梯准备好运行LED1(绿灯)闪起动过渡阶段亮额定运行LED1和LED2 交替闪自动润滑信号运行状态和出错显示r 0 测试运行/检修运行r 0 安全回路开路r r 复位开关DRES1不在OFF位置d 0 准备好运行d 连续运行A 自动运行t t TUV速度模拟运行d 下行u 上行-星形运行/变频运行/主接触器吸合(直接启动)c 夜间停止服务功能有效L 润滑故障扶梯故障显示-- (PHKE)“偏差值”出错00 (JR-U,JR-T)钥匙开关没复位10*** (KKP-T,KPV-T)上部梳齿板触点11 (KHLE-T)上部扶手带入口触点12 (KSL)围裙板触点13 (SKVS)硬件监控HWD继电器出错14 (DH)急停车15*** (KKP-B,KKPV-T)下部梳齿触点16 (KHLE-B)下部扶手带入口触点17 (KKS-B,KUS)链条涨紧触点20* ROM检验出错21 (KBSA,KBSIA)安全制动器不在关位置23 (KBSP,KBS2A)安全制动器触点24 (WTHM)PTC热敏电阻25接触器释放检查26** (PHKE)运行方向出错27** (PHKE)位移值超过范围30** (PHKE)超速31* (PHKE)欠速32*** (INHL-L)左扶手带监控33*** (INHL-R)右扶手带监控34 (KB)工作制动器触点/相位故障35 (KBSA)安全制动器触点36(KKA-T,KKA-B,KBFM,KANK)梯级下沉,踏板监控37* (PHKE)移动运行38* (PFVKQ,INBMG)电机速度监控39** (PHANK-T)梯级或踏板缺少监控(上部)3A (PHANK-T)上部光电未对准3B** (PHANK-B)梯级或踏板缺少监控(下部)3C (PHANK-B)下部光电未对准40 复位41 钥匙停车42 丢失24V电源43 电流过大44 RAM检验出错45 SRE释放监控出错46* (S10)梯级运行方向未监控47 (PHKE)梯级监控光电有问题88 不明故障*取消出错联锁:复位(合上电源再断开)/S11合上再断开**取消出错联锁:分别操作DRES1按钮RAM显示(S4-S1)0111:制动距离0011:运行计时器1100:润滑/间歇时间0100:光栅检验0110:位移值0010:计算得位移值0000:特征值显示0101:自动运行特征值1010:脉冲数1101:测得的最小/最大位移极限值1011:ECO计数器0001:ECO参考速度1000:下部LS速度1001:上部LS速度1110:超速极限1111:欠速极限DIL开关的控制功能S1:ON 调出出错记录OFF 正常运行S2:ON 可变时间的显示OFF 存储可变时间/正常运行S3:ON 6人(带ECO经济节能运行)OFF 12人(带ECO)或不带ECO节能型运行S4:ON 钥匙开关脉冲编码OFF 不带钥匙开关脉冲编码的正常运行S5:ON 星-三角启动OFF 直接启动(连续运行)S6:ON 节能运行功能有效/变频器OFF 节能运行功能无效(使用变频器不能关闭)S7:ON 可以选择自动运行和连续运行OFF 只能用于连续运行S8:ON 有源安全制动器OFF 无源安全制动器/辅助制动器/无安全制动器S9:ON 速度监控有效OFF 速度监控无效S10:ON 运行方向监控有效OFF 运行方向监控无效S11:ON RAM显示OFF 运行状态显示S12:ON TUV测试(模拟速度测试运行)OFF 正常运行参考:0000 1011 01000010 0001 0100“T5”去掉可以去掉W A TCHDOG电感式接近开关,调整到5~6毫米。
A 驱动器(包括电动机、制动器、增量脉冲发生器、散热装置)A 装置,印刷电路板(AEG)AB 命令取消ACE 轿箱外召指示器ACN BR 无BR装置ACONIC系统ACN BT 无BT装置ACONIC系统ACN GC X层楼无GC装置ACONIC系统ACN GR 无GR装置ACONIC系统ACN GW 无GW装置ACONIC系统ACN SP 无SP装置ACONIC系统ACN T 无T装置ACONIC系统ACN T-O无T-O装置ACONIC系统ACN Z 无Z装置ACONIC系统ACN ZK ACONIC系统ZK印刷电路板ACVF 频率变换器ACUF20 VF20 驱动控制器ACVF140 VF140驱动控制器ACVF2030 VF20/30驱动控制器ACVF30 VF30驱动控制器ACVF35 VF35驱动控制器ACVF3545 VF35/45驱动控制器ACVF354570 VF35/45/70驱动控制器ACVF45 VF45驱动控制器ACVF4570 VF45/70驱动控制器ADIC 数字式轿厢指示器ADIE X楼数字式楼层指示器ALKM417 报警触点取消印板ANA 字符指示器AS 控制柜1AS2 控制柜2ASILOG 专用接口逻辑ASBX 安全回路ASM10 Miconic 10 控制柜ASM10L Miconic 10 控制柜LON总线AZRC 轿厢呼叫目的楼层指示器AZRC1 轿厢1呼叫M的楼层指示器BA 总线终止BA 主梯总线终端终结器BAA 总线终止指示器BAB 大楼总线终止BAF 自由拓扑总线终端BAFG 自由拓扑总线终端用于群控BAFL 自由拓扑总线终端用于电梯BAG 群控总线终端BAL 单梯总线终止(LON底板)BAMB Mic10总线终结器BAP2 法国消防运行内部对讲装置BATR N行总线终端终止BESE 井道末端疏散跨楼(位于操作面板)BI 涡流制动器BIT 门涡流制动器BKBV 限速器桥式触点BKSSC 轿厢松绳器桥式触点BKSSM 机房松绳器桥式触点BR 初始化缓降BUGR 限压整流器BUWR 限压直流斩波器BVRT 门减速跳线BWXSP 内部对讲跨接电阻C 轿厢CADI 服务工具/计算机辅助自诊断设备CI 大厅计算机接口CKZ 直流环电容器CLC矫箱灯电容器CLSPV上高峰运行灯电容器CMVE风机电机电容器cs179085 语音合成器DA报警按纽DBF 消防服务二极管DBFT-O 火警开门按纽DBIT 门O流制动二极管DBTUE 门监视电子二极管DC-* 轿箱内呼X楼按纽DC-1 矫箱内呼一楼按纽DCC 矫箱0-4位编码按纽DCC-A 矫箱编码停止按纽DC-N 轿内呼顶楼按纽DCP-* 轿内司机驾驶X楼按钮DCW-* 轿内X楼选层按钮DCW-D*轿内X楼选层下行按钮DCW-U*轿内X楼选层上行按钮DC-Z 轿内呼叫通用按钮DDF-*X楼层直驶按钮DDFG-* 群控X楼层直驶按钮DDFLI 司机运行直驶按钮DDQ 独立D型确认按钮DDQS D型按钮确认闭合触点DDS D型按钮闭合触点DDWS D型双回路闭合触点按钮DE-* X楼层外召按钮DEB-A 地震监测器复位按钮DE-D X楼下行外召按钮DE-D1 1楼下行外召按钮DE-DN 顶楼下行外召按钮DEH-D 主楼层外召向下按钮DET-S 关门限制二极管DE-U* X楼上行外召按钮DE-U1 1楼层上行外召按钮DEV-HV 优先楼层优先外呼按钮DEVP-B 银行门房柜台首选外召按钮DE-Z 通用外召按钮DFDC-* 内呼X楼按钮释放按钮DFDCP-* 内呼X楼门房按钮释放按钮DFM-D 机房下行按钮DFM-U 机房测试运行上行按钮DGSC-* 轿内X楼层乘客控制按钮DH停止按钮DIB 门接口盒DIBF 火警信号二极管DIM 门接口盒DJ X楼层D型钥匙开关闭合触点DKFM 机房测试运行按钮DL D型灯单元DLBS 井道照明灯按钮DLI 司机运行按钮DLI-DD 司机运行下行按钮DLI-U 司机运行上行按钮DM236 适用意大利警报装置DMGH 刹车磁场保持二极管DMOF 安装运行二极管DMS 称重传感器DNFFC-A 消防时取消矫箱呼叫按钮DNS-D 调整下行按钮DNS-U 调整上行按钮DCM 门跨接模块DPF 优先运行按钮DREC 轿箱检修按钮DREC-D 轿箱检修下行按钮DREC-U 轿箱检修上行按钮DREC-Z 轿箱检修公共按钮DRE-D 下行检查按钮DRE-U 上行检查按钮DRET-O 开门检修按钮DRET-S 关门检修按钮DRF-D 向下对接运行按钮DRF-U 向上对接运行按钮DRH-D 控制下行召唤按钮DRH-U 控制上行召唤按钮DS 交流调压调速单元DSPC 阻止轿箱呼叫按钮DSPCP 门房阻止呼梯按钮DSPR 阻挡二极管DSTB 制动器q波二极管DT-O 开门按钮DT-S 关门按钮DTR-D 人行道下行控制按钮DTR-U 人行道上行控制按钮DUET 门区跨接按钮DUMMY 关门继电器DV D型蜂鸣器DWVT 门区加速电阻二极管DZHT-S 强制停止关门按钮EBCOM 通讯扩展板+EX外部EINBORT 位置、地址ER 调制单元ESE 井道末端疏散操作盘EX 外围FA 平层驱动(双速驱动)FEMH 曳引机滤波器FEL 照明电路抗干扰滤波器FEN 主电源抗干扰滤波器FENA 驱动器电源抗干扰滤波器FENG 群控电源抗干扰滤波器FENS 主控回路滤波器FET 门回路抗干扰滤波器FGH 户外主发电机第X绕组FLC 楼层平层检查FMH 户外曳引电机FUSE 保险丝FN 主频FT FinalTimer 终了计时器(强剖关门时间)FAV 变频器输入频率GA到站钟GA-* X楼层到站钟GA-B 银行柜台楼层到站钟GC 通用CPU输入输出GA-D 下行到站钟GA-U 上行到站钟GEDS 交流调压调速单元抗干扰装置GGA 到站钟装置GH 记忆停站GIOL 通用LON输入\输出GIOM10 Micomic 10输入、输出装置GR 镇流器GRSK 安全电路镇流器GRKS 镇流器直流环GRKZN 镇流器直流环负端GRKZP 镇流器直流环正端GRMG 磁控管镇流器GRMGB 电磁刹车镇流器GRNI 下行镇流器GSC 矫箱Servitel装置GSP Servitel外围装置GST Servitel电话装置GT 转速脉冲发生器GW 大楼总线网关HBOX 隐藏盒HFT 隐藏式消防盒HTIC 隐藏式操纵盘接口HY 液压驱动器IB 运行中IBG 加速电流ICE 欧洲型轿箱接口板IOBX 输入输出选项盒ICOM 通讯接口ICS 矫箱位置编码信号触点(格雷码)IDA 报警信号按钮IET-O 门开至末端信号IFNO 应急电源运行释放信号IFS 预置信息切换选择器IG 增量编码输入装置IHY 液压接口IKW-A 矫箱选择完成信号ILPH 光电管发光信号IM 电动机电流IMN 电动机额定电流IMOF 安装运行信号IMU 电动机相1电流IMV 电动机相2电流IMW 电动机相3电流IN 额定电流INH-001 目录IPH-C 光电管编码信息ISKT 诊断输出印板ISMPHTL 光电安全门缘出错信号ISNR-D 向下再平层感应传感器ISNR-U 向上再平层感应传感器ISUET 门跨接感应传感器ITC 矫箱操作面板接口IUET 门区跨接信号IV 速度信号IVF 变频器接口Ivf 变频器输入电源IVXDMS Miconic VX称重接口Ivxvf Miconic vx变频器接口IVZ 减速下行信号JAB 停止服务开关JABX 控制器控制停止服务开关JABZRS H的楼层呼叫控制停止服务开关JBF 消防运行开关JBF-A 消防运行停止开关(复位)JBFF 消防员消防开关JBFF-A 消防员停止消防运行开关JC 矫箱开关JDC-* 内呼x楼层按钮开关JDCW-* 轿厢选层第X层的开关按钮(钥匙触点)JDCW-D* 轿厢选层第X层的下行开关按钮(钥匙触点)JDCW-U* 轿厢选层第X层的上行开关按钮(钥匙触点)JDE-* 厅站召唤第X层的开关按钮JDE-D* 厅站召唤第X层的下行开关按钮JDE-U* 厅站召唤第X层的上行开关按钮JDEV-* 第X层的楼层优先召唤钥匙按钮JDEVG-* 第X层的楼层优先召唤钥匙按钮(钥匙触点)JDFDC 轿厢按钮释放开关按钮(钥匙开关)JDNF-* 第X层的紧急召唤开关按钮(钥匙开关)JDNFG-* 第X层的楼层优先召唤钥匙按钮(钥匙开关)JDZHT-S 强迫关门停止开关按钮JFCC 编码的轿厢召唤释放开关JFEFNO 应急电源操作,救援运行释放开关JFEFNOM 应急电源操作,救援运行释放开关手册JFIL FI-照明开关JFIS F1控制开关JFISK F1安全电路开关JFITS 安全回路对地漏电运行开关JH 主电源开关JHC 轿厢止动开关JHCT 轿门止动开关JHG 群控电源开关JHL 照明电源主开关JHM 机房急停开关JHM10 MICONIC 10 主电源开关JHNS 应急电源主开关JHNX 备用电源开关JHR 滑轮间急停开关JHRF 对接运行的急停开关JHSG 地坑急停开关JHSG1 地坑急停开关(最低层站)JHTR 爬行控制的急停开关JHX 控制柜电源选择开关,中间部分JHZRS 目的层召唤控制电源开关JIB 运行开关JKL 读卡器开关JLAB 退出服务信号灯开关JLBS 井道照明开关JLC 轿厢灯开关JLF 学习运行开关JLI 司机控制开关JMOF 安装运行开关JNF 应急控制开关JNF-K 急停开关JNFE 紧急防盗服务开关JNFF 消防运行开关JNFF-F 火警释放开关JNFFP 火警停靠开关JNO 应急电源操作(释放)开关JPF 优先运行开关JRE 检修开关JREC 轿厢检修开关JRES 检修开关JRET 轿门检修开关JRF 对接运行开关JRH 机房复位控制开关JRV 保留运行开关JRVC 轿厢保留运行开关JRVM 机房保留运行开关JRVPC 轿厢停靠保留开关JS 控制开关JSBP 搬运工/银行控制开关JSLM 机房照明控制开关JSPC 轿厢召唤堵塞开关JSPCG 群控召唤堵塞开关JSPDC-* 第X层轿厢召唤堵塞开关JSPDEM 机房内层站召唤堵塞开关JSPS 层站堵塞开关JSPT-O 开门堵塞开关JSPT-S 关门堵塞开关JSPZS 入口堵塞开关JSSH 电源保安服务开关JSTUE1 厅门锁跨接开关JSTUE2 厅门锁跨接开关JT-O 开门开关JTHA 驱动的热敏开关JTHAS 控制柜热敏开关JTHAWT WITTUR门机电源开关JTHB 制动器热敏电阻开关JTHC 轿厢热敏电阻JTHLAB 退出服务灯热敏开关JTHM 机房热敏开关JTHMGB 电磁制动器的热敏开关JTHNGC 轿厢电源装置的热敏开关JTHNGG 群控电源的热敏开关JTHNGL 电梯电源的热敏开关JTHPG 群控印板的热敏开关JTHS 控制回路热敏开关JTHSA 驱动控制的热敏开关JTHSK 安全回路的热敏开关JTHSZ 入口的热敏开关JTHSZG 梯群入口的热敏开关JTHT 门的热敏开关JTHTA 匹配变压器的热敏开关JTHTAH 匹配变压器的散热器的热敏开关JTHTAMGB 电磁制动器的匹配变压器开关JTHTANS 应急电源的变压器热敏开关JTHTASPV 上行高峰矢量程序匹配变压器的热敏开关JTHTAX 中央控制器的匹配变压器的热敏开关JTHTC 轿厢操纵盘内热敏开关JTHTLAB 退出服务灯变压器热敏开关JTHTNORS 应急电源变压器复位热敏开关JTHTUV 风扇电压变压器的热敏开关JTHX 中央控制器的热敏开关JTR 爬行控制开关JTTC 轿门隔离开关JUEKBF 火警跨接触点开关(火警探测器0 JUEKTS 门厅跨接触点开关JUEKTS-A 厅门跨接外触点开关JUEKTS-E 厅门跨接触点开关JUG 隐蔽开关JVEC 矫箱风扇开关JZ 离心开关JZH 强制停止开关K 接触器KAT 驱动器Tacho触点KAV-A 止动机构终止止动等待状态触点KAV-E 止动机构工作完成触点KAZ 驱动器离心开关触点KB 刹车触点KBA 补偿绳限位触点KBF 火警触点(火警监测器)KBF-* X楼层火警触点(火警监测器)KBFM 机房火警触点(火警监测器)KBFP 大厅火警触点(火警监测器)KBR-D 下行出始化减速触点KBR-U 上行出始化减速触点KBT2-O 开门第2减速点刹车触点KBT-O 开门刹车触点KBT-S 关门刹车触点KBS 制动器安全触点KBV 限速器触点KBVG 对重限速器触点KBVR 机房滑轮限速器触点KBVSG 井道底坑限速器触点KCS- 井道编码触点(格雷码)0 KD 终端插座KEB 地震监测器触点KEBT-O 开门到位限制触点KEP-A 乘员离开侦测触点KEPAV 止动机构缓冲限位触点KET2-O 开门到位触点(跨接KSKB) KET-O 开门到位触点KET-S 关门到位触点KF 安全钳触点KFL 安全触板触点KGEB 对重移位触点KHA 手盘车触点KITR 人行道控制信号触点KKB 刹车监控触点KKSIC 监控触点KL-* X楼层读卡器触点KLC 矫箱照明灯监控KLHC-* X楼层矫箱位置灯触点KLI 司机驾驶触点KL-M 最小载荷触点KL-V 满载触点KL-X 超载触点KME 疏散讯息触点K-MODUL K模式Servitel服务KMT-A 门电机停止触点KNA 安全窗触点KNE 紧急限制触点(极限开关)KNE-D 紧急下限位触点KNE-U 紧急上限位触点KNI 下行触点KNI-A 下行终止触点KNI-E 下行启动触点KNO-A 紧急电源停止预警触点KNORS 紧急电源复位触点KNR-D 下行再平层触点KNR-U 上行再平层触点KNS-D 下行调整触点KNSE 井道末端紧急触点KNS-U 上行调整触点KNT 门紧急触点KOD-M 最小油压触点KOD-V 满负荷油压触点KOD-X 最大油压触点KP 缓冲器触点KPAV 止动机构缓冲器运行准备完成触点KPG 对重缓冲器触点KPGSG 井道底坑对重缓冲器触点KRBF火警指导触点KRBSI 导管破裂安全触点KRF-D 向下到站运行触点KRF-U 向上到站运行触点KRM 改造端子排KS 平层水平触点KSE 井道末端触点KSE1 井道末端触点(第一速度)KSE2 井道末端触点(第二速度)KSE3 井道末端触点(第三速度)KSEB-D 向下井道井道终端限位触点KSEB-U 向上井道井道终端限位触点KSE-D 井道底部终端触点KSERE 井道末端检查触点KSERE-D 井道下端检查触点KSERE-U 井道上端检查触点KSE-U 井道顶部终端触点KSEV-D 向下缓行井道下端限位触点KSEV-U 向下缓行井道上端限位触点KSIS Servitel楼层信号触点KSKB 关门力限制器触点KSKT 诊断输入印板KSPEP停止成员侦测触点KSPS控制杆触点(电流阻断)KSPT 门受阻触点KSS 松绳触点KSSA 补偿绳松绳触点KSSBV 限速器松绳触点KSSBVG对重限速器松绳触点KSSC 矫箱松绳触点KSSM 机房松绳触点KSSR 滑轮松绳触点KSSS 安全绳松绳触点KSSSG 井道底坑松绳触点KTA-A 门报警停止触点KTAC 矫箱门报警取消触点KTC 矫箱门触点KTDC 矫箱按钮面板触点KTHBR 刹车电阻器热敏触点KTHM 机房热敏触点KTHMB 电机刹车热敏触点KTHMF 机房消防热敏触点KTHMH 曳引电机热敏触点KTHMT 门电机热敏触点KTHO 油热敏开关KTHS 井道热敏开关KTHTER 励磁变压器热敏触点KTHTUS 静止变换器变压器热敏触点KTHUS 静止变换器热敏触点KTHVF 变频器热敏触点KTHWHO 油加热电阻器热敏触点KTL 安全门触板触点KTR 人行道控制触点KTS(L)-* X楼层井道门(左)触点KTS(L)-K 楼层井道门(左)触点KTS(R)-* X楼层井道门(右)触点KTS(R)-K 楼层井道门(右)触点KTS-* X楼层井道门触点KTS1-* X楼层井道门(中分)触点KTSG 井道底坑门触点KTS-N 顶楼井道门触点KTS-RF 到站运行井道门触点KTTC 矫箱隔离门触点KTZ 入口门触点KUEDH 停止按钮跨接触点KUET 门跨接触点KUSH 主接触器电压检测KUSSA 带防跳装置补偿绳张紧触点KV* X楼层门上锁触点KVK 第X速度监控触点KVK-D 向下速度监控触点KVK-U 向上速度监控触点KV-N 顶楼门上锁触点KWS 井道维修出口触点KWSG 井道底坑进水触点KZRF 到站运行区域触点LA-* X楼到站钟LA-B银行柜台楼层到站钟LAB-* X楼层停止服务指示灯LAB-E停止服务执行指示灯(JAB确认)LAC 轿箱报警灯LAGC 轿箱报警存储指示灯LARC 轿箱报警确认指示灯LAS-* X楼层报警灯LB 占用指示灯LB-* X楼层占用指示灯LBF 火警指示灯LBFC 轿箱火警指示灯LBFF 轿箱消防员火警指示灯LBFM 机房火警指示灯LBFSG 电梯底坑火警指示灯LBM 机房占用指示灯LBS 井道照明灯LBS-* X楼层井道照明灯LBS-N 顶楼井道照明灯LBSR 井道照明灯确认按钮LC 轿箱照明灯LC-* X楼内呼指示灯LC-1 1楼内呼指示灯LCD 液晶指示器LC-N 顶楼内呼指示灯LCP-* X楼层门房内呼指示灯LCW-* X楼层轿箱选择指示灯LCW-D* X楼层下行轿箱选择指示灯LCW-U* X楼层上行轿箱选择指示灯LDF-* X楼层行进方向指示灯LDFC 轿箱行进方向指示灯LDFG-* X楼层群控运行方向指示灯LDS 交流调压调速单元电源印板LE-* X楼层厅门灯LEB 地震监测器指示灯LE-D* X楼层下行厅呼指示灯LEF 疏散运行指示灯LEFC 轿箱疏散运行指示灯LE-U* X楼层上行厅呼指示灯LEV-HV 优先厅呼、优先楼层LEVP-B银行门房柜台楼层,优先楼层指示灯LFCC-E内呼编码释放指示灯亮LFDC-* X楼层轿内召唤按钮释放指示灯LFDCP-* X楼层门房轿内召唤按钮释放指示灯LFM-D 机房测试下行指示灯LFM-U 机房测试上行指示灯LFT216 电梯并行I/O印板LGEB 对重移位指示灯LGS-* X楼层顾客控制指示灯LHC-* X楼层轿箱到站指示灯LIB 投入运行指示灯LIBZRS 目的楼层呼叫控制投入运行指示灯LKFM 机房测试运行控制灯LKZ 直流环电抗器LLI-D 司机驾驶下行指示灯LLI-U 司机驾驶上行指示灯LL-X 超载指示灯LM-LR 小量程载荷测量LMS 载荷测量印板LNC 轿箱应急照明灯LNF 应急照明灯LNFC 轿箱应急灯LNFF 消防灯LNFFC 轿箱消防指示灯LNO 应急电源(释放)指示灯LNOC 轿箱应急电源指示灯LNOF 应急电源释放指示灯LNS 应急电源控制指示灯LNSC 轿箱应急电源控制指示灯LONIOH24 LON I/O印板LONIOH241 第二LIO I/O印板LONGDAG LON方向/到站钟LONIOS LON标准输入输出LREP LON中继器LR-* X楼层方向指示灯(上/下指示器)LRC-D 轿箱下行方向指示灯LRC-U 轿箱上行方向指示灯LR-D 下行方向指示灯LR-U 上行方向指示灯LR-D* X楼下行方向指示灯LR-U* X楼上行方向指示灯LRV 保留运行指示灯LRVC 轿箱保留运行指示灯LS 扬声器LS-* X楼层指示灯LSPC 内呼限制指示灯LSPC-E 轿箱内呼受阻指示灯亮LSPCG-E 群控内呼受阻指示灯亮LSPS-* X楼层受阻指示灯亮LPS-E 受阻楼层指示灯亮LSPV 上高峰运行指示灯LSPZSC 轿箱入口受阻指示灯LSTUE-E 厅门锁定跨接指示灯点亮(机房)香港适用LTP-O 门房门开启指示灯LUEKTS-E 门房门开启指示灯LUET 门区跨接指示灯(电梯在门区)LVFC 轿箱优先运行指示灯LW-* X楼层后续运行指示灯(或U/D液晶显示器)LW1-* X楼层后续运行指示灯(或U/D液晶显示器)LW1-D* X楼层后续下行指示灯LW1-U* X楼层后续上行运行指示灯LWC-D 轿箱后续下行指示灯LWC-U 轿箱后续上行指示灯LW-D* X楼层后续运行指示灯(或U/D液晶显示器)LW-D1 1楼层后续运行指示灯(或U/D液晶显示器)LW-DN X楼层后续运行指示灯(或U/D液晶显示器)LW-DU 后续下/上运行指示灯LW-U* x楼后续下/上运行指示灯LZH 强迫停车指示灯MB 电机刹车MBB 制动器印板MF 话筒MGAV 电磁式止动装置MGB 电磁制动器MGTC 轿箱操纵盘磁铁MG-D 下行电磁阀MGH 电磁保持式刹车MGNI 下行磁铁MGTC轿箱操纵盘磁铁MG-U下行电磁铁MGV磁式锁MGV1 第一速度磁控管MGVB 刹车电磁阀MH 曳引电机MPB 刹车泵电机MR 机房MSTB 刹车斩波器晶体管模块MT 门电机MV 门电机锁MVE 风扇电机MVEC 轿箱风扇电机MVEM 机房风扇电机MVEUS 静态转换器风扇电机MVEVF 转换器风扇电机NG 供电单元NG2206 22v6A供电单元NG8006 80V6A供电单元NGA 报警供电单元NGB 刹车供电单元NGC 轿箱供电单元NGE 供电单元NGG 群控部分供电单元NGL 电梯部分供电单元NGMGH 磁保持刹车供电单元NGPHT 门光电系统供电单元NGTL 安全触板供电单元NGSK 安全回路电源装置NSG 应急电源供电单元OKR 轿顶接线盒OKRLR 低MIC VX轿顶接线盒OKRMR 高MIC VX轿顶接线盒PAS 控制柜插座PC 轿箱插座PG 控制印板处理器PGO 选项控制印板处理器PHNR-D 向下平层光电管PHS 平层区光电管PHUET 门区跨接光电管PHVKSE 井道末端速度监控光电管PIOC 轿箱制作面板并行输入/输出接口PIOG 群控并行输入/输出接口PIOL 单梯并行输入/输出接口PIOLG 单梯/群控并行输入/输出接口PIOVEC 变频器处理器调制印板PLUG 厅门锁定跨接开关(插接式)香港适用PM 机房插座PMN 电机额定输出PSG 井道底坑插座PTTM 调制器接线PVF 变频器处理器频率PVFN 变频器名义输出PVXDMS Miconic VX称重处理器Q 开关QKS9+ qks9/10+门驱动器QKS910 qks9/10+门印板RA 报警继电器RAB 停止服务继电器RACS-A 轿箱停止位置指示器继电器RAS 驱动和控制印板RAV 制动装置继电器RB 刹车继电器RB-A 刹车继电器分段RBF 火警运行继电器RBF 消防应急电源控制继电器RBFF 消防员消防运行继电器RBFF-A 终止消防员消防运行继电器RC 轿箱印板RCVE 风扇电容电阻器RCW-A 轿箱选择停止继电器RDC-* 轿呼X楼按钮继电器RDC-1 轿呼1楼按钮继电器RDC-Z 通用轿呼按钮继电器RDDFLI司机运行方向按钮继电器RDLI 司机运行按钮继电器RDLI-D 司机运行下行按钮继电器RDLI-U 司机运行上行按钮继电器RDS 交流调压调速单元调制印板RDT-O 开门按钮继电器RDT-S 关门按钮继电器RE-A 厅呼停止继电器REC 轿箱检修(盘)REFE 疏散运行末端继电器REP成员侦测继电器RES1虚拟BMKRET-O 开门限位触点继电器RET-S 关门限位触点继电器RF 对接运行继电器RFBE 楼层照明释放继电器RFE 启动运行继电器RFE-E 启动运行继电器接通RFEF 撤离运行释放继电器RFF 停止运行继电器RFNO 应急电源操作继电器RFR 调节释放继电器RFT 强迫关门继电器RFUET 门跨接拖开继电器RH 第一速度主继电器RIB “在运行”继电器RIBF 消防信息继电器RICS- 轿厢位置编码器信息触点继电器RIDH1 保持按钮信息继电器RINFF 消防继电器RISPGC 内令存储阻断信息继电器RIT-S 关门信息继电器RKB 制动器监测继电器RKBI 涡流制动器监测继电器RKFMH 曳引电机磁场监测继电器RKMH 曳引电机监测继电器RKPH 相位监测继电器RKTHMH 曳引电机热保护监测继电器RKU (22V)电压监测继电器RKUET 门跨接监测继电器RKULC 轿内灯电源监测继电器RKUS 静态变换器监测继电器RKUSK 安全回路电压检查继电器RKV 门锁定检测继电器RKVZ 减速度检测继电器RL-A 安全板速度控制继电器RL-V 满载继电器RLAB “停止运行”信号灯继电器RLAB-A “停止运行”信号灯继电器(断开) RLB 占用指示灯继电器RLBM 机房占用指示灯继电器RLBS 井道照明灯继电器RLC 轿内照明继电器RLC-A 轿内照明继电器(断开)RLI 司机控制继电器RLL-X 超载信号灯继电器RMGH 制动器磁性继电器RMGTC 轿内操纵盘磁铁继电器RMVE 电机风扇继电器RNF 紧急运行继电器RNFF 消防运行继电器RNI 向下运行继电器RNO 应急电源工作继电器RNT-O 正常开门继电器RNZK 门监控时间元件RPHT 门光电管继电器RPHTL 门安全触板光电继电器RPHTS 门光栅光电管继电器RR-D 下方向继电器2RR-D 第2入口侧下方向继电器RR-U 上方向继电器2RR-U 第2入口侧上方向继电器RRE 检修继电器RRE-A 检修继电器(断开)RRE-D 检修继电器向下RRE-U 检修继电器向上RRF 对靠运行继电器RRF-D 对靠运行继电器向下RRF-U 对靠运行继电器向上RRH 复位控制继电器RRSK 安全回路继电器RRV 保留继电器RS 控制印板RSA 追最终位置接触器RSE 井道端继电器RSE1 井道端继电器(第一速度) RSE2 井道端继电器(第二速度) RSE3 井道端继电器(第三速度) RSIC SICURTRONIC继电器RSK 安全回路继电器RSK-E 安全回路继电器接通RSKD 安全回路诊断继电器RSM 故障信号继电器RSPE 阻断层楼继电器RSPE-* 第X层阻断继电器RSPFE 启动运行阻断继电器RSPNI 向下运行阻断继电器RSPNO 应急电源阻断继电器RSPT 门阻断继电器RSPTC 轿内操纵盘阻断辅助继电器RSPV 上高峰段继电器RSPZS 入口阻断继电器RSS 安全综合继电器RSS2 第二侧轿门累加继电器RST-NU 关门继电器(轻载)RST-O 开门继电器RST-S 关门继电器RSUM 蜂鸣继电器RT-O 开门继电器RT-S 关门继电器RTC 轿门继电器RTER 变压器激励继电器RTHU 变换装置热保护继电器RTR-D 爬行控制下行继电器RTR-U 爬行控制上行继电器RTRF 运行触发继电器RTRT 门触发继电器RTRU 变换器触发继电器RTS 厅门继电器RTS2 第2侧厅门继电器RTSC 厅轿门继电器RU 变换器继电器RU-E 变换器继电器(接通) RUEJHC1 轿门停止开关跨接继电器RUET 门跨接继电器RUET-A 门跨接继电器,断开RUET-E 门跨接继电器,接通RV 门锁定继电器RVEC 轿箱风扇继电器RVEC-A 轿箱风扇继电器,断开RVRT 门减速继电器RVZ 门缓降减速继电器RY 星形连接继电器RZRF 到站区域运行继电器RZRF-D 到站区域向下运行继电器RZRF-U 到站区域向上运行继电器RZYD Y/△连接时间继电器S 井道SB 抱闸接触器SBNH 刹车急停接触器SCC 启动电流控制SD △连接接触器SF 运行接触器SFA 平层接触器SFK 舒适运行接触器SGR 镇流器接触器SGRW 镇流器电阻接触器SGRMGB 电磁刹车镇流器接触器SH 主接触器SH-E 主接触器接通SI 熔丝/井道信息(位置)SI2 第二侧井道信息SIA8 SERVITEL 第8附加输入SIB 刹车熔丝SIBI 涡流制动器熔丝SIFGH-L 户外主发电机X相熔丝SIFMH-L 户外曳引电机X相熔丝SIL 照明回路主熔丝SIMGB 电磁刹车熔丝SINGA 报警供电单元熔丝SIS 控制熔丝SITAT 门回路变压器熔丝SITL 灯变压器熔丝SITLAB 停止服务指示灯变压器熔丝SIX 中央控制器熔丝SIYD Y/△切换开关熔丝SKD 安全回路诊断印板SDA 报警铃STVG 对讲机电源SLKZ 直流环充电接触器SMGVB 电磁阀刹车接触器SMKV Servitel语音通讯模块SMMTV Servitel微型语音终端模块SMOF 安装运行接触器SMP2 Servitel外部模块SMPB 刹车泵电机接触器SMPKV Servitel外部语音通讯模块SMT2 Servitel电话模块SMTAV Servitel电话语音报警模块SMTKV Servitel远程语音通讯模块SMTT Servitel电话终端模块SMTXV MiconicVX用Servitel电话终端模块SOA 音频报警信号系统SPDC 轿呼受阻按钮SPDE 厅呼受阻按钮SR-D 下行接触器SRE 检修接触器SRE-A 停止检修接触器SRE-D 下行检修接触器SRE-U 上行检修接触器SR-U 上行接触器SSK 安全回路接触器SSM 接触器自保回路STB 刹车斩波器STMT 门电机控制器ST-O 开门接触器ST-S 关门接触器SUD 变频器对地△型连接继电器SUM 蜂鸣器SUMC 轿箱蜂鸣器SUMM 机房蜂鸣器SUMP 大堂蜂鸣器SUMS-* X楼层蜂鸣器SUMSG 井道底坑蜂鸣器SUY 变频器对地Y型连接继电器SV 门锁定接触器SVFE 变频器外部电源SVS Servitel语音合成SW 大楼总线接口板SWA 启动电阻接触器SY Y型连接接触器SZ 井道入口SZ2 井道第二入口T 门1T2 第二侧门TA 变压器适配器TAB 停止服务变压器TAC 群控匹配变压器TAH 加热匹配变压器TALC 轿箱照明匹配变压器TAMGB 电磁刹车匹配变压器TANR 再平层匹配变压器TANS 应急供电电源匹配变压器TANV 模拟速度传感器TAS 电梯控制、变压适配器TASPV 上高峰(信号)运行变压器适配器TAT 门匹配变压器TAWT Wittur门匹配变压器TAX 中心区域匹配变压器TAYD Y/△开关切换匹配变压器TB 刹车变压器TBR 驱动器刹车斩波器TC1 轿箱按钮TC2 轿箱按钮2TC3 轿箱按钮3TC4 轿箱按钮4TDI 数字转速传感器TDTT 门数字转速传感器。
安全回路错误1、安全回路断开现象1:安全回路某一开关断开,请检查安全回路的开关。
现象2:冲顶或墩底。
2、安全故障,安全接触器触点状态与线圈状态不一致:现象1:触点接触不良或输入的输入类型不正确。
现象2:高压口线圈状态输入损坏,线圈电压过高。
现象3:线圈电压过低(小于AC100V)。
现象4:线圈未加浪涌保护器,造成主板输入电容损坏。
ER03KMC状态不符错误1:控制系统输出主接触器(KMC)指令后,主接触器无法闭合,或接触器触点接触不良,检查接线是否正确,检查接触器是否损坏。
2:输入类型中X18有效逻辑输入错误。
ER04KMY状态不符错误1:控制系统输出运行接触器指令后,运行接触器无法闭合,或接触器触点接触不良,检查接线是否正确,检查接触器是否损坏。
2:电梯停止运行时,控制系统断开输出后,运行接触器无法快速弹开。
出现该现象时会造成停车时轿厢内指令全部取消。
如反向有外呼时,换向运行,使乘客本次运行无法到达目的层。
更换接触器即可解决该问题。
3:输入类型中X17有效逻辑输入错误。
ER05KMB状态不符错误1:控制系统输出开闸指令后,抱闸继电器无法闭合,或继电器触点接触不良,检查接线是否正确,检查继电器是否损坏。
2:输入类型中X19有效逻辑输入错误。
ER06SSUS(上强换1)在上限位动作时不动作1:上强换开关1安装位置错误或动作不可靠。
2:撞弓垂直度偏差较大。
ER07SSDS(下强换1)在下限位动作时不动作1:下强换开关1安装位置错误或动作不可靠。
2:撞弓垂直度偏差较大。
开门错误1:开门信号输出后未收到开门到位信号,门机信号断线、双稳态开关损坏等。
2:门机处于手动或开门错误,门锁没有打开。
ER09门机变频器故障检测到门机变频器故障(非检修状态)。
ER11编码器来的脉冲过少,或者方向错误1:控制系统给定速度后,变频器未按给定速度运转。
可能的原因:现象1:给定连接线接触不良(多段速度给定信号线);现象:2:设定的运转时间过长,多段给定时,有些型号的变频器有开闸延时运行时间设定,设定时间如大于2.5秒时易出现该保护;现象3:负载过重,变频器在重载条件下无法起动或起动过程太慢。
8 附录B:故障代码图例:C1,C2,C3, --故障原因1,2,3A1,A2,A3, --解决行动1,2,30001 电梯致命故障电梯持续死机,无法操作。
注意,该故障代码经常跟随其他故障代码一起出现。
C1,多种原因A1,通过检查电梯故障表,找到先前的故障信息,以确定故障的关键原因。
0002 安全回路安全回路意外断开或没有按程序闭合。
C1,安全回路意外断开(例如,当电梯在运行中)A1,检查安全回路断开处的接触点。
检查SMIC上110V的保险丝。
C2,安全回路没有按预计闭合。
当所有厅轿门关闭后,安全回路应该随之闭合。
A2,检查门触点的安全回路。
检查参数(CF03 PA13)门关闭与安全回路闭合之间的延时时间。
0003 超载C1:轿厢超载A1:轿厢减磅C2:称重装置错误信号A2:检查称重装置和相关接线。
如果有信号但测量不准,重做称重校准。
0005 没有电源0008 保留/独立状态0012 无授权因没有SIM卡或使用非法的SIM卡,电梯停止运行。
C1:没有迅达公司的SIM卡,或使用了其他电梯的SIM卡A1:检查SIM卡是否插好,SIM卡是否与电梯原配。
检查SIM卡出错信息(#19xx)使用正确的SIM卡。
0017 版本号不吻合C1:SIM卡合法,但与SCIC EEPROM内部存储的COMM号不匹配。
SIM卡发错或SCIC是从其他电梯上拿来的。
A1:换上专为该台电梯定制(特别配置)的SIM卡。
每台电梯的SCIC与SIM卡是配套的并且是唯一的。
0018 SIM卡的数据不完整C1:虽然SIM卡可读,但数据已被破坏(错误的文件长度等)A1:换SIM卡。
0019 ‘看门狗’(监测软件)重起硬件或软件初始化,电梯送电等都会使‘看门狗’软件重起。
C1:主控软件的内部程序问题。
A1:更新主控软件的软件版本(请先与瑞士Locarno联系,取得R&D允许)0020 安全回路被短接安全回路无法安预计断开(例如,在开门时)C1:安全回路被短接(例如,轿门或厅门)A1:检查安全回路(例如,接头处)是否有短接线。
3300\5400故障码001 正常运行停止(Normalstop)说明:正常运行停止。
注:故障处理码缺省不存入CADI附加信息:无产生源识别:无可能故障原因:a) 无应采取措施:不需要002 MC(微处理机)异常(Exception MC)说明:微处理机异常,系统跳至异常运行并自行中断附加信息:无产生源识别:无可能故障原因:a)b)EMC 问题c)印板故障应采取的措施:a)无论何种情况,与EBI联系b)检查建筑物内的强电磁源(EMC),检查24V电源是否与强电电缆分开,譬如:抱闸的电源电缆。
c)更换印板003 停止时无KSE(NoKSE-STDSTL)说明:轿厢位于井道一端并发现KSE信号与测距脉冲发生器计算出的位置不相符。
附加信息:无产生源识别:无可能的故障原因:a)参数值不对b)磁铁极性不对c)KSE开关应采取的措施:a)检查KSE的安放位置与参数SHAFT-PARA,KSE-DISTANC和SHAFT-PARA,GAP-LENGTH是否相符。
b)检查磁铁极性,最下端的KSE为南极,挨着的LSR为北极,最上端的磁铁为南极。
c)检查KSE开关,检查KSE开关到PCB的连接004 非法移动(InvldMovement)说明:非正常运动。
在运行控制处于停车状态时,检测到了轿厢的运动。
如手动打开抱闸,运行控制在执行时较轿厢滑动,则运行控制记录这一事件。
VariodynE:不应出现CSW故障附加信息:无产生源识别:无可能的错误原因:a)抱闸故障b)VariodynE:运行未结束时开始第二次运行应采取的措施:a)检查机械抱闸,在轿厢上行满速上行时进行一次急停并检查轿厢是否在规定距离内停下。
b)检查编码器005 停止时SH吸合(SH-on-STDSTL)说明:接触器SH和SH1在电梯静止时吸合附加信息:无产生源识别:无可能的错误原因:a)b)手动操纵SH SH1应采取的措施:a)检查SH和SH1的辅助接点(RH与RH1是否正常)b)无006 停止时SB吸合(SB-on-STDSTL)说明:接触器SB在电梯静止时吸合附加信息:无产生源识别:无可能的错误原因:a)反馈连接不对b)手动操纵SB应采取的措施:检查SB的辅助触点007 SH故障(SH-FAULT)说明:轿厢运行时SH或SH1(或RH或RH1)的辅助触点断开附加信息:无产生源识别:无可能的错误原因:a)安全回路断开b)c)应采取的措施:a)检查安全回路b)如此事件在靠近层站时发生,则很有可能由提前开门引起。
扶梯静止时LED显示LED3(红灯)闪安全回路断开,运行闭锁,DIL开关不在正常位置(厂家预置位置)LED2(黄灯)闪停车闭锁亮扶梯准备好运行LED1(绿灯)闪起动过渡阶段亮额定运行LED1和LED2 交替闪自动润滑信号运行状态和出错显示r 0 测试运行/检修运行r 0 安全回路开路r r 复位开关DRES1不在OFF位置d 0 准备好运行d 连续运行A 自动运行t t TUV速度模拟运行d 下行u 上行-星形运行/变频运行/主接触器吸合(直接启动)c 夜间停止服务功能有效L 润滑故障扶梯故障显示-- (PHKE)“偏差值”出错00 (JR-U,JR-T)钥匙开关没复位10*** (KKP-T,KPV-T)上部梳齿板触点11 (KHLE-T)上部扶手带入口触点12 (KSL)围裙板触点13 (SKVS)硬件监控HWD继电器出错14 (DH)急停车15*** (KKP-B,KKPV-T)下部梳齿触点16 (KHLE-B)下部扶手带入口触点17 (KKS-B,KUS)链条涨紧触点20* ROM检验出错21 (KBSA,KBSIA)安全制动器不在关位置23 (KBSP,KBS2A)安全制动器触点24 (WTHM)PTC热敏电阻25接触器释放检查26** (PHKE)运行方向出错27** (PHKE)位移值超过范围30** (PHKE)超速31* (PHKE)欠速32*** (INHL-L)左扶手带监控33*** (INHL-R)右扶手带监控34 (KB)工作制动器触点/相位故障35 (KBSA)安全制动器触点36(KKA-T,KKA-B,KBFM,KANK)梯级下沉,踏板监控37* (PHKE)移动运行38* (PFVKQ,INBMG)电机速度监控39** (PHANK-T)梯级或踏板缺少监控(上部)3A (PHANK-T)上部光电未对准3B** (PHANK-B)梯级或踏板缺少监控(下部)3C (PHANK-B)下部光电未对准40 复位41 钥匙停车42 丢失24V电源43 电流过大44 RAM检验出错45 SRE释放监控出错46* (S10)梯级运行方向未监控47 (PHKE)梯级监控光电有问题88 不明故障*取消出错联锁:复位(合上电源再断开)/S11合上再断开**取消出错联锁:分别操作DRES1按钮RAM显示(S4-S1)0111:制动距离0011:运行计时器1100:润滑/间歇时间0100:光栅检验0110:位移值0010:计算得位移值0000:特征值显示0101:自动运行特征值1010:脉冲数1101:测得的最小/最大位移极限值1011:ECO计数器0001:ECO参考速度1000:下部LS速度1001:上部LS速度1110:超速极限1111:欠速极限DIL开关的控制功能S1:ON 调出出错记录OFF 正常运行S2:ON 可变时间的显示OFF 存储可变时间/正常运行S3:ON 6人(带ECO经济节能运行)OFF 12人(带ECO)或不带ECO节能型运行S4:ON 钥匙开关脉冲编码OFF 不带钥匙开关脉冲编码的正常运行S5:ON 星-三角启动OFF 直接启动(连续运行)S6:ON 节能运行功能有效/变频器OFF 节能运行功能无效(使用变频器不能关闭)S7:ON 可以选择自动运行和连续运行OFF 只能用于连续运行S8:ON 有源安全制动器OFF 无源安全制动器/辅助制动器/无安全制动器S9:ON 速度监控有效OFF 速度监控无效S10:ON 运行方向监控有效OFF 运行方向监控无效S11:ON RAM显示OFF 运行状态显示S12:ON TUV测试(模拟速度测试运行)OFF 正常运行参考:0000 1011 01000010 0001 0100“T5”去掉可以去掉WATCHDOG电感式接近开关,调整到5~6毫米。
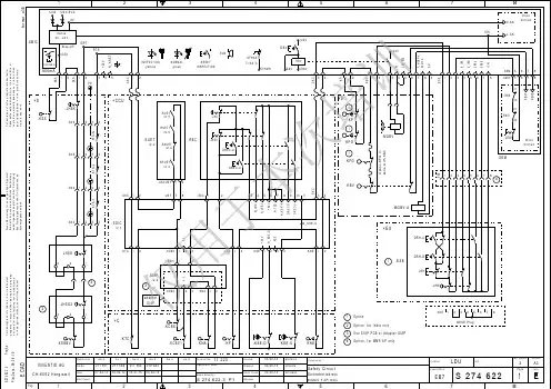
1 Contents 目录23 LON (Car) 轿厢LON *OKR2 Group power 群控电源*AS24 Group interconnections LON LON 总线连接*AS3 Lift power 电梯电源*AS25 I/O Print Overview I/O 印板概述*AS4 Power alarm systems 报警系统电源*MR26 I/O Print Overview I/O 印板概述*AS5 Power light 照明电源*AS27 Input device car operating panel 轿厢操纵盘输入装置*TC16 Supply 24V 24 V供电*AS28 Group interconnection VCOM 群控VCOM总线连接*AS7 Power car 轿厢电源*OKR29 Extension interfaces 扩展接口*AS8 Safety circuit 安全电路*AS30 Floor panels and indicators 呼梯与指示*SZ9 Safety circuit 安全电路*AS31 Door control 门控制*OKR10 Safety circuit 安全电路*AS32 Door drive VARIDOR30/50 门驱动Varidor 30/50 *T11 Input devices drive 驱动输入装置*OKR33 Safety circuit 安全电路*SZ Hoistway information 井道信息34 Landing terminals Riser 1 层楼终端线柱1 *SZ 12 Input devices drive 驱动输入装置*AS35 Hidden COP Interface Car 隐藏式操纵盘*TC1 Evacuation Hoistway End (Panel)36 Description connections input devices and indicators D13 Drive VF50..120 BR 驱动VF50..120BR *AS D 型装置的接线说明*SZ14 Drive VF50..120 BR 驱动VF50..120BR *AS37 Connection of ZRTL and IOBX ZRTL 与IOBX的连接*SZ15 Drive control SK VF30..280 驱动SK VF30..280 *AS38 LON Node address table LON 节点地址表16 Brakemodul VF30..280 制动器模块VF30..280 *AS39 Device ID Index 装置代号索引17 Magnetic brake 电磁制动器*AS40 Device ID Index 装置代号索引18 Drive control KB VF3..280 驱动控制VF30..280 *AS19 Lift alarm 电梯报警*AS20 Lift alarm 电梯报警*AS21 LON cabinet (lift) 控制柜LON (电梯) *AS22 LON cabinet (group) 控制柜LON (群控) *ASAC:220VJHG迅达300P J电源AC:220VJH主电源开关AC•F380VJFISJTHS控制热敏开关N G S K安全回路变压器NGL电梯电源电源开关STVBJHL 照明电源开关MVEC 轿厢风扇LC 轿厢照明P C 电源插座机房照明开关轿顶接线盒轿内风扇、照明继开继电器大楼总线接口板紧急电源电池N G CN G S K安全回路电源J T H S K安全回路电源K S S B V断绳开关J H S G底坑急停开关K N A安全窗开关门机急停安全钳极限开关K P G 対重缓冲器K P 轿厢缓冲器K B V 限速器Generated by Foxit PDF Creator © Foxit Software For evaluation only.急停检修上下轿顶接线盒轿厢机房急停检修下上检修底坑安全回路K T S厅门开关K T C轿门开关P H U E T提前开门Generated by Foxit PDF Creator © Foxit Software For evaluation only.安全电路轿顶接线盒厅门轿门底坑厅门轿门K S E-U/D限位开关满载触点超载触点轿厢停止开关轿厢检修开关轿厢检修盒机房机房复位开关急停上下风扇电机热敏保护风扇电机继电器Generated by Foxit PDF Creator © Foxit Software For evaluation only.驱动变频器主回路曳引机编码器风扇电源滤波器频率变换器风扇变压器AC:220VAC:308V驱动控制热开关主接触器整流器电阻接触器主接触器整流器电阻接触器安全电路板主接触器门触发继电器门触发继电器厅轿门继电器厅轿门继电器门触发继电器安全回路继电器安全回路继电器安全回路继电器安全回路继电安全回路继电安全回路继电门触发继电器厅轿门继电器Location/位置FEN+AS/13.1Filter Interference Suppression Mains主电源滤波器+A Drive驱动FENG+AS/2.1Filter Interference Supply group群控电源滤波器+AS Controller Cabinet 1控制柜1FENS+AS/3.1Filter Mains Control控制电源滤波器+AS2Controller Cabinet 2控制柜2FET+T/32.1Filter Interference suppression Door门电机滤波器+C Car轿厢FUSE%+AS/21.4Fuse (Current Limit) (Dev)保险丝+EX Extenal外部GA-*+SZ/30.6Gong Arrival xth Floor到站钟+MR Machine Room机房GC+AS/13.6General CPU Input Output (Dev)通用CPU输入/输出+OKR Terminal Box on Carroof轿顶接线盒GR+AS/16.5Rectifier整流器+SI Fuse/Hoistway Information (Location)保险丝/井道信息GRSK+AS/8.1Rectifier Safety Circuit安全电路整流器+SI2Hoistway Information second Side第2侧井道信息SW+AS/6.3Gateway Building Bus大楼总线接口板+SZ Hoistway Entrance井道入口HBOX+TC1/35.7Hidden Box (Dev)隐藏盒+SZ2Hoistway second Entrance第2侧井道入口HFT%+TC1/35.1Hidden Firelighting Box (Dev)隐藏式消防盒+T Door 1门1HTIC%+TC1/23.8Hidden Tableau Interface Car (Dev)隐藏式操纵盘接口+TC1Car Panel轿厢操纵盘ICE%+OKR/10.5Interface Car Europa (Dev)欧洲型轿厢接口板+TC2Car Panel 2 轿厢操纵盘2IOBX+SZ/37.1Input Output Option Box (Dev)输入输出选项盒+TC3Car Panel 3轿厢操纵盘3IOBX0101+SZ/34.6<*>+TC4Car Panel 4轿厢操纵盘4JFIL+AS/5.2FI-Switch Light FI-照明开关+T2Door second Side第2侧门JFIS+AS/3.3FI-Switch Control FI-控制开关+Idevl Type Designation (Print,Device,Aconic Nor,Cabinet,Box)类型代号JFISK+AS/8.2FI-Switch Safety Circuit FI-安全电路开关TEXT-08Version=99-12-09/13:55-last modification by: barbeyje JH+MR/3.1Switch Main Power主电源开关JHC%+C/11.4Switch Stop Car轿厢停止开关ACVF+AS/13.1Frequency Converter变频器JHCT+T/32.1Switch Stop Car Door轿门停止开关ADIC+TC1/27.7Digital Car Indicator轿内数字式指示器JHG+MR/2.1Switch Main-, Group群控开关ASILOG+AS/10.6Application Specific Interface Logic (Dev)专用接口逻辑JHL+MR/5.1Switch Main-, Lighting Network照明电源开关AZRC+C/23.6Indicator Destination Call Car轿厢目标楼层指示器JHM+MR/12.3Switch Stop Machine Room机房停止开关AZRC%+C/23.7Direction Indicator (Dev)方向指示器JHNX+MR/4.2Switch Main, Emergency Power Supply备用电源开关BAB+AS/26.1Bus Termination Building Bus大楼总线终端JHSG%+SZ/8.4Switch Stop Hoistway Pit底坑停止开关BAF%+SZ/34.7Bus Terminator free Topology (Dev)自由拓扑总线终端JLC+TC1/27.2Switch Lamp Car轿厢灯开关BAFG+AS/24.1Bus Terminator free Topology group (Dev)自由拓扑总线终端,用于群控JNFF+TC1/27.1Switch Firelighting消防运行开关BAFL%+OKR/23.2Bus Terminator free Topology lift (Dev)自由拓扑总线终端,用于电梯JNGC+OKR/7.6<*>BAG%+AS/28.1Bus Termination Group群控总线终端JREC+C/11.5Switch Inspection Car轿厢检修开关BPL%+AS/21.4Backplan LON (Dev)LON 底板JRH+MR/12.4Switch Recall Control机房复回开关BWXSP+AS/20.4Jumper Resistor Intercom对讲机跨接电阻JTHB+AS/16.2Switch Thermal Broke制动器热开关CMVE+A/13.5Capacitor Motor Fan电机风扇电容JTHS%+MR/3.1Switch Thermal-, Control控制回路热开关DA+C/19.4Push Button Alarm报警按钮JTHSA+AS/14.4Switch Thermal-, Control Drive驱动控制热开关DA+TC1/19.3Push Button Alarm报警按钮JTHSK+AS/8.2Switch Thermal-, Safety Circuit安全电路热开关DREC-D+C/11.3Push Button Inspectioon Car Down轿顶向下检修按钮JTHTUV+AS/14.3Switch Thermal Transformer Voltage Fan风扇变压器热开关DREC-U+C/11.4Push Button Inspectioon Car Up轿顶向上检修按钮JVEC+TC1/27.2Switch Fan Car轿厢风扇开关DRH-D+MR/12.2Push Button Recall Control Down向下复位运行按钮K%+SI/10.6Control (AEG) (Dev)接触器(AEG)DRH-U+MR/12.3Push Button Recall Control Up向上复位运行按钮KB%+A/18.8Contact Brake制动器触点DT-O+TC1/27.3Push Button Door Opening开门按钮KBF+MR/29.5Contact Fire (Fire Detector)火警触点(火警检测)DT-S+TC1/27.3Push Button Door Closing关门按钮KBS+A/18.7Contact Lighting Control制动器安全触点EBCOM+AS/28.1Extension Board Communication (Dev)通讯扩展板KBV%+SZ/9.6Contact Speed Governor限速器触点EBLON%+AS/21.3Extension Board LON (Dev)LON 扩展板KF%+C/9.4Contact Safety Gear 安全钳触点ESE+MR/12.2Evacuation Hoistway End (Panel)复位控制盘KL-V+C/11.2Contact Full Load满载触点FEL+AS/5.1Filter Interference Suppression Lighting Circuit照明电路滤波器KL-X+C/11.3Contact Overload超载触点FEMH+AS/13.1Filter Interference Suppression Motor Hoisting曳引机滤波器KNA+C/8.5Contact Emergency Exit安全窗触点KNE+C/9.5Contact Emergency Limit极限开关RSK%+AS/15.5Relay Safety Circuit安全回路继电器KP%+SZ/9.6Contact Buffer缓冲器RSK-E+AS/15.3Relay Safety Circuit On安全回路继电器接通KPG%+SZ/9.6Contact Buffer Counterweight对重缓冲器触点RSK%+AS/14.6Relay Safety Circuit安全回路继电器KSE-D+SI/11.4Contact Hoistway End Down井道终端触点-下RSKD%+AS/10.5Relay Safety Circuit Diode安全回路诊断继电器KSE-U+SI/11.3Contact Hoistway End Up井道终端触点-上RTRT%+AS/15.4Relay Trigger Door门触发继电器KSSBV+SZ/8.4Contact Slack Rope Speed Governor限速器松绳触点RTSC+AS/15.5Relay Door Hoistway Car厅轿门继电器KTC%+T/10.5Contact Door Car轿门触点RVEC-A+OKR/5.2Relay Fan Car Off轿内风扇断开继电器KTDC+TC1/35.8Contact Panel Pusch Button Car Call内选盒触点SGRW+AS/14.5Contactor Rectifier Resistance整流器电阻接触器KTS-*+SZ/33.3Contact Door Hoistway xth Floor厅门触点SH+AS/14.5Contactor Main主接触器KTS-N+SZ/10.2Contact Door Hoistway Top Floor顶层厅门触点SKE+AS/10.1Safety Circuit Europa (Dev)欧洲型安全电路LA-*+SZ/30.6Lamp Arrival xth Floor到达灯SDA+SZ/19.6Signal System Audible Alarm报警铃LBFC+TC1/27.4Lamp Fire Car轿内消防指示灯STVG+MR/4.2Intercom Power Supply对讲机电源LC+C/5.4Lamp Car轿灯SUMC+TC1/27.5Buzzer Car轿内蜂鸣器LL-X+TC127.5Lamp Overload超载灯TDI+T/32.6Tacho Digital数字脉冲发生计LNC+TC1/19.2Lamp Emergency Light Car轿内紧急照明灯TDIV+A/13.2Tacho Digital Speed数字式速度脉冲发生计LNOC+TC1/27.6Lamp Emergency Power Car轿内备用电源运行指示灯TDIW+MR/12.4Tacho Digital Position数字式位置脉冲发生计LONGDAG%+AS/21.7LON Direction Arrow and Gong (Dev)LON 方向/到站钟THMH+A/18.8Thermal Motor Hoisting曳引机温度LONIOS%+AS/21.3LON Input Output Standard-Current (Dev)LON 标准输入输出THMVE%+AS/13.5Thermal Motor Fan电机风扇温度LREP%+AS/22.4LON Repeter (Dev)LON中继器TIC%+TC1/23.4Tableau Interface Car (Dev)轿厢操纵面板接口LUET+AS/19.6Lamp Overbridging Door (Elevator in Door Zone)门区指示灯TUV+AS/14.3Transformer Voltage Fan风机变压电压MBB+AS/13.6Machine Brake Board (Dev)制动器印板TUV_T+AS/14.3Door 1门1MGB%+A/17.4Magnetic Brake电磁制动器VARIDOR30+T/32.1Door Control New Door Family (NDF)门系列MGTC+TC1/35.7Magnet car operation panel轿厢操纵盘磁铁VF+AS/13.1Drive Frequency Converter驱动变频器MH+A/13.1Motor Hoisting曳引电机XSP%+MR/20.3Intercom (Dev)对讲MT+T/32.7Motor Door门电机ZRTL+SZ/37.5Destination Call Terminal LON目的楼层呼梯终端MVE+A/13.5Motor Fan电机风扇ZRTL1101+SZ/34.2<*>MVEC+C/5.5Motor Fan Car轿厢风扇NGC%+OKR/7.7Power Supply Unit Car轿厢电源装置NGG+AS/2.1Power Supply Unit Group群控电源装置NGL%+AS/21.2Power Supply Unit Elevator电梯电源装置NGSK+AS/3.5Power Supply Unit Safety Circuit安全回路电源装置PHNR-D+SI/11.7Photocall Releveling Down向下再平层光电PHS+SI/11.6Photocall Floor Level平层区光电PHUET+SI/10.6Photocall Overbridging Door门跨接光电PIOVECL3+AS/13.2#PIOVECL3PIOVECL3.RSGRW+AS/14.6<*>PIOVECL3.RSH+AS/14.6<*>REC+C/11.3Inspection Car (Panel)轿厢检修盒RF%+AS/15.5Relay Travel, Docking Operation运行继电器RFE+AS/15.5Relay Travel, Initiation运行启动继电器RFE-E+AS/15.4Relay Initiation Travel On运行启动继电器接通RLC-A+OKR/5.3Relay Lamp Car Off轿厢灯关闭继电器RMGTC+TC1/35.7Relay Magnet Car Operating Panel轿厢操纵盘磁铁继电器RMVE+AS/13.5Relay Motor Fan电机风扇继电器RNO+MR/29.8Relay Emergency Power Operation紧急供电运行继电器RPHT+T/31.3Relay Photocell Door门光电RS+AS/16.6Print Control控制印板。
序号符号注解+A 驱动A 驱动器(包括电动机、制动器、增量脉冲发生器、散热装置)A 装置,印刷电路板(AEG)AB 命令取消ACE 轿箱外召指示器ACN BR 无BR装置ACONIC系统ACN BT 无BT装置ACONIC系统ACN GC X层楼无GC装置ACONIC系统ACN GR 无GR装置ACONIC系统ACN GW 无GW装置ACONIC系统ACN SP 无SP装置ACONIC系统ACN T 无T装置ACONIC系统ACN T-O无T-O装置ACONIC系统ACN Z 无Z装置ACONIC系统ACN ZK ACONIC系统ZK印刷电路板ACVF 频率变换器ACUF20 VF20 驱动控制器ACVF140 VF140驱动控制器ACVF2030 VF20/30驱动控制器ACVF30 VF30驱动控制器ACVF35 VF35驱动控制器ACVF3545 VF35/45驱动控制器ACVF354570 VF35/45/70驱动控制器ACVF45 VF45驱动控制器ACVF4570 VF45/70驱动控制器ADIC 数字式轿厢指示器ADIE X楼数字式楼层指示器AK 控制柜ALKM417 报警触点取消印板ANA 字符指示器AS 控制柜1AS2 控制柜2ASILOG 专用接口逻辑ASBX 安全回路ASM10 Miconic 10 控制柜ASM10L Miconic 10 控制柜LON总线AZRC 轿厢呼叫目的楼层指示器AZRC1 轿厢1呼叫M的楼层指示器BA 总线终止BA 主梯总线终端终结器BAA 总线终止指示器BAB 大楼总线终止BAF 自由拓扑总线终端BAFG 自由拓扑总线终端用于群控BAFL 自由拓扑总线终端用于电梯BAG 群控总线终端BAL 单梯总线终止(LON底板)BAMB Mic10总线终结器BAP2 法国消防运行内部对讲装置BA TR N行总线终端终止BESE 井道末端疏散跨楼(位于操作面板)BI 涡流制动器BIT 门涡流制动器BKBV 限速器桥式触点BKSSC 轿厢松绳器桥式触点BKSSM 机房松绳器桥式触点BR 初始化缓降BUGR 限压整流器BUWR 限压直流斩波器BVRT 门减速跳线BWXSP 内部对讲跨接电阻C 轿厢CADI 服务工具/计算机辅助自诊断设备CI 大厅计算机接口CKZ 直流环电容器CLC矫箱灯电容器CLSPV上高峰运行灯电容器CMVE风机电机电容器cs179085 语音合成器DA报警按纽DBF 消防服务二极管DBFT-O 火警开门按纽DBIT 门O流制动二极管DBTUE 门监视电子二极管DC-* 轿箱内呼X楼按纽DC-1 矫箱内呼一楼按纽DCC 矫箱0-4位编码按纽DCC-A 矫箱编码停止按纽DC-N 轿内呼顶楼按纽DCP-* 轿内司机驾驶X楼按钮DCW-* 轿内X楼选层按钮DCW-D*轿内X楼选层下行按钮DCW-U*轿内X楼选层上行按钮DC-Z 轿内呼叫通用按钮DDF-*X楼层直驶按钮DDFG-* 群控X楼层直驶按钮DDFLI 司机运行直驶按钮DDQ 独立D型确认按钮DDQS D型按钮确认闭合触点DDS D型按钮闭合触点DDWS D型双回路闭合触点按钮DE-* X楼层外召按钮DEB-A 地震监测器复位按钮DE-D X楼下行外召按钮DE-D1 1楼下行外召按钮DE-DN 顶楼下行外召按钮DEH-D 主楼层外召向下按钮DET-S 关门限制二极管DE-U* X楼上行外召按钮DE-U1 1楼层上行外召按钮DEV-HV 优先楼层优先外呼按钮DEVP-B 银行门房柜台首选外召按钮DE-Z 通用外召按钮DFDC-* 内呼X楼按钮释放按钮DFDCP-* 内呼X楼门房按钮释放按钮DFM-D 机房下行按钮DFM-U 机房测试运行上行按钮DGSC-* 轿内X楼层乘客控制按钮DH停止按钮DIB 门接口盒DIBF 火警信号二极管DIM 门接口盒DJ X楼层D型钥匙开关闭合触点DKFM 机房测试运行按钮DL D型灯单元DLBS 井道照明灯按钮DLI 司机运行按钮DLI-DD 司机运行下行按钮DLI-U 司机运行上行按钮DM236 适用意大利警报装置DMGH 刹车磁场保持二极管DMOF 安装运行二极管DMS 称重传感器DNFFC-A 消防时取消矫箱呼叫按钮DNS-D 调整下行按钮DNS-U 调整上行按钮DCM 门跨接模块DPF 优先运行按钮DREC 轿箱检修按钮DREC-D 轿箱检修下行按钮DREC-U 轿箱检修上行按钮DREC-Z 轿箱检修公共按钮DRE-D 下行检查按钮DRE-U 上行检查按钮DRET-O 开门检修按钮DRET-S 关门检修按钮DRF-D 向下对接运行按钮DRF-U 向上对接运行按钮DRH-D 控制下行召唤按钮DRH-U 控制上行召唤按钮DS 交流调压调速单元DSPC 阻止轿箱呼叫按钮DSPCP 门房阻止呼梯按钮DSPR 阻挡二极管DSTB 制动器q波二极管DT-O 开门按钮DT-S 关门按钮DTR-D 人行道下行控制按钮DTR-U 人行道上行控制按钮DUET 门区跨接按钮DUMMY 关门继电器DV D型蜂鸣器DWVT 门区加速电阻二极管DZHT-S 强制停止关门按钮EBCOM 通讯扩展板+EX外部EINBORT 位置、地址ER 调制单元ESE 井道末端疏散操作盘EX 外围FA 平层驱动(双速驱动)FEMH 曳引机滤波器FEL 照明电路抗干扰滤波器FEN 主电源抗干扰滤波器FENA 驱动器电源抗干扰滤波器FENG 群控电源抗干扰滤波器FENS 主控回路滤波器FET 门回路抗干扰滤波器FGH 户外主发电机第X绕组FLC 楼层平层检查FMH 户外曳引电机FUSE 保险丝FN 主频FT FinalTimer 终了计时器(强剖关门时间)FA V 变频器输入频率GA到站钟GA-* X楼层到站钟GA-B 银行柜台楼层到站钟GC 通用CPU输入输出GA-D 下行到站钟GA-U 上行到站钟GEDS 交流调压调速单元抗干扰装置GGA 到站钟装置GH 记忆停站GIOL 通用LON输入\输出GIOM10 Micomic 10输入、输出装置GR 镇流器GRSK 安全电路镇流器GRKS 镇流器直流环GRKZN 镇流器直流环负端GRKZP 镇流器直流环正端GRMG 磁控管镇流器GRMGB 电磁刹车镇流器GRNI 下行镇流器GSC 矫箱Servitel装置GSP Servitel外围装置GST Servitel电话装置GT 转速脉冲发生器GW 大楼总线网关HBOX 隐藏盒HFT 隐藏式消防盒HTIC 隐藏式操纵盘接口HY 液压驱动器IB 运行中IBG 加速电流ICE 欧洲型轿箱接口板IOBX 输入输出选项盒ICOM 通讯接口ICS 矫箱位置编码信号触点(格雷码)IDA 报警信号按钮IET-O 门开至末端信号IFNO 应急电源运行释放信号IFS 预置信息切换选择器IG 增量编码输入装置IHY 液压接口IKW-A 矫箱选择完成信号ILPH 光电管发光信号IM 电动机电流IMN 电动机额定电流IMOF 安装运行信号IMU 电动机相1电流IMV 电动机相2电流IMW 电动机相3电流IN 额定电流INH-001 目录IPH-C 光电管编码信息ISKT 诊断输出印板ISMPHTL 光电安全门缘出错信号ISNR-D 向下再平层感应传感器ISNR-U 向上再平层感应传感器ISUET 门跨接感应传感器ITC 矫箱操作面板接口IUET 门区跨接信号IV 速度信号IVF 变频器接口Ivf 变频器输入电源IVXDMS Miconic VX称重接口Ivxvf Miconic vx变频器接口IVZ 减速下行信号JAB 停止服务开关JABX 控制器控制停止服务开关JABZRS H的楼层呼叫控制停止服务开关JBF 消防运行开关JBF-A 消防运行停止开关(复位)JBFF 消防员消防开关JBFF-A 消防员停止消防运行开关JC 矫箱开关JDC-* 内呼x楼层按钮开关JDCW-* 轿厢选层第X层的开关按钮(钥匙触点)JDCW-D* 轿厢选层第X层的下行开关按钮(钥匙触点)JDCW-U* 轿厢选层第X层的上行开关按钮(钥匙触点)JDE-* 厅站召唤第X层的开关按钮JDE-D* 厅站召唤第X层的下行开关按钮JDE-U* 厅站召唤第X层的上行开关按钮JDEV-* 第X层的楼层优先召唤钥匙按钮JDEVG-* 第X层的楼层优先召唤钥匙按钮(钥匙触点)JDFDC 轿厢按钮释放开关按钮(钥匙开关)JDNF-* 第X层的紧急召唤开关按钮(钥匙开关)JDNFG-* 第X层的楼层优先召唤钥匙按钮(钥匙开关)JDZHT-S 强迫关门停止开关按钮JFCC 编码的轿厢召唤释放开关JFEFNO 应急电源操作,救援运行释放开关JFEFNOM 应急电源操作,救援运行释放开关手册JFIL FI-照明开关JFIS F1控制开关JFISK F1安全电路开关JFITS 安全回路对地漏电运行开关JH 主电源开关JHC 轿厢止动开关JHCT 轿门止动开关JHG 群控电源开关JHL 照明电源主开关JHM 机房急停开关JHM10 MICONIC 10 主电源开关JHNS 应急电源主开关JHNX 备用电源开关JHR 滑轮间急停开关JHRF 对接运行的急停开关JHSG 地坑急停开关JHSG1 地坑急停开关(最低层站)JHTR 爬行控制的急停开关JHX 控制柜电源选择开关,中间部分JHZRS 目的层召唤控制电源开关JIB 运行开关JKL 读卡器开关JLAB 退出服务信号灯开关JLBS 井道照明开关JLC 轿厢灯开关JLF 学习运行开关JLI 司机控制开关JMOF 安装运行开关JNF 应急控制开关JNF-K 急停开关JNFE 紧急防盗服务开关JNFF 消防运行开关JNFF-F 火警释放开关JNFFP 火警停靠开关JNO 应急电源操作(释放)开关JPF 优先运行开关JRE 检修开关JREC 轿厢检修开关JRES 检修开关JRET 轿门检修开关JRF 对接运行开关JRH 机房复位控制开关JRV 保留运行开关JRVC 轿厢保留运行开关JRVM 机房保留运行开关JRVPC 轿厢停靠保留开关JS 控制开关JSBP 搬运工/银行控制开关JSLM 机房照明控制开关JSPC 轿厢召唤堵塞开关JSPCG 群控召唤堵塞开关JSPDC-* 第X层轿厢召唤堵塞开关JSPDEM 机房内层站召唤堵塞开关JSPS 层站堵塞开关JSPT-O 开门堵塞开关JSPT-S 关门堵塞开关JSPZS 入口堵塞开关JSSH 电源保安服务开关JSTUE1 厅门锁跨接开关JSTUE2 厅门锁跨接开关JT-O 开门开关JTHA 驱动的热敏开关JTHAS 控制柜热敏开关JTHAWT WITTUR门机电源开关JTHB 制动器热敏电阻开关JTHC 轿厢热敏电阻JTHLAB 退出服务灯热敏开关JTHM 机房热敏开关JTHMGB 电磁制动器的热敏开关JTHNGC 轿厢电源装置的热敏开关JTHNGG 群控电源的热敏开关JTHNGL 电梯电源的热敏开关JTHPG 群控印板的热敏开关JTHS 控制回路热敏开关JTHSA 驱动控制的热敏开关JTHSK 安全回路的热敏开关JTHSZ 入口的热敏开关JTHSZG 梯群入口的热敏开关JTHT 门的热敏开关JTHTA 匹配变压器的热敏开关JTHTAH 匹配变压器的散热器的热敏开关JTHTAMGB 电磁制动器的匹配变压器开关JTHTANS 应急电源的变压器热敏开关JTHTASPV 上行高峰矢量程序匹配变压器的热敏开关JTHTAX 中央控制器的匹配变压器的热敏开关JTHTC 轿厢操纵盘内热敏开关JTHTLAB 退出服务灯变压器热敏开关JTHTNORS 应急电源变压器复位热敏开关JTHTUV 风扇电压变压器的热敏开关JTHX 中央控制器的热敏开关JTR 爬行控制开关JTTC 轿门隔离开关JUEKBF 火警跨接触点开关(火警探测器0 JUEKTS 门厅跨接触点开关JUEKTS-A 厅门跨接外触点开关JUEKTS-E 厅门跨接触点开关JUG 隐蔽开关JVEC 矫箱风扇开关JZ 离心开关JZH 强制停止开关K 接触器KAT 驱动器Tacho触点KAV-A 止动机构终止止动等待状态触点KA V-E 止动机构工作完成触点KAZ 驱动器离心开关触点KB 刹车触点KBA 补偿绳限位触点KBF 火警触点(火警监测器)KBF-* X楼层火警触点(火警监测器)KBFM 机房火警触点(火警监测器)KBFP 大厅火警触点(火警监测器)KBR-D 下行出始化减速触点KBR-U 上行出始化减速触点KBT2-O 开门第2减速点刹车触点KBT-O 开门刹车触点KBT-S 关门刹车触点KBS 制动器安全触点KBV 限速器触点KBVG 对重限速器触点KBVR 机房滑轮限速器触点KBVSG 井道底坑限速器触点KCS- 井道编码触点(格雷码)0KD 终端插座KEB 地震监测器触点KEBT-O 开门到位限制触点KEP-A 乘员离开侦测触点KEPA V 止动机构缓冲限位触点KET2-O 开门到位触点(跨接KSKB)KET-O 开门到位触点KET-S 关门到位触点KF 安全钳触点KFL 安全触板触点KGEB 对重移位触点KHA 手盘车触点KITR 人行道控制信号触点KKB 刹车监控触点KKSIC 监控触点KL-* X楼层读卡器触点KLC 矫箱照明灯监控KLHC-* X楼层矫箱位置灯触点KLI 司机驾驶触点KL-M 最小载荷触点KL-V 满载触点KL-X 超载触点KME 疏散讯息触点K-MODUL K模式Servitel服务KMT-A 门电机停止触点KNA 安全窗触点KNE 紧急限制触点(极限开关)KNE-D 紧急下限位触点KNE-U 紧急上限位触点KNI 下行触点KNI-A 下行终止触点KNI-E 下行启动触点KNO-A 紧急电源停止预警触点KNORS 紧急电源复位触点KNR-D 下行再平层触点KNR-U 上行再平层触点KNS-D 下行调整触点KNSE 井道末端紧急触点KNS-U 上行调整触点KNT 门紧急触点KOD-M 最小油压触点KOD-V 满负荷油压触点KOD-X 最大油压触点KP 缓冲器触点KPA V 止动机构缓冲器运行准备完成触点KPG 对重缓冲器触点KPGSG 井道底坑对重缓冲器触点KRBF火警指导触点KRBSI 导管破裂安全触点KRF-D 向下到站运行触点KRF-U 向上到站运行触点KRM 改造端子排KS 平层水平触点KSE 井道末端触点KSE1 井道末端触点(第一速度)KSE2 井道末端触点(第二速度)KSE3 井道末端触点(第三速度)KSEB-D 向下井道井道终端限位触点KSEB-U 向上井道井道终端限位触点KSE-D 井道底部终端触点KSERE 井道末端检查触点KSERE-D 井道下端检查触点KSERE-U 井道上端检查触点KSE-U 井道顶部终端触点KSEV-D 向下缓行井道下端限位触点KSEV-U 向下缓行井道上端限位触点KSIS Servitel楼层信号触点KSKB 关门力限制器触点KSKT 诊断输入印板KSPEP停止成员侦测触点KSPS控制杆触点(电流阻断)KSPT 门受阻触点KSS 松绳触点KSSA 补偿绳松绳触点KSSBV 限速器松绳触点KSSBVG对重限速器松绳触点KSSC 矫箱松绳触点KSSM 机房松绳触点KSSR 滑轮松绳触点KSSS 安全绳松绳触点KSSSG 井道底坑松绳触点KTA-A 门报警停止触点KTAC 矫箱门报警取消触点KTC 矫箱门触点KTDC 矫箱按钮面板触点KTHBR 刹车电阻器热敏触点KTHM 机房热敏触点KTHMB 电机刹车热敏触点KTHMF 机房消防热敏触点KTHMH 曳引电机热敏触点KTHMT 门电机热敏触点KTHO 油热敏开关KTHS 井道热敏开关KTHTER 励磁变压器热敏触点KTHTUS 静止变换器变压器热敏触点KTHUS 静止变换器热敏触点KTHVF 变频器热敏触点KTHWHO 油加热电阻器热敏触点KTL 安全门触板触点KTR 人行道控制触点KTS(L)-* X楼层井道门(左)触点KTS(L)-K 楼层井道门(左)触点KTS(R)-* X楼层井道门(右)触点KTS(R)-K 楼层井道门(右)触点KTS-* X楼层井道门触点KTS1-* X楼层井道门(中分)触点KTSG 井道底坑门触点KTS-N 顶楼井道门触点KTS-RF 到站运行井道门触点KTTC 矫箱隔离门触点KTZ 入口门触点KUEDH 停止按钮跨接触点KUET 门跨接触点KUSH 主接触器电压检测KUSSA 带防跳装置补偿绳张紧触点KV* X楼层门上锁触点KVK 第X速度监控触点KVK-D 向下速度监控触点KVK-U 向上速度监控触点KV-N 顶楼门上锁触点KWS 井道维修出口触点KWSG 井道底坑进水触点KZRF 到站运行区域触点LA-* X楼到站钟LA-B银行柜台楼层到站钟LAB-* X楼层停止服务指示灯LAB-E停止服务执行指示灯(JAB确认)LAC 轿箱报警灯LAGC 轿箱报警存储指示灯LARC 轿箱报警确认指示灯LAS-* X楼层报警灯LB 占用指示灯LB-* X楼层占用指示灯LBF 火警指示灯LBFC 轿箱火警指示灯LBFF 轿箱消防员火警指示灯LBFM 机房火警指示灯LBFSG 电梯底坑火警指示灯LBM 机房占用指示灯LBS 井道照明灯LBS-* X楼层井道照明灯LBS-N 顶楼井道照明灯LBSR 井道照明灯确认按钮LC 轿箱照明灯LC-* X楼内呼指示灯LC-1 1楼内呼指示灯LCD 液晶指示器LC-N 顶楼内呼指示灯LCP-* X楼层门房内呼指示灯LCW-* X楼层轿箱选择指示灯LCW-D* X楼层下行轿箱选择指示灯LCW-U* X楼层上行轿箱选择指示灯LDF-* X楼层行进方向指示灯LDFC 轿箱行进方向指示灯LDFG-* X楼层群控运行方向指示灯LDS 交流调压调速单元电源印板LE-* X楼层厅门灯LEB 地震监测器指示灯LE-D* X楼层下行厅呼指示灯LEF 疏散运行指示灯LEFC 轿箱疏散运行指示灯LE-U* X楼层上行厅呼指示灯LEV-HV 优先厅呼、优先楼层LEVP-B银行门房柜台楼层,优先楼层指示灯LFCC-E内呼编码释放指示灯亮LFDC-* X楼层轿内召唤按钮释放指示灯LFDCP-* X楼层门房轿内召唤按钮释放指示灯LFM-D 机房测试下行指示灯LFM-U 机房测试上行指示灯LFT216 电梯并行I/O印板LGEB 对重移位指示灯LGS-* X楼层顾客控制指示灯LHC-* X楼层轿箱到站指示灯LIB 投入运行指示灯LIBZRS 目的楼层呼叫控制投入运行指示灯LKFM 机房测试运行控制灯LKZ 直流环电抗器LLI-D 司机驾驶下行指示灯LLI-U 司机驾驶上行指示灯LL-X 超载指示灯LM-LR 小量程载荷测量LMS 载荷测量印板LNC 轿箱应急照明灯LNF 应急照明灯LNFC 轿箱应急灯LNFF 消防灯LNFFC 轿箱消防指示灯LNO 应急电源(释放)指示灯LNOC 轿箱应急电源指示灯LNOF 应急电源释放指示灯LNS 应急电源控制指示灯LNSC 轿箱应急电源控制指示灯LONIOH24 LON I/O印板LONIOH241 第二LIO I/O印板LONGDAG LON方向/到站钟LONIOS LON标准输入输出LREP LON中继器LR-* X楼层方向指示灯(上/下指示器)LRC-D 轿箱下行方向指示灯LRC-U 轿箱上行方向指示灯LR-D 下行方向指示灯LR-U 上行方向指示灯LR-D* X楼下行方向指示灯LR-U* X楼上行方向指示灯LRV 保留运行指示灯LRVC 轿箱保留运行指示灯LS 扬声器LS-* X楼层指示灯LSPC 内呼限制指示灯LSPC-E 轿箱内呼受阻指示灯亮LSPCG-E 群控内呼受阻指示灯亮LSPS-* X楼层受阻指示灯亮LPS-E 受阻楼层指示灯亮LSPV 上高峰运行指示灯LSPZSC 轿箱入口受阻指示灯LSTUE-E 厅门锁定跨接指示灯点亮(机房)香港适用LTP-O 门房门开启指示灯LUEKTS-E 门房门开启指示灯LUET 门区跨接指示灯(电梯在门区)LVFC 轿箱优先运行指示灯LW-* X楼层后续运行指示灯(或U/D液晶显示器)LW1-* X楼层后续运行指示灯(或U/D液晶显示器)LW1-D* X楼层后续下行指示灯LW1-U* X楼层后续上行运行指示灯LWC-D 轿箱后续下行指示灯LWC-U 轿箱后续上行指示灯LW-D* X楼层后续运行指示灯(或U/D液晶显示器)LW-D1 1楼层后续运行指示灯(或U/D液晶显示器)LW-DN X楼层后续运行指示灯(或U/D液晶显示器)LW-DU 后续下/上运行指示灯LW-U* x楼后续下/上运行指示灯LZH 强迫停车指示灯MB 电机刹车MBB 制动器印板MF 话筒MGAV 电磁式止动装置MGB 电磁制动器MGTC 轿箱操纵盘磁铁MG-D 下行电磁阀MGH 电磁保持式刹车MGNI 下行磁铁MGTC轿箱操纵盘磁铁MG-U下行电磁铁MGV磁式锁MGV1 第一速度磁控管MGVB 刹车电磁阀MH 曳引电机MPB 刹车泵电机MR 机房MSTB 刹车斩波器晶体管模块MT 门电机MV 门电机锁MVE 风扇电机MVEC 轿箱风扇电机MVEM 机房风扇电机MVEUS 静态转换器风扇电机MVEVF 转换器风扇电机NG 供电单元NG2206 22v6A供电单元NG8006 80V6A供电单元NGA 报警供电单元NGB 刹车供电单元NGC 轿箱供电单元NGE 供电单元NGG 群控部分供电单元NGL 电梯部分供电单元NGMGH 磁保持刹车供电单元NGPHT 门光电系统供电单元NGTL 安全触板供电单元NGSK 安全回路电源装置NSG 应急电源供电单元OKR 轿顶接线盒OKRLR 低MIC VX轿顶接线盒OKRMR 高MIC VX轿顶接线盒PAS 控制柜插座PC 轿箱插座PG 控制印板处理器PGO 选项控制印板处理器PHNR-D 向下平层光电管PHS 平层区光电管PHUET 门区跨接光电管PHVKSE 井道末端速度监控光电管PIOC 轿箱制作面板并行输入/输出接口PIOG 群控并行输入/输出接口PIOL 单梯并行输入/输出接口PIOLG 单梯/群控并行输入/输出接口PIOVEC 变频器处理器调制印板PLUG 厅门锁定跨接开关(插接式)香港适用PM 机房插座PMN 电机额定输出PSG 井道底坑插座PTTM 调制器接线PVF 变频器处理器频率PVFN 变频器名义输出PVXDMS Miconic VX称重处理器Q 开关QKS9+ qks9/10+门驱动器QKS910 qks9/10+门印板RA 报警继电器RAB 停止服务继电器RACS-A 轿箱停止位置指示器继电器RAS 驱动和控制印板RAV 制动装置继电器RB 刹车继电器RB-A 刹车继电器分段RBF 火警运行继电器RBF 消防应急电源控制继电器RBFF 消防员消防运行继电器RBFF-A 终止消防员消防运行继电器RC 轿箱印板RCVE 风扇电容电阻器RCW-A 轿箱选择停止继电器RDC-* 轿呼X楼按钮继电器RDC-1 轿呼1楼按钮继电器RDC-Z 通用轿呼按钮继电器RDDFLI司机运行方向按钮继电器RDLI 司机运行按钮继电器RDLI-D 司机运行下行按钮继电器RDLI-U 司机运行上行按钮继电器RDS 交流调压调速单元调制印板RDT-O 开门按钮继电器RDT-S 关门按钮继电器RE-A 厅呼停止继电器REC 轿箱检修(盘)REFE 疏散运行末端继电器REP成员侦测继电器RES1虚拟BMKRET-O 开门限位触点继电器RET-S 关门限位触点继电器RF 对接运行继电器RFBE 楼层照明释放继电器RFE 启动运行继电器RFE-E 启动运行继电器接通RFEF 撤离运行释放继电器RFF 停止运行继电器RFNO 应急电源操作继电器RFR 调节释放继电器RFT 强迫关门继电器RFUET 门跨接拖开继电器RH 第一速度主继电器RIB “在运行”继电器RIBF 消防信息继电器RICS- 轿厢位置编码器信息触点继电器RIDH1 保持按钮信息继电器RINFF 消防继电器RISPGC 内令存储阻断信息继电器RIT-S 关门信息继电器RKB 制动器监测继电器RKBI 涡流制动器监测继电器RKFMH 曳引电机磁场监测继电器RKMH 曳引电机监测继电器RKPH 相位监测继电器RKTHMH 曳引电机热保护监测继电器RKU (22V)电压监测继电器RKUET 门跨接监测继电器RKULC 轿内灯电源监测继电器RKUS 静态变换器监测继电器RKUSK 安全回路电压检查继电器RKV 门锁定检测继电器RKVZ 减速度检测继电器RL-A 安全板速度控制继电器RL-V 满载继电器RLAB “停止运行”信号灯继电器RLAB-A “停止运行”信号灯继电器(断开) RLB 占用指示灯继电器RLBM 机房占用指示灯继电器RLBS 井道照明灯继电器RLC 轿内照明继电器RLC-A 轿内照明继电器(断开)RLI 司机控制继电器RLL-X 超载信号灯继电器RMGH 制动器磁性继电器RMGTC 轿内操纵盘磁铁继电器RMVE 电机风扇继电器RNF 紧急运行继电器RNFF 消防运行继电器RNI 向下运行继电器RNO 应急电源工作继电器RNT-O 正常开门继电器RNZK 门监控时间元件RPHT 门光电管继电器RPHTL 门安全触板光电继电器RPHTS 门光栅光电管继电器RR-D 下方向继电器2RR-D 第2入口侧下方向继电器RR-U 上方向继电器2RR-U 第2入口侧上方向继电器RRE 检修继电器RRE-A 检修继电器(断开)RRE-D 检修继电器向下RRE-U 检修继电器向上RRF 对靠运行继电器RRF-D 对靠运行继电器向下RRF-U 对靠运行继电器向上RRH 复位控制继电器RRSK 安全回路继电器RRV 保留继电器RS 控制印板RSA 追最终位置接触器RSE 井道端继电器RSE1 井道端继电器(第一速度) RSE2 井道端继电器(第二速度) RSE3 井道端继电器(第三速度) RSIC SICURTRONIC继电器RSK 安全回路继电器RSK-E 安全回路继电器接通RSKD 安全回路诊断继电器RSM 故障信号继电器RSPE 阻断层楼继电器RSPE-* 第X层阻断继电器RSPFE 启动运行阻断继电器RSPNI 向下运行阻断继电器RSPNO 应急电源阻断继电器RSPT 门阻断继电器RSPTC 轿内操纵盘阻断辅助继电器RSPV 上高峰段继电器RSPZS 入口阻断继电器RSS 安全综合继电器RSS2 第二侧轿门累加继电器RST-NU 关门继电器(轻载)RST-O 开门继电器RST-S 关门继电器RSUM 蜂鸣继电器RT-O 开门继电器RT-S 关门继电器RTC 轿门继电器RTER 变压器激励继电器RTHU 变换装置热保护继电器RTR-D 爬行控制下行继电器RTR-U 爬行控制上行继电器RTRF 运行触发继电器RTRT 门触发继电器RTRU 变换器触发继电器RTS 厅门继电器RTS2 第2侧厅门继电器RTSC 厅轿门继电器RU 变换器继电器RU-E 变换器继电器(接通) RUEJHC1 轿门停止开关跨接继电器RUET 门跨接继电器RUET-A 门跨接继电器,断开RUET-E 门跨接继电器,接通RV 门锁定继电器RVEC 轿箱风扇继电器RVEC-A 轿箱风扇继电器,断开RVRT 门减速继电器RVZ 门缓降减速继电器RY 星形连接继电器RZRF 到站区域运行继电器RZRF-D 到站区域向下运行继电器RZRF-U 到站区域向上运行继电器RZYD Y/△连接时间继电器S 井道SB 抱闸接触器SBNH 刹车急停接触器SCC 启动电流控制SD △连接接触器SF 运行接触器SFA 平层接触器SFK 舒适运行接触器SGR 镇流器接触器SGRW 镇流器电阻接触器SGRMGB 电磁刹车镇流器接触器SH 主接触器SH-E 主接触器接通SI 熔丝/井道信息(位置)SI2 第二侧井道信息SIA8 SERVITEL 第8附加输入SIB 刹车熔丝SIBI 涡流制动器熔丝SIFGH-L 户外主发电机X相熔丝SIFMH-L 户外曳引电机X相熔丝SIL 照明回路主熔丝SIMGB 电磁刹车熔丝SINGA 报警供电单元熔丝SIS 控制熔丝SITAT 门回路变压器熔丝SITL 灯变压器熔丝SITLAB 停止服务指示灯变压器熔丝SIX 中央控制器熔丝SIYD Y/△切换开关熔丝SKD 安全回路诊断印板SDA 报警铃STVG 对讲机电源SLKZ 直流环充电接触器SMGVB 电磁阀刹车接触器SMKV Servitel语音通讯模块SMMTV Servitel微型语音终端模块SMOF 安装运行接触器SMP2 Servitel外部模块SMPB 刹车泵电机接触器SMPKV Servitel外部语音通讯模块SMT2 Servitel电话模块SMTA V Servitel电话语音报警模块SMTKV Servitel远程语音通讯模块SMTT Servitel电话终端模块SMTXV MiconicVX用Servitel电话终端模块SOA 音频报警信号系统SPDC 轿呼受阻按钮SPDE 厅呼受阻按钮SR-D 下行接触器SRE 检修接触器SRE-A 停止检修接触器SRE-D 下行检修接触器SRE-U 上行检修接触器SR-U 上行接触器SSK 安全回路接触器SSM 接触器自保回路STB 刹车斩波器STMT 门电机控制器ST-O 开门接触器ST-S 关门接触器SUD 变频器对地△型连接继电器SUM 蜂鸣器SUMC 轿箱蜂鸣器SUMM 机房蜂鸣器SUMP 大堂蜂鸣器SUMS-* X楼层蜂鸣器SUMSG 井道底坑蜂鸣器SUY 变频器对地Y型连接继电器SV 门锁定接触器SVFE 变频器外部电源SVS Servitel语音合成SW 大楼总线接口板SWA 启动电阻接触器SY Y型连接接触器SZ 井道入口SZ2 井道第二入口T 门1T2 第二侧门TA 变压器适配器TAB 停止服务变压器TAC 群控匹配变压器TAH 加热匹配变压器TALC 轿箱照明匹配变压器TAMGB 电磁刹车匹配变压器TANR 再平层匹配变压器TANS 应急供电电源匹配变压器TANV 模拟速度传感器TAS 电梯控制、变压适配器TASPV 上高峰(信号)运行变压器适配器TAT 门匹配变压器TAWT Wittur门匹配变压器TAX 中心区域匹配变压器TAYD Y/△开关切换匹配变压器TB 刹车变压器TBR 驱动器刹车斩波器TC1 轿箱按钮TC2 轿箱按钮2TC3 轿箱按钮3TC4 轿箱按钮4TDI 数字转速传感器TDTT 门数字转速传感器TDIV 数字转速传感器TDIW数字位置传感器TER 励磁变压器TFR 调制器释放隔离回路TG-D 向下声音发生器TG-U 向上声音发生器THMH 曳引电机热保护THMVE 风扇电机热保护THO 油热保护THW A 启动电阻热保护TLAB 停止服务指示灯变压器TLM 称重变压器TNORS 应急电源复位变压器TOPTAC 光电隔离耦合器TPHT 光电电池变压器TRF 运行触发TRH 停止触发TRSMR 信号调制器触发故障TRT 门触发TRV 速度触发TRVZ 减速触发/缓降TS 电梯控制变压器。
安全回路错误1、安全回路断开现象1:安全回路某一开关断开,请检查安全回路的开关。
现象2:冲顶或墩底。
2、安全故障,安全接触器触点状态与线圈状态不一致:现象1:触点接触不良或输入的输入类型不正确。
现象2:高压口线圈状态输入损坏,线圈电压过高。
现象3:线圈电压过低(小于AC100V)。
现象4:线圈未加浪涌保护器,造成主板输入电容损坏。
ER03KMC状态不符错误1:控制系统输出主接触器(KMC)指令后,主接触器无法闭合,或接触器触点接触不良,检查接线是否正确,检查接触器是否损坏。
2:输入类型中X18有效逻辑输入错误。
ER04KMY状态不符错误1:控制系统输出运行接触器指令后,运行接触器无法闭合,或接触器触点接触不良,检查接线是否正确,检查接触器是否损坏。
2:电梯停止运行时,控制系统断开输出后,运行接触器无法快速弹开。
出现该现象时会造成停车时轿厢内指令全部取消。
如反向有外呼时,换向运行,使乘客本次运行无法到达目的层。
更换接触器即可解决该问题。
3:输入类型中X17有效逻辑输入错误。
ER05KMB状态不符错误1:控制系统输出开闸指令后,抱闸继电器无法闭合,或继电器触点接触不良,检查接线是否正确,检查继电器是否损坏。
2:输入类型中X19有效逻辑输入错误。
ER06SSUS(上强换1)在上限位动作时不动作1:上强换开关1安装位置错误或动作不可靠。
2:撞弓垂直度偏差较大。
ER07SSDS(下强换1)在下限位动作时不动作1:下强换开关1安装位置错误或动作不可靠。
2:撞弓垂直度偏差较大。
开门错误1:开门信号输出后未收到开门到位信号,门机信号断线、双稳态开关损坏等。
2:门机处于手动或开门错误,门锁没有打开。
ER09门机变频器故障检测到门机变频器故障(非检修状态)。
ER11编码器来的脉冲过少,或者方向错误1:控制系统给定速度后,变频器未按给定速度运转。
可能的原因:现象1:给定连接线接触不良(多段速度给定信号线);现象:2:设定的运转时间过长,多段给定时,有些型号的变频器有开闸延时运行时间设定,设定时间如大于2.5秒时易出现该保护;现象3:负载过重,变频器在重载条件下无法起动或起动过程太慢。
扶梯静止时LED显示LED3(红灯)闪安全回路断开,运行闭锁,DIL开关不在正常位置(厂家预置位置)LED2(黄灯)闪停车闭锁亮扶梯准备好运行LED1(绿灯)闪起动过渡阶段亮额定运行LED1和LED2 交替闪自动润滑信号运行状态和出错显示r 0 测试运行/检修运行r 0 安全回路开路r r 复位开关DRES1不在OFF位置d 0 准备好运行d 连续运行A 自动运行t t TUV速度模拟运行d 下行u 上行-星形运行/变频运行/主接触器吸合(直接启动)c 夜间停止服务功能有效L 润滑故障扶梯故障显示-- (PHKE)“偏差值”出错00 (JR-U,JR-T)钥匙开关没复位10*** (KKP-T,KPV-T)上部梳齿板触点11 (KHLE-T)上部扶手带入口触点12 (KSL)围裙板触点13 (SKVS)硬件监控HWD继电器出错14 (DH)急停车15*** (KKP-B,KKPV-T)下部梳齿触点16 (KHLE-B)下部扶手带入口触点17 (KKS-B,KUS)链条涨紧触点20* ROM检验出错21 (KBSA,KBSIA)安全制动器不在关位置23 (KBSP,KBS2A)安全制动器触点24 (WTHM)PTC热敏电阻25接触器释放检查26** (PHKE)运行方向出错27** (PHKE)位移值超过范围30** (PHKE)超速31* (PHKE)欠速32*** (INHL-L)左扶手带监控33*** (INHL-R)右扶手带监控34 (KB)工作制动器触点/相位故障35 (KBSA)安全制动器触点36(KKA-T,KKA-B,KBFM,KANK)梯级下沉,踏板监控37* (PHKE)移动运行38* (PFVKQ,INBMG)电机速度监控39** (PHANK-T)梯级或踏板缺少监控(上部)3A (PHANK-T)上部光电未对准3B** (PHANK-B)梯级或踏板缺少监控(下部)3C (PHANK-B)下部光电未对准40 复位41 钥匙停车42 丢失24V电源43 电流过大44 RAM检验出错45 SRE释放监控出错46* (S10)梯级运行方向未监控47 (PHKE)梯级监控光电有问题88 不明故障*取消出错联锁:复位(合上电源再断开)/S11合上再断开**取消出错联锁:分别操作DRES1按钮RAM显示(S4-S1)0111:制动距离0011:运行计时器1100:润滑/间歇时间0100:光栅检验0110:位移值0010:计算得位移值0000:特征值显示0101:自动运行特征值1010:脉冲数1101:测得的最小/最大位移极限值1011:ECO计数器0001:ECO参考速度1000:下部LS速度1001:上部LS速度1110:超速极限1111:欠速极限DIL开关的控制功能S1:ON 调出出错记录OFF 正常运行S2:ON 可变时间的显示OFF 存储可变时间/正常运行S3:ON 6人(带ECO经济节能运行)OFF 12人(带ECO)或不带ECO节能型运行S4:ON 钥匙开关脉冲编码OFF 不带钥匙开关脉冲编码的正常运行S5:ON 星-三角启动OFF 直接启动(连续运行)S6:ON 节能运行功能有效/变频器OFF 节能运行功能无效(使用变频器不能关闭)S7:ON 可以选择自动运行和连续运行OFF 只能用于连续运行S8:ON 有源安全制动器OFF 无源安全制动器/辅助制动器/无安全制动器S9:ON 速度监控有效OFF 速度监控无效S10:ON 运行方向监控有效OFF 运行方向监控无效S11:ON RAM显示OFF 运行状态显示S12:ON TUV测试(模拟速度测试运行)OFF 正常运行参考:0000 1011 01000010 0001 0100“T5”去掉可以去掉W A TCHDOG电感式接近开关,调整到5~6毫米。
西继迅达无机房电梯主板故障码读取方法及代码表
SCH5600-V2 版
故障读取方法
系统故障代码表代码错误内容处理方法
代码错误内容处理方法
ER02安全回路错误1、安全回路断开
现象1: 安全回路某一开关断开, 请检查安全回路的开关.
现象2:冲顶或墩底.
2、安全故障,安全接触器触点状态与线圈状态不一致:
现象1:触点接触不良或输入的输入类型不正确。
现象2:高压口线圈状态输入损坏,线圈电压过高。
现象3:线圈电压过低(小于AC100V)。
现象4:线圈未加浪涌保护器,造成主板输入电容损坏。
ER03 KMC 状态不符错误1:控制系统输出主接触器(KMC)指令后, 主接触器无法闭合,或接触
器触点接触不良,检查接线是否正确,检查接触器是否损坏.
2:输入类型中X18 有效逻辑输入错误。