某地欧式别墅建筑CAD设计全套图纸
- 格式:dwg
- 大小:1.58 MB
- 文档页数:1
[迅雷下载] 施工图CAD专辑600多套10G 带效果图实景CAD图库施工图CAD专辑.part1.rarthunder://QUFodHRwOi8vZG93bi5nYWdhYmlyZC5jb20vY2FkL8qpuaTNvENBRNeovK0 ucGFydDEucmFyWlo=施工图CAD专辑.part2.rarthunder://QUFodHRwOi8vZG93bi5nYWdhYmlyZC5jb20vY2FkL8qpuaTNvENBRNeovK0 ucGFydDIucmFyWlo=目录:澳门8餐厅全套施工图附照片保利世紀綠洲三期C型施工图附照片北京财富中心二期御金台(施工图)北京耕天下施工图北京朗琴园10号楼B户型施工图北京朗琴园10号楼C户型施工图北京朗琴园10号楼D户型施工图北京朗琴园10号楼E户型施工图北京朗琴园10号楼G户型施工图大连咖啡厅施工图富力爱丁堡(桑拿SPA)施工图观澜湖高尔夫别墅施工图广州富力地产标准化样板房项目A戶型樣板房广州富力地产标准化样板房项目B戶型樣板房广州合景新城花园会所施工图广州金海湾B栋E单位施工图附实景照片广州金海湾B栋F单位施工图及实景照杭州中山花園二期A座D单位施工图合肥元一濱水城 D2样板房施工图附照片华润置地·凤凰城样板房施工图華潤新鴻基杭州錢江新城 4号楼D2类型華潤新鴻基杭州錢江新城 B2户型施工图華潤新鴻基杭州錢江新城 D3户型施工图華潤新鴻基杭州錢江新城会所江蘇國信.自然天城 ST5样板別墅(施工图)金基翠城B户型施工图及家具搭配图金中环售楼处施工图九龙荔枝角道会所施工图李连杰别墅施工图明园集团施工图南京金基蓝钻B单位施工图及家具图南京金基蓝钻C单位施工图南京星雨花都A户型样板房及家具图片南京星雨花都D1户型施工图及材料样板南京星雨花都D2户型施工图最祥细南京星雨花都D3户型施工图及物料表南京星雨花都D4户型材料样板及物料表南京星雨花都D5户型施工图南京星雨花都D6户型施工及材料样板南京星雨花都J户型样板房寧波老外灘仁恒联洋河滨城酒店式公寓施工图山西太原世贸酒店施工图上海滨江兰庭施工图上海淀山湖大自然别墅施工图附手绘图上海东方曼哈顿东地块2号单位(施工图及实景)上海东方曼哈頓第一座标准层A1型样板房上海東方曼克(東地塊) 第二座六號單位樣板房上海董生私宅详细施工图上海沪亭北路1号依云听香园售楼处,A1a样板间附照片上海汇宁花园服务楼施工图上海金色貝拉維4#楼大堂(全套施工图)上海九间堂C3型别墅样板房施工图上海凯德置地的徐家汇南丹东路莱诗邸(施工图)上海凱欣豪園T1号楼A型样板间上海康城会所施工图上海老西門新苑C1,C2,樣板房施工图上海老西門新苑G單位樣板房上海陸家嘴中央公寓一期施工图上海伦敦广场A1样板房施工图附实景照片上海明園森林都市#1-1号样板房(玫瑰)上海鹏利海景花园(施工图+图片)上海鹏利海景花园二號樓B單位施工图上海浦东滨江兰庭A型样板房施工图上海滩花园一期E4单位样板间(含详细施工图和图片)上海滩花园一期F3单位样板间上海滩花园一期J2单位样板间上海湯臣羅山路38河住宅B型別墅施工图及实景图片上海西郊林茵湖畔N-LV-CR單位樣板房深圳翠堤湾E1样板房施工图深圳浅水湾两室两厅戶型附照片深圳浅水湾樣板房施工图深圳蛇口大南山半山海景别墅施工图深圳香蜜湖一号施工图附照片深圳星河丹堤項目 C6-独立別墅施工图及材料样板深圳中信红树湾11栋2701错层复式苏州水巷邻里 D1型单位样板房蘇州水巷鄰裏C1型单位样板房(施工图)蘇州水巷鄰裏C2型单位样板房(施工图)天津富力城一期(5號地)會所天劲花园售楼处施工图无锡太湖国际社区样板房B1装修图无锡太湖国际社区样板房B2装修图无锡太湖国际社区样板房B5装修图武汉凤凰城施工图武汉华润置地·凤凰城B1型样板房附照片武汉水岸星城样板房施工图武武汉水岸星城T3型别墅 (施工图)西安华荣.风景御园样板房香港大潭道12-16号香港浅水湾道56-10号示范单位(施工图及实景)香港中文大学茶餐厅香蜜湖一号24B样板房施工图新加坡ORCHARD TURN 售楼中心施工图及照片新加坡样板房施工图及实景照片英皇娱乐酒店施工图招商依山郡会所中山凯茵新城House C样板房中山凯茵新城House D样板房中信红树湾3栋D户型样板房(施工图及实景)中信红树湾梁公馆施工图附照片重庆东和院别墅施工图重庆东和院三房样板房施工图珠海东方傲景峰项目A1示范单位(施工图)珠海东方傲景峰项目A2示范单位(施工图)珠海东方傲景峰项目A3简欧示范单位(施工图)珠海华发新城二期M型示范单位半山海景二期会所(兰溪谷) 滨江兰庭 A淀山湖杭州钱江新城 4号楼 D2类型杭州錢江新城会所杭州錢江新城+D3戸型樣板房2008-0杭州中山花園二期 A 座E单位江苏国信.自然天城 ST5样板別墅江苏国信.自然天城 ST9样板別墅深圳翠堤湾E1(28)C5样板房成都国建新城A2-a户型示范单位成都青城山示范单位(中西閤璧风格)禅味风格施工图大都会风格施工图的昆明二十四桥荷塘月色4B户型广州九龙湖H5别墅(意大利风格)广州凯旋新世界复式户型样板间(施工图)广州凯旋新世界复式户型样板间(施工图)广州中信广场东海海鲜酒家(施工图)杭州绿城春江花月摩洛哥风格施工图南加州风格施工图设计-北京荣尊堡施工图深圳航天晴山月A1户型施工圖武汉东湖天下F户型2008年7月的设计施工图武汉沿海赛洛城C1型示范单位(大都会风格)西班牙风格施工图现代泰式风格施工图一套会所及样板房施工图一一广州九龙湖H5别墅施工图(意大利风格)中山华发生态园华发公馆花园一期施工图重庆高山流水别墅样板房(施工图)1.奥林匹克花园施工图附效果图2.别墅现代风格施工图附效果图3.超豪华的欧式施工图附实景照片4.纯中式施工图附效果图5.大连样板间施工图附实景照片6.单身公寓施工图加效果图方案7.地中海风格施工图及完工照片8.东南亚风格施工图及效果图9.二层复式施工图附效果图10.二层欧式别墅设计施工图实景照片11.二层现代别墅施工图附完工照片12.粉红色家装施工图附效果图13.高尔夫球会别墅A型装修图(含实景)14.高尔夫球会别墅装修图(含实景)15.高级会所施工图附效果图16.古典别墅施工图附效果图17.古典装饰施工图及效果图18.豪华复式样板房施工图(含实景)19.豪华家装设计施工图效果图20.黑白色调施工图及效果图21.黑的经典风格施工图附效果图22.花园别墅施工图(含实景)23.混搭风格施工图附效果图24.极品中式施工图施工图附实景照片25.简洁三居施工图附效果图26.简欧风格四居公寓装修图(含效果)27.简约欧式风格施工图及效果图28.简约设计施工图附完工照片29.简约时尚混搭风格施工图附效果图30.君临天下简欧风格别墅照片附施工图31.两层别墅施工图附效果图32.两居米粉色施工图附效果图33.两居施工图+效果图+工地施工照片34.两居施工图附效果图35.两居施工图附效果图及完工实景照片36.两居现代风格施工图附效果图37.两居现代简洁风格施工图附效果图38.两室一书房施工图附效果图39.两室一厅施工图附完工照片40.美式古典别墅设计施工图附实景照片41.闽都大庄园别墅施工图附效果图42.莫洛哥风格施工图及效果图43.纳帕溪谷------别墅(实景+手绘+施工图)44.欧式别墅施工图附效果图45.欧式别墅施工图附效果图及完工照片46.欧式家装施工图附效果图47.欧式简约施工图附效果图48.清新两居施工图附实景49.三层别墅竣工图(含精美实景)50.三层别墅设计施工图(含效果)51.三层别墅施工图附效果图52.三层复式施工图及效果图53.三层现代别墅施工图附效果图54.三居竣工图(含实景)55.三居设计竣工图(含实景)56.三居施工图加效果图57.三居室平面设计图(附效果)58.三居室装修图(含效果图)59.三居现代风格施工图及效果图60.三居现代中式风格施工图附效果图61.三居样板房施工图及施工中照片62.三居样板间施工图附加完工照片63.三室两厅装修施工图附完工照片64.三室两厅装修施工图附效果图65.山水华庭1#情景洋房施工图及效果图66.设计下足的施工图附实景照片67.时尚简约施工图附效果图68.四居室设计施工图附效果图69.田园风格施工图及效果图70.外籍人事别墅施工图含效果71.万达精装房设计施工图及效果图72.西欧风格施工图及效果图73.现代城施工图附效果图74.现代风格施工图附加效果图75.现代红色调施工图附效果图76.现代简欧混搭风格施工图附效果图77.现代两居施工图附效果图及完工照片78.现代两居样板间方案(含效果)79.现代米黄风格施工图附效果图80.现代暖色调施工图附效果图81.现代欧式风格施工图附实景照片82.现代欧式混搭风格施工图附效果图83.现代欧式施工图附手绘图84.现代欧式施工图附效果图85.现代三居施工图附效果图86.现代温馨家装施工图附实景照片87.现代中式红色风格施工图附效果图88.现代中式施工图附效果图实景及预算89.现代装饰设计施工图(带照片)90.详细家装三居施工图附完工照片91.新豪华欧式古典样板房装修图(含效果)92.新样板间施工图93.兴达嘉园施工图附效果图94.雅居施工图(含实景)95.样板间施工图附加效果图96.一套红色现代风格施工图附效果图97.一套咖啡色调施工图附效果图98.一套三层别墅施工图带效果图99.一套色彩搭配很好的施工图附实景100.一套示范单位(施工图及效果图)101.一套祥细的会所施工图及效果图102.中式别墅施工图附加效果图103.中式别墅施工图及效果图104.中式风施工图附效果图105.中式古典施工图附加效果图106.中式施工图及效果图107.中式四合院施工图附效果图108.重庆奥园联排别墅施工图+效果图一、别墅建筑常用装修做法二、单体别墅531型别墅820型别墅660型别墅589型别墅501型别墅497型别墅453型别墅426型别墅375型别墅326型别墅320型别墅288型别墅272型别墅220型别墅218型别墅214型别墅206型别墅196型别墅三、连体别墅连体别墅A型连体别墅B型连体别墅C型连体别墅D型歡迎大家下載,如有疑問:36179320。
图纸简介:
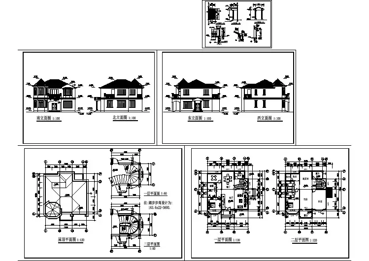
联排别墅:建筑层数:二层+阁楼;建筑高度:10.6米;建筑占地面积:19㎡*12㎡;屋顶形式:坡屋顶;设计功能:一层:客厅、卧室、车库、厨房、餐厅、卫生间;二层:阳台、3个卧室、露台、客厅;阁楼:卧室、客厅、卫生间;图纸目录:一层平面图、二层平面图、阁楼平面图、阁楼层平面图、立面图、剖面、楼梯大样图、基础平面图。
独栋别墅:建筑层数:二层;建筑高度:8.2米;建筑占地面积:12㎡*14㎡;屋顶形式:坡屋顶;设计功能:一层:客厅、卧室、小车库、玄关、厨房、餐厅、卫生间;二层:客厅、3个卧室、卫生间;图纸目录:一层平面图、二层平面图、屋顶平面图、楼梯大样图、剖面图、立面图、基础平面图。
预览图:[仅是局部效果预览,详细内容及整套图纸请下载附件查看]
整套图纸下载[本图为AotuCAD制作/dwg格式] 注:所有dwg格式图纸均可任意放大缩小修改编辑及打印出图
2套二层坡顶别墅建筑施工图.rar (需要15个娅库币) 100元=200娅库币如何获得娅库币?。
中式家具CAD图块22张欧阳光明(2021.03.07)电脑图块8款(CAD)蓝天大酒店施工图纸(设计)某川菜馆装修施工图-全套34张图三层别墅建筑施工图纸***银行大楼建筑图纸(设计)***5层办公楼电气设计施工图装饰工程绘图CAD常用图块两层别墅的设计图纸幕墙防雷节点图(CAD)仿古办公楼建筑施工图纸办公楼建筑全套施工图纸办公楼建筑施工图纸MQ-1住宅区1号楼施工图纸六层住宅建筑施工图纸五层厂房建筑施工图纸香格里拉别墅建筑施工图纸全套综合办公楼建筑施工图纸现代别墅建筑设计方案深圳经典独立别墅施工图纸水岸豪宝石A型别墅施工图***办公楼建筑施工图纸**别墅建筑结构施工图纸(全套)***公安局建筑施工图纸+结构图纸+效果图7套小区会所建筑施工图纸豪华欧式别墅施工图纸(全套)乡村别墅建筑方案及效果图中国古典别墅建筑施工图纸两套别墅方案图纸 (附带效果图)完整的一套别墅建筑结构施工图纸一款农村别墅设计图纸经典别墅CAD设计图纸沿街商住楼设计图纸***底商多层框架结构住宅楼建筑施工图纸广州市设计院设计文件(全套结构图)坡地多层住宅建施图纸商品房住宅建筑结构施工图纸农村小康住宅楼建筑施工图纸(全套)住宅楼六层建筑施工图纸三层高档别墅设计图纸万科高层住宅楼建筑施工图纸全套私人建筑设计图纸***小区多层住宅楼施工图纸(全套)***办公楼全套施工图纸(设计说明、建筑、结构、水电)别墅建筑施工图纸(附效果图)别墅建施图纸(全套)框架结构办公8层设计图纸独栋别墅3层建筑结构工程施工图纸(全套)青岛景苑工程建筑六号楼施工图纸***学校学生公寓楼建筑施工图纸(全套)***商品房施工图纸***住宅小区1号楼施工图纸(全套)套房设计施工图纸***商住楼施工图带效果图(全套)重庆市***高层建筑施工图纸(全套)住宅楼平面施工图纸住宅楼多层建筑施工图纸现浇空心楼板高层图纸(全套)别墅结构图纸和建施图纸现代风格高层酒店设计方案cad图纸附带效果图中国银行建筑施工图纸-贝聿明汇景酒店施工图纸(全套)***商业中心综合楼图纸***办公楼设计方案附带效果图住宅建筑施工图( 全套)综合性写字楼建筑设计图纸(全套CAD)***办公用房及仓库建筑图纸(全套)扬州大学教学楼方案图(附带效果图)小型体育馆施工图纸(全套)多层别墅建筑施工图纸(四套)豪华别墅施工图纸(全套)别墅图纸、效果图、3DMAX模型千万豪华别墅图纸(全套)三层别墅扩出图纸(带结构.模型)别墅施工图纸(三套)高层住宅施工图纸(全套)小型多层别墅建筑施工图纸重庆市***小学教职工宿舍楼施工图纸(设计)沿街多层商住楼立面方案扩初设计图纸意大利式独立别墅设计图纸。
2021年1300套不墅设计图纸资料及效果图全套整套图纸共1000余套不墅设计方案,包括不墅效果图和cad格式施工图〔可直截了当修改编辑或者出图〕,真正让你设计无忧;同时本资料内含多套新农村建设房屋方案,适合所有想自己建房的朋友,一定有您中意的方案。
全套资料共计13G,千余套方案,是目前为止最全面的不墅设计参考资料内容:1中国最经典现代风格不墅——万科17英里,〔可领会最经典现代风格海景不墅风采〕2中国最经典中式风格不墅图纸——深圳万科第五园〔可领会国学与现代艺术的最完美结合〕3国内超级豪宅——深圳瞧澜地块不墅建筑全套〔包括建筑、结构、水、电等各个专业〕4国内顶尖豪宅装修施工图纸130套〔港台最顶级大师作品,尽对一流〕现在跟大伙儿介绍几款新农村户型图,在农村有地的,手头上有二十万要建房的〔不含精装修〕,全然上下面的户型是能够建筑的。
哈哈。
实现从农村包围都市,农村的豪宅是第一步!户型参考造价1、毛胚房砖混400-1000/㎡,框架600-1600/㎡2、毛胚房+精装修砖混1200-3000元/㎡,框架1500-4000元/㎡因此精装修只是讲按照一般的好的装修,奢华的装修就不是那个价格了,以上价格不包括前后花园栽花种草等费用。
下面的户型,一般只给了建筑图,没有结构图,要是施工时候不清楚配筋,能够留言询咨询。
一般框架结构,根底好的,能够采纳天然地基,不行的,就要做整板根底或桩根底,通常板宜采纳双层配筋,现浇,屋面板可不用抗渗混凝土,也能够不做防水,但屋面板要做好一点,瓦要盖好点。
以下的户型只是本人收集的一局部,我收集了几十种户型,压缩包有20M,有相当一局部有CAD图,只是许多根基上建筑图,配筋自己要考虑。
一、独栋不墅户型农村的爆发户,链子特别粗的新贵,能够考虑如此的户型。
大气!户型一提高幸福指数的要害户型二一座豪宅旺三代〔(*^__^*)嘻嘻……,这么像房产公司的广告?!〕凉风习习,池塘的知了叽叽喳喳喊着,能够给后代一个不错的童年想象。
[深圳]XX26层高层住宅楼建筑施工图(内含效果图)一套完整的住宅楼图纸郑州天城小区CAD建筑方案郑州体育馆建筑CAD方案深圳香蜜湖信华花园建筑方案图纸某栈道工程施工方案cad及pdf文本广州爱都项目施工图DWG南海文化艺术中心方案设计CAD中建国际北京亮马河小区CAD一个广场的方案图很不错重庆xxx古镇保护规划图纸xxx科技公园广场方案图私人住宅楼施工图5农村住宅两层简式房屋图纸私人住宅楼施工图9农村别墅施工图图纸某砖混结构住宅楼施工全套上海绿洲xxx别墅施工图一套会所建筑图纸cad室外健身器材图库大全高层住宅楼建筑施工全套cad施工图精美荷兰式别墅施工图私宅建筑施工图cad全套图纸江生私宅设计图cad全套图纸小型私人别墅cad建筑施工图全套多层住宅楼建筑施工图十几层住宅楼建筑施工图.RAR三室二厅及别墅各一例施工图纸世博中国馆图纸鸣泉居(建筑)全套高层现代风格酒店方案初步设计cad图纸及效果图高层建筑户型图集高层四户一梯图纸高层住宅设计方案食堂建筑施工图-6.食堂建筑施工图-5食堂建筑施工图-4食堂建筑施工图-3食堂建筑方案图阿列克谢耶夫教堂长岛别墅.金海岸高层住宅施工图连排别墅平面方案跃层住宅建筑设计CAD施工图纸设计图,农家院设计图某花园住宅楼CAD建筑图纸节能住宅楼建筑设计施工图航运新村高层住宅建筑设计图纸自行车车库图纸.脱硫施工平面规划图老年活动中心建筑图3老年公寓与干休所规划设计建筑施工图纸-2老年公寓与干休所规划设计建筑施工图纸-1老年公寓cad建筑施工图.rar美食城规划方案绿城公寓平面施工图2XXX综合楼建筑结构图带效果图经济适用房设计图精典的基本户型图纸私人别墅施工图私人住宅楼施工图秀枫山庄28栋小高层设计施工图.社区服务中心办公楼建筑施工图很齐全的别墅设施施工图漳州XXX三层小别墅施工图.温泉度假别墅施工图.深圳***三十一层住宅建筑施工图纸沃尔玛广场的全套图纸池州广电大厦建筑图纸.水边木平台欧式建筑立面图纸欧式别墅全套施工图梁结构节点详图.标准住宅套房方案图***高层一号楼图纸.***维修中心食堂设计图***监狱监舍cad施工图纸.***大酒店设计方案图***小区管线规划总平面图2***学院学生活动中心施工图纸***大楼梁、柱、板加固施工图***大型商场建筑施工图cad***售楼处建筑图.***博物馆电子设计图.***仿古公厕建筑施工图.***中学教学楼与宿舍楼建筑施工图-1某中学教学楼. ***中学4层宿舍楼施工图***一梯三高层建筑施工图***17万平大型商场消防图纸.***17万平大型商场消防图纸.杭州精品排屋新宾馆施工图.教堂建筑图纸3套-1.教堂建筑图纸3套-2.教堂建筑图纸3套-3户型平面建筑施工图.建筑设计详图大全.建筑大样图集cad版.康居建筑设计竞赛获奖作品.广州从化逸泉山庄别墅C区CL-B型施工图山地别墅建筑图居委会综合楼施工图小高层住宅楼建筑全套施工图.小高层住宅楼平立剖面图.小户型农宅CAD建筑图纸.小型社区活动中心建筑小型别墅建筑图.小区全套建筑施工图(内含100张).小区会所设计结构建筑施工图.安提瓜和巴布达总理别墅.学院学生活动中心施工图纸.学生公寓楼全套CAD学校入口台阶及值班室施工图.天虹花园别墅建筑施工图.大连***购物广场建筑施工图.大型商住楼平面.多种户型设计方案.多种住宅楼户型图.多层小高层等基本户型图.多层小高层等CAD建筑图纸.堤岸园多层住宅施工方案图.坡屋顶住宅楼地下室组合平面示意图.地下室人防建筑施工图.国外别墅规划设计方案.四层办公楼全套施带工图效果图.商场设计全套cad图纸.商住楼全套CAD建筑施工图.商业街建筑施工图带效果图.各式亭子施工图集古建筑立面建筑图古建亭子施工图集.古代风格办公楼建筑cad变电所建筑施工图.卫生院设计方案图.博物馆建筑施工图.南方某地十一层小高层住宅设计.南方别墅设计方案.南京西路主要老建筑CAD图纸.单体洋房单体建筑图.华丽型私人别墅.北方四合院建筑设计施工图纸(带效果图)别墅设计施工图.19别墅建筑施工图.农村小康住宅方案带效果图.农村住宅设计.农村住宅楼方案图.养老院建筑平面图.公园茶室cad施工图.公共厕所图全套办公楼建筑施工图带效果图.体育馆建筑施工图.住宅电梯高层户型图16住宅楼户型设计CAD参考图纸图集下载.住宅楼户型设计CAD参考图纸图集下载-9住宅楼户型设计CAD参考图纸图集下载-7住宅楼户型设计CAD参考图纸图集下载-6住宅楼户型设计CAD参考图纸图集下载-5住宅楼户型设计CAD参考图纸图集下载-22住宅楼户型设计住宅楼户型设计CAD参考图纸.住宅小区户型方案.住宅区临街商铺建筑施工图仿清式歇山古建(微缩新华门)设计施工图仓库建筑施工图五星酒店方案设计图纸五岭别墅园二层食堂建筑设计乡村别墅建筑图.38乐亭县东方嘉园2#楼施工图.临街的住宅设计图纸中式彩画CAD图块清式梁枋垫板彩画中小户型cad户型图.中学教学楼建筑施工图.上海XXX小高层住宅施工图纸.三层高档别墅.CAD图纸七层框架坡屋顶住宅楼施工图.6层框架结构办公楼图纸四套厂房建筑施工图-4.四套厂房建筑施工图-3-中标厂房设计图纸.四套厂房建筑施工图-2四套厂房建筑施工图-1三层独栋别墅建施图三层的厂房建筑全套施工图三层别墅全套建筑结构图.三十二层高层住宅建筑.图纸2层砌体别墅施工图.10大足群力新村农村别墅施工图.龙泉湖滨住宅扩初施工图高层住宅及小区建模.静音寺建筑施工图.装饰图例英伦风情的教堂施工图.花钵、树、花池大样图.绿化图块私家花园全套施工图纸.私人别墅3D模型图.清式斗拱做法详图.深圳植物设计图例集合.水岸豪门钻石C型别墅比较齐全的CAD图库歌舞厅装饰详图(CAD)歌舞厅装饰详图.楼盘全套CAD图.棕榈灌木图例***运河公园全套施工图.XXX渔港环境设计施工图全套***小学教学楼全套cad施工图***小区总平面规划图.一些的经典欧式建筑立面建筑CAD常用千种图块之仿古装饰.川西民居风格的商业街施工图全套山水草堂景观设计全套图纸(一)山水草堂景观设计全套图纸(二)山水草堂景观设计全套图纸(三)山水草堂景观设计全套图纸(四)山水草堂景观设计全套图纸(五)山庄别墅平面布置.室内平面素材库(一)室内平面素材库(二)室内平面素材库(三)室内平面素材库.多层别墅建筑图V国际花园别墅全套施工图.国家湿地公园景观施工图全套国外别墅规划设计方案图.国内高档别墅施工图全套古建筑门窗及花园围墙单元式多层住宅建筑施工图.北京中关村规划方案图化粪池构造图别墅全套建施图(含两张效果图)仿古船建筑平立剖面.丽都名邸3两层独立豪华别墅施工图上海康桥半岛别墅金沙苑建施图3层坡顶天都城法国古堡建筑施工图一套完整的别墅景观施工图.dwg一套完整的住宅施工图.一个公园的套图cad车模型CAD立面人和指北针推荐CAD平面图块集合.CAD制作的中国画CAD书法贴8000万1套的豪华别墅施工图纸5套多层住宅施工图纸3层独栋别墅施工图纸32层高层住宅建筑图纸12个别墅设计方案十套别墅平面图加效果图高层现代风格酒店方案设计dwg图纸及效果图钢管片拼装框架图柱间支撑计算书下载万科第五园效果图加CAD难得的老外的温泉会所方案CAD图国外温泉会所XXX乡村小别墅设计方案图纸***别墅方案图43山东曲阜孔林享殿测绘图牌楼建筑设计cad方案图***小区几套别墅方案图纸XXX区市联排别墅方案设计图纸***别墅设计方案图24***别墅方案设计图25全套三层别墅图纸附结算浙江省某热电有限公司办公楼图纸一套办公室施工图04某小型办公楼平面图17XXX消防队办公楼全套图纸***实业有限公司办公楼建筑施工图纸一份食堂办公楼全套图纸实用小办公楼全套cad图纸嵊泗引航办公大楼建筑施工图全套的办公楼建筑施工图***烟草公司办公楼全套建筑图某农村办公楼建筑图2***农村办公楼建筑图1某地区工商局建筑施工图***工厂办公楼全套施工图***办公楼设计建筑图***办公楼建筑平面及大样图某经典办公楼cad设计图纸XXX公司办公楼全套的建筑图纸高层建筑全套施工图纸休闲广场平面图别墅装修图纸曙光小区北区独立式住宅A型建筑语结构施工宝按花园试点小区一期工程建筑图纸一套高层住宅CAD施工图***校园建筑设计CAD图纸小别墅设计图含效果图武汉***电影院空调防排烟施工图屋顶花园采光顶钢架天津韩家墅农产品批发市场大门汽车站设计图,包括总平面及各层平面楼房院落布局详图两单元十三层商住楼图纸钢结构采光顶(cad施工图)福州市***别墅建筑图纸二独栋别墅建筑方案设计图茶馆设计方案别墅施工图附效果图别墅cad图纸+3D模型+效果图住宅小区总施工图小区会所dwg学校大门整套图纸新世纪康村镇居住竞赛方案-昆山市建筑设计上海中山广场建筑图纸清静阳房cad施工图***地税局门面建筑图纸XXX茶餐厅施工图XXX农村小康住宅建筑施工图***宾馆建筑详图美丰实验学校学校灾后重建工程cad建筑图纸楼梯节点详图江南***雅苑建筑设计洪雅县实验小学图纸杭州市江干区工商管理局办公楼建筑施工图国家大剧院建筑图纸1张***高层住宅楼平面建施图7住宅楼建筑施工图纸51一个户型多个方案XXX体育中心游泳馆、跳水馆设计图广州二沙岛南堤豪华别墅全套施工图v高层住宅户型图22XXX3层商住楼的施工图住宅电梯高层户型图***一套高层住宅施工图8***新建仓库设计图桐庐水晶机械运动有限公司办公楼建筑cad施工图桃溪中学综合楼全套cad图纸***花苑住宅建筑施工图***红旗小区北区6#楼建筑图***6+1层砖混住宅楼建施图节能住宅楼建筑图吉林省建筑装饰集团科技园二期工程-教学楼A工业场地联合建筑图纸高层住宅建筑全套施工图9大户型平面图集111错层住宅建筑设计图布吉户型CAD方案.碧桂园小区规划与户型平面100501022331XXX一套国外游泳池图纸***土地储备中心住宅综合楼施工图XXX农村徽派马头墙住宅楼施工图XXX厂区内宿舍5层建筑方案CAD图纸全套绿城公寓平面施工图XXX高层一梯十户紧凑型户型平面高层公寓建筑施工图***多层住宅施工图平面、立面、剖面齐全别墅设计全套建筑图23某盛安花园设计方案图XXX全套多层住宅建筑施工图***学校图书馆建筑图XXX商住楼施工全图联拼别墅1至4层平面方案图***建筑商住楼施工图四方重檐亭CAD建筑图纸湿贴石材踢脚节点图山庄餐饮部建施图tu***三室两厅单厨单卫户型图三开间前廊后无廊建筑cad平面图日本一级建筑事务所设计的别墅图纸人防地下室防爆墙大样CAD图纸农村建筑二层小楼CAD施工图纸***银行CAD方案图***小区设计方案大样图***小区地下车库施工图2***投资区电信接入点机房建施图***私人住宅楼方案图3***6班幼儿园建筑设计方案罗马假日(宏宇广场)cad户型图***六层住宅楼设计图6XXX两层商住楼设计方案绝佳户型平面图cad聚苯板外墙保温系统构造图cad九江500平别墅设计图纸锦绣香江cad户型图金域名苑户型图江畔明珠小区大门江南***户型图建筑大师PAUL SANTMAN代表作洛伊德伦敦住宅假日花园F户型几种,高层核心筒活动地板平面布置及详图恒宝华庭户型图海印南苑户型图光大花园户型图***高层住宅地下室(六级人防。