【CAD图纸】工厂改造公园景观设计施工图-喷泉水池(精美图例)
- 格式:dwg
- 大小:418.15 KB
- 文档页数:2
景观施工图制图规范一、总则施工图的设计文件要完整,内容、深度要符合要求,文字、图纸要准确清晰,整个文件要经过严格校审,避免“错、漏、碰、缺”。
1、工作目标1.1规范化——有效提高设计的工作质量。
1.2标准化-—提高设计的工作效率。
1。
3网络化——便于网络上规范化管理和成果的共享。
2、工作范围本规范是依据建筑CAD制图的统一规则,景观工程施工图设计流程,适用于我公司景观工程及相关领域中的CAD制图。
3、工作风格3。
1本标准为形成景观专业CAD绘图表达的风格的统一.3.2设计人员应在日常的工作当中,可以总结一套自己熟练掌握的方式.但CAD制图的表达应清晰、完整、统一。
图纸由多人绘制时,须由项目负责人在前期提供必要的资料,提出统一的绘制标准、施工工艺、文本格式、表达方式等.二、制图规范与作图软件设置1、图纸分各专业编号方式如下:(XX=01,02…)1.1图纸封面、1。
2目录、1。
3景观设计总说明:L—SM—XX1。
4总图(L—ZT—XX):总平面、竖向/排水图、尺寸定位图、坐标定位图,方格网定位图,铺装索引图、施工总索引图、及景点设施布置图等1.5详图(L-YS—XX):节点详图,道路铺装详图、水景详图、景观建筑详图、小品详图等1。
6绿化(L—LS—XX):种植设计说明、苗木表、乔灌木种植平面图、地被种植平面图、种植网格放线图等1。
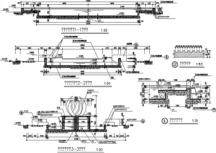
7水施(L-SS—XX):喷灌设计说明、喷泉系统图、喷灌平面图、喷灌系统图、喷泉喷灌节点等1。
8电气(L—DS—XX):电气设计说明、电照系统图、电照平面图、背景音乐系统图、背景音乐平面图、电气施工节点等备注:各专业的设计文件应经严格校审、签字后,方可出图及整理归档。
2、图纸深度施工图设计应根据已通过的方案设计文件、初步设计文件及设计合同书中的有关内容进行编制。
设计深度应满足以下要求:2。
1 能据以编制施工图预算;2。
2 能据以安排材料、设备订货及非标准材料的加工;2。
3 能据以进行施工和安装;2.4 能据以进行工程验收;在设计中应因地制宜地积极推广和正确选用国家、行业和地方的建筑标准设计,并在设计文件的设计说明中说明图集名称和页次.关于设计说明书和图纸应表达的内容、深度等要求,是考虑对园林景观工程通用而编制的。
喷泉水池升级改造工程方案一、项目背景喷泉水池作为城市公共景观建筑的一种,具有瞩目的吸引力和装饰作用。
一方面,可以起到美化城市环境、提升城市形象的作用,另一方面,也可以为市民提供一个休闲娱乐的场所。
然而,随着城市发展和人们观念的更新,传统的喷泉水池已经不能完全满足人们对于美、实用的需求,急需升级改造成更具有创新性和时尚感的新型喷泉水池。
二、改造目标1. 提升景观效果:通过改造升级,使喷泉水池更具有美观性和装饰性,能够吸引更多人的欣赏和观赏。
2. 环保节能:引入新的技术和材料,改造成为更节能环保的新型喷泉水池。
3. 提升功能:喷泉水池不仅要具备美化城市环境的功能,还要增加娱乐性和互动性,让市民能够更主动地参与到其中。
4. 安全可靠:对原有设施进行全面检修,确保喷水系统运行稳定、安全可靠。
三、改造方案1. 设计改造引入创新设计理念,通过多媒体、光影等元素融入喷泉水池的设计中,使其在夜间也能够成为城市夜间景观的一部分。
在设计上要考虑到周边土地利用结构、地形、风格、功能等各方面因素,让新型喷泉水池与周围环境更加融洽,形成和谐的城市景观。
同时,根据喷泉水池所在地的特点,整合周边文化元素,使其更符合当地人文环境,增加地域特色。
2. 新材料应用在传统的规划中,通常以石材、玻璃钢等材料为主,而在此次升级改造中,可以考虑采用新型材料,如亚克力、玻璃、不锈钢等。
这些材料具有更好的耐候性和塑性,可以更好地塑造出新型喷泉水池的造型和线条,而且还可以增加喷泉水池的互动性,提升城市景观的时尚感。
3. 新技术应用在喷泉系统设计上,可以引入新型喷头和水泵,采用节能环保型材料,使其运行更加稳定,降低能耗。
除此之外,可以通过程序控制系统,实现多种喷水效果和互动模式,让市民和游客能够通过智能设备进行互动体验,增加娱乐性和互动性。
4. 智能化管理采用现代化设备进行远程监控、集中控制和自动化调节,利用云计算、物联网、大数据等技术手段,进行喷泉水池的管理和维护。
水景工程施工图设计一、水景工程概述水景工程是指利用水体作为景观元素的一种工程,其设计和施工不仅要考虑到美观性,还要考虑到水体的生态环境和功能性。
水景工程的施工图设计是整个工程的重要环节,它直接关系到项目的施工质量和效果。
本文将以某水景工程项目为例,详细介绍水景工程施工图设计的内容和流程。
二、项目背景某水景工程项目位于城市公园内,总占地面积约为3000平方米。
项目包括中央水池、喷泉、瀑布、人工湖等多个水景元素,旨在打造一个优美、宜人的城市休闲空间。
水景工程的设计思路是以“自然、生态、美观”为主题,通过合理的水体布局和植物景观,打造出一处具有视觉冲击力和宜人氛围的公园水景。
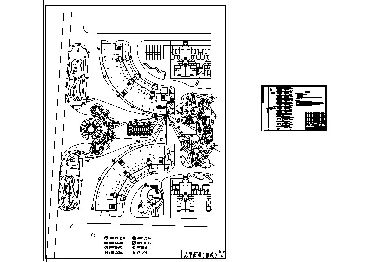
三、施工图设计内容1.总平面图设计在水景工程的总平面图设计中,需要充分考虑到项目的整体布局和各个水景元素之间的关联性。
总平面图应包括项目的地理位置、周边环境、水景元素的位置和数量、行人通道、植物布置等内容。
同时,还需要对水景元素的尺寸、形状、深度等进行详细标注,确保施工的准确性和规范性。
2.水体系统设计水景工程的核心是水体系统,包括水池、喷泉、瀑布、人工湖等在内。
在水体系统设计中,需要考虑到水体的水源、排水系统、水泵、过滤系统等相关设施,保证水景供水的稳定性和水质的清洁度。
同时,还需设计水体的景观装饰、水景灯光、喷泉形态等细节,以增强水景的观赏性和艺术性。
3.植物景观设计植物景观是水景工程的重要组成部分,能够增加项目的生态性和自然感。
植物景观设计需要考虑到植物的种类、数量、分布,以及植物的成熟高度、根系范围等因素。
同时,还需要注意景观植物与水景元素的搭配,使得景观更加和谐统一。
4.建筑物设计水景工程中的建筑物通常包括观景台、亭子、游船码头等,它们是观赏水景和休息游玩的场所。
建筑物设计需要充分考虑到景观美学和功能需求,合理布局和设计建筑物的结构和样式,以确保观景台、亭子等建筑物能够与周围的水景元素协调一致。
四、施工图设计流程1.方案设计在水景工程的施工图设计中,首先要进行方案设计,包括项目的总体规划、水景元素的布局、植物景观的设计等内容。
[抚州]湿地公园园林景观工程全套施工图使用群体:大众地形地貌:平地绿地类型:综合公园图纸深度:施工图项目位置:江西设计风格:现代风格图纸格式:CAD2000 图纸张数:85 张景观设施:亭、廊、花架,榭、舫、平台栈道,园林座凳,儿童游乐场所,景观照明,自行车棚,垃圾箱,管理用房,停车场,公用电话,公用厕所,铺装设计,景墙,围墙,大门,树池花坛,雕塑,水景、喷泉,花钵花盆,运动健身场所图纸包括:图纸目录、设计说明、总平面图、公园分区图、北区小区布置平面图、北区道路分类平面图、北区地形放线平面定位图、北区驳岸放线定位平面图、北区放线总平面图、北区竖向总平面图、北区总平面索引图、北区总平面图、南区小品布置图、南区道路分类图、南区地形坐标放线图、南区放线总平面图、南区竖向总平面图、南区总平面索引图、南区总平面图、北区种植绿化工程总平面图、北区大规格乔木种植图、北区乔木种植图、北区花灌木种植图、北区地被及水生植物种植图、南区总平面种植图、南区大规格乔木种植图、南区花灌木种植图、南区地被花卉及水生植物种植图、植物苗木表、北区入口铺装放线平面图及剖面图、休闲小广场详图、入口小广场详图、木曲桥施工详图、观水平台施工图、入口广场施工图、广场景观节点详图、林中木栈道详图、儿童活动广场详图、北区南入口平面立面及剖面图、北区主入口桥梁详图、北区种植绿化工程总平面图、北区大规格乔木种植图、北区乔木种植图、北区花灌木种植图、北区地被及水生植物种植图、北区小区布置平面图、北区道路分类平面图、北区地形放线平面定位图、北区驳岸放线定位平面图、北区放线总平面图、北区竖向总平面图、北区总平面索引图、北区总平面图、南区北入口景观施工图、休闲走廊广场施工图、双亭休闲平台施工图、南区景观节点详图、局部小广场放线图、南区总平面种植图、南区大规格乔木种植图、南区花灌木种植图、南区地被花卉及水生植物种植图、南区小品布置图、南区道路分类图、南区地形坐标放线图、南区放线总平面图、南区竖向总平面图、南区总平面索引图、南区总平面图。
公园景观设计cad平面图_公园景观设计平面图一个城市要让人留恋,就必须要有独具魅力的公园。
公园景观的规划建设丰富了城市建筑布局,加大了生活空间,改善了生活环境质量。
下面由店铺为你提供的公园景观设计cad平面图,希望大家喜欢。
公园景观设计cad平面图鉴赏公园景观亮化照明设计技巧一、公园夜景亮化设计应符合一下要求:1、应根据公园的功能类型、周边景观环境、主题风格和夜间照明灯具使用情况,确定公园的照度水平和选择合适的照明设计方式;2、应该避免溢散光对路人、周围环境以及园林生态的影响;3、公园公共活动区域的照度标准值应符合表1.1的规定。
二、公园树木照明设计应该符合下列亮化要求:1、树木的亮化应该精心选择适宜的照射方式和照明灯具安装的位置;尽量避免时间过长的光照和照明灯具的安装对动、植物生长产生相应的影响;不应对古(广州宏硕照明设计整理)树等珍贵的名木进行近距离照明;2、在进行亮化时,需要考虑落叶树木的叶状及特征和颜色、常绿树木及季节变化因素对树木亮化的影响,确定树木的照度水平和选择照明光源的色表;3、尽量避免在路人观赏的角度上产生眩光或者对环境产生一定的光污染。
三、公园花坛、绿地照明设计应该符合以下的要求:1、花坛宜采用自上向下的照明设计方式,以凸显出花卉本身;2、照明灯具应该作为景观的元素考虑,并且应该避免由于照明灯具的设置影响景观观赏性;3、草坪的亮化应考虑对公园内人员活动的影响,光线宜自上向下照射,应避免溢散光对环境和人造成的光污染;4、公园内观赏性绿地照明的最低照度不宜低于2lx;5、尽量避免溢散光对景观的观赏或者周边环境的影响。
四、公园水景照明设计应符合下列要求:1、照明光源、灯具以及其电器附件必须符合本规范附录C规定的水中使用的防护与安全要求,并应便于维护管理;2、水景照明灯具应结合景观要求隐蔽,应兼顾无水时和冬季结冰时采取防护措施的外观效果;3、喷泉照明的照度应考虑环境亮度与喷水的形状和高度;4、水景的周边需要设置功能性照明,防止观景人员意外落水;5、应根据水景的形态及水面的反射作用,选择合适的亮化方式。