柴油发电机组安装规范
- 格式:doc
- 大小:29.51 KB
- 文档页数:8
柴油发电机组安装施工工艺标准(QB-CNCEC J060701-2004)1 适用范围本工艺标准适用于一般工业与民用建筑电气安装工程的单台、联机固定式柴油发电机组及附属设备的安装与调试工作,柴油发电机组的连续功率为100~1500KVA;并适用于设置在建筑物的首层、中间各层、屋顶层、地下室或建筑物的裙房的柴油发电机组的施工。
2 施工准备2.1 原材料半成品的要求2.1。
1 各种规格的型钢:型钢应符合设计要求、无明显的锈蚀,并有材质证明。
2.1.2 螺栓:均采用镀锌螺栓,并配有相应的镀锌平垫圈、弹簧垫.2.1.3 导线与电缆:各种规格的导线与电缆,要有出厂合格证。
2。
1。
4 其他材料:绝缘带、电焊条、防锈漆、调和漆、变压器油、润滑油、清洗剂、氧气、乙炔。
2.2 主要机具汽车吊、卷扬机、钢丝绳、吊链、龙门架、绳扣、台钻、滚杠、砂轮机、手电钻、联轴节顶出器、台虎钳、油压钳、千斤顶、扳手、电锤、板锉、锤子、钢板尺、圆钢套丝板、电焊机、气焊工具、塞尺、水准仪、水平尺、转速表、摇表、万用表、卡钳电流表、测电笔、试铃、电子点温计、水电阻、真空泵、油桶、撬杠、相序表等。
2。
3 作业条件2。
3.1 施工图和技术资料齐全;2。
3.2 土建工程基本施工完毕、门窗封闭好;2。
3.3 在室外安装的柴油发电机组应有防雨措施;2。
3.4 柴油发电机组的基础、地脚螺栓孔、沟道、电缆管线位置应符合设计要求;2.3.5 柴油发电机组的安装场地清理干净、道路畅通专业。
2。
4 作业人员主要施工人员:电工、超重工、调试工,经过培训考核的专业人员持证上岗.3 施工工艺3。
1 工艺流程3.2 操作工艺3。
2。
1 基础验收柴油发电机组本体安装前应根据设计图纸、产品样本或柴油发电机组本体实物对设备基础进行全面检查,是否符合安装尺寸要求。
3。
2.2 设备开箱检验3.2.2。
1 设备开箱点件应有安装单位、供货单位、建设单位、工程监理共同进行,并做好记录;3.2.2。
柴油发电机组安装吊装要求
柴油发电机组安装及吊装要求
安装要求:
1、柴油发电机组四周应留不小于1米空间,水箱端根据水箱芯子大小留置通风窗。
本要求为机组机房的最小尺寸,用户可根据需要进行加大。
2、柴油发电机组地基基础应建在硬土地面上,夯实后,做200mm厚的混凝土地面,地面应平整。
3、用户在建造机房时,应在机组上方屋顶预埋起吊用工字钢(≤250KW以下可不要),以备日后维修用。
4、机房应通风良好,地面应平整、防滑。
5、机组排气管内径不应小于柴油机排气口直径,弯管不宜超过3个,弯管角度应大于90度,排气管应有支撑或吊装支架,保证机组消音器,增压器等不受力。
6、机房内应备有灭火器等消防工具。
吊装要求:
吊装发电机组时,必须整体水平.
感谢您的阅读!。
柴油发电机组安装标准一、发电机组的安装1、机组安装前的准备工作⑴机组的搬运在搬运时应注意将起吊的绳索应系结在适当的位置,轻吊轻放。
当机组运到目的地后,应尽量放在库房内,如果没有库房需要在露天存放时,则将油箱垫高,防止雨水侵湿,箱上应加盖防雨帐篷,以防日晒雨淋损坏设备。
由于机组的体积大,重量很重,安装前应先安排好搬运路线,在机房应预留搬运口。
如果门窗不够大,可利用门窗位置预留出较大的搬运口,待机组搬入后,再补砌墙和安装门窗。
⑵开箱开箱前应首先去除灰尘,查看箱体有无破损。
核实箱号和数量,开箱时切勿损坏机器。
开箱顺序是先折顶板、再拆侧板。
拆箱后应做以下工作:①根据机组清单及装箱清单清点全部机组及附件;②查看机组及附件的主要尺寸是否与图纸相符;③检查机组及附件有无损坏和锈蚀;④如果机组经检查后,不能及时安装,应将拆卸过的机件精加工面上重新涂上防锈油,进展妥善保护。
对机组的传动局部和滑动局部,在防锈油尚未去除之前不要转动。
假设因检查后已除去防锈油,在检查完后应重新涂上防锈油。
⑤开箱后的机组要注意保管,必须水平放置,法兰及各种接口必须封盖、包扎、防止雨水及灰沙浸入。
⑶划线定位按照机组平面布置图所标注的机组与墙或者柱中心之间、机组与机组之间的关系尺寸,划定机组安装地点的纵、横基准线。
机组中心与墙或者柱中心之间的允许偏差为20mm,机组与机组之间的允许偏差为10mm.⑷检查设备准备安装检查设备,了解设计内容和施工图纸,根据设计图纸所需的材料进展备料,并按施工方案将材料按先后顺序送入施工现场。
如果无设计图纸,应参考说明书,并根据设备的用途及安装要求,同时考虑水源、电源、维修和使用等情况,确定土建平面的大小及位置,画出机组布置平面图。
⑸准备起吊设备和安装工具2、机组的安装⑴测量根底和机组的纵横中心线机组在就位前,应依照图纸"放线〞画出根底和机组的纵横中心线及减振器定位线。
⑵吊装机组吊装时应用足够强度的钢丝绳索在机组的起吊位置,不能套在轴上,也要防止碰伤油管和表盘,按要求将机组吊起,对准根底中心线和减振器,并将机组垫平。
柴油发电机组安装
一、安装前准备
1、确认发电机组型号及规格。
2、查看发电机组有无损坏,如果发现损坏,立即停止安装。
3、在发电机组安装前,应检查发电机组的各部件的接线是否正确,
电气连接线或机械连接线是否有松动的现象。
4、查看安装场所有无阻碍,无易燃易爆、有毒有害,并确保防火、
防爆、及安全规定。
5、确认油箱的容量是否足够,防止油箱在运行时由于油量不足导致
的故障。
6、确认发电机组的排风罩、冷却系统是否正常,否则可能对发电机
组的使用产生不良影响。
二、安装
1、暂存发电机组,发电机组应放置在安全的位置,防止发电机组直
接暴晒及受到雨水的影响。
2、安装发电机组油箱,安装油箱时要确保油箱与发电机组的距离足够,使油箱与发电机组之间有较大的冷却空间,并且要确保油箱安装牢固。
3、安装发电机组,发电机组应平整地安装在稳固的基础上,并弥补
发电机组的安装孔,用润滑脂对螺栓进行润滑,以保证拧紧螺栓时不紧裂。
4、连接电缆,电源线及其他控制线,应按照厂家规定正确安装,将电源线及控制线接在发电机设备上,电缆线不宜曲折,以免影响发电机组的性能。
建筑电气工程施工柴油发电机组安装1一般规定1柴油发电机组安装时施工现场要满足一定的作业条件。
2柴油发电机组及元器件的型号、规格及性能、工作精度,必须符合设计要求和国家现行技术标准的规定。
3柴油发电机组应符合下列规定:(1)依据装箱单,核对主机、附件、专用工具、备品备件和随带技术文件,检查合格证和出厂试运行记录,发电机及其控制柜有出厂试验记录;(2)外观检查:有铭牌,机身无缺件,涂层完整。
4柴油发电机组安装应按以下程序进行:(1)基础验收合格,才能安装机组;(2)地脚螺栓固定的机组经初平、螺栓孔灌浆、精平、禁固地脚螺栓、二次灌浆等机械安装程序;安放式的机组将底部垫平、垫实;(3)油、气、水冷、风冷、烟气排放等系统和隔振防噪声设施安装完成;按设计要求配置的消防器材齐全到位;发电机静态试验、随机配电盘控制柜接线检查合格,才能空载试运行;(4)发电机空载试运行和试验调整合格,才能负荷试运行;(5)在规定时间内,连续无故障负荷试运行合格,才能投入备用状态。
5柴油发电机组空载试运行前,油、气、水冷、风冷、烟气排放等系统和隔振防噪声设施应安装完成,按设计要求配置的消防器材齐全到位,发电机静态试验完成,随机配电盘控制柜接线应检查合格。
2施工准备4.5.2.1技术准备1施工前必须按施工图和已批准的施工组织设计及施工方案进行技术交底,明确施工工艺、操作方法、质量标准、防护安全技术措施等。
2进行技术复核,确定柴油发电机组的基础符合设计要求。
4.5.2.2材料准备柴油发电机组、型钢、螺栓、电焊条、防锈油漆等。
4.5.2.3主要机具1安装机具:手电钻、砂轮切割机、电焊机、气焊工具、压线钳、扳手。
2测试机具:钢卷尺、钢板尺、条式水平仪、塞尺、摇表、万用表、钳式电流表。
4.5.2.4作业条件1机组安装时,建筑土建工程已全部结束,柴油发电机房的房门应满足机组运输与就位要求。
2作业现场的通道必须满足机组的运输与起吊就位。
3供电线出入孔(预埋套管)、排气管预留孔(套管)的标高、几何尺寸等,必须符合设计要求。
柴油发电机组安装指南柴油发电机组是一种常见且重要的发电设备,广泛应用于建筑工地、电力公司、矿山等多个领域。
正确的安装对于发电机组的性能和工作效率具有至关重要的影响。
本文将为您提供一份详细的柴油发电机组安装指南,帮助您正确地安装这一设备。
1.选择合适的安装地点在安装柴油发电机组之前,首先要选择一个合适的安装地点。
考虑到发电机组的重量和噪音问题,最好选择一个干燥、通风、稳定的地方。
确保安装地点远离易燃物品,并能方便进行日常维护和检修。
2.准备工作在开始安装之前,需要进行一些准备工作。
首先是测量安装地点的尺寸,确保发电机组能够顺利放置。
其次,查阅发电机组的技术资料和安装手册,了解设备的规格、要求和安装步骤。
同时,准备好所需的工具和材料,如螺丝刀、扳手、电缆等。
3.固定机组底座根据发电机组的大小和重量,确定合适的底座尺寸,并将其固定在安装地点上。
底座应该稳固并能够承受发电机组的重量。
在安装底座时,确保其水平,并使用螺栓将其牢固地固定在地面上。
4.连接燃油管道和水管道柴油发电机组需要连接燃油管道和水管道以供应燃油和冷却水。
首先,根据技术资料确定管道规格和类型。
然后,将管道连接到相应的接口上,并使用密封胶密封连接处,确保不会发生泄漏。
5.接地发电机组的安装必须进行接地处理,以确保人身安全和设备的正常运行。
首先,选择适当的接地装置,并将其连接到发电机组上。
接着,选择合适的接地点,确保接地电阻符合国家标准。
最后,将接地线连接到接地点上,并进行必要的测试,确保接地有效。
6.电气连接在进行电气连接之前,请务必切断电源。
将发电机组的输出线与主配电盘进行连接,根据接线图将线缆正确连接到相应位置。
确保所有连接牢固可靠,并使用绝缘胶带对接线进行绝缘处理。
完成连接后,仔细检查一遍,确保没有错误和短路等问题。
7.检查设备在安装完成后,进行设备的全面检查是非常重要的。
首先,检查燃油和水管道是否正确连接,并进行泄漏测试。
然后,检查电气连接是否牢固,各个电器元件是否正常工作。
柴油发电机组装安装施工工艺与质量标准一、总则1、范围本标准规定了普通型、应急自动型及全自动型柴油发电机组安装的要求、方法和质量控制标准。
本标准适用于一般工业与民用建筑内100kVA-1500kVA的单台、联机固定式柴油发电机组及其附属设备的安装与调试。
2、规范性引用文件下列文件中的条款通过本标准的引用而成为本标准的条款,内容随最新版本更新适用于本标准。
GB50300-2013《建筑工程施工质量验收统一标准》GB50303-2015《建筑电气工程施工质量验收规范》二、施工准备1、技术准备1.1施工图纸、技术标准、规范,施工组织设计及质量计划等技术资料应齐全。
1.2参与施工的作业人员应具备相应的技术等级和资质。
持证上岗作业。
1.3施工前应组织班组人员熟悉图纸、方案,并应进行安全、技术交底。
2、物资准备材料进场验收:对进场的柴油发电机组实行厂家、甲方、监理单位三方共同确认的方式进行进场材料验收。
3施工设备准备3.1工具用具汽车吊、电工组合工具、扳手、千斤顶、电焊机、压线钳、电钻、电锤、滚杠、撬杠等工具。
3.2监测装置兆欧表、试电笔、万用表、卷尺、水平尺等。
塞尺、水准仪、水平尺、钢卷尺、转速表、兆欧表、卡钳电流表、试电笔、电子点温计、水电阻、真空泵、相序表等。
4作业条件准备4. 1土建工程基本完工,交接检验合格,门窗封闭完好。
4. 2柴油发电机组的安装基础、地脚螺栓孔及电缆管线的位置应符合设计及规范要求。
4. 3柴油发电机组的安装场地清理干净、道路畅通。
三、施工工艺1、施工工艺流程2、基础验收柴油发电机组安装前应根据设计图纸及机组本身的技术文件资料和柴油发电机组本体实物对其设备基础进行全面检査,是否符合安装尺寸要求。
3、设备开箱検验3.1设备开箱检验时应有厂家、甲方、监理单位三方共同确认的方式进行进场材料验收,并做好记录;3.2根据装箱单核对主机、附件、备件及专用工具是否齐全, 检查随机文件及出厂合格证和出厂试运行记录,发电机及其控制柜有出厂试验记录;3.3检查外观无破损,机身无缺件,有铭牌;3.4柴油发电机组及其附属设备均应满足设计要求。
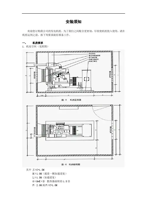
安装须知欢迎您订购我公司的发电机组。
为了我们之间配合更密切,尽快使机组投入使用,请在机组运到之前,按下列要求做好准备工作。
一、机房要求1.机房空间(见附图)其中 J≥C+1.5MB≥1.0M(通道一侧加通道宽)L≥1.5M(加通道宽)G×H=E×D〉散热器面积的1.5倍F〉2.0M或F≥C+1.0M2.通风a.标准型:进风和出风窗的面积应分别大于水箱面积的1.5倍,若通风窗安装保护网或百叶窗,进出口窗其面积各应大于水箱面积的1.65倍。
b.防音型:进、排风窗口总面积为KVA×0.02m3.基础要求安放发电机的基础深度:15-40cm(视机组重量而定),基础下面应夯实处理,经处理后的底层上灌注水泥混凝土,其标号不低于300号,基础长、宽应比发电机机架长、宽各加大40cm。
基础表面应平整。
机房其余地面应用水泥混凝土处理。
基础混凝土厚度计算公式:D=W/(L×B×Ds)D=混凝土厚度(cm)W=机组重量(kg)L=机组长度(cm)B=机组宽度(cm)Ds=混凝土比重(如无数据,采用2403kg/m )二、燃油箱为确保供给燃油的清洁度,请用户安装1-2个备用大油罐,若采用自流式,油罐底面与机组平面应保证有一定高度差。
在大油罐出油管路上要安装1-2个国产大功率发动机用柴油滤清器。
三、排气管排气管道应由用户准备与安装。
其排气管直径为排气口直径的1.5倍左右。
排气管道长度应控制在6米以内,超过6米管径应相应加大。
四.电缆配备(见下表)为了保证安装,请尽可能选用软电缆。
电流计算公式:常用机组: KVA×1.67=A备用机组: KVA×1.52=A五.ATS自动转换开关柜配置市电与自发电切换开关,如要自投网,请同时订购配置有手动装置的ATS柜。
六.接地线在浇注基础混凝土时,要预埋接地铜棒,作为机组接地线用。
七.润滑油选择机油必须为国际标准之15W/40型号,建议采用进口产品,如壳牌「劲霸」X-40或壳牌「灵妙拿」15W/40或壳牌「万灵拿」15W/40或无比「黑霸王」15W/40等等。
柴油发电机组的组装及安装说明书一、引言柴油发电机组作为一种广泛应用于各个领域的重要设备,其组装和安装对其正常运行和使用起着至关重要的作用。
本文将为您提供详细的柴油发电机组组装及安装说明,以确保您正确、安全地完成该过程。
二、组装过程1. 准备工作在开始组装柴油发电机组前,您需要准备以下工具和设备:- 手动工具(扳手、榔头等)- 电动工具(电钻、电动起子等)- 适量的润滑油- 相应规格的螺丝、螺母等2. 组件安装按照以下步骤依次进行组件的安装:a) 安装发动机:将发动机安装到底座上,并根据厂家提供的装配图纸进行连接。
确保发动机与底座之间的接口处使用适当的密封垫,以确保无漏油情况。
b) 安装发电机:采用正确的配合装配原则,将发电机固定在合适的位置上,并使用螺栓进行紧固。
在连接电缆之前,确保电缆端头清洁,并使用绝缘套进行保护。
c) 安装控制面板:根据发电机组的型号和规格,将控制面板安装在便于操作和监控的位置上,并正确连接电缆。
3. 连接管道a) 连接燃油管道:根据发动机和供油系统的要求,连接燃油进、出管道,确保管道连接牢固、密封良好。
b) 连接冷却水管道:将冷却水管道连接至发动机的冷却系统,确保水流通畅、无渗漏。
c) 连接排气管道:将排气管道连接至发动机的排气系统,确保排气顺畅、无泄漏。
4. 电气连接按照以下步骤进行电气连接:a) 连接电瓶:将电瓶的正负极正确连接到发电机组控制面板的电源接口上。
b) 连接自启动控制器:根据发电机组的型号和规格,将自启动控制器正确连接至控制面板,并按照说明进行接线。
c) 连接负载电缆:将负载电缆正确连接到控制面板的输出接口上,并确保接线正确牢固。
三、安装注意事项在柴油发电机组的组装和安装过程中,需要特别注意以下事项:- 勿将发电机组暴露在高温、潮湿等恶劣环境下,以免影响正常使用寿命。
- 在组装过程中,应仔细查看和检查每个组件的质量和状态,确保无缺损和松动的现象。
- 所有电气连接和接线应符合国家的安全标准,并且按照正确的接线方法进行。
柴油发电机组安装规程
1. 工艺流程
基础验收→设备开箱检验→机组安装→机组外围管线及接线施工验收→发电机静态实验和随机配电柜控制柜接线检查→发电机空载试运行和试验调整→发电机负荷试运行。
2. 控制要点
2.1 柴油发电机组应符合设计或规范。
2.2 管道支架应有减振措施。
2.3 防爆灯具及管道应符合规范。
2.4 防雷接地应符合设计或规范要求。
2.5 燃油系统及管道应有防静电措施。
3. 质量要求
本章节适用于一般工业与民用建筑的柴油发电机组及其附属设备的安装:
3.1 发电机应做出厂试验,并有出厂检验合格证明,柴油发电机组安装完成以后,做交接试验。
3.2 发电机组的中性线(工作零线)应与接地干线直接连接,螺栓防松零件齐全,且有标识。
3.3 柴油发电机本体和机械部分的外露可导电部分应分别与保护导体可靠连接,并应有标识。
3.4 燃油系统的设备及管道的防静电接地点不少于两处,接地电阻<10Ω。
3.5 发电机组至配电柜馈电线路的相间、相对地间的绝缘电阻值,低压馈电线路不应小于0.5MΩ,高压馈电线路不应小于1MΩ/KV。
3.6 柴油发电机馈电线路连接后,两端的相序应与原供电系统的相序一致。
柴油发电机组整体实例图
发电机组油路安装实例图
防爆管安装实例图。
柴油发电机安装要求
柴油发电机安装要求如下:
1.柴油发电机组安装地点需通风良好,发电机端应有足够的进风
口,柴油机端应有良好的出风口。
出风口面积应大于水箱面积
1.5倍以上。
2.柴油发电机组安装地的周围应保持清洁,避免在附近放置能产
生酸性、碱性等腐蚀性气体和蒸汽的物品。
有条件的应配置灭火装置。
3.在室内使用,必须将排烟管道通导室外,管径必须≥消音器的
出烟管直径,所接之管路的弯头不宜超过3个,以保证排烟畅通,并应将管子向下倾斜5-10度,避免雨水注入;若排气管
时垂直向上安装的,则必须加装防雨罩。
4.柴油发电机组外壳必须有可靠的保护接地,对需要有中性点直
接接地的发电机,则必须由专业人员进行中性接地,并配置防雷装置,严禁利用市电的接地装置进行中性点直接接地。
与市电的双向开关必须十分可靠,以防倒送电。
双向开关的接线可靠性需经过当地供电部门的检验认可。
5.安装时需保证机体安装平稳,机体四周应留有不小于1米空
间,水箱端根据水箱芯子大小留置通风窗。
以上就是柴油发电机安装过程中的一些主要要求,以确保发电机的安全可靠运行。
柴油发电机组安装施工质量验收规范一、引言柴油发电机组是一种常见的发电设备,广泛应用于各个领域。
为了确保安装施工质量,需要进行严格的验收。
本文将介绍柴油发电机组安装施工质量验收规范。
二、设备准备1. 设备清单在进行柴油发电机组安装施工验收前,需准备一份设备清单,包括主机、辅机、电缆、电缆支架等。
2. 设备检查对每个设备进行检查,确保设备完整无损,并记录在验收报告中。
三、安装施工要求1. 安全要求安装施工过程中,必须遵守相关安全规范,如佩戴安全帽、穿戴防护服等。
2. 环境要求安装施工现场应干燥、无明火、无易燃物品等,确保施工环境安全。
3. 机组定位根据工程图纸和相关规范要求,将柴油发电机组定位在合适的位置,并进行固定。
4. 电缆敷设按照设计要求敷设电缆,并保证电缆的弯曲半径符合规范要求,避免损坏。
5. 接地系统完成柴油发电机组的接地系统建设,确保接地电阻符合规范要求。
6. 冷却系统确保柴油发电机组冷却系统安装正确,并进行泄露测试。
7. 燃油系统安装柴油发电机组燃油系统,包括燃油管路、燃油过滤器等,确保系统无泄漏。
8. 排气系统安装柴油发电机组排气系统,确保排气通畅。
9. 控制系统完成柴油发电机组控制系统的安装、布线等,确保系统可靠。
四、质量验收1. 外观检查对柴油发电机组进行外观检查,包括机组外壳、风扇、仪表盘等,确保无损坏。
2. 电气检查按照相关规范要求,对柴油发电机组的电气系统进行检查,包括电压、电流、功率因素等。
3. 运行试验对柴油发电机组进行运行试验,包括启动、运行、负载等,确保机组稳定。
4. 噪音测试进行柴油发电机组的噪音测试,确保噪音水平符合规范要求。
五、验收结果处理根据柴油发电机组安装施工质量验收结果,分为合格和不合格两种情况。
1. 合格若柴油发电机组安装施工质量验收合格,可投入正常使用,并进行相关记录和归档。
2. 不合格若柴油发电机组安装施工质量验收不合格,需进行整改和重新验收,直至合格为止。
1. 总则本工艺规程为船厂有关部门装焊、加工柴油机发电机组基座以及吊运安装柴油机发电机组的施工及施工验收的依据。
本工艺规程编制的主要依据是:参照首艇《039产品柴油发电机组安装工艺规程》;柴油发电机组安装技术条件(039F5-420-1);柴油发电机组安装图(039F5-421-1)。
2. 柴油发电机组安装前的准备2.1柴油发电机组的基座在样板控制下制造和装焊完,并经船体检验合格。
2.2 按图纸039F5-162.15-1和039F5-162.16-2,根据船体提供的基座中心线理论点及船体中心线理论点,拉钢丝线复查各种开挡尺寸。
2.2.1基座面板内端面到基座中心线尺寸(理论尺寸499mm)_____ 或基座面板两侧开挡尺寸(998mm)______ 。
2.2.2基座中心线到船体中心的尺寸(理论尺寸1050mm)。
2.2.3用平尺和水平仪测量同台机组基座面板相对应的水平度,作好斜度标记及记录。
2.2.4基座面板被加工面距耐压壳体船体中心线面底部内缘尺寸(理论尺寸891mm)。
2.2.5基座面板宽度尺寸(理论尺寸286mm)_______ 。
2.2.6用平尺、水平仪及塞尺测量横向相邻两台基座的高度差(加工后允许w 士2mm)__ ,并作记录。
2.3 V舱其它大型设备的基座(除液压泵机座外)焊接完毕,但中间铺板的垂直支撑(039F5-151.15-16,件39;039F5-151.45-18,件31)先点焊,待基座面板加工完后再装焊,内部液舱密试报检完毕。
2.4 柴油发电机组基座加工及检验2.4.1 柴油发电机组基座用专用铣床加工;专用铣床的定位安装要求;纵向水平w 0.20mm/m,横向水平w 0.10mm。
2.4.2 基座面板铣削加工要求:每条支承面板的纵向水平w 0.30mm/m。
横向水平(在面板宽度范围内)w 0.15mm。
加工表面粗造度要求:Ra w 6.3卩m。
基座面板最薄厚度为24mm。
柴油发电机组主要的安装方案引言柴油发电机组是一种常用的备用电源设备,用于提供电力以应对停电或紧急情况。
对于发电机组的安装方案来说,不仅要考虑到安全性和可靠性,还要考虑到操作方便和维护便捷等因素。
本文将介绍柴油发电机组主要的安装方案,并以Markdown文本格式输出。
安装地点选址安装地点的选址是安装柴油发电机组时的首要考虑因素。
一般来说,柴油发电机组应安装在室外或配备专门的机房。
选址时应考虑以下几个因素:1.空间要求:发电机组需要有足够的空间进行冷却和通风。
因此,选址时要确保有足够的空间容纳发电机组和附属设备。
2.供电要求:发电机组需要接入主电网或其他电力供应设备,因此选址时要确保有稳定的电力供应。
3.噪音和振动:发电机组运行时会产生噪音和振动,选址时要尽量远离居民区和噪音敏感区,以减少对周围环境的影响。
机房设计如果选择在机房内安装柴油发电机组,需要进行机房设计。
以下是一些常见的机房设计要点:1.机房结构:机房应该具备良好的隔音和隔热性能,以减少发电机组运行时的噪音和热量对机房周围环境的影响。
同时,机房的结构要稳固,能够承受发电机组的重量和振动。
2.通风系统:机房内应配置足够的通风系统,以确保发电机组和附属设备的正常运行和散热。
通风系统可以包括新风系统和排风系统,可以通过设置通风口和风扇等设备实现。
3.防火措施:机房应配备消防设备和系统,以应对火灾风险。
防火设备可以包括火灾报警器、灭火器、喷淋系统等。
4.进出口道设计:机房应设有合适的进出口道,以便发电机组的运输、安装和维护。
进出口道可以通过设置门和斜坡等设施来实现。
室外安装方案如果选择在室外安装柴油发电机组,需要考虑以下几个因素:1.底座和固定:发电机组需要设置坚固的底座,并采取适当的固定措施,以防止发电机组在外部环境和恶劣天气条件下受到损坏或倾斜。
2.防护措施:室外安装的发电机组需要进行防护,以抵御日晒、雨水和风沙等自然环境的影响。
可以采用防水罩、遮阳篷和风沙网等设施来实现。
柴油发电机组安装规范
一、
令狐采学
二、发电机组的安装
1、机组安装前的准备工作
⑴ 机组的搬运
在搬运时应注意将起吊的绳索应系结在适当的位置,轻吊轻放。
当机组运到目的地后,应尽量放在库房内,如果没有库房需要在露天存放时,则将油箱垫高,防止雨水侵湿,箱上应加盖防雨帐篷,以防日晒雨淋损坏设备。
由于机组的体积大,重量很重,安装前应先安排好搬运路线,在机房应预留搬运口。
如果门窗不够大,可利用门窗位置预留出较大的搬运口,待机组搬入后,再补砌墙和安装门窗。
⑵开箱
开箱前应首先清除灰尘,查看箱体有无破损。
核实箱号和数量,开箱时切勿损坏机器。
开箱顺序是先折顶板、再拆侧板。
拆箱后应做以下工作:
①根据机组清单及装箱清单清点全部机组及附件;
②查看机组及附件的主要尺寸是否与图纸相符;
③检查机组及附件有无损坏和锈蚀;
④如果机组经检查后,不能及时安装,应将拆卸过的机件精加工面上重新涂上防锈油,进行妥善保护。
对机组的传动部分和
滑动部分,在防锈油尚未清除之前不要转动。
若因检查后已除去防锈油,在检查完后应重新涂上防锈油。
⑤开箱后的机组要注意保管,必须水平放置,法兰及各种接口必须封盖、包扎、防止雨水及灰沙浸入。
⑶划线定位
按照机组平面布置图所标注的机组与墙或者柱中心之间、机组与机组之间的关系尺寸,划定机组安装地点的纵、横基准线。
机组中心与墙或者柱中心之间的允许偏差为20mm,机组与机组之间的允许偏差为10mm.
⑷检查设备准备安装
检查设备,了解设计内容和施工图纸,根据设计图纸所需的材料进行备料,并按施工计划将材料按先后顺序送入施工现场。
如果无设计图纸,应参考说明书,并根据设备的用途及安装要求,同时考虑水源、电源、维修和使用等情况,确定土建平面的大小及位置,画出机组布置平面图。
⑸准备起吊设备和安装工具
2、机组的安装
⑴测量基础和机组的纵横中心线
机组在就位前,应依照图纸“放线”画出基础和机组的纵横中心线及减振器定位线。
⑵ 吊装机组
吊装时应用足够强度的钢丝绳索在机组的起吊位置,不能套在
轴上,也要防止碰伤油管和表盘,按要求将机组吊起,对准基础中心线和减振器,并将机组垫平。
⑶ 机组找平
利用垫铁将机器调至水平。
安装精度是纵向和横向水平偏差每米为0.1mm。
垫铁和机座之间不能有间隔,使其受力均匀。
三、排烟管的安装
排烟管的暴露部分不应与木材或其他易燃性物质接触。
烟管的承拓必须允许热膨胀的发生、烟管能防止雨水等进入。
排烟管的铺设有两种方式:
⑴、水平架空:优点是转弯少、阻力小;缺点是室内散热差、机房温度高。
⑵、地沟内铺设:优点是室内散热好;缺点转弯多、阻力大。
4、机组的排烟管的温度高,为防止烫伤操作员和减少辐射热对机房温度的提升,宜进行保温处理、保温耐热材料可采用玻璃丝或硅酸铝包扎,可起隔热、降噪作用。
四、排气系统的安装
⑴、柴油发电机组的排气系统工作界定是指柴油发电机组在机房内基础上安装完毕后,由发动机排气口连接至机房的排气管道。
⑵、柴油发电机组排气系统包括和发动机标准配置的消声器、波纹管、法兰、弯头、衬垫和机房连接至机房外的排气管道。
排气系统应尽可能减少弯头数量及缩短排气管的总长度袁否则袁就会导致机组的排气背压增大袁而使机组产生过多的功率损
失及影响机组的正常运行和降低机组正常的使用寿命遥柴油发电机组技术资料中所规定的排气管径一般是基于排烟管总长为6m及最多一个弯头和一个消声器的安装实例袁当排气系统在实际
安装时袁已超出了所规定的长度及弯头的数量袁则应适当加大排气管径袁其增大的幅度取决于排气管总长和弯头数量遥从机组增压器排气总管接出的第一段管道袁必须包含一柔性波纹管段袁该波纹管已随机配套给客户遥排气管第二段应被弹性支承袁以避免排气管道安装不合理袁或机组运行时排气系统因热效应而产生的相对位移
引起的附加侧应力和压应力加到机组上遥排气管道的所有支承机构和悬吊装置均应有一定的弹性遥当机房内有一台以上机组时袁切记每台机组的排气系统均应独立设计和安装袁绝不允许让不同的机组共用一个排气管道袁以避免机组运行时袁因不同机组的排气压力不同而引起的异常窜动袁及增大排气背压和防止废烟废气通过共用管道回流袁影响机组正常的功率输出袁或甚至引起机组的损坏遥
五、电气系统的安装
⑴电缆的敷设方式
电缆的敷设方式有直接埋地、利用电缆沟和沿墙敷设等几种。
⑵电缆的敷设路径的选择
选择电缆的敷设路径时,应考虑以下原则:
①电力路径最短,拐弯最少;
②使电缆尽量少受机械、化学和地中电流等因素的作用而损坏;散热条件要好;
尽量避免与其他管道交叉;
应避开规划中要挖土的地方。
⑶电缆敷设的一般要求
敷设电缆,一定要遵守有关技术规程所规划和设计要求。
①在敷设条件许可的条件下,电缆长度可考虑1.5﹪~2﹪的余量,以作为检修时的备用,直埋电缆应作波浪形埋设。
②对于电缆引入或引出建筑物或构筑物、电缆穿过楼板及主要墙壁处、从电缆沟道引出至电杆,或沿墙壁敷设的电缆在地面上2m高度及埋入地下0.25m深的一段。
电缆应穿钢管保护,钢管内径不得小于电缆外径的2倍。
③电缆与不同管道一期埋设时,不允许在敷设煤气管、天然气管及液体燃料管路的沟道中敷设电缆;少数电缆允许敷设在水管或通风道的明沟或隧道中,或者与这些沟交叉,在热力管道的明沟或隧道中,一般不要敷设电缆;特殊情况下,如不致电缆过热时,可允许少数电缆允许敷设在热力管道的沟道中,但应分隔在不同侧,或将电缆安装在热力管道的下面。
④直埋电缆埋地深度不得小于0.7m ,其壕沟离建筑物基础不得
0.6m。
⑤电缆沟的结构应考虑到防火和防水的问题。
⑥电缆的金属外皮、金属电缆头及保护钢管和金属支架等,均应可靠的接地。
为方便及安全起见,建议客户在进行机组至ATS尧配电盘及并车柜的电缆连接时,应将电缆预敷设于电缆槽,并作防渗透、防漏电处理,电气联接必须接触可靠,防止震动而引起的松动,扭断及绝缘的损伤。
六、油管的安装
1、油管应为黑铁无缝钢管而不能采用镀锌管,油管走向应尽可能避免燃油过度受发动机散热的影响。
喷油泵前的燃油最高允许温度为60至70,视机型不同而定。
建议在发动机和输油管之间采用软连接,并确保发动机与油箱之间的输油管不会发生泄漏。
六、安装工作的调试验收
1、机组的启封
机组出厂时,为了防止外部金属件锈蚀,有的部位进行了油封处理。
因此,新机组安装完毕,并通过检验,在符合安装要求以后,必须启封才能起动。
清洗擦除机组外部防锈油;
将60℃的热水加入冷却系统,使其分别从水泵、机体和全损耗系统用油冷却器放水开关流出,冲洗冷却系统,并软化曲轴连杆机构的防锈油。
用清洗柴油清洗油底壳,并加入清洁的柴油。
2、机组的检查
柴油机的检查
检查机组表面是否彻底清除干净,地脚螺帽有无松动现象,发
现问题,及时紧固;
检查汽缸压缩力、转动曲轴检听各缸机件运转有无异常响声,曲轴转动是否自如,同时将全损耗系统用油泵入各摩擦表面,人力撬动曲轴,感觉很费力和有反推力(弹力),表示压缩正常;检查燃油供给系统的情况
检查燃油箱上的通气孔是否畅通,如有污物应清除干净。
加入的柴油是否符合要求的牌号,油量是否足够,然后再打开油路开关;
旋松柴油滤清器或喷油泵的放气螺钉,用手泵泵油,排除油路中的空气;
检查各油管接头有无漏水现象,如有问题应及时处理。
检查水冷却系统的情况
检查水箱,如水量不足,应加足清洁的软水或防冻液;
检查各水管接头有无漏水现象,如有问题应及时处理;
检查传动带的松紧度是否适当。
其方法是用手压传动带的中部,传动带
检查润滑系统的情况
a.检查各全损耗系统用油管接头有无漏油现象,如有问题应及时处理;
b.检查油底壳的全损耗系统用油量,抽出全损耗系统用油尺,观察全损耗系统
c.用油的高度是否符合规定的要求,如不符合应进行调整。
a.检查蓄电池电解液的密度,其正常值为1.24-1.28,当密度小于
1.180时,b.表明电池量不足,应给电池充电;
c.检查电路是否连接正确;
d.检查蓄电池接线柱上有无积污和氧化现象,若有应清洁干净;
e.检查启动电动机及电磁操作机构及其他电气是否接触良好。
2、交流发电机的检查
单轴承发电机的机械耦合要特别注意,转子间的气息要均匀;按原理图和接线图,选择合适的电力电缆,用铜接头来接线,铜接头与汇流排、汇流排与汇流排固定紧后,其接头的间隙大于0.05mm。
导线间的距离要大于10mm,还需要加装必要的接地线;
发电机出线盒内的接线端子标有:U、V、W和N,它不表示实际的相序,实际的相序取决于发电机的转向。
合格证上引有UVW表示顺时针旋转时的相序,VUW则表示逆时针旋转时的实际相序;
检查控制屏的接线是否有脱落,必要时逐一检查。