_钢筋算量计算公式
- 格式:ppt
- 大小:765.50 KB
- 文档页数:10
钢筋算量公式一、基础1、独立基础:(1)长宽小于2500mm长度=总长—2c(保护层)根数=[总长—2×min(75,s/2)]÷间距+1(2)长宽大于等于2500mm长度=总长—c—0.1L(基础长宽)根数=[总长—min(75,s/2)—c]÷间距+12、圆形独立基础:(1)正交配筋长度=2×根号下[R²-(R-h拱高)²]-2c根数=[D—2×min(75,s/2)]÷间距+1(2)放射配筋径向钢筋长度=D—2c 根数=π(R—c)÷间距环行钢筋长度=π(R1—c)根数=[R—min(75,s/2)]÷间距其中R1依次减小3、条形基础:受力筋的长度=板底宽度—2c根数=(总长—2×s/2)÷间距+1分布筋长度=净长+2c+2×150根数=(底板宽度—2×s/2)÷间距+14、基础梁:底部贯通筋=总长+2×50—2c+2×15d顶部贯通筋=总长+2×50—2c+2×12d基础梁柱内有箍筋箍筋起始距离为50mm底部端部不贯通筋=轴间距÷3+伸至端部-c+15d底部中部不贯通筋=(轴间距÷3) ×2顶部端部不贯通筋=轴间距÷3+伸至端部-c+12d顶部中部不贯通筋=(轴间距÷3) ×2梁顶一平变截面的底部外伸贯通筋:伸至外伸尽端弯折12d,外伸段按斜长计算。
顶部伸至外伸尽端弯折12d。
梁底一平变截面的顶部外伸贯通筋:伸至外伸尽端弯折12d,外伸段按斜长计算。
底部伸至外伸尽端弯折12d。
梁底有高差的(高差小于梁高):底部—梁底高差坡度为45°,低部钢筋锚进高粱内la,高部钢筋伸进低梁la。
顶部—低位钢筋锚入lae,高位上排钢筋伸至住外边下弯至低位梁顶再加lae,高位下排钢筋总锚长lae。
钢筋重量计算公式...1、每米的重量(Kg)=钢筋的直径(mm)×钢筋的直径(mm)×0.00617钢筋理论重量表2、毎米钢筋的重量,可通过下列计算公式,适用于任何不同直径钢筋。
一、重量等于直径乘直径乘0.00617即0.00617 d²=XXX㎏/m二、1、W=πr²×L×ɡ÷1/10002、W=π×d²/4×L×ɡ×1/1000=πd²/4×L×ɡ×1/1000。
式中:W——重量;(单位:公斤)d——钢筋直径;(单位:毫米)π——圆周率:3.1416;r——钢筋半径;(单位:毫米)L——长度;(单位、米)ɡ——比重7.85(克/厘米³)【例】钢筋直径10mm,求其毎米理论重量?解:①W=0.00617 d²=0.00617×10×10=0.617(㎏/m)。
②W=πr²×L×ɡ÷1/1000=3.1416×5²×1×7.85×0.001=0.617(㎏/m)③W=π×D²/4×L×ɡ×1/1000=3.1416÷4×10²×1×7.85×0.001=0.7854×100×1×0.00785=0.616539(㎏/m)=0.617(㎏/m)钢筋Φ6 ;kg/m 0.222钢筋Φ8 ;kg/m 0.3950钢筋Φ10 ;kg/m 0.6169钢筋Φ12 ;kg/m 0.8880钢筋Φ14 ;kg/m 1.21钢筋Φ16 ;kg/m 1.5800钢筋Φ18 ;kg/m 2钢筋Φ20 ;kg/m 2.4700钢筋Φ22 ;kg/m 2.98钢筋Φ25 ;kg/m 3.8500钢筋Φ28 ;kg/m 4.8300钢筋Φ32 ;kg/m 6.3100钢筋Φ36 ;kg/m 7.9900钢筋Φ40 ;kg/m 9.8700钢筋Φ50 ;kg/m 15.42钢筋重量(kg)=0.00617*钢筋直径*钢筋直径*钢筋长度,钢筋直径用mm单位,长度用m 单位,算出来重量就是Kg。
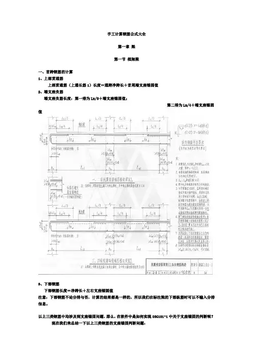
手工计算钢筋公式大全第一章梁第一节框架梁一、首跨钢筋的计算1、上部贯通筋上部贯通筋(上通长筋1)长度=通跨净跨长+首尾端支座锚固值2、端支座负筋端支座负筋长度:第一排为Ln/3+端支座锚固值;第二排为Ln/4+端支座锚固值3、下部钢筋下部钢筋长度=净跨长+左右支座锚固值注意:下部钢筋不论分排与否,计算的结果都是一样的,所以我们在标注梁的下部纵筋时可以不输入分排信息。
以上三类钢筋中均涉及到支座锚固问题,那么,在软件中是如何实现03G101-1中关于支座锚固的判断呢?现在我们来总结一下以上三类钢筋的支座锚固判断问题:支座宽≥Lae且≥0.5Hc+5d,为直锚,取Max{Lae,0.5Hc+5d }。
钢筋的端支座锚固值=支座宽≤Lae或≤0.5Hc+5d,为弯锚,取Max{Lae,支座宽度-保护层+15d }。
钢筋的中间支座锚固值=Max{Lae,0.5Hc+5d }4、腰筋构造钢筋:构造钢筋长度=净跨长+2×15d抗扭钢筋:算法同贯通钢筋5、拉筋拉筋长度=(梁宽-2×保护层)+2×11.9d(抗震弯钩值)+2d拉筋根数:如果我们没有在平法输入中给定拉筋的布筋间距,那么拉筋的根数=(箍筋根数/2)×(构造筋根数/2);如果给定了拉筋的布筋间距,那么拉筋的根数=布筋长度/布筋间距。
6、箍筋箍筋长度=(梁宽-2×保护层+梁高-2×保护层)+2×11.9d+8d箍筋根数=(加密区长度/加密区间距+1)×2+(非加密区长度/非加密区间距-1)+1注意:因为构件扣减保护层时,都是扣至纵筋的外皮,那么,我们可以发现,拉筋和箍筋在每个保护层处均被多扣掉了直径值;并且我们在预算中计算钢筋长度时,都是按照外皮计算的,所以软件自动会将多扣掉的长度在补充回来,由此,拉筋计算时增加了2d,箍筋计算时增加了8d。
(如下图所示)7、吊筋吊筋长度=2*锚固+2*斜段长度+次梁宽度+2*50,其中框梁高度>800mm 夹角=60°≤800mm夹角=45°二、中间跨钢筋的计算1、中间支座负筋中间支座负筋:第一排为Ln/3+中间支座值+Ln/3;第二排为Ln/4+中间支座值+Ln/4注意:当中间跨两端的支座负筋延伸长度之和≥该跨的净跨长时,其钢筋长度:第一排为该跨净跨长+(Ln/3+前中间支座值)+(Ln/3+后中间支座值);第二排为该跨净跨长+(Ln/4+前中间支座值)+(Ln/4+后中间支座值)。
柱钢筋1.柱纵筋单根长度=柱基础内插筋+柱净高+锚固长度+搭接长度搭接个数搭接长度Lle:如为机械连接或焊接连接时;搭接长度为0a.柱基础内插筋长度=基础高-基础保护层+弯折长度搭接长度Lle:如果考试时候题中说明为不考虑;不用计算弯折长度:当基础高>LaE时;弯折长度为max6d;150当基础高≤LaE时;弯折长度为15db.柱净高长度:基础顶面——顶层梁地面之间的垂直高度c.顶层锚固长度:①中柱锚固长度=梁高-保护层+12d②边、角柱锚固长度:⑴内侧钢筋锚固长度同中柱⑵外侧钢筋锚固长度:1.5LaE考试用2.柱箍筋:单根长度=b-2c+h-2c2+2max10d;75b.柱宽;h.柱高;c.柱保护层根数=加密区长度/加密区间距+1+非加密区长度/非加密区间距-1加密区长度:①嵌固部分以上长度为:hn/3hn本层柱净高②非嵌固部分以上长度为:maxhc;hn/6;500考试用③柱梁节点加密区长度为:梁高+maxhc;hn/6;500考试用④当有刚性地面时;除柱端钢筋加密区外尚应在刚性地面上、下各500mm的高度范围内加密箍筋..梁钢筋1.梁上部纵筋长度=总净跨长+左锚固+右锚固+搭接长度搭接个数搭接长度:如为机械连接或焊接连接时;搭接长度为0左右锚固长度:当hc-保护层<LaE时;弯锚;锚固长度=支座宽-保护层+15d当hc-保护层≥LaE时;直锚;锚固长度=maxLaE;0.5hc+5d保护层:是柱保护层2.下部通长筋长度=净跨长+左锚固+右锚固+搭接长度搭接个数左右锚固长度:同梁上部钢筋下部钢筋在中支座中的锚固能直锚的时候直锚3.上部端支座负筋:第一排=1/3净跨长+左右锚固长度第二排=1/4净跨长+左右锚固长度左右锚固长度:同梁上部钢筋4.上部中间支座负筋:第一排=1/3净跨长2净跨长取相邻两跨最大值+支座宽第二排=1/4净跨长+2净跨长取相邻两跨最大值+支座宽5.架立筋单长=净跨长-净跨长/32+15026.箍筋单长2肢箍=长-2保+宽-2保2+2max10d;75根数加密区根数=加密区长度-50/加密区间距+12非加密区根数=净跨长-2加密区长度/非加密区间距-1加密区长度:一级抗震:max2Hb;500二级——四级抗震:max1.5Hb;5007.侧面纵向钢筋腰筋构造筋长度G打头的钢筋=净跨长+215d抗扭筋长度N打头的钢筋=净跨长+2锚固长度锚固长度同框架梁下部钢筋8.拉筋:当梁宽≤350时;拉筋直径为6计算工程量时用6.5来计算当梁宽>350时;拉筋直径为8拉筋单长=梁宽-2保+2max10d;75拉筋根数=净跨长-502/非加密区间距2+1腰筋根数/29.附加吊筋:吊筋单根长度=次梁宽+250+2梁高-2保/sin45°sin60°+220d当主梁高≤800时;吊筋角度为45度;当主梁高>800时;吊筋角度为60度.备注:主次梁相交处;注意附件的箍筋10.屋面框架梁屋面梁上部通长筋=总净跨长+左锚固+右锚固+搭接长度搭接个数搭接长度:如为机械连接或焊接连接时;搭接长度为0左右锚固长度=支座宽-保护层+梁高-保护层保:为柱的保护层板钢筋1.板底受力筋单根长度=净跨长+左伸长度+右伸长度+弯钩长度2板面受力筋单根长度=净跨长+锚固长度2板底受力筋根数=板面受力筋根数=分布范围/板筋间距+1伸出长度:端支座为梁、圈梁、剪力墙时;伸出长度=max1/2支座宽;5d端支座为砌体墙时;伸出长度=max1/2墙厚;120;板厚180°弯钩长度=6.25d当钢筋为一级钢时;末端需加180°弯钩锚固长度:支座宽-保护层≥la时;直锚;直锚长度=la支座宽-保护层<la时;弯锚;弯锚长度=支座宽-保护层+15d分布范围=净跨长-1/2板筋间距22.端支座板负筋长度=锚入长度+板内净尺寸+弯折长度中间支座板负筋长度=左标注长度+右标注长度+弯折长度2注意标注的长度是否含支座宽负筋根数=布筋范围/板负筋间距+1锚入长度:支座宽-保护层≥la时;直锚;直锚长度=la支座宽-保护层<la时;弯锚;弯锚长度=支座宽-保护层+15d弯折长度:板厚-保护层2保护层为板的保护层布筋范围:净跨长-1/2板筋间距23.分布筋单根长度=净跨轴线长度-负筋标注长度2+搭接长度2搭接长度:分布筋与负筋的搭接长度为150mm端支座分布筋根数=负筋板内净长-1/2板分布筋间距/分布筋间距+1中间支座分布筋根数=左侧板内净长-1/2板分布筋间距/分布筋间距+1+右侧板内净长-1/2板分布筋间距/分布筋间距+1独立基础钢筋1.独立基础底板长度<2500时X方向底板钢筋单根长度=X方向的基础边长-2保护层X方向底板钢筋根数=Y方向的基础边长—min75;S/22/S+1S为X方向独立基础钢筋的分布间距Y方向底板钢筋单根长度=Y方向的基础边长-2保护层Y方向底板钢筋根数=X方向的基础边长—min75;S/22/S+1S为X方向独立基础钢筋的分布间距1.独立基础底板长度≥2500时X方向底板钢筋单根长度:①外侧钢筋单根长度=X方向的基础边长-2保护层外侧钢筋根数:2根②其余钢筋单根长度=X方向的基础边长-保护层-0.1X方向的基础边长其余钢筋根数=Y方向的基础边长—min75;S/22/S-1Y方向底板钢筋单根长度:①外侧钢筋单根长度=Y方向的基础边长-2保护层外侧钢筋根数:2根②其余钢筋单根长度=Y方向的基础边长-保护层-0.1Y方向的基础边长其余钢筋根数=X方向的基础边长—min75;S/22/S-1。
一、首跨钢筋的计算1、上部贯通筋上部贯通筋(上通长筋1)长度=通跨净跨长+首尾端支座锚固值2、端支座负筋端支座负筋长度:第一排为Ln/3 +端支座锚固值;第二排为Ln/4 +端支座锚固值3、下部钢筋下部钢筋长度=净跨长+左右支座锚固值注意:下部钢筋不论分排与否,计算的结果都是一样的。
现03G101-1 中关于支座锚固的判实以上三类钢筋中均涉及到支座锚固问题,那么,是如何断呢?现在我们来总结一下以上三类钢筋的支座锚固判断问题:(1)、支座宽≥Lae 且≥0.5Hc +5d,为直锚,取M ax{Lae ,0.5Hc +5d } 。
M ax{Lae ,支座宽(2)、钢筋的端支座锚固值=支座宽≤Lae 或≤0.5Hc +5d,为弯锚,取度-保护层+15d } 。
(3)、钢筋的中间支座锚固值=Max{Lae ,0.5Hc+5d }4、腰筋构造钢筋:构造钢筋长度=净跨长+2×15d抗扭钢筋:算法同贯通钢筋5、拉筋-2×保护层)+2×11.9d (抗震弯钩值)+2d拉筋长度=(梁宽拉筋根数:如果我们没有给定拉筋的布筋间距,那么拉筋的根数=(箍筋根数/2 )×(构造筋根数/2);如果给定了拉筋的布筋间距,那么拉筋的根数=布筋长度/ 布筋间距。
6、箍筋-2×保护层+梁高-2 ×保护层)+2×11.9d +8d箍筋长度=(梁宽1)+1箍筋根数=(加密区长度/加密区间距+1 )×2+(非加密区长度/非加密区间距-注意:因为构件扣减保护层时,都是扣至纵筋的外皮,那么,我们可以发现,拉筋和箍筋在值;并且我们在预算中计算钢筋长度时,都是按照外皮计算每个保护层处均被多扣掉了直径的,所以将多扣掉的长度在补充回来,由此,拉筋计算时增加了2d,箍筋计算时增加了8d。
(如下图所示)7、吊筋度+2*50 ,其中框梁高度>800mm 夹角吊筋长度=2* 锚固+2* 斜段长度+ 次梁宽=60 °≤800mm 夹角=45 °二、中间跨钢筋的计算1、中间支座负筋中间支座负筋:第一排为Ln/3 +中间支座值+Ln/3 ;第二排为Ln/4 +中间支座值+Ln/4注意:当中间跨两端的支座负筋延伸长度之和≥该跨的净跨长时,其钢筋长度:第一排为该跨净跨长+(Ln/3 +前中间支座值)+(Ln/3 +后中间支座值);第二排为该跨净跨长+(Ln/4 +前中间支座值)+(Ln/4 +后中间支座值)。
钢筋的每米重量计算公式
1.钢筋的每米重量可以通过以下公式计算:
每米重量(kg/m)= 钢筋的密度(kg/dm³)×钢筋的截面积(dm²)
钢筋的密度通常取为7850 kg/dm³(钢材的密度大约为7850 kg/m³,转换为每立方分米即为7850 kg/dm³)。
1)钢筋的截面积取决于钢筋的直径,可以通过以下公式计算:
截面积(dm²)= π×(直径(mm)/ 10)²/ 4
将截面积公式代入每米重量公式中,得到:
每米重量(kg/m)= 7850 kg/dm³×π×(直径(mm)/ 10)²/ 4
2)钢筋的每米重量公式简化后得到:
每米重量(kg/m)= 0.00617 ×直径(mm)²
2.计算实例
例如,如果你想要计算直径为20mm 的钢筋的每米重量,可以使用以下公式:
每米重量(kg/m)= 0.00617 ×20²= 0.00617 ×400 = 2.468 kg/m
因此,直径为20mm 的钢筋每米重量大约为 2.468 公斤。
钢筋算量基本方法(手工计算钢筋公式大全)一、首跨钢筋的计算1、上部贯通筋上部贯通筋(上通长筋1)长度=通跨净跨长+首尾端支座锚固值2、端支座负筋端支座负筋长度:第一排为Ln/3+端支座锚固值;第二排为Ln/4+端支座锚固值3、下部钢筋下部钢筋长度=净跨长+左右支座锚固值注意:下部钢筋不论分排与否,计算的结果都是一样的。
以上三类钢筋中均涉及到支座锚固问题,那么,是如何实现03G101-1中关于支座锚固的判断呢?现在我们来总结一下以上三类钢筋的支座锚固判断问题:(1)、支座宽≥Lae且≥0.5Hc+5d,为直锚,取Max{Lae,0.5Hc+5d }。
(2)、钢筋的端支座锚固值=支座宽≤Lae或≤0.5Hc+5d,为弯锚,取Max{Lae,支座宽度-保护层+15d }。
(3)、钢筋的中间支座锚固值=Max{Lae,0.5Hc+5d }4、腰筋构造钢筋:构造钢筋长度=净跨长+2×15d抗扭钢筋:算法同贯通钢筋5、拉筋拉筋长度=(梁宽-2×保护层)+2×11.9d(抗震弯钩值)+2d拉筋根数:如果我们没有给定拉筋的布筋间距,那么拉筋的根数=(箍筋根数/2)×(构造筋根数/2);如果给定了拉筋的布筋间距,那么拉筋的根数=布筋长度/布筋间距。
6、箍筋箍筋长度=(梁宽-2×保护层+梁高-2×保护层)+2×11.9d+8d箍筋根数=(加密区长度/加密区间距+1)×2+(非加密区长度/非加密区间距-1)+1 注意:因为构件扣减保护层时,都是扣至纵筋的外皮,那么,我们可以发现,拉筋和箍筋在每个保护层处均被多扣掉了直径值;并且我们在预算中计算钢筋长度时,都是按照外皮计算的,所以将多扣掉的长度在补充回来,由此,拉筋计算时增加了2d,箍筋计算时增加了8d。
(如下图所示)7、吊筋吊筋长度=2*锚固+2*斜段长度+次梁宽度+2*50,其中框梁高度>800mm 夹角=60°≤800mm夹角=45°二、中间跨钢筋的计算1、中间支座负筋中间支座负筋:第一排为Ln/3+中间支座值+Ln/3;第二排为Ln/4+中间支座值+Ln/4注意:当中间跨两端的支座负筋延伸长度之和≥该跨的净跨长时,其钢筋长度:第一排为该跨净跨长+(Ln/3+前中间支座值)+(Ln/3+后中间支座值);第二排为该跨净跨长+(Ln/4+前中间支座值)+(Ln/4+后中间支座值)。
钢筋计算量公式
钢筋计算量的公式通常包括以下几个因素:
1. 钢筋的长度:计算量与钢筋的长度成正比。
2. 钢筋的直径:计算量与钢筋的直径的平方成正比,即计算量∝直径²。
3. 钢筋的数量:计算量与钢筋的数量成正比。
综上所述,钢筋计算量的一般公式为:
计算量 = 钢筋长度 ×钢筋直径² ×钢筋数量
对于具体的钢筋计算量公式,在不同的设计规范和计算方法中会有所差异。
以下是一般情况下常用的计算量公式:
1. 钢筋总长度计算量公式:
计算量 = 钢筋总长度
2. 截面钢筋计算量公式:
计算量 = 钢筋总长度 ×钢筋直径²
3. 柱子钢筋计算量公式:
计算量 = 钢筋截面积 ×柱子高度
4. 梁中钢筋计算量公式:
计算量 = 钢筋截面面积 ×梁的长度
请注意,在具体的工程设计计算中,需根据不同的设计规范和工程要求,结合受力分析等因素,进行详细的计算和设计。
因
此建议在具体项目中参考相应的设计规范和进行专业的工程计算。
第一部分梁钢筋算量公式一、锚固值1. 端支座:(1) Hc-BHc >Lae时直锚:max(Lae,0.5Hc+5d)。
(2) Hc-BHc ≦Lae时弯锚:max(Lae,Hc-BHc+15d)。
2. 中间支座:Max(Lae,0.5Hc+5d)。
3. 非框架梁下部钢筋端支座和中间支座锚固值:12d(光面筋15d)。
4. 悬挑梁弯折长度=max(梁高-2×保护层,12d)二、弯钩值1. 半圆弯钩(对应180度)——6.25d;2. 直弯钩(对应90度)——3.5d;3. 斜弯钩(对应45度)——4.9d; 4. 135度弯钩(对应135度)——11.9d。
三、各类钢筋长度计算公式(一) 上部筋1. 上部贯通筋:通跨净跨长+首尾端支座锚固值(屋面框梁端支座锚固=Hc-BHc+Hb-2BHc)悬挑梁非通长上部筋=L-BHc+max(HB梁高-2×BHc,12d)+锚固;悬挑通长上部筋的悬挑部分=L-BHc+max(HB梁高-2×BHc,12d))2. 端支座负筋:(1) 第一排:Ln/3+端支座锚固值;第二排:Ln/4+端支座锚固值(第三排同第二排)。
(2) 非框架梁端支座负筋:Ln/5+端支座锚固值(中间支座同框架梁)。
(3) 悬挑梁负筋:第一排=Ln1/3+Hc+L-BHc;第二排=Ln1/4+Hc+0.75L。
3. 中间支座负筋第一排:Ln/3×2+Hc;第二排:Ln/4×2+Hc。
4. 架立筋:Ln-左侧负筋伸入长度-右侧负筋伸入长度+2×塔接(一般搭接长度为150mm)。
(二) 下部筋1. 下部通长筋:通跨净跨长+首尾端支座锚固值2. 非通长筋:Ln+左端锚固值+右端锚固值4. 悬挑梁下部筋:L-BHc+12d(光面筋为15d)。
(参见03G101-1 P66)(三)梁附加钢筋1. 侧面构造钢筋:Ln+15d×2;2. 侧面抗扭钢筋:(同框梁下部纵筋)。
钢筋算量公式钢筋算量公式是指在建筑施工中使用的计算钢筋数量的公式。
由于钢筋在建筑中扮演着重要的支撑和加固作用,因此在施工过程中需要准确地计算钢筋的使用量。
下面将介绍钢筋算量公式的具体内容。
一、钢筋算量公式钢筋算量公式的一般形式为:钢筋量=钢筋截面积×长度×数量其中,钢筋截面积、长度和数量是根据具体需要进行计算的。
二、钢筋截面积的计算方法1. 圆钢筋截面积的计算公式为:πr²,其中r为钢筋的半径。
2. 方钢筋截面积的计算公式为:边长²,其中边长为钢筋的边长。
3. 等边三角形钢筋截面积的计算公式为:(√3/4)×边长²,其中边长为钢筋的边长。
4. 等腰三角形钢筋截面积的计算公式为:(1/4)×√(4a²-b²)×b²,其中a为等腰直角三角形的直角边长,b为等腰直角三角形的斜边长。
5. 矩形钢筋截面积的计算公式为:长×宽,其中长和宽为钢筋的长和宽。
6. 梯形钢筋截面积的计算公式为:(上底+下底)×高/2,其中上底、下底和高为梯形的上底、下底和高。
三、钢筋长度的计算方法在进行钢筋长度的计算时,需要根据建筑的具体结构和需要进行计算。
常见的钢筋长度计算方法有以下几种:1. 直线长度计算法:根据钢筋支撑的距离和长度进行计算。
2. 简化计算法:根据建筑结构简化后的长度进行计算。
3. 实际长度计算法:根据实际测量的长度进行计算。
四、钢筋数量的计算方法在进行钢筋数量的计算时,需要根据建筑的具体结构和需要进行计算。
常见的钢筋数量计算方法有以下几种:1. 比例计算法:根据钢筋截面积和长度的比例进行计算。
2. 比较计算法:根据建筑结构中相似部分的钢筋使用情况进行计算。
3. 模板计算法:根据建筑结构中使用的模板进行计算。
五、总结钢筋算量公式是建筑施工过程中必不可少的计算公式。
钢筋的使用量需要根据建筑结构和需要进行计算,并根据具体情况进行钢筋截面积、长度和数量的计算。