水工建筑物——水闸习题及答案
- 格式:doc
- 大小:45.50 KB
- 文档页数:6
《水工建筑物》期末复习题及答案《水工建筑物》综合练习及答案一、单选题1.在水闸的闸室中,用于分割闸孔和支撑闸门的部件是( b )。
a、底板b、闸墩c、胸墙d、翼墙2.用以改善河流的水流条件,调整水流对河床及河岸的作用,以及为防护水库、湖泊中的波浪和水流对岸坡的冲刷的建筑物,称为( c )。
a、挡水建筑物b、泄水建筑物c、整治建筑物d、输水建筑物3.( a )是输送渠道水流跨越河流、渠道、道路、山谷等架空式输水建筑物。
a、渡槽b、涵洞c、倒虹吸d、跌水4.为满足灌溉、发电、过坝需要而兴建的建筑物,称为( d )。
a、泄水建筑物b、输水建筑物c、整治建筑物d、专门建筑物5.枯水期下闸挡水,洪水期开闸泄水,这个水闸可能是( a )。
a、节制闸b、分洪闸c、进水闸d、挡潮闸6.工程中常用于均质土坝的坝坡稳定分析方法是( b )。
a、有限元法b、圆弧滑动法c、直线滑动法d、复式滑动法7.在一个河段上,先通过建坝集中一部分落差后,再通过有压引水道集中坝后河段上另一部分落差,形成了电站的总水头。
这种水电站的开发方式称为( c )。
a、坝后式b、引水式c、混合式d、河床式8.用水泥含量比较低的超干硬性混凝土,经碾压而成的混凝土坝称为( d )。
a、实体重力坝b、宽缝重力坝c、空腹重力坝d、碾压式重力坝9.双曲拱坝是指坝体在( c )方向上呈拱形。
a、水平b、铅直c、水平和铅直d、a与b和c均不对10.过堰水流约转90度后,再经泄槽泄入下游的岸边溢洪道,称为( c )。
a、竖井式溢洪道b、正槽式溢洪道c、侧槽式溢洪道d、虹吸式溢洪道二、判断题1.确定水轮机的安装高程时,下游尾水位取得愈低愈好。
(×)2.在水闸中海漫的作用是进一步消减水流剩余能量,保护护坦安全,并调整流速分布,保护河床、防止冲刷。
(√)3.无压隧洞断面尺寸的确定,主要是满足泄流能力和洞内水面线的要求。
(×)4.一般来说,当落差较大时,陡坡比跌水经济。
1:上游连接段用以引导__过闸__水流平顺地进入闸室,保护__两岸和闸基__免遭冲刷,并与__防渗刺墙__等共同构成防渗地下轮廓,确保在渗透水流作用下两岸和闸基的抗渗稳定性。
2、水闸消能防冲的主要措施有消力池、__海漫__、防冲槽等。
3、海漫要有一定的柔性,以适应下游河床可能的冲刷;要有一定的粗糙性以利于进一步消除余能;要有一定的透水性以使渗水自由排出。
6、隧洞进口建筑物的型式有__竖井式_、___塔式___、__岸塔式__、___斜坡式__。
其中__塔式__受风浪、冰、地震的影响大,稳定性相对较差,需要较长的工作桥。
7、正槽式溢洪道一般由_进水渠_ 、_控制段_、__泄槽__、消能防冲措施_、__出水渠__五局部组成。
其中___控制段___控制溢洪道的过水能力。
8、泄水槽纵剖面布置,坡度变化不宜太多,当坡度由陡变缓时,应在变坡处用__反弧段__连接,坡度由缓变陡时,应在变坡处用__竖向射流抛物线__连接。
9、水工隧洞按水流状态可分为__有压洞__、__无压洞__两种形式,___________更能适应地质条件较差的情况,但其_________复杂,所以应防止平面转弯。
10、回填灌浆是填充__衬砌__与__围岩__之间的空隙,使之结合严密,共同受力,以改善__传力__条件和减少__渗漏__。
1.水闸是渲泄水库中多余洪水的低水头建筑物。
〔×〕2.辅助消能工的作用是提高消能效果,减少池长和池深,促成水流扩散,调整流速分布和稳定水跃。
〔√〕3闸下渗流使水闸降低了稳定性引起渗透变形和水量损失。
〔√〕4.水闸的水平防渗设备指的是铺盖,垂直防渗设备指的是齿墙、板桩和防渗墙。
〔√〕5.整体式平底板常在顺水流方向截取假设干板条作为梁来进展计算。
〔√〕6.正槽溢洪道泄槽的底坡常小于临界坡降,以使水流平稳。
〔×〕7.围岩地质条件比拟均一的洞身段不设施工缝。
〔×〕8.无压隧洞由于内水压力较大,从水流及受力条件考虑,一般用圆形断面。
⽔⼯建筑物习题及答案⽔⼯建筑物习题第⼀套习题⼀、填空1.对⽔⼯建筑物进⾏设计计算时采⽤的荷载组合有两类,⼀类是_______________,属于_______________情况;另⼀类是_______________,属于_______________情况。
2.重⼒坝抗滑稳定验算时,计算单元可取为_______________或_______________,⽔闸闸室抗滑稳定验算时,计算单元是_______________,拱坝坝肩岩体稳定验算时,计算对象是由_______________⾯、_______________⾯、_______________⾯及_______________⾯所包围的_______________。
3.为了消除或抑制_______________对结构的不利影响,溢洪道的泄⽔槽在平⾯布置上应尽量做到:_______________、_______________、_______________。
4.隧洞灌浆包括_______________和_______________,其⽬的分别是_______________和_______________。
⼆、判断改正题,对者在[ ]内画√,错者在[ ]内画×,并在[ ]后改正。
1.重⼒坝深式⽆压泄⽔孔中⼀般设置⼀道通⽓孔,⽤于检修时补⽓和排⽓。
[ ]2.在地震作⽤下,重⼒坝上下游⾯的地震动⽔压⼒沿⽔深呈抛物线分布,其⽅向垂直于坝⾯。
[ ]3.由于拱坝属于⾼次超静定整体结构,坝体应⼒计算时,必须考虑温度荷载和地基位移的影响。
[ ]4.对粘性⼟坝坡或级配较好的砂性⼟坝坡,渗流溢出处可能会发⽣流⼟。
[ ]5.对侧槽式溢洪道,为保证溢流堰⾃由出流和迅速泄洪,侧槽和泄⽔槽的底坡均应⼤于临界坡度。
[ ]6.⽔闸地下轮廓线是指底板、板桩、铺盖、与地基的接触线,其长度称闸基防渗长度。
[ ]三、简答题。
1.根据溢流坝⾯曲线和基本△剖⾯确定溢流坝实⽤剖⾯时,有哪两种情况(可绘图解释)?2.对双曲拱⽽⾔,拱冠梁剖⾯设计包括哪些内容?3.在粘性⼟坝坡稳定分析中,⽤总应⼒法和有效应⼒法计算抗滑⼒分别如何进⾏?4.何谓正槽式河岸溢洪道?由哪⼏部分组成?需要怎样的地形条件?5.何谓有压隧洞?洞内闸门布置有何特点?为什么?6.平原地区⽔闸消能防冲设计的任务是什么?池深设计应满⾜什么要求?7.简述温升、温降对拱坝应⼒及坝肩稳定的影响?第⼆套习题⼀、填空1.⽔⼯建筑物应根据其级别规定各项设计标准及要求,如_______________、_______________、_______________等等,以达到即安全⼜经济的⽬的。
水工建筑物试题及答案流域防洪工程的目标是通过水工建筑物的设计和建设来减少洪水的威胁,保护人民的生命财产安全。
在这里,我们提供一些关于水工建筑物的试题,以及相应的答案供参考。
试题一:1. 请简要说明什么是水工建筑物?答案:水工建筑物是指为了调节水流、保护岸堤、筑坝蓄水等目的而建造的工程构筑物,包括但不限于大坝、堤防、引水渠、水闸、水泵站等。
2. 列举三种常见的水工建筑物类型。
答案:大坝、堤防和水闸是常见的水工建筑物类型。
3. 请举例说明水工建筑物的应用场景。
答案:水工建筑物应用广泛,例如用于灌溉农田、供水供电、节制洪水、改善航运条件等。
试题二:1. 简述一下大坝的作用和分类。
答案:大坝主要的作用是蓄水、防洪和发电。
根据材料的不同,大坝分为土石坝、混凝土坝和重力坝等类型。
2. 列举两个世界上最著名的大坝。
答案:三峡大坝(中国)和亚速尔大坝(美国)是世界上最著名的大坝之一。
3. 请解释一下堤防的功能和特点。
答案:堤防的主要功能是防止河流泛滥和保护沿岸地区免受洪水侵害。
堤防通常由土石材料构成,具有较强的抗洪能力。
试题三:1. 解释一下水闸的作用和原理。
答案:水闸用来控制水流,调节水位。
水闸的原理是通过打开或关闭闸门来改变水流通量,从而实现对水位的控制。
2. 简述引水渠的作用和建造过程。
答案:引水渠是将水从一处引到另一处的渠道。
它主要用于农田灌溉和城市供水。
建造引水渠的过程包括勘测、挖掘、排土、加固等步骤。
3. 请举例说明水泵站的用途和工作原理。
答案:水泵站用于将地下水或水源抽到供水系统中。
它的工作原理是通过水泵将水从低处抽到高处,从而实现水的提升和流动。
通过以上试题,我们了解了水工建筑物的定义、分类以及各个类型的作用和原理。
掌握这些知识可以帮助我们更好地理解水资源的利用与管理,保护和利用水资源是维护生态平衡和可持续发展的关键。
水工建筑物练习题+答案一、单选题(共40题,每题1分,共40分)1、对闸孔设计,没有直接影响的因素有( )A、闸孔型式B、护坦C、闸底板高程D、底板型式正确答案:B2、水闸的地下轮廓线是指( )。
A、不透水的铺盖、板桩及底板与地基的接触线B、底板、护坦与地基的接触线C、铺盖、板桩与地基的接触线D、板桩、底板及护坦与地基的接触线正确答案:A3、双曲拱坝是指坝体在( )方向上呈拱形。
A、倾斜B、铅直C、水平D、水平和铅直正确答案:D4、水闸底流消能所采用消力池的长度通常为( )。
A、2.0倍水跃长B、0.8倍水跃长C、1.0倍水跃长D、1.5倍水跃长正确答案:B5、堆石坝的主堆石区堆石料的孔隙率为( )。
A、18%~22%B、15%~20%C、20%~25%D、23%~28%正确答案:C6、下面关于棱体排水说法正确的是( )A、棱体排水石料用量少,所以造价低B、棱体排水深入坝体有利于下游坡的稳定C、棱体排水的顶宽1.~2. 米,可以做交通用D、棱体排水不能降低坝体的浸润线正确答案:C7、海漫的作用是( )A、扩散水流B、进一步消能C、挡土D、引导水流下泄正确答案:B8、整体式闸室结构在闸墩中间设( )。
A、垂直水流向的永久缝B、顺水流向的永久缝C、顺水流向的施工缝D、垂直水流向的施工缝正确答案:B9、高流速无压隧洞的横断面尺寸宜通过试验确定,并宜考虑( )的影响。
A、气蚀B、掺气C、冲击波D、过冰正确答案:B10、分洪闸的中心线宜( )A、交角大于60°B、交角小于60°C、正对河道主流方向D、偏离河道主流方向正确答案:C11、进口段和闸门段组成竖立于水库中的塔式结构,通过工作桥与岸边相连的进水口形式是( )A、竖井式进水口B、岸塔式进水口C、斜坡式进水口D、塔式进水口正确答案:D12、双曲率拱坝拱冠梁在(1/5~1/3)坝高处,向上游鼓出, ( )。
A、可以平衡水压力产生的拉应力B、可以维持水压力产生的拉应力C、可以增加水压力产生的拉应力D、可以平衡水压力产生的压应力正确答案:A13、以下哪种不属于对可能滑动块体的抗滑稳定分析方法( )A、水力学法B、刚体极限平衡法C、地质力学模型试验法D、有限元法正确答案:A14、拱坝新老混凝土温差的容许范围是( )。
国开形成性考核《水工建筑物》形考作业(1-4)试题及答案(课程ID:01408,整套相同,如遇顺序不同,Ctrl+F查找,祝同学们取得优异成绩!)形考作业1一、判断题(每小题3分,共30分)题目:1、所谓水利工程,是指对自然界的地表水和地下水进行控制和调配,以达到除害兴利目的而修建的工程。
(V)题目:2、挡水建筑物的作用是拦截河流,形成水库或雍高水位,如:各种材料和类型的坝和水闸;为防御洪水或阻挡海潮,沿江河海岸修建的堤防、海塘等。
(V)题目:3、输水建筑物的作用是用以宣泄多余水量、排放泥沙和冰凌或为人防、检修而放空水库等,以保证坝和其他建筑物的安全。
(X)题目:4、为使工程的安全可靠性与其造价的经济合理性恰当地统一起来,水利枢纽及其组成的建筑物要进行分等分级。
(V)题目:5、重力坝的工作原理是在水压力及其它荷载的作用下,主要依靠坝体自身重量产生的抗滑力来满足稳定的要求。
(V)题目:6、重力坝的坝体自重是维持大坝稳定的主要荷载,包括建筑物及其永久设备的重量。
(V)题目:7、坝基设有防渗帷幕和排水幕的实体重力坝,可以减少坝基面上的浮托力。
(X)题目:8、重力坝的基本剖面呈三角形是因为考虑施工方便。
(X)题目:9、溢流坝两侧设边墩也称边墙或导水墙,一方面起闸墩的作用,同时也起分隔溢流段和非溢流段的作用。
(V)题目:10、重力坝抗滑稳定分析的目的是核算坝体沿坝基面或沿地基深层软弱结构面抗滑稳定的安全性能。
(V)题目:11、水利工程的根本任务是(AD)。
【A】:除水害【B】:防洪【C】:灌溉、发电【D】:兴水利单项选择题(每小题3分,共30分)题目:12、水利水电枢纽工程按其(ACD)为五等。
【A】:规模【B】:效益【C】:作用【D】:在国民经济中的重要性题目:13、水利枢纽中的水工建筑物按其所属枢纽工程中的(ABC)分为五级。
【A】:作用【B】:重要性【C】:等别【D】:规模题目:14、组成水库枢纽的“三大件”包括(ABD)等三类建筑物。
第五章复习思考题1.什么叫水闸?按水闸作用分有几类?按闸室结构形式如何分类?2.土基上的水闸由哪几部分组成?各起什么作用?3.闸孔型式有哪几种?各自优缺点及适用条件是什么?4.为什么水闸通常采用底流水跃消能?怎样选择消力池的形式?5.水闸有哪些辅助消能工?它们各自的形式和作用是什么?6.什么叫波状水跃?产生波状水跃的原因是什么?怎样防止波状水跃带来的危害?7.海漫的作用是什么?对它有什么要求?如何选择材料和确定其尺寸?8.闸基渗流有哪些危害性?9.什么叫地下轮廓线和闸基防渗长度?如何确定闸基防渗长度?10.闸基渗流的计算目的是什么?有哪些计算方法?各自精度和适用条件如何?11.改进阻力系数法认为任一流段的水头损失为,此式怎样推导来的?12.闸室是水闸的主体,它由哪几部分组成?各部分的主要作用是什么?13.试根据不同分类方法说明闸底板有哪些类型?14.胸墙有哪些形式?如何选择?15.对水闸闸室必须进行哪些情况下的稳定验算?各计算情况应包括哪些荷载?16.抗滑稳定安全系数若不满足《规范》的要求,有哪些改善稳定的措施?17.整体式平底板应力计算有倒置梁和弹性地基梁法,试述其适用情况。
18.整体式底板不平衡剪力是怎样产生的?19.水闸连接建筑物的作用是什么?20.水闸两岸连接建筑物有哪些布置形式?各自特点是什么?21.上下游翼墙有哪些结构形式?综合测试1.水闸是(A)挡水建筑物;(B)泄水建筑物;(C)即能挡水,又能泄水的水工建筑物;(D)输水建筑物。
2.节制闸(拦河闸):(A)一般在洪水期,抬高上游水位,枯水期,下泄流量;(B)一般在洪水期,下泄流量,枯水期,抬高上游水位;(C)在洪水期和枯水期,都需要抬高上游水位;(D)在洪水期和枯水期,都下泄流量。
3.排水闸的作用:(A)排除内涝积水,抵挡外河洪水;(B)抵挡内涝积水,排除外河洪水;(C)排除内涝积水和外河洪水;(D)抵挡内涝积水和外河洪水。
4.带胸墙水闸(A)适于挡水位低于引水水位或排水水位的情况;(B)适于引水位高于挡水水位或排水水位的情况;(C)适于引水位高于引水水位或挡水水位的情况;(D)适于挡水位高于引水水位或排水水位的情况。
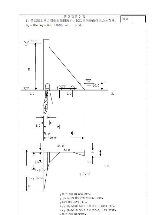
共 5 页第 3 页1、某混凝土重力坝剖面如图所示,试绘出坝基面扬压力分布图,,,(单位:m )。
(7分)2 52.0h γ γH 2(H 1-h) γ(H 2-h) -h) γH =9.8×70=686.0KPa2图。
7.0~5.01=α。
(8分)γH 2γhγH 1 γH α1γHγH 1=10×40=400KPa γh=10×4=40KPaγH=10×(40-4)=360KPaα1γH=0.6×10×(40-4)=216KPa γH 2=10×(4-2)=20KPa3、某溢流坝水坝段防渗排水布置如图所示,6.0~45.01=α,4.0~2.02=α。
试绘制坝基面浮托力、渗透压力、扬压力分布图。
(8分)4 页第 3 页4、某混凝土重力坝剖面如图所示,坝基面为水平面,坝底宽为P=32000.0kN,铅直作用力为ΣW=48000.0kN,f=0.72,[Ks]=1.1,[Ks′]=3.0,试求:1、该混凝土重力坝抗滑稳定安全系数Ks值;2、试判断该混凝土重力坝抗滑稳定性是否满足规范要求;3、如不满足可采取那些主要工程措施(列出三项以上)。
ArrayB解:该混凝土重力坝抗滑稳定安全性不满足规范要求;若不满足采取的主要工程措施有:1、利用水重;2、采用有利的开挖轮廓线;3、设置齿墙;4、采取抽水措施;5、加固地基;6、横缝灌浆;7、预加应力措施。
共 4 页第 3 页Array5、某混凝土重力坝剖面如图所示,坝基面为水平面,坝底宽为水平作用力为ΣP=32000kN,铅直作用力为ΣW=48000.0kN,f′=1.0 ,c′=900KPa,[Ks]=1.1,[Ks′]=3.0试求:1、该混凝土重力坝抗滑稳定安全系数Ks值;2、试判断该混凝土重力坝抗滑稳定性是否满足规范要求;3、如不满足可采取那些主要工程措施(列出三项以上)。
ArrayB解:该混凝土重力坝抗滑稳定安全性不满足规范要求;若不满足采取的主要工程措施有:1、利用水重;2、采用有利的开挖轮廓线;3、设置齿墙;4、采取抽水措施;5、加固地基;6、横缝灌浆;7、预加应力措施。
水闸习题一习题及答案水闸习题一习题及答案水闸是一种用于调节水位和控制水流的设施。
在水利工程中,水闸的设计和操作是非常重要的。
为了帮助大家更好地理解水闸的原理和运行方式,下面将介绍一些关于水闸的习题及答案。
习题一:水闸的作用是什么?请简要说明。
答案:水闸的作用主要有以下几个方面:1. 调节水位:水闸可以通过开启或关闭闸门来调节水位,以满足不同的需求,如防洪、灌溉等。
2. 控制水流:水闸可以通过调节闸门的开启程度来控制水流的速度和方向,以满足不同的工程需求。
3. 防洪:水闸在河道中起到了防洪的作用,当河水水位上涨时,可以通过调节闸门来控制水位,减少洪水的冲击力。
4. 调节河流生态环境:水闸可以通过控制水位和水流来改善河流的生态环境,如增加水生动植物的栖息地、改善水质等。
习题二:水闸的主要构成部分有哪些?请简要说明。
答案:水闸的主要构成部分包括以下几个部分:1. 闸门:闸门是水闸的主要控制部件,通过开启或关闭闸门来调节水位和控制水流。
闸门通常由钢板或混凝土制成,具有较大的强度和密封性。
2. 闸槽:闸槽是安装闸门的通道,通常由混凝土或钢板构成。
闸槽的设计和施工质量直接影响到水闸的使用效果和安全性。
3. 溢流堰:溢流堰是用于控制水位的重要部件,当水位超过一定高度时,水会从溢流堰上流出,以避免水位过高造成的问题。
4. 引水渠道:引水渠道是将水从水闸引导到需要的地方的通道,通常由混凝土或土石方构成。
引水渠道的设计和施工要考虑水流的稳定性和流量的要求。
习题三:水闸的操作原理是什么?请简要说明。
答案:水闸的操作原理主要是通过调节闸门的开启程度来控制水位和水流。
当需要提高水位时,可以逐渐开启闸门,让水流进入水闸;当需要降低水位时,可以逐渐关闭闸门,减少水流进入水闸的数量。
通过合理地控制闸门的开启程度,可以实现对水位和水流的精确控制。
习题四:水闸的设计和操作中需要考虑哪些因素?请简要说明。
答案:水闸的设计和操作需要考虑以下几个因素:1. 水位变化:水闸的设计和操作要根据不同的水位变化情况进行调整,以满足不同的需求,如防洪、灌溉等。
一、填空题1、上游连接段用以引导__过闸__水流平顺地进入闸室,保护__两岸和闸基__免遭冲刷,并与__防渗刺墙__等共同构成防渗地下轮廓,确保在渗透水流作用下两岸和闸基的抗渗稳定性。
2、水闸消能防冲的主要措施有消力池、__海漫__、防冲槽等。
6、隧洞进口建筑物的按其布置及结构形式分为__竖井式_、___塔式___、__岸塔式__、___斜坡式__。
其中__塔式__受风浪、冰、地震的影响大,稳定性相对较差,需要较长的工作桥。
7、正槽式溢洪道一般由_ 进水渠_ 、_控制段_、__泄槽__、消能防冲措施_ 、__出水渠__五部分组成。
其中___控制段___控制溢洪道的过水能力。
8、泄水槽纵剖面布置,坡度变化不宜太多,当坡度由陡变缓时,应在变坡处用__反弧段__连接,坡度由缓变陡时,应在变坡处用__竖向射流抛物线__连接。
9、水工隧洞按水流状态可分为__有压隧洞_、__无压隧洞__两种形式,___________更能适应地质条件较差的情况,但其_________复杂,所以应避免平面转弯。
10、回填灌浆是填充__衬砌__与__围岩_之间的空隙,使之结合紧密,共同受力,以改善__传力__条件和减少__渗漏__。
1、河岸溢洪道的类型主要有正槽式式、侧槽式、井式和虹吸式四种。
3、海漫应具有一定的粗糙性,利于进一步消除余能;具有一定的透水性,以便排出渗水;具有一定的柔性,适应河床的变形。
4、坝下涵管为了有效地防止集中渗流,在涵管1~2m的范围内用回填粘土做防渗层,这个防渗层称为涵衣。
5、土石坝管涌渗透变形中使个别小颗粒土在孔隙内开始移动的水力坡降称为临界坡降;使更大的土粒开始移动,产生渗流通道和较大范围内破坏的水力坡降称为破坏坡降。
6、在土石坝的坝坡稳定计算中,可用替代法考虑渗透动水压力的影响,在计算下游水位以上、浸润线与滑弧间的土体的滑动力矩时用饱和重度,计算抗滑力矩时用浮重度。
7、不平衡剪力在闸墩和底板进行分配时可采用弹性地基梁法和反力直线法。
水工建筑物习题及答案【篇一:水工建筑物试题及答案】1:上游连接段用以引导__过闸__水流平顺地进入闸室,保护__两岸和闸基__免遭冲刷,并与__防渗刺墙__等共同构成防渗地下轮廓,确保在渗透水流作用下两岸和闸基的抗渗稳定性。
2、水闸消能防冲的主要措施有消力池、__海漫__、防冲槽等。
3、海漫要有一定的柔性,以适应下游河床可能的冲刷;要有一定的粗糙性以利于进一步消除余能;要有一定的透水性以使渗水自由排出。
6、隧洞进口建筑物的型式有__竖井式_、___塔式___、__岸塔式__、___斜坡式__。
其中__塔式__受风浪、冰、地震的影响大,稳定性相对较差,需要较长的工作桥。
7、正槽式溢洪道一般由_ 进水渠_ 、_控制段_、__泄槽__、消能防冲措施_ 、__出水渠__五部分组成。
其中___控制段___控制溢洪道的过水能力。
8、泄水槽纵剖面布置,坡度变化不宜太多,当坡度由陡变缓时,应在变坡处用__反弧段__连接,坡度由缓变陡时,应在变坡处用__竖向射流抛物线__连接。
9、水工隧洞按水流状态可分为__有压洞__、__无压洞__两种形式,___________更能适应地质条件较差的情况,但其_________复杂,所以应避免平面转弯。
10、回填灌浆是填充__衬砌__与__围岩__之间的空隙,使之结合紧密,共同受力,以改善__传力__条件和减少__渗漏__。
2.辅助消能工的作用是提高消能效果,减少池长和池深,促成水流扩散,调整流速分布和稳定水跃。
(√ )3闸下渗流使水闸降低了稳定性引起渗透变形和水量损失。
(√ )4.水闸的水平防渗设备指的是铺盖,垂直防渗设备指的是齿墙、板桩和防渗墙。
(√ )5.整体式平底板常在顺水流方向截取若干板条作为梁来进行计算。
(√ )10.溢洪道设闸门时,堰顶高程低于水库的正常蓄水位。
(√ )1、不平衡剪力:由于底板上的荷载在顺水流方向是有突变的,而地基反力是连续变化的,所以,作用在单宽板条及墩条上的力是不平衡的,即在板条及墩条的两侧必然作用有剪力q1及q2,并由q1及q2的差值来维持板条及墩条上力的平衡,差值△q=q1–q2 ,称为不平衡剪力。
水工建筑物习题第一部分课内训练第一章绪论 (2)第二章重力坝 (3)第三章拱坝 (7)第四章土石坝 (11)第五章水闸 (16)第六章河岸溢洪道 (20)第七章水工隧洞与坝下涵管 (21)第八章渠系建筑物 (22)第九章水利枢纽 (25)第一部分课内训练第一章绪论一、填空题1.我国人均水资源约为世界水资源的。
2.河道常用的防洪体系为、、。
3.水利工程按所承担的任务可分、、、和。
4.水工建筑物按用途可分为、、、、和。
5.水工建筑物按使用时间可分为、。
6.组成水库枢纽的“三大件”包括、和等类型建筑物。
二、名词解释1.水利工程2.水利枢纽3.水工建筑物4.水利事业三、判断题1.我国地大物博,河流众多,是一个水资源充沛的国家。
()2.我国的水资源分布情况大体是南涝北旱的局面。
()3.水工建筑物的级别越高所采用的洪水重现期越短。
()4.所谓水利工程,是指对自然界的地表水和地下水进行控制和调配,以达到除害兴利目的而修建的工程。
()四、简答题1.我国水资源分布的特点是什么?2.水利工程按所承担的任务分为哪几类?3.简述水工建筑物的特点?4.水工建筑物按用途分为哪几类?5.为什么要在江河上兴建水利工程?6.兴建水利工程对国民经济、自然环境有哪些影响?如何充分利用其有利方面并做好不利方面的转化工作。
7.什么是水工建筑物的工作条件,工作条件应包括哪些内容?8.水工建筑物有哪些结构特点,有哪些工作特点?9.如何对水工建筑物分类?10.为什么要对水利水电枢纽工程分等和对水工建筑物分级,分等分级的原则、方法是什么,分等分级有哪些作用?11.请以三峡水利枢纽工程为例,说明水利工程的根本任务。
12.拟建高50m的土石坝,形成总库容2.0亿m3、装机容量9.0千kW、灌溉面积20万亩的水电枢纽工程。
试问该水利工程属几等?各主要、次要、临时建筑物属几级?13.下列哪些指标是确定水利工程等别的依据?哪些指标是提高挡水建筑物级别的依据?①水利兴利库容:②坝高;③总库容;④挡水建筑物类型;⑤水电站的装机容量;⑥水电站年发电量;⑦设计灌溉面积;⑧保护农田面积;⑨保护城镇及工矿区;⑩淹没损失;⑾过坝陆上交通货运量。
水工建筑物题库及答案一、判断题(共30题,共60分)1. 为使工程的安全可靠性与其造价的经济合理性恰当地统一起来,水利枢纽及(江南博哥)其组成的建筑物要进行分等分级正确答案:正确2. 溢流重力坝设计中动水压力对坝体稳定有利正确答案:正确3. 如果拱坝封拱时混凝土温度过高,则以后温降时拱轴线收缩对坝肩岩体稳定不利正确答案:错误4. 心墙土石坝的防渗体一般布置在坝体中部,有时稍偏向上游,以便同防浪墙相连接,通常采用透水性很小的粘性土筑成正确答案:正确5. 水闸闸室的稳定计算方法与重力坝相同均是取一米的单宽作为荷载计算单元正确答案:错误6. 重力坝的上游坝坡n=0时,上游边缘剪应力的值一定为零正确答案:正确7. 深式泄水孔的超泄能力比表孔的超泄能力大正确答案:错误8. 底部狭窄的V形河谷宜建单曲拱坝正确答案:错误9. 土石坝的上游坝坡通常比下游坝坡陡正确答案:错误10. 非粘性土料的压实程度一般用相对密度表示正确答案:正确11. 当地基岩石坚硬完整,摩擦系数较大时,重力坝的剖面尺寸由稳定控制正确答案:错误12. 水闸闸室的稳定计算方法与重力坝相同均是取一米的单宽作为荷载计算单元正确答案:错误13. 无压隧洞断面尺寸的确定,主要是满足泄流能力和洞内水面线的要求正确答案:正确14. 溢流重力坝设计中动水压力对坝体稳定不利正确答案:错误15. 对于一定的河谷,拱圈中心角愈大,拱圈厚度愈小正确答案:正确16. 土石坝的纵缝大致与坝轴线平行,多发生在两岸坝肩附近正确答案:错误17. 反滤层中各层滤料的粒径顺渗流方向布置应由粗到细正确答案:错误18. 检修闸门在动水中关闭,在静水中开启正确答案:错误19. 有压隧洞断面尺寸的确定,主要是满足泄流能力和洞内水面线的要求正确答案:错误20. 重力坝的上游坝坡 n=0 时,上游边缘剪应力的值一定为零正确答案:正确21. 底部狭窄的 V 形河谷宜建单曲拱坝正确答案:错误22. 拱坝中心角越大对坝肩岩体的稳定越有利正确答案:错误23. 斜墙坝的上游坝坡一般较心墙坝为缓正确答案:正确24. 坝基设有防渗帷幕和排水幕的实体重力坝,可以减少坝基面上的浮托力正确答案:错误25. 如果拱坝封拱时混凝土温度过高,则以后温降时拱轴线收缩对坝体应力不利正确答案:正确26. 在水闸闸室的渗流分析时,假定渗流沿地基轮廓的坡降相同,即水头损失按直线变化的方法称为直线法正确答案:正确27. 无压隧洞要避免出现明满流交替出现的情况正确答案:正确28. 泄水建筑物是为灌溉、发电和供水的需要,从上游向下游放水用的建筑物正确答案:错误29. 重力坝主要依靠坝体自身重量产生的抗滑力来满足坝体的稳定要求正确答案:正确30. 拱坝的超载能力强、安全度高主要是由于坝体厚度较薄、材料均匀性好正确答案:错误。
水工建筑物题库(含答案)1. 水闸的作用是什么?水闸是一种固定的建筑物,位于河道中的重要位置。
它的主要作用是调节水量,保持河道水位稳定。
当需要控制河道水位时,可以打开或关闭水闸。
此外,水闸还可以用作调节河流流量和压力的工具。
2. 水库的作用是什么?水库是一种集中储存水源的水工建筑物,通常建于山间或干燥地区。
主要作用是储存水源,以供农业灌溉、城市生活用水和工业用水。
此外,水库还可以控制洪水、供电等功能。
3. 贯流坝和拦河坝有什么区别?贯流坝和拦河坝都是用于调节河道水位并保护下游区域不受洪水侵袭的工程建筑物。
不同之处在于,贯流坝通常建在河道的中央,水流穿过坝体,并顺着坝体流进下游区域。
而拦河坝则将水流完全挡住,使水流积聚在坝体后面形成大型水库。
两种坝型都具有自己的特点和适用范围。
4. 水泥砂浆比是什么?有什么作用?水泥砂浆比是指水泥和砂的用量的比例,在水泥砂浆的配制中非常重要。
水泥砂浆比越小,砂、水的比例就越高,这表示制成的砂浆越稠密。
水泥砂浆比越大,则砂、水的比例就越小,这表示制成的砂浆越稀疏。
水泥砂浆比对水工建筑物的施工具有重要作用。
适当调整水泥砂浆比,可以使砂浆的强度和硬度得到最优化的保证。
5. 混凝土的强度是如何进行检测的?混凝土是一种经常用来建造水工建筑物的材料,混凝土强度检测非常重要。
混凝土强度可以通过压缩试验、抗拉试验、弯曲试验等多种方式进行检测。
其中,最常见的检测方法是压缩试验。
在这种试验中,将混凝土样品放入压力机中,逐渐增加压力,直到混凝土断裂。
根据试验结果,可以计算混凝土的强度。
6. 水工建筑物中的“铺面”是什么?水工建筑物中的“铺面”是指水泥或钢筋混凝土制成的表面层。
它可以使建筑物表面更光滑,从而减少水流对建筑物的损害。
铺面还可以起到抗侵蚀、减小水流摩擦力等作用。
7. 常见的水工建筑物有哪些?常见的水工建筑物有:水库、大坝、挡水墙、泵站、水闸、引水渠、涵洞、拦河坝、堤防等。
每种建筑物都有自己的特点和适用范围。
水工建筑试题及答案一、选择题(每题2分,共20分)1. 水工建筑物中,用于调节水位的建筑物是()。
A. 溢洪道B. 闸门C. 堤坝D. 水塔答案:B2. 水闸的主要用途是()。
A. 灌溉B. 防洪C. 航运D. 以上都是答案:D3. 下列哪项不是水工建筑物的分类?()A. 挡水建筑物B. 输水建筑物C. 排水建筑物D. 交通建筑物答案:D4. 用于防止水流冲刷的建筑物是()。
A. 护岸B. 堤坝C. 溢洪道D. 闸门5. 根据水流方向,下列哪项不是水工建筑物的分类?()A. 顺水流建筑物B. 逆水流建筑物C. 横向水流建筑物D. 竖向水流建筑物答案:D6. 用于测量水位的设备是()。
A. 水位计B. 流量计C. 压力计D. 温度计答案:A7. 用于控制水流速度的建筑物是()。
A. 溢洪道B. 闸门C. 堤坝D. 护岸答案:B8. 用于保护水工建筑物免受水流侵蚀的建筑物是()。
A. 护坡B. 堤坝C. 溢洪道D. 闸门答案:A9. 水工建筑物中,用于发电的建筑物是()。
B. 水闸C. 堤坝D. 溢洪道答案:A10. 用于调节水库水位的建筑物是()。
A. 溢洪道B. 闸门C. 堤坝D. 水塔答案:A二、填空题(每题2分,共20分)1. 水工建筑物的主要功能包括__________、__________和__________。
答案:挡水、输水、排水2. 水闸的组成部分主要包括__________、__________和__________。
答案:闸室、闸门、启闭机3. 水工建筑物的设计需要考虑的主要因素包括__________、__________和__________。
答案:水文条件、地质条件、环境影响4. 水工建筑物的维护主要包括__________、__________和__________。
答案:定期检查、维修保养、防洪措施5. 水工建筑物的分类包括__________、__________和__________。
(完整版)⽔⼯建筑物简答题及答案重⼒坝重⼒坝断⾯设计应满⾜:(1)稳定和强度的要求,保证⼤坝安全(2)⼯程量⼩(3)便于施⼯(4)运⽤⽅便。
1.简述重⼒坝的特点。
重⼒坝⼯作原理:在⽔压⼒及其他荷载作⽤下,依靠坝体⾃重产⽣的抗滑⼒来满⾜稳定要求;同时依靠坝体之中产⽣的压应⼒来减⼩库⽔压⼒所引起的上游坝⾯拉应⼒以满⾜强度要求。
适⽤条件:绝⼤部分建在岩基上,可承受较⼤的压应⼒,还可利⽤坝体混凝⼟与岩基表⾯之间的凝聚⼒,提⾼坝体的抗滑稳定安全度。
答:优点:强度⾼、耐久性好、安全可靠,施⼯⽅便坝顶、坝⾝可溢流——便于施⼯导流、泄洪布置坝段受⼒简单、结构作⽤明确——应⼒稳定分析简单缺点:对地形、地质条件适应能⼒强缺点:剖⾯⼤——按应⼒、稳定确定砼材料抗压性能不能充分发挥坝底扬压⼒⼤——对稳定、应⼒不利体积⼤,施⼯温控措施复杂2.重⼒坝如何进⾏分类?答:重⼒坝的分类⽅法很多,主要有以下⼏种:按⾼度分类按坝⾼分:⾼坝:H>70m中⾼坝:H=30-70m低坝:H<30m按泄⽔条件分类;溢流重⼒坝,⾮溢流按筑坝材料分类;砼重⼒坝、浆砌⽯重⼒坝按坝体结构形式分类;实体~、宽缝~、空腹~、碾压砼~、预应⼒锚固~3.简述重⼒坝的设计过程。
答:①枢纽布置②剖⾯设计——设计⾮溢流坝段、溢流坝段、泄⽔孔坝段剖⾯形式③稳定、应⼒计算—计算在荷载作⽤下,坝体抗滑稳定、坝底坝⾝应⼒是否满⾜规范要求④细部构造设计——廊道、分缝…5、消能防冲设计6、地基处理措施确定⑦若上述④⑤⑥有⼀项不满⾜,应重新拟定坝体剖⾯尺⼨,并重新进⾏计算。
4.提⾼重⼒坝抗滑稳定的⼯程措施有哪些?答:①利⽤⽔重来增加坝体⾃重:②采⽤有利的开挖轮廓线:③设置齿墙:④抽排⽔措施:⑤加固地基:⑥预应⼒措施:5.⽤材料⼒学法计算重⼒坝应⼒的主要假定是什么?答:①、假定坝体混凝⼟为均质连续各向同性的弹性体材料②、视坝段为固接于坝基上的悬臂梁,不考虑地基变形对坝体应⼒的影响,并认为各坝段独⽴⼯作,横缝不传⼒。
一、单项选择题1.水闸是一种利用闸门挡水和泄水的()水工建筑物。
A.低水头B.中水头C.中高水头D.高水头【正确答案】:A【答案解析】:参见教材P111【该题针对“水闸的分类与组成”知识点进行考核】2.按水闸承担的任务分类。
用于拦洪、凋节水位的水闸称为()。
A.进水闸B.分洪闸C.节制闸D.挡潮闸【正确答案】:C【答案解析】:参见教材P111【该题针对“水闸的分类与组成”知识点进行考核】3.水闸按过闸流量大小可分为大、中、小型三种形式,其中大型水闸的过闸流量为()以上。
A.1000m3/sB.4000m3/sC.2000m3/sD.1500m3/s【正确答案】:A【答案解析】:参见教材P112【该题针对“水闸的分类与组成”知识点进行考核】4.用以引导水流平顺地进人闸室,并与闸室等共同构成防渗地下轮廓的水闸组成部分是()。
A.闸门B.上游连接段C.闸室D.下游连接段【正确答案】:B【答案解析】:参见教材P112、113【该题针对“水闸的分类与组成”知识点进行考核】5.立式轴流泵、卧式轴流泵、斜式轴流泵是按()分类的。
A.泵轴的安装形式B.叶片的调开方式C.叶轮的数目D.叶片的数目及形状【正确答案】:A【答案解析】:参见教材P120【该题针对“水泵机组的选型”知识点进行考核】6.泵站枢纽的布置主要是根据()来考虑。
A.泵站组成B.泵站综合利用要求C.水泵类型D.泵站所承担的任务【正确答案】:D【答案解析】:参见教材P119【该题针对“泵站的组成及布置”知识点进行考核】7.利用拦河坝使河道水位壅高,一般为中、高水头水电站是()水电站。
A.坝式B.引水式C.有调节D.河床式【正确答案】:A【答案解析】:参见教材P121【该题针对“水电站的组成及分布”知识点进行考核】8.无压引水道中采用的平水建筑物是()。
A.坝B.调压室C.隧洞D.压力前池【正确答案】:D【答案解析】:参见教材P122【该题针对“水电站的组成及布置”知识点进行考核】9.v应用水头范围广(约为20~700m)的水轮机是()水轮机。
第五章复习思考题1.什么叫水闸?按水闸作用分有几类?按闸室结构形式如何分类?2.土基上的水闸由哪几部分组成?各起什么作用?3.闸孔型式有哪几种?各自优缺点及适用条件是什么?4.为什么水闸通常采用底流水跃消能?怎样选择消力池的形式?5.水闸有哪些辅助消能工?它们各自的形式和作用是什么?6.什么叫波状水跃?产生波状水跃的原因是什么?怎样防止波状水跃带来的危害?7.海漫的作用是什么?对它有什么要求?如何选择材料和确定其尺寸?8.闸基渗流有哪些危害性?9.什么叫地下轮廓线和闸基防渗长度?如何确定闸基防渗长度?10.闸基渗流的计算目的是什么?有哪些计算方法?各自精度和适用条件如何?11.改进阻力系数法认为任一流段的水头损失为,此式怎样推导来的?12.闸室是水闸的主体,它由哪几部分组成?各部分的主要作用是什么?13.试根据不同分类方法说明闸底板有哪些类型?14.胸墙有哪些形式?如何选择?15.对水闸闸室必须进行哪些情况下的稳定验算?各计算情况应包括哪些荷载?16.抗滑稳定安全系数若不满足《规范》的要求,有哪些改善稳定的措施?17.整体式平底板应力计算有倒置梁和弹性地基梁法,试述其适用情况。
18.整体式底板不平衡剪力是怎样产生的?19.水闸连接建筑物的作用是什么?20.水闸两岸连接建筑物有哪些布置形式?各自特点是什么?21.上下游翼墙有哪些结构形式?综合测试1.水闸是(A)挡水建筑物;(B)泄水建筑物;(C)即能挡水,又能泄水的水工建筑物;(D)输水建筑物。
2.节制闸(拦河闸):(A)一般在洪水期,抬高上游水位,枯水期,下泄流量;(B)一般在洪水期,下泄流量,枯水期,抬高上游水位;(C)在洪水期和枯水期,都需要抬高上游水位;(D)在洪水期和枯水期,都下泄流量。
3.排水闸的作用:(A)排除内涝积水,抵挡外河洪水;(B)抵挡内涝积水,排除外河洪水;(C)排除内涝积水和外河洪水;(D)抵挡内涝积水和外河洪水。
4.带胸墙水闸(A)适于挡水位低于引水水位或排水水位的情况;(B)适于引水位高于挡水水位或排水水位的情况;(C)适于引水位高于引水水位或挡水水位的情况;(D)适于挡水位高于引水水位或排水水位的情况。
5.底板高程确定的原则有:(A)拦河闸、冲砂闸的底板高程可低于河底;(B)进水闸底板高程在满足引水的条件下,可低些,用以挡砂;(C)排水闸的底板高程尽可能低些,用以排污;(D)小型水闸,在满足过流要求的前提下,可低些。
6.底流消能工程作用使过闸水流(A)在闸下游消力池内产生一定淹没度的水跃;(B)在闸下游消力池内产生淹没式水跃;(C)在闸下游消力池内产生远离式水跃;(D)在闸下游消力池内产生临界水跃。
7.地下轮廓线是(A)水闸闸底板和下游消力池等不透水部分和地基的接触线,即为防渗边界线;(B)水闸和地基的接触线,即为防渗边界线;(C)水闸上游铺盖和闸底板等透水部分和地基的接触线,即为防渗边界线;(D)水闸上游铺盖和闸底板等不透水部分和地基的接触线,即为防渗边界线。
8.分离式底板受力特点是:(A)闸室的闸墩及上部结构重量由底板传至地基;(B)闸室的闸墩及上部结构重量由闸墩底板传至地基;小底板仅承受自身重量及板上水重;(C)闸室的闸墩及上部结构重量由闸墩传至地基;小底板仅承受自身重量;(D)闸室的闸墩的结构重量由闸墩底板传至地基;小底板仅承受板上水重。
9.整体式底板不平衡剪力产生是因为:(A)闸底板在垂直水流方向,底板上部结构有突变,底板下地基反力分布呈连续分布;(B)闸底板在顺水流方向,底板上部结构呈连续分布,底板下地基反力分布有突变;(C)闸底板上部结构有突变,底板下地基反力分布呈直线分布;(D)闸底板在顺水流方向,底板上部结构有突变,底板下地基反力分布呈连续分布。
10.上游翼墙的功能是:(A)挡土、消除水流能量,与铺盖共同承担防渗的作用;(B)挡土、平顺引导水流,与铺盖共同承担防渗的作用;(C)挡土、控制过闸水流,与铺盖共同承担防渗的作用;(D)挡土、平顺引导水流,与铺盖共同维持闸室稳定。
答案复习思考题1、水闸:即能挡水,又能泄水的水工建筑物。
按水闸的作用分类有①进水闸(渠首闸)②节制闸(拦河闸)③排水闸④分洪闸⑤冲砂闸(排砂闸)⑥挡潮闸按水闸的结构形式分类开敞式水闸洞式水闸2、水闸的组成上游连接段(铺盖及两岸翼墙):用于平顺引导水流;闸室(闸门、闸墩、底板、工作桥、公路桥):用于控制过闸流量,控制上游水位;下游连接段(护坦、海曼等消能设施):用于消除过闸水流的能量。
3、(1)开敞式不带胸墙闸孔①可泄洪、排冰、过木或其他漂浮物等,用于分洪闸、拦河闸;②过闸水流为堰流;③位于河道、渠道的过水断面上。
(2)开敞式带胸墙闸孔①适于挡水位高于引水水位、排水水位,如进水闸、排水闸。
②减少活动闸门的高度。
(3)涵洞式闸孔:适合于位于河渠、堤防之下的取水、排水水闸。
4、水闸在水流方面,泄流量多变,下游消能情况复杂,下游地基抗冲能力差,容易引起河床及两岸的淘刷。
底流水跃消能工程,主要通过在闸下游产生一定淹没度的水跃,保护水跃范围内的河床免受水流的冲刷。
当尾水深度略小于或等于跃后水深,可采用消力坎式消力池。
当尾水深度小于跃后水深1.0~1.5m,可采用深挖式消力池。
当尾水深度小于跃后水深1.5m以上,可采用综合式消力池。
5、辅助消能工的作用为,加强扰动,增加消能效果,以减少池深、池长。
辅助消能工的形式有:①在闸室下游接一水平段,并在其后设一道小坎,以防止波状水跃。
②在消力池的前部或后部设消力墩,形成对水流的反力作用。
③尾坎在消力池末端设尾坎,调整出池流速分布。
6、在大流量泄流,而上下游水位落差小的情况下,由于水流佛氏数低,此时往往是形成不完全水跃,即为波状水跃。
若发生波状水跃,则消能极不充分,应在闸底板平台末端,斜坡连接段的上游处设置小坎,小坎的断面形状一般为梯形,出闸水流遭遇小坎时,水流向上挑起后,跌落入消力池潜入水中,小坎能够有效的完成水面衔接,加大消能效果。
7、海曼的作用为消除余能、调整流速、保护下游河床免受冲刷。
海曼的构造要求是,海曼应具有柔性,适应河床的变形;粗糙性,消除余能;透水性,渗水能自由排除。
海曼的材料常采用干砌石、浆砌石、混凝土板块、铅丝石笼。
海曼的长度L:式中,:河床土质系数,粉砂、细砂土质,=13~15;中砂、粗砂及砂壤土土质,=10~12;壤土土质,=8~9,粘土土质,=6~7。
:消力池出口单宽流量。
H:上下游水位差。
8、渗流对水闸的危害①闸基下的渗透压力,降低了闸室的稳定性,两岸的绕渗,对两岸翼墙产生侧推力。
②渗流会加速地基内可溶性物质的溶解,引起闸基和两岸土体的渗透破坏。
③渗流会引起水量的损失。
9、地下轮廓线即为水闸上游铺盖和闸底板等不透水部分和地基的接触线,也称为防渗边界线、渗径长度。
地下轮廓线布置原则是上防下排。
地下轮廓线长度:L=CHC:渗径系数H:上下游水位差。
10、闸基下的渗透压力计算的目的是验算闸室的稳定性。
直线比例法认为闸基下渗透流沿地下轮廓线长度各点的渗透坡降相同,即各点的渗透水头的损失是均匀的。
改进阻力系数法由地下轮廓线上的角点、板桩的尖点的等水头线,将渗流区分为若干段,如进口段、水平段、垂直段、出口段,分别计算各段的水头损失为,各段中间的水头损失按直线变化,即可绘出闸基下的渗透压力分布图。
改进阻力系数法较直线比例法精度高。
11、①由地下轮廓线上的角点、板桩的尖点的等水头线,将渗流区分为若干:进口段、水平段、垂直段、出口段。
②求解每个典型段的渗流阻力系数。
根据达西定律:任一段的单宽流量为::通过该渗流段的渗透水头损失;:该渗流段的平均流线长度;:透水层深度;:该渗流段的阻力系数,只与该渗流段的几何形状有关。
③由水流的连续条件,流经各渗流段的单宽流量相等,则任一流段的水头损失为:④总水头差应为各段水头损失的总和:⑤各段水头损失:12、闸室由底板、闸墩、闸门、启闭机和工作桥、公路桥、胸墙组成。
底板作用:作为闸室的基础,将闸室及上部结构重量传到地基上。
作为地下轮廓线的组成部分,降低通过地基的渗透水流的渗透压力水头。
闸墩作用为分隔闸孔,承受传递水压力,支承闸墩上部结构重量。
闸门的作用是控制过闸水流。
胸墙的作用是减小活动闸门的高度。
13、按水流条件分类:闸底板有有宽顶堰型、实用堰型。
按结构受力条件分类:有分离式闸底板、整体式闸底板和反拱式闸底板。
14、胸墙的结构形式有:当胸墙的跨度小于5.0m,宜采用实心板式;当胸墙的跨度大于5.0m,宜采用肋形结构,即板梁式结构。
15、水闸闸室必须进行沿基础面或深层结构面的抗滑稳定验算和基底压力验算。
计算荷载有:①自重;②静水压力;③扬压力=浮托力+渗透压力;④浪压力;⑤泥砂压力;⑥地震荷载16、提高闸室稳定性的措施①当基底压力不均匀系数过大,可适当调整闸门、公路桥等上部结构的位置。
②当抗滑稳定系数偏小,可以将闸门下移,增加上游水重;加深底板上的齿墙;增加上游铺盖的长度;将铺盖作为阻滑板:满足式中,:作用在铺盖上的垂直力。
17、弹性地基梁在计算闸底板内力时,考虑了地基变形与底板基础变形的协调一致,底板下的地基反力呈曲线分布。
弹性地基梁是水闸设计规范推荐的计算公式。
倒置梁将闸室底板作为固支在闸墩上的梁来计算闸底板内力,没有考虑地基变形与底板基础变形的协调一致,假定底板下的地基反力呈直线分布。
适用于底板上分缝的双悬臂梁式结构。
18、闸底板在顺水流方向,底板上部结构有突变,底板下地基反力分布呈连续分布,单宽板条上下的荷载不平衡,则板条两侧有不平衡剪力存在,以维持板条的平衡。
19、上游翼墙的功能是挡土、平顺引导水流,与铺盖共同承担防渗的作用。
下游翼墙的功能是挡土、引导出闸水流沿翼墙均匀扩散。
20、反翼墙:水流条件和防渗效果好,工程量大。
②扭曲面翼墙:水流平顺,工程量小,但施工复杂。
③斜翼墙:工程量小,施工简单,水流条件差。
21、上下游翼墙结构形式有:重力式:用于挡土高度为5m~6m的情况;悬臂式:用于挡土高度为6m~8m的情况;扶壁式:用于挡土高度为8m~9m的情况;空箱式:用于挡土高度为6m~10m的情况。
综合测试1、C2、B3、A4、D5、C6、A7、D8、B9、D10、B。