土建技术员必看
- 格式:doc
- 大小:3.41 MB
- 文档页数:110
土建工程师必备知识一、地质报告看什么?1、先看清楚地质资料中对场地的评价和基础选型的建议,好对场地的大致情况有一个大概的了解;2、根据地质剖面图和各土层的物理指标对场地的地质结构、土层分布、场地稳定性、均匀性进行评价和了解;3、确定基础形式;4、根据基础形式,确定地基持力层、基础埋深、土层数据等;5、沉降数据分析;6、是否发现影响基础的不利地质情况,如土洞、溶洞、软弱土、地下水情况.......等等。
注意有关地下水地质报告中经常有这样一句“勘察期间未见地下水“,如果带地下室,而且场地为不透水土层,例如岩石,设计时必须考虑水压,因为基坑一旦进水,而水又无处可去,如果设计时未加考虑那就麻烦了。
二、钢筋验收验什么?1钢筋数量与直径;2钢筋锚固;3 钢筋间距;4 钢筋保护层;5 箍筋弯钩;6 后浇带钢筋;7 拉结筋;8 钢筋搭接长度及接头率;9 钢筋接头部位;10 钢筋合格证及试验报告。
三、验槽到底该验什么?验槽是为了普遍探明基槽的土质和特殊土情况,据此判断异常地基的局部处理;原钻探是否需补充,原基础设计是否需修正,对自己所接受的资料和工程的外部环境进行确认。
1 地基土层是否是到达设计时由地质部门给的数据的土层,是否有差别,主要由勘察人员负责;2 基础深度是否达设计深度,持力层是否到位或超挖,基坑尺寸是否正确,轴线位置及偏差、基础尺寸;3 验证地质报告,有不相符的情况下协商解决,修改设计方案;4 基坑是否积水,基底土层是否被搅动;5 有无其他影响基础施工质量的因素(如基坑放坡是否合适,有无塌方)四、主体验收验什么?主体验收,土建工程师主要注意的内容有:1、梁柱板尺寸定位是否设计要求,其成形质量如何,是否有蜂窝麻面等。
还有是否有修补的痕迹,如果有,应询问修补的原因,是否对结构有影响。
2、预埋件是否准确埋设,插筋是否预留,雨水管过水洞是否留设准确,卫生间等设备是否按要求留设,对后封的洞板钢筋是否预留等。
3、砌体工程的砂浆是否饱满,强度是否够(可以用手扳一下),砌体的放样如何,是否平直,墙面是否平整。
土建施工员知识点一、知识概述《土建施工员知识点》①基本定义:土建施工员就是在土建工程项目中,具体负责组织和指导施工的人员,就像是建筑这个大工程里的小队长,带着一群工人干活,确保工程按照设计要求顺利进行。
②重要程度:在土建工程里可是相当重要。
要是没有施工员,那工程就像没头的苍蝇,不知道从哪开始,怎么进行,最后也盖不出合格的房子。
施工员得懂各个环节,得协调各种资源,所以是工程能顺利开展并且质量达标的关键人物。
③前置知识:首先得有点数学知识,像计算面积、体积之类的。
还得了解基本的建筑材料知识,像啥水泥、沙子、钢筋的特点。
另外,看图纸也得会,能把设计师画在纸上的方案,在实际场地给实现喽。
④应用价值:实际应用场景太多了。
比如盖居民楼,得有施工员指挥工人先打地基,再一层一层往上盖。
建商场也是,施工员要安排好各个区域的施工顺序。
意义就是能保证土建工程顺利、安全、高效地进行,还能控制成本,保证质量。
二、知识体系①知识图谱:在土建学科里,施工员知识点位于核心地位。
它就像一棵树的树干,跟周围的树枝(像造价、设计等相关知识)都有联系,一起撑起土建工程这个大树。
②关联知识:和工程力学有关,能明白结构怎么受力,才能安排正确的施工顺序。
还跟建筑材料勾搭得紧,知道材料特性,施工的时候才能拿捏好怎么用。
测量也是好兄弟,知道怎么测量放线,工程界限才清楚。
③重难点分析:掌握的难度在于要把各个环节都摸透。
关键就在于一个细字,比如混凝土浇筑,稍微不注意比例、振捣不实,后期就可能有裂缝。
④考点分析:在考试中相当重要。
考试的时候就会考查施工流程、施工规范这些。
像选择题可能问某个施工环节的正确顺序,简答题可能让解释一下某施工技术的要点。
三、详细讲解【方法技能类】①基本步骤:- 施工前期,先得看图纸,合约什么的,像拿到一个作战地图,知道甲方想要啥玩意。
然后根据图纸测量放线,这就划清了干活的地盘,好比孙悟空给唐僧画的保护圈。
接着安排材料和设备进场,就像大宴宾客前把食材什么的准备好。
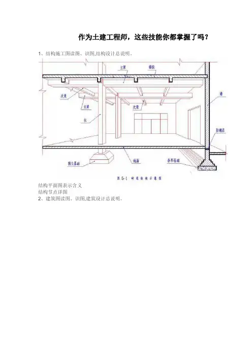
作为土建工程师,这些技能你都掌握了吗?1、结构施工图读图、识图,结构设计总说明。
结构平面图表示含义结构节点详图2、建筑图读图、识图,建筑设计总说明。
建筑平面图表示含义建筑节点详图3、图纸会审,图纸会审流程,图纸会审技巧,图纸会审注意事项,图纸会审审查内容.4、技术交底,技术交底的作用与分类,技术交底编制要求,技术交底编制重点,技术交底实施方法,技术交底管理程序及注意事项.5、施工组织设计,施工组织设计分类,施工组织设计基本内容,单位工程施工组织设计编制要点.6、房建施工全过程技术与质量管理概述,房屋建筑施工流程。
基础与主体结构施工技术与质量管理二次结构与装修施工技术与质量管理7、建筑施工模板安全技术规范(JGJ162-2008)解读与应用总则与术语。
模板体系材料选用模板体系荷载计算模板设计一般规定现浇混凝土模板设计计算模板构造与安装模板拆除安全管理及案例分析8、模板工程施工技术与管理.常用模板类型、模板施工技术与质量控制要点。
9、平法识图与钢筋计算.平法图集(11G101)及算量原理介绍梁钢筋识图与算量柱钢筋识图与算量墙钢筋识图与算量板钢筋识图与算量10、钢筋工程施工技术与管理。
钢筋工程施工质量预控钢筋施工过程质量控制钢筋施工质量成品保护11、混凝土结构工程施工质量验收规范(GB50204-2011)解读与应用综合概述。
钢筋分项工程预应力分项工程混凝土分项工程现浇与装配式结构分项工程混凝土结构子分部工程12、混凝土工程施工技术与管理实战演练。
混凝土施工工艺流程控制混凝土施工质量控制要点总结13、防水工程施工技术与管理。
术语防水施工质量控制要点14、建筑施工结构质量问题预防与处理。
材料堆放及标识钢筋施工质量问题及处理措施模板施工质量问题及处理措施混凝土施工质量问题及处理措施脚手架施工质量问题及处理措施15、装修施工质量问题预防与处理.裂缝、渗漏、空鼓等问题预防与处理二次结构施工质量问题及处理措施电气、水暖施工质量问题及处理措施16、建筑施工细部节点优秀做法集锦。
原创土建专业岗位人员基础知识[TOC]1. 引言土建工程是指通过设计、施工和维护工程结构、建筑物和基础设施来改善社会环境的工程领域。
土建专业岗位人员在土建工程中起着关键的作用。
本文将介绍土建专业岗位人员应具备的基础知识,以帮助读者理解土建工程的基本概念和原理。
2. 建筑物结构建筑物结构是土建工程中最基本的概念之一。
它包括建筑物的框架、墙体、楼板和屋面等组成部分。
了解建筑物结构的基本原理对于土建专业岗位人员至关重要。
建筑物结构的设计和施工取决于多种因素,包括荷载、材料性能和结构形式等。
2.1 荷载荷载是指施加在建筑物结构上的外部力量。
常见的荷载类型包括自重荷载、活荷载和风荷载等。
自重荷载是由建筑物本身的重量引起的,活荷载是指人员、家具和设备等引起的荷载,风荷载是指风力对建筑物产生的荷载。
2.2 材料性能土建工程中使用的材料包括混凝土、钢筋和砖块等。
了解这些材料的性能对于设计和施工至关重要。
例如,混凝土的强度和耐久性决定了建筑物的稳定性和寿命。
2.3 结构形式建筑物可以采用不同的结构形式,如框架结构、梁柱结构和剪力墙结构等。
不同的结构形式适用于不同的情况。
土建专业岗位人员需要了解各种结构形式的特点和适用范围,以便进行合适的设计和施工。
3. 建筑施工技术建筑施工技术是土建工程中另一个重要的方面。
它包括建筑施工流程、施工设备和施工管理等。
了解建筑施工技术可以帮助土建专业岗位人员更好地组织施工活动,确保施工质量。
3.1 施工流程建筑施工流程涉及多个环节,如基础施工、主体施工和装饰施工等。
土建专业岗位人员需要了解每个环节的要求和顺序,以便正确地组织施工活动。
3.2 施工设备建筑施工中使用的设备包括吊车、混凝土搅拌机和起重机等。
了解施工设备的性能和操作规程对于土建专业岗位人员至关重要。
他们需要熟悉设备的使用方法,并能够安全地操作。
3.3 施工管理建筑施工需要进行有效的管理,以确保施工进度和质量。
土建专业岗位人员需要具备良好的施工管理技巧,如计划编制、资源分配和质量控制等。
一名合格土建工程师的必备技能,看你够格吗??
间慢慢沉淀的,优秀没有捷径,只有多实践、多思考、多总结。
小编整理出了很多实用的施工的经验,希望对你能有帮助。
施工前期
一、识图和审图
施工技术管理的第一步就是识图,因为图纸是现场施工的依据,识图要充分了解设计者的意图,找出图纸中出现的问题。
1、识图阶段
程序如下:
1)先粗后细:先看平面、立面、剖面,再看细部的做法。
2)先小后大:先看小样,后看大样。
3)先建筑后结构:先看建筑图,后看结构图,要核对建筑图和结构图的轴线位置是否相符,有无矛盾。
4)先一般,后特殊:先看一般部位和要求,再看特殊部位和要求。
5)图纸和说明综合:图纸和总说明及图中的细部部位要结合起来看,注意图纸和说明有无矛盾,规定是否明确,要求是否可行。
6)土建和安装结合:先看土建图时要参看安装图,在安装图上有的,土建图上有没有表示,尤其是预埋件、预留洞,尺寸更要核对清楚。
7)图纸和实际情况相结合:在熟悉图纸的同时要考虑施工条件能否满足设计要求,设计图纸和现场情况是否吻合,设计图纸同施工作业、规范有无矛盾等。
土建技术员安全管理应知应会知识点一、知识概述《土建技术员安全管理应知应会知识点》①基本定义:土建技术员安全管理应知应会知识点,就是土建技术员在工作里为了保证建筑施工安全,必须了解和做到的一系列知识。
通俗讲,就像开车必须懂交通规则一样,搞土建,就得懂安全管理这点事。
②重要程度:在土建这个学科里,这是超重要的部分。
建筑工程安全事故一发生往往很严重,要是技术员不懂安全管理,就像领航员不懂航线,一个不小心就可能犯大错,房子可能塌了,人也可能受伤。
③前置知识:得先知道土建的一些基本流程,比如打地基、砌墙是怎么做的;还有各种建筑材料的性质,像混凝土有多结实、钢条有多坚韧。
④应用价值:实际应用场景太多了。
在施工现场,能保证工人安全作业,防止意外发生;保证工程顺利进行,不会因为安全问题返工或者停工。
我之前参与一个小建筑项目,就是因为前期安全管理没做到位,工人不小心弄倒了一块大模板,差点砸到人,后来重新安排安全方面事情,工程进度被耽误了不少。
二、知识体系①知识图谱:在土建学科里,安全管理知识点就像一张网络里的重要节点,和工程的各个环节都相连。
设计到施工到验收,都离不开安全管理。
②关联知识:它和土建力学知识有关,因为要根据建筑结构的力学原理来确定安全措施,比如高楼大厦的脚手架怎么搭才安全。
和建筑材料知识也有关,易燃的材料就要注意防火措施。
③重难点分析:掌握的难点在于安全标准更新快,不同地区还有不同的要求。
关键就是要随时关注安全新规,并且严格执行。
例如新的消防规范出来了,就得赶紧调整施工现场的消防安排。
④考点分析:在工程类的考试里很重要。
可能会通过选择题、案例分析题考查。
比如给出一个施工现场的场景,让找出安全隐患并提出解决办法。
三、详细讲解【实践应用类】①准备工作:需要的工具就是安全手册,各种警示标识,还有安全帽、安全绳等防护设备。
材料就像防火布之类用于防范危险的。
②操作流程:首先要制定安全计划,包括每个工序可能出现的危险和对策。
土建施工员基础必学知识点
1. 施工过程管理:了解施工项目的整体流程,并能够根据施工计划进
行合理的施工进度安排和资源调配。
2. 土木工程基础知识:理解土木工程的基本概念、原理和常用的材料、设备、工艺等,并能将其应用于实际施工中。
3. 建筑结构基础知识:熟悉常见建筑结构的类型、构造原理和施工要点,能够进行基础、框架和装饰等施工工艺。
4. 基础与地基工程知识:掌握基础工程的设计原则、施工方法和验收
标准,了解地基处理的常用方法和技术。
5. 建筑施工技术:熟悉室内外装修、墙体砌筑、地面铺装、水电安装、防水施工等常见的建筑施工技术。
6. 施工图纸阅读:能够正确理解和解读工程施工图纸,理解各种施工
图符号和标记的含义,并能根据图纸进行施工操作。
7. 施工安全知识:了解施工现场的各种安全风险和危险源,掌握常用
的施工安全措施和防护设备,并能有效组织施工现场的安全管理。
8. 工程质量管理:掌握工程质量的基本要求和控制方法,能够进行质
量检查、验收,并处理施工中出现的质量问题。
9. 施工项目的财务管理:具备一定的财务知识,能够进行工程量计算、预算编制和成本控制,并能进行工程施工的物资采购和结算。
10. 相关法律法规:了解土建施工相关的法律法规,包括建筑法、施工安全法等,能够按照法律法规要求进行施工管理和操作。
建筑工程土建工程师应知应会1. 背景介绍建筑工程土建工程师是建筑项目中负责土木结构工作的专业人员。
他们负责规划、设计和监督建筑物的基础结构,确保建筑的结构完整性和稳定性。
他们在建筑工程项目中起到关键作用,必须具备一定的知识和技能。
2. 专业知识与技能2.1 地基基础设计与施工•掌握地基基础的设计原理和计算方法,能够根据土壤工程特点选择适当的地基类型。
•熟悉地基施工工艺和方法,能够制定合理的施工方案,并能够进行地基处理和加固。
•理解地基基础与建筑物之间的相互作用,能够评估地基的稳定性和承载能力。
2.2 结构设计与计算•具备结构设计的基本原理和方法,能够进行各类建筑物的静力分析和结构计算。
•熟悉常用的结构材料,能够选择合适的材料并进行结构设计和优化。
•掌握建筑结构的荷载计算方法,能够根据设计要求确定合理的结构荷载。
2.3 施工技术与管理•熟悉土建工程施工的各个环节和流程,能够制定合理的施工方案,并对施工现场进行有效的管理。
•熟悉土建工程中常见施工工艺和技术要求,能够对施工质量进行控制和检验。
•具备解决施工现场技术问题的能力,能够妥善处理施工中的各类困难和风险。
3. 具备的软技能3.1 沟通和协作能力•能够与项目团队、建筑设计师、业主等多方人员进行有效的沟通和协调,确保项目进展顺利。
•具备良好的团队合作精神,能够与其他专业人员密切合作解决问题。
3.2 问题解决和决策能力•能够快速分析和解决施工现场出现的各类技术问题,确保施工进度和质量。
•具备独立思考和决策的能力,能够在紧急情况下做出正确的决策。
3.3 学习和适应能力•能够持续学习和更新行业知识,跟踪建筑工程领域的最新发展和技术趋势。
•具备适应复杂的建筑项目环境的能力,能够灵活应对各种挑战和变化。
4. 职业发展建筑工程土建工程师是建筑项目中不可或缺的角色之一。
随着建筑行业的发展,土建工程师的工作前景广阔。
他们可以在设计院、施工单位、监理机构等单位工作,也可以选择独立承接项目。
土建工程师必备知识摘要:本文将论述土建工程师的必备知识,介绍了基础知识、建筑材料、建筑结构、土力学、施工技术、环境保护与安全卫生及相关管理等内容。
旨在帮助土建工程师丰富甚至完善所掌握的知识,更好地就从事相关行业发挥作用。
关键词:土建工程师;必备知识;建筑材料;建筑结构;土力学;施工技术;环境保护;安全卫生;管理正文:一、基础知识土建工程师必须具备完善的数学和物理基础,包括微观分析和力学理论,这些知识将帮助他们根据土建结构的应力设计施工规模和材料选择。
二、建筑材料建筑材料是土木工程的基础,土建工程师必须掌握各种建筑材料的特性和性能,如混凝土梁、钢梁、砌体、砂浆和防水材料, 并熟练掌握施工技术和施工要求。
三、建筑结构土建工程师必须具备建筑结构知识,了解各种结构的原理和设计方法,如框架结构、悬索结构、拱形结构、筒形结构等,以及其在不同情况下的使用方法。
四、土力学有关土地的属性和土体的力学、流变性能,土建工程师必须掌握,以便更好地进行地基和基础的施工设计,避免结构层面可能出现的问题。
五、施工技术土建工程师必须熟练掌握施工技术,了解各种土木工程施工方法和要求,认识各种设备的性能和参数,以及如何有效地施工。
六、环境保护与安全卫生施工过程中,土建工程师应坚持环境保护原则,了解重大工程施工和同时发生安全事故的危险,并采取有效措施预防和抵御风险。
七、相关管理土建工程师还需要了解项目管理方面的知识,掌握人力资源管理、财务管理、合同管理等方面的基本原理。
土建工程师必备知识的应用主要包括对施工项目规划、质量把控以及安全卫生管理等方面的实际操作。
(1)施工项目规划土建工程师利用土木工程必备的知识进行施工项目的规划,其中包括为施工准备所有必要的材料,合理选择施工工具,严格控制施工质量等,以便项目可以按时按质按量交付。
(2)质量把控土建工程师利用土木工程必备知识进行质量把控。
他们要熟悉地质构造和土体参数,熟悉施工过程中每一步的施工技术要求, 同时还要及时纠正施工过程中出现的问题,以提高施工质量。
土建工程施工员必读一、施工前的准备工作在进行土建工程施工工作之前,施工员需要对工程进行详细的规划和准备工作。
首先,需要详细的了解施工图纸和设计要求,对工程的整体要求和施工流程有个清晰的认识。
其次,需要对工地进行勘察和测量,了解地形地貌和环境情况,为后续的施工工作做好准备。
同时,还需要对施工材料和设备进行检查和准备,确保施工现场有足够的材料和设备供应,以保证施工进度和质量。
二、施工过程中的注意事项在进行土建工程施工工作的过程中,施工员需要注意以下几个方面的事项:1. 施工安全:施工员需要严格遵守施工现场的安全规定,佩戴安全帽、安全鞋等防护用品,避免发生意外事故。
同时,施工员需要对施工现场进行定期检查和整改,及时排除安全隐患,确保施工现场的安全。
2. 施工质量:施工员需要按照设计要求和工程标准进行施工,严格控制施工质量,确保施工工程符合要求。
施工员需要对施工过程进行质量检查和验收,及时发现并整改存在的质量问题,保证工程质量。
3. 施工进度:施工员需要合理安排施工进度,制定详细的施工计划和时间表,确保工程按时完成。
同时,施工员需要及时调整施工计划,处理施工中的问题和延误,保证施工进度顺利进行。
4. 施工协调:施工员需要与其他施工人员和相关部门进行良好的沟通和协调,协同工作,共同推进工程进展。
在施工过程中,施工员需要及时协调解决各种问题和矛盾,确保施工工作正常进行。
5. 施工记录:施工员需要及时记录施工过程中的关键信息和重要事项,制作施工日志和施工报告,确保施工过程有据可查,为后续的施工管理和验收提供依据。
三、施工后的总结和反思在完成土建工程施工工作之后,施工员需要对整个施工过程进行总结和反思,找出存在的问题和不足,及时进行改进和提升。
施工员需要从工作中吸取经验和教训,不断提高自身的施工能力和水平,为今后的工作积累经验和制定更合理的施工方案。
综上所述,作为一名土建工程施工员,需要不断学习和提升自身的专业素养和实践能力,不断丰富自己的工作经验和技能,才能胜任和完成好工程施工工作。
土建施工员必备的41条知识一个合格的施工员,应该是个涉猎比较广的建筑从业人员,可以在以下41条知识丰富自己;拥有良好的组织协调能力,具备不断充电,掌握科学的、新的知识的态度才能真正提升自己1、什么是容积率?答:容积率是项目总建筑面积与总用地面积的比值。
一般用小数表示。
2、什么是建筑密度?答:建筑密度是项目总占地基地面积与总用地面积的比值。
一般用百分数表示。
3、什么是绿地率(绿化率)?答:绿地率是项目绿地总面积与总用地面积的比值。
一般用百分数表示。
4、什么是日照间距?答:日照间距,就是前后两栋建筑之间,根据日照时间要求所确定的距离。
日照间距的计算,一般以冬至这一天正午正南方向房屋底层窗台以上墙面,能被太阳照到的高度为依据。
5、建筑物与构筑物有何区别?答:凡供人们在其中生产、生活或其他活动的房屋或场所都叫做建筑物,如公寓、厂房、学校等;而人们不在其中生产或生活的建筑,则叫做构筑物,如烟囱、水塔、桥梁等。
6、什么是建筑“三大材”?答:建筑“三大材”指的是钢材、水泥、木材。
7、建筑安装工程费由哪三部分组成?答:建筑安装工程费由人工费、材料费、机械费三部分组成。
8、什么是统一模数制?什么是基本模数、扩大模数、分模数?答:(1)、所谓统一模数制,就是为了实现设计的标准化而制定的一套基本规则,使不同的建筑物及各分部之间的尺寸统一协调,使之具有通用性和互换性,以加快设计速度,提高施工效率、降低造价。
(2)、基本模数是模数协调中选用的基本尺寸单位,用M表示,1M=100mm。
(3)、扩大模数是导出模数的一种,其数值为基本模数的倍数。
扩大模数共六种,分别是3M(300mm)、6M(600mm)、12M(1200mm)、15M(1500mm)、30M(3000mm)、60M(6000mm)。
建筑中较大的尺寸,如开间、进深、跨度、柱距等,应为某一扩大模数的倍数。
(4)、分模数是导出模数的另一种,其数值为基本模数的分倍数。
土建专业岗位人员基础知识1. 前言土建专业是建筑工程学中的一门重要学科,涉及到建筑工程的设计、施工、监理等方面。
土建专业岗位人员需要具备一定的基础知识,才能更好地开展工作。
本文将介绍土建专业岗位人员必备的基础知识。
2. 土建工程概述土建工程是指建筑工程的基础工程,包括土方工程、混凝土工程、钢筋工程等。
土建工程的主要任务是为建筑物提供稳定的基础和支撑结构,确保建筑物的安全性和可靠性。
3. 土建工程的分类根据不同的目的和要求,土建工程可以分为多个类别,常见的包括:•建筑工程:包括房屋、商业建筑、公共建筑等;•桥梁工程:包括公路桥梁、铁路桥梁等;•隧道工程:包括公路隧道、铁路隧道等;•基础工程:包括地基处理、地下排水等。
4. 土建工程的基本流程土建工程的基本流程包括规划设计、施工准备、施工作业和工程验收等阶段。
•规划设计阶段:包括确定工程范围、编制施工方案、绘制施工图纸等;•施工准备阶段:包括场地平整、材料采购、机械设备准备等;•施工作业阶段:包括土方开挖、混凝土浇筑、钢筋焊接等;•工程验收阶段:包括工程质量检验、安全验收、竣工验收等。
5. 常用土建工程材料在土建工程中,常用的材料有:•混凝土:用于建筑物的结构部分,如柱子、梁等;•钢筋:用于混凝土结构中的加固部分,增强结构的强度和稳定性;•砖石:用于墙体、地面等建筑物的搭建;•土石方材料:用于填筑土方和护坡等;•沥青:用于道路工程中的路面铺设;•防水材料:用于防止建筑物渗水,如防水涂料、防水卷材等。
6. 常见土建工程施工工艺在土建工程施工过程中,常用的工艺有:•土方开挖:使用挖掘机、装载机等工程机械进行土方的开挖和平整;•地基处理:包括压实、回填、加固等工序,确保地基的稳定性;•混凝土工艺:包括模板搭设、混凝土浇筑、养护等工序;•钢筋工艺:包括钢筋制作、焊接、安装等工序。
7. 土建工程的质量控制土建工程的质量控制是确保工程质量的重要环节。
常见的质量控制方法包括:•材料质量控制:对采购的材料进行检验,确保材料符合相关标准;•施工工艺控制:按照施工方案要求,控制施工工序的操作流程;•质量检验:对施工过程中的关键节点进行质量检验,如混凝土强度检测、钢筋焊缝检测等;•管理控制:对施工人员进行岗前培训,提升工作质量和安全意识。
一建土建必背知识点随着社会的不断发展,建筑行业也变得越来越重要。
无论是修建房屋、桥梁或者其他基础设施,土建工程都是不可或缺的一部分。
对于从事土建工作的人员来说,掌握一些必备的知识点是必须的。
下面将介绍一些一建土建考试中常见的必背知识点。
1. 结构力学:在土建工程中,结构力学是非常重要的一门学科。
掌握结构力学的基本原理,可以帮助我们理解和分析建筑结构的受力情况。
其中,梁、柱、框架等构件力学性能的计算方法,以及关于梁、柱的截面特性,都是需要掌握的内容。
2. 建筑材料:建筑材料是土建工程中不可或缺的一部分。
了解不同材料的性质、用途和施工方法是非常重要的。
例如,混凝土的配制、施工及强度计算方法,砖和石材的分类及施工技术等都是必备的知识点。
3. 建筑设计与施工技术:在土建工程中,建筑设计是非常关键的一环。
了解建筑设计的原理和常见方法,对于工程的顺利进行起到推动作用。
同时,了解施工技术的规范和要求,可以帮助我们更好地组织施工过程,确保工程的质量和效率。
4. 建筑工程造价与管理:建筑工程造价与管理是土建工程的重要组成部分。
了解建筑工程造价的计算方法和预算要求,可以帮助我们制定合理的施工方案和控制项目成本。
此外,对于工程的整体管理和协调能力也是必不可少的。
5. 土力学与地基基础:地基基础是建筑工程的基础,对整个工程的稳定性和安全性起着至关重要的作用。
了解土力学的基本理论,包括土体力学性质、土体受力及变形规律等,可以帮助我们设计和计算地基基础的合理尺寸和承载力要求。
6. 建筑工程施工与安全:在土建工程中,施工过程的安全性是非常重要的。
掌握合适的施工方法和措施,能够减少事故的发生,增加工人的工作安全性。
同时,了解建筑工程施工的一些基本工艺和现场安全要求也是必须的。
以上是一建土建考试中常见的必背知识点。
对于从事土建工作的人员来说,掌握这些知识将会使工作变得更加容易,提高工作效率和质量。
在实践中持续学习和应用这些知识,可以帮助我们更好地理解和掌握土建工程的要点,为建筑行业的发展做出贡献。
一、确认工程量施工单位说到底在现场干活无非为了赚钱,但是很多时候甲方工程师要求一些合同之外的事情,也就是没有收入可言的。
为什么会出现这种情况,因为作为工程师,面对现场各种突发情况,不能所有的事情都公司买单。
那么对于义务劳动,施工单位可能就爱动不动了,刚开始还卖个面子,次数多了就懒得理你。
这时候确认工程量是个手段,换句话说至少在工程量上承认这个事情是为甲方做的有偿服务。
至于后续怎么结算再说。
二、确认签证单很多单位确认了工程量还没用,因为虽然承认做了这个事情,但是价格没定,最后谈不拢,业主的态度往往是“就是这个价不做也做了”。
所以,一次两次之后施工单位就不怎么听话了,因为没有信任感可言。
这时候拉着成本部确认签证单就很有必要了。
毕竟,凭着签证单是可以做结算依据的。
三、争取进度款施工单位大多不配合的情况都是因为进度款支付不及时。
有些单位土建工程师关于支付进度款没有什么话语权。
但是,对于成熟的房产公司,工程师的话还是很有分量的。
那么这时候,为施工单位争取应得的进度款,会对你感激不尽,做事情自然也配合得多。
四、其他分项弥补对于公司无法做到工程量确认的事项,为了要施工单位帮忙可以在别的分项中给点甜头。
比如,适量增加工程量,或适当抬高其他分项价格等等。
五、画饼充饥对于一些规模较大的地产公司贯用的伎俩就是画饼了。
当然这招要工程经理用比较好使,意思就是说“我公司还有很多其他项目,你配合好点,我给你打更高的评价分数,以便在下次招标时优先选用!”六、软的不行就硬的了对于吃硬不吃软的施工单位还是得采取一些手段。
1、找其他工程质量缺陷,要求整改、停工、甚至罚款,让施工单位明白你已经很客气了。
2、找理由缓报工程款审批。
3、通过公司高层施压,采用更换项目经理等手段。
一、业务水平和素质:甲方代表首先要深入掌握公司和部门的相关管理制度,熟悉各项工作的流程,在此基础上要有一定的扎实的专业技术知识和工作经验,必须不断学习、更新专业知识,同时要重视经验的积累,练就过硬的判断、解决工程技术问题的能力,这样才能更有效地开展工作,完成甲方代表的职责与任务。
工程技术员必考知识点总结工程技术员是一个专门负责工程技术工作的职业,其主要任务是协助工程师进行工程设计、施工和管理工作。
工程技术员需要具备一定的专业知识和技能,以保证工程的质量和安全。
以下是工程技术员必考的知识点总结。
一、土木工程知识1. 土力学土力学是土木工程中的基础学科,是研究土体力学性质和行为的学科。
工程技术员需要了解土体的物理性质、力学性质、剪切强度、渗透性等知识,以便在工程设计和施工中加以应用。
2. 结构力学结构力学是研究结构受力和变形规律的学科,工程技术员需要掌握结构受力分析、受力系统计算、结构稳定性等知识,以便在工程设计和施工中进行结构设计。
3. 水利工程水利工程是利用水资源进行各种工程建设的学科,工程技术员需要了解水文学、水利工程设计原理、水利工程建设技术等知识,以便在水利工程设计和施工中进行工作。
4. 岩土工程岩土工程是研究岩土材料在工程中的性质和行为的学科,工程技术员需要了解地基和基坑工程、岩土工程勘察、岩土工程设计和施工技术等知识,以确保工程的安全和稳定性。
5. 道路工程道路工程是利用土木工程原理和技术进行道路建设和维护的学科,工程技术员需要了解道路工程设计原理、道路材料和结构、道路施工技术等知识,以确保道路工程的质量和耐久性。
二、建筑工程知识1. 建筑结构建筑结构是建筑工程中一个重要的学科,工程技术员需要了解建筑结构设计规范、建筑结构分析和计算、建筑结构施工技术等知识,以确保建筑结构的安全和稳定性。
2. 建筑施工技术建筑施工技术是建筑工程中一个重要的学科,工程技术员需要了解建筑工程施工组织、建筑施工工艺、建筑施工质量控制等知识,以确保建筑工程的施工质量和工期。
3. 建筑材料建筑材料是建筑工程中一个重要的学科,工程技术员需要了解建筑材料的性能和特性、建筑材料的选用原则、建筑材料的施工工艺等知识,以确保建筑材料的质量和使用性能。
4. 建筑装饰建筑装饰是建筑工程中一个重要的学科,工程技术员需要了解建筑装饰设计原则、建筑装饰材料和工艺、建筑装饰施工技术等知识,以确保建筑装饰的美观和实用性。
打开导航条后就能看到如下图的效果,这样就更方便阅读本教程。
一、工欲善其事必先利其器1、技术员、资料员如何○混日子1.1 技术员岗位职责1.1.1 认真熟悉施工图纸,提出图纸中存在的问题,搞好图纸的会审工作。
1.1.2 编制施工图纸(施工)预算,计算出材料分析汇总表,按分部分项工程(基础、主体、装饰、分层)提出材料计划表(预算工作一般由预算员进行,材料表有时候由材料员提交)。
1.1.3 编制施工组织设计及施工方案,制定施工过程的各种安全、质量、成本措施。
做好各分部分项工程技术交底资料,向各班组进行技术交底。
1.1.4 负责本工程的定位、放线、测平、沉降、观测记录(一般配合测量员、施工员进行)。
1.1.5 负责测量用具、仪器的保管,并定期校正测量仪器(一般配合测量员进行)。
1.1.6 进行施工过程技术资料的收集、整理,工程竣工后的资料归档、装订、交工。
收集、整理工程施工中的变更签证资料。
1.1.7 做好分部、分项成本核算工作,按时结算各施工班组的分部、分项、分层、单项完成任务结算书(一般配合预算员进行)。
1.1.8 提供施工现场配合比,包括砼、砂浆等,需要试验室出具资料的取样送试验室。
进行现场试块的制作、养护、送检、取试验报告。
1.1.9 根据现场实际情况和材料总计划编制材料月、周计划,负责季节性施工措施的编制。
1.1.10 认真配合好项目经理(施工员)的工作,完成工程部经理交办的其他任务1.2 资料员岗位职责1.2.1 在项目上负责工程项目资料、图纸等档案的收集、管理。
(1)负责工程项目的所有图纸的接收、清点、登记、发放、归档、管理工作(2)收集整理施工过程中所有技术变更、洽商记录、会议纪要等资料并归档。
1.2.2 参加分部分项工程的验收工作(1)负责备案资料的填写、会签、整理、报送、归档;(2)监督检查施工单位施工资料的编制、管理,做到完整、及时,与工程进度同步;按时向公司档案室移交;(3)负责向市城建档案馆的档案移交工作;(4)指导工程技术人员对施工技术资料(包括设备进场开箱资料)的保管1.2.3 负责计划、统计的管理工作(1)负责对施工部位、产值完成情况的汇总、申报,按月编制施工统计报表;(2)负责与项目有关的各类合同的档案管理1.2.4 负责工程项目的内业管理工作(1)协助项目经理做好对外协调、接待工作;(2)负责工程项目的内业管理工作1.2.5 完成工程部经理交办的其他任务2、技术员、资料员需要什么技能储备2.1 专业及技能储备2.1.1 建筑相关专业毕业应多翻阅以前的专业书籍,温故而知新。
2.1.2 非专业毕业应多看土建专业书籍。
非专业毕业的,半路出家的,从事这样一个行业的话,应该多看看《建筑施工技术》、《房屋建筑学》、《高层建筑》、《建筑工程概预算》、《建筑工程测量》、《建筑制图》、《建筑材料》、《建筑结构》、《建筑施工组织与管理》这些专业书籍,看书的目的在于更深刻的理解建筑行业的规律、发展现状和施工技术及项目管理。
2.1.3 喜欢网络聊天的有一个好处,就是打字快,做资料也对打字有一定的要求,当然并非一定要学会五笔,用搜狗拼音足矣。
应熟练掌握word、excel、cad这三个软件,如果学会广联达、神机妙算、清华斯维尔等预算软件为上佳。
应该掌握的软件如下表所示:序号软件名称软件用途软件掌握程度1 word、excel 文档制作、制作表格熟练掌握2 Cad、天正电子制图熟练掌握3 品茗、华软、筑业、恒智天成、智通资料制作;由于资料软件资料表格齐全,使用资料软件可以避免资料制作缺项,也可以对比自己的找的表格是否为当地规定的表格;一些常规的资料可以直接使用资料软件制作。
了解软件用途,有条件的可以购买正版软件,并熟练掌握4 梦龙、CC施工网络图软件可以方便而专业的绘制施工网络图了解、掌握5 品茗安全软件有些施工方案中需要安全验算,但是现在还有几个会算,所以这款软件要了解。
了解、掌握6 广联达、神机妙算、智多星、清华斯维尔等预算软件施工概预算了解,熟练掌握为佳,如果你想混得更好的话2.1.4 一般而言,技术员需要掌握测量放线知识,需要熟练掌握水准仪、经纬仪的使用,以熟练掌握全站仪为上佳。
当然,纯粹的资料员者没有这个要求。
2.2 资料储备一些重要而实用的图集、规范、小软件,将以工民建大礼包的形式打包放出。
2.2.1 收集常用的图集、施工设计规范(1)一些建筑用的图集、施工规范、设计规范是必须要有的,这些都有电子版的,如03G系列、施工验收规范等。
最好自己要有一个容量大的移动硬盘,一百G以上。
收集这些电子版的资料,可以为平时说用,因为施工中经常会要遇到参阅图集、规范的时候。
(2)这些资料一般可以迅雷、筑龙网、土木论坛等论坛下载到。
一些土木论坛要积分才能下载,所以,可以多传点资料上去,赚了积分就可以下载自己想要的资料。
2.2.2 收集实用的建筑小软件、电子书、施工用表格(1)建筑小软件:砼、砂浆自动评定表格建筑版、万能晴雨表、施工配合比软件等。
(2)建筑电子书:工程常用资料工具书、土建内业资料全套填写实例(文字类)、施工常用技术资料汇总、五大员岗位手册、技术交底大全、建筑施工技术手册(第四版)、实用五金手册、施工组织设计大全等等。
收集这些书籍和小软件,可以使工作更加方便,天下资料一大抄,就看你如何变别人的为自己的,尤其像做施工方案,没有相应的模板,要快速做出比较专业的方案,是比较难的。
(3)施工要用到的各种表格,可以从资料软件里面获取,可以去各市、县质监站处购买,如果质监站有规定使用某种资料软件的,就必须购买某种资料软件。
施工表格也可以从网上下载(各种土木论坛中均有),但要注意核对是不是规范的表格。
2.3 必读图集规范2.3.1 图集类(1) 03G101-1现浇框架、剪力墙、框支、框剪结构平法制图规则和构造详图(2)03G101-2现浇砼板式楼梯平法制图规则和构造详图(3)04G101-3筏形基础平法制图规则和构造详图(4)04G101-4 平法现浇砼楼板屋面板2.3.2 规范类(1)JGJT185-2009《建筑工程资料管理规程》:新资料规范,2010年7月起实行。
(2)A 建筑工程施工质量验收统一标准(GB50300-2001)(3)B 建筑地基基础工程施工质量验收规范(GB50202-2002)(4)C 砌体工程施工质量验收规范(GB50203-2002)(5)D 混凝土结构工程施工质量验收规范(GB50204-2002)(6)E 钢结构工程施工质量验收规范(GB50205-2001)(7)F 木结构工程施工质量验收规范(GB50206-2002)(8)G 屋面工程施工质量验收规范(GB50207-2002)(9)H 地下防水工程施工质量验收规范(GB50208-2002)(10)I 建筑地面工程施工质量验收规范(GB50209-2002)(11)J 建筑装饰装修工程施工质量验收规范(GB50210-2001)(12)K 建筑给水排水及采暖工程施工质量验收规范(GB50242-2002)(13)L 通风与空调工程施工质量验收规范(GB50243-2002)(14)M 建筑电气工程施工质量验收规范(GB50303-2002)(15)N 电梯工程施工质量验收规范(GB50310-2002)(16)Q 建设工程项目管理规范(GB/T50326-2001)(17)人防工程施工及验收规范(18)GB50411—2007 建筑节能工程施工验收规范2.3.3 参考书类(1)平法识图与钢筋计算释疑解惑陈达飞编著(要看懂图纸,必看本书)(2)建筑制图教科书(要看懂图纸,应看本书)(3)施工资料填写范例书(各省均有版本,做资料必备)(4)建筑工程项目施工六大员实用手册施工员朱晓兵、朱磊编著(现场必备)(5)从大学生到土建工程师(6)建筑施工技术手册(第四版)(7)建筑材料和装饰装修材料检验见证取样手册(2004)(8)建设工程造价与定额名词解释(建筑工程分部)(9)房屋建筑工程量速算方法实例详解李传让编著(10)最新建筑工程施工技术与国际标准实物全书2.4 做资料小技巧1、使用word、excel 2010,界面既好看,软件又好用,比2007好用多了。
2、画图用天正8.0,方便使用,当然也要装CAD2007以上版本。
3、必须要安装一个资料软件,方便查看什么部位可能要做什么资料,尤其是做检验批。
下图所示,检验批一目了然,而且检验批不会写错分部分项,不会漏项。
新资料规范明确规定,要多采用信息管理手段管理项目,资料以后肯定会从手工粗放制作时代,过渡到软件集中管理时代,只是大势所趋。
3、伊甸园的宝贝3.1 材料见证取样送检简易教程一、送检问题探讨,了解送检制度及程序。
二、材料报验及送检资料指引,手把手教你熟悉资料表格术语和填写要求。
三、现场检测问题汇总附件一、常用建筑材料见证取样检测项目的取样数量。
附件二、五大建筑材料见证取样方法。
附件三:房屋建筑工程和市政基础设施工程实行见证取样和送检的规定。
所谓见证取样送检,是指在监理单位或建设单位监督下,由施工单位有关人员现场取样,并送至具备相应资质的检测单位(也就是试验室)所进行检测这一过程。
为什么材料要送检,哪些材料要送检,怎么见证取样,该做什么资料,试验报告不合格有哪些补救措施,怎么样避免被试验室潜规则,这是本教程将探讨和解决的问题。
一、送检问题探讨1、材料为什么要送检我国实行材料见证取样送检制度,为了确保施工用的材料合格。
而送到试验室检测,能够科学的评定材料是否合格,能否用于工程建设。
2、哪些材料要送检:构成工程实体的材料,很多是要送检的,具体可以见附件一。
3、怎么见证取样就是拥有取样员证的人(通常就是工地资料员或技术员,至于有无证,一般很少有这个要求,虽然规定如此)在材料到工地后,通知监理(一般不需要通知甲方,除非甲方要求如此)一起,对材料进行检查后,对材料取一定的数量包好,填好见证取样单(填写样式在后面指引中)和试验委托单(一般试验室都要求填试验委托单,这个不进档案的),在监理的全程见证下,送到试验室。
能够立即出结果的,监理还可以要求旁站。
试验完成后,试验室出实验报告。
见证取样的程序就是这样的。
但实际上,见证取样往往流于形式,一般是技术员(资料员)填好见证取样单找监理签字后,就拿着材料往试验室送。
在试验室填试验委托单(有些试验室会给施工单位大量空白委托单,以便施工单位在工地就可填好)。
之后就完事了,回去,下次来拿结果。
急着要的报告可以提前告知试验室,他们一般可以安排优先做试验。
4、该做什么资料进了材料,材料报验肯定少不了(材料报验表格见资料员教程)。
一般是先送检,填见证取样单,单子监理单位、施工单位、试验室都要盖章签名。