羽毛球单双打简易规则和图解
- 格式:doc
- 大小:403.50 KB
- 文档页数:10
羽毛球比赛规则-羽毛球单打、双打规则详解羽毛球运动是一种全身的运动项目,不受场地、年龄、性别的限制,单人对练,集体会战皆可,这些特点,注定了羽毛球运动,将会成为大众所容易接受的运动项目。
打羽毛球,首先要了解羽毛球的比赛规则。
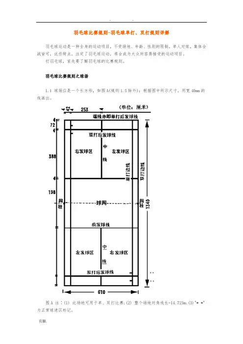
羽毛球比赛规则之球场1.1 球场应是一个长方形,如图A(规则1.5除外);根据图中所示尺寸,用宽40mm的线画出。
图A 注∶(1) 此场地可用于单、双打比赛;(2) 整个场地对角线长=14.723m;(3)"* *"为正常球速区标记。
1.2 场地线的颜色最好是白色、黄色或其他容易辨别的颜色。
1.3.1 测试正常球速区域的4个40mm×40mm的标记(规则4.4),应画在单打发球区边线沿,距端线530mm和990mm处(如图B、C)。
图B 注∶标记尺寸为40mm×40mm图C 注∶标记尺寸为40mm×40mm1.3.2 这些标记的宽度均包括在所画的尺寸,即距端线外沿530mm至570mm和950mm 至990mm。
1.4 所有场地线都是它所确定区域的组成部分。
1.5 如果面积不够画出双打球场,可画一单打球场;端线亦为后发球线,网柱或代表网柱的条状物(规则2.2)应放置在边线上。
羽毛球比赛规则之网柱2.1 从球场地面起,网柱高1.55m。
网柱必须稳固地同地面垂直,并使球网保持紧拉状态,如规则3所述。
网柱如图A所示,应放置在双打的边线上。
2.2 如不能设置网柱,必须采用其他办法标出边线通过网下的位置。
例如,使用细柱或40毫米宽的条状物固定在边线上,垂直向上到网顶绳索处。
2.3 在双打球场上,不论进行的是双打还是单打比赛,网柱或代表网柱的条状物,均应置于双打边线上。
羽毛球比赛规则之球网3.1 球网应是深色、优质的细绳织成。
网孔方形,各边长均在15mm~20mm之间。
3.2 网上下宽760mm。
3.3 网的顶端用75mm的白布对折而成,用绳索或钢丝从夹层穿过。
2023羽毛球单打和双打规则(完整文档)2023羽毛球单打和双打规则(完整文档)羽毛球单打和双打规则1一、羽毛球比赛计分规则1、21分制,一般3局2胜2、每球得分制3、每回合中,取胜的一方加1分4、当双方均为20分时,领先对方2分的一方赢得该局比赛5、当双方均为29分时,先取得30分的一方赢得该局比赛6、一局比赛的获胜方在下一局率先发球二、羽毛球比赛赛间休息与换边规则1、在一局比赛中,当领先的一方达到11分时,双方有60秒休息时间2、在两局比赛间,双方有2分钟的休息时间3、在决胜局的中,当领先的一方达到11分时,双方交换场地三、羽毛球单打比赛规则1、在一局比赛开始时(比分0:0)或发球方得分为偶数时,发球方在右半场进行发球。
当发球方得分为奇数时,在左半场进行发球2、如果发球方取得一分,那么下一回合其继续发球3、如果接发球方取得一分,那么下一回合其成为发球方羽毛球单打和双打规则扩展阅读羽毛球单打和双打规则(扩展1)——单打羽毛球比赛规则3篇单打羽毛球比赛规则1(1)当发球员的分数为0或双数时,双方运动员均应在各自的右发球区发球或接发球。
(2)当发球员的分数为单数时,双方运动员均应在各自的左发球区发球或接发球。
(3)如国“再赛”,发球员应以该局的总得分,按上述规定站位。
(4当)球发出后,由发球员和接发球员交替对击直至“违例”或“死球”。
(5)接发球员违例或因球触及接发球员场区内的地面而成死球,发球员就得一分。
随后,发球员再从另一发球区发球。
羽毛球双打规则介绍羽毛球双打规则参照单扣‘发球顺序,每球得失分,取消第二发球。
羽毛球发球规则介绍(1)在发球时任何一方都不允许非法延误发球。
(2)发球员和接发球员都必须站在斜对角发球区内发球和接发球,脚不能触及发球区的界线;两脚必须都有一部分与地面接触,不得移动,直至将球发出。
(3)发球员的球拍必须先击中球托,与此同时整个球要低于发球员的腰部。
(4)在击球瞬间,球拍杆应指向下方,从而使整个排头明显低于发球员的整个握拍手部。
羽毛球规则详解1.羽毛球单打比赛规则1.1 发球员的分数为0 或双数时,双方运动员均应在各自的右发球区发球或接发球.1.2 发球员的分数为单数时,双方运动员均应在各自的左发球区发球或接发球.1.3 如"再赛",发球员应以该局的总得分,按规则1.1 和1.2 的规定站位.1.4 球发出后,由发球员和接发球员交替对击直至"违例"或"死球".1.5.1 接发球员违例或因球触及接发球员场区内的地面而成死球,发球员就得一分.随后, 发球员再从另一发球区发球.1.5.2 发球员违例或因球触及发球员场区内的地面而成死球,发球员即失去发球权.随后, 接发球员成了发球员,双方均不得分.2.羽毛球双打比赛规则羽毛球双打比赛规则2.1 一局比赛开始和每次获得发球权的一方,都应从右发球区发球.2.2 只有接发球员才能接发球;如果他的同伴去接球或被球触及,发球方得一分.2.3.1 自发球被回击后,由发球方的任何一人击球,然后由接发球方的任何一人击球,如此往返直至死球.2.3.2 自发球被回击后,运动员可以从网的各自一方任何位置击球.2.4.1 接发球方违例或因球触及接发球方场区内的地面而成死球,发球方得一分,原发球员继续发球.2.4.2 发球方违例或应球触及发球方场区内的地面而成死球,原发球员即失去发球权,双方均不得分.2.5.1 每局开始首先发球的运动员,在该局本方得分为0 或双数时,都必须在右发球区发球或接发球;得分为单数时,则应在左发球区发球或接发球.2.5.2 每局开始首先接发球的运动员,在该局本方得分为0 或双数时,都必须在右发球区接发球或发球;得分为单数时,则应在左发球区接发球或发球.2.5.3 上述两条相反形式的站位使用于他们的同伴.2.5.4 如有再赛,则以该局本方总得分,按规则2.5.1 至2.5.3 的规定站位.2.6 发球必须从两个发球区交替发出2.7 任何一局的首先发球员失去发球权后,由该局首先接发球员发球,然后由首先接发球员的同伴发球,接着由他们的对手之一发球,再由,另一对手发球,如此传递发球权.2.8 运动员不得有发球顺序错误和接发球顺序错误,或在同一局比赛中连续二次接发球.2.9 一局胜方中的任一运动员可在下一局先发球,负方中的任一运动员可先接发球.健之乐羽毛球正品专卖店提供优质羽毛球正品3.羽毛球发球规则羽毛球发球规则3.1 合法发球3.1.1 发球时任何一方都不允许非法延误发球;3.1.2 发球员和接发球员都必须站在斜对角发球区内发球和接发球,脚不能触及发球区的界线;两脚必须都有一部分与地面接触,不得移动,直至将球发出(规则3.4).3.1.3 发球员的球拍必须先击中球托,与此同时整个球要低于发球员的腰部.3.1.4 击球瞬间,球拍杆应指向下方,从而使整个排头明显低于发球员的整个握拍手部.3.1.5 发球开始(规则 3.2)后,发球员的球拍必须连续向前挥动,直至将球发出.3.1.6 发出的球必须向上飞行过网,如果不受拦截,应落入接发球员的发球区内.3.2 一旦双方运动员站好位置,发球员的球拍头第一次向前挥动即为发球开始. 一旦双方运动员站好位置,发球员的球拍头第一次向前挥动即为发球开始.3.3 发球员须在接发球员准备好后才能发球,如果接发球员已试图接发球则被认为已做好准备3.4 一旦发球开始(规则 3.2),球被发球员的球拍触及或落地即为发球结束.3.5 双打比赛,发球员或接发球员的同伴站位不限,但不得阻挡对方发球员或接发球员的视线4.羽毛球裁判规则羽毛球裁判规则4.1 裁判长对竞赛全面负责.4.2 临场裁判员主持一场比赛并管理该场地及其周围. 裁判员向裁判长负责; 未设裁判长时, 向竞赛负责人负责.4.3 发球裁判员负责宣判发球违例(规则 3).4.4 司线员负责宣判界内球或界外球.4.5 裁判员应维护和执行《羽毛球比赛规则》 ,及时地宣判"违例"或"重发球"等.4.6 裁判员对申述应在下一次发球前作出裁决.4.7 裁判员应使运动员和观众能了解比赛的进程.4.8 裁判员可与裁判长磋商,安排,撤换司线员或发球裁判员.4.9 裁判员不能推翻司线员和发球裁判员对事实的裁决.4.10.1 在缺少临场裁判人员时,裁判员应就无人执行的职责作出安排.4.10.2 有临场裁判人员不能作出判断时,由裁判员执行他的职责或"重发球".4.11 裁判员有权暂停比赛.4.12 裁判员应记录有关的情况并向裁判长报告.4.13 裁判员应将所有仅与规则问题有关的申述提交裁判长(这类申述,运动员必须在下一次发球击出前提出;如在一局结尾,则应在离开场地前提出).5.羽毛球新规羽毛球新规每局比赛打到14 平(女单10 平)先到14 分(女单10 分)一方可选要加 3 分(打到17 分, 女单13分)或不加(打到15 分,女单11 分),而且只有这一次机会.现行计分制度仍维持不变. 男单,男双,女双,混双每局15 分中,有一方先达到8 分时,由裁判强制休息90 秒; 女单每局11 分中,有一方先达到 6 分时,裁判措施如上. 在第一局和第二局间,最多允许90 秒的休息. 在第二局和第三局间,最多允许 5 分钟的休息. 根据规则,每局中,双方可在任何时间要求暂停30 秒.羽毛球双打比赛规则双打比单打每方增加一名队员,而场地宽度仅增加92厘米,接发球区还比单打缩短了76厘米。
羽毛球双打发球规则图解羽毛球双打发球的基本规则为:谁得分谁发球,单数分在左区发球,0或双数分在右区发球。
只有发球方在得分时才交换发球区,对方不动。
除此以外,运动员继续站在上一回合的各自发球区不变。
假设A、B方与C、D方进行双打比赛。
A、B方赢了挑边并选择了发球。
(一)比赛开始,0-0,由A从右区发球(0或双数分在右区发球),C接发球。
(二)A、B方得分,1-0,因此,A和B得到发球权并交换发球区(谁得分谁发球,只有发球方在得分时才交换发球区,对方不动)。
新的一回合开始。
A从左区发球(单数分在左区发球),D接发球。
一回合的各自发球区不变)。
新的一回合开始。
D从左区发球(单数分在左区发球),A接发球。
一回合的各自发球区不变)。
新的一回合开始。
B从右区发球(0或双数分在右区发球),C接发球。
一回合的各自发球区不变)。
新的一回合开始。
C从右区发球(0或双数分在右区发球),B接发球。
(六)C、D方得分,2-3,因此, C和D得到发球权并交换发球区(谁得分谁发球,只有发球方在得分时才交换发球区,对方不动)。
新的一回合开始。
C从左区发球(单数分在左区发球),A接发球。
(七)A、B方得分,3-3,因此,A、B方得到发球权(谁得分谁发球,双方继续站在上一回合的各自发球区不变)。
新的一回合开始。
A从左区发球(单数分在左区发球),C接发球。
(八)A、B方得分,4-3,因此,A、B方得到发球权并交换发球区(谁得分谁发球,只有发球方在得分时才交换发球区,对方不动)。
新的一回合开始。
A从右区发球(0或双数分在右区发球),D接发球。
羽毛球单双打比赛规则羽毛球单双打比赛规则一、比赛场地要求⑴羽毛球比赛场地应为长方形,长度为1⑷米,宽度为⑴米。
⑵场地应设有顶网,顶网高度为⑸5米。
⑶场地两端应设有发球区,长度为⑼8米。
⑷场地应设有边线和中线,边线宽度为40毫米,中线长度为⑴米。
二、比赛器材要求⑴比赛使用的羽毛球应符合国际羽毛球联合会(BWF)规定的标准。
⑵每场比赛使用的羽毛球数量为整数个,通常为15个。
三、比赛规则⑴单打比赛规则⒊⑴单打比赛由两位选手进行,分为男子单打和女子单打。
⒊⑵每位选手可以在场地内自由活动,每次得分后交换场地边。
⒊⑶比赛开始时,发球选手必须站在右侧发球区内,发球方向应越过接球方的发球区。
⒊⑷发球选手每次发球有一次机会,如果发球失败或对方接发球成功,则换对方发球。
⒊⑸每次发球前必须喊出分数,例如0-0、1-0、0-1等。
⑵双打比赛规则⒊⑴双打比赛由四位选手进行,通常为两男两女组合。
⒊⑵每位选手可以在场地内自由活动,每次得分后交换场地边。
⒊⑶比赛开始时,发球选手必须站在右侧发球区内,发球方向应越过接球方的发球区,接球方可选择站在左侧或右侧。
⒊⑷发球选手每次发球有一次机会,如果发球失败或对方接发球成功,则换对方发球。
⒊⑸每次发球前必须喊出分数,例如0-0、1-0、0-1等。
四、比赛计分规则⑴单打比赛计分规则⒋⑴单打比赛采用三局两胜制,每局比赛得分采用21分制。
⒋⑵每得到一分,发球方得到一次发球权,双方交替发球。
⒋⑶如果比分达到20-20,比赛将进入加时赛,加时赛采用至21分制,首先得到两分的选手获胜。
⒋⑷比分先达到21分且领先对手两分以上的选手获胜。
⑵双打比赛计分规则⒋⑴双打比赛采用三局两胜制,每局比赛得分采用21分制。
⒋⑵每得到一分,发球方得到一次发球权,双方交替发球。
⒋⑶如果比分达到20-20,比赛将进入加时赛,加时赛采用至21分制,首先得到两分的选手获胜。
⒋⑷比分先达到21分且领先对手两分以上的选手获胜。
附件:本文档未涉及附件。
羽毛球比赛规则及裁判手势一、单打、双打1、每场比赛采取三局两胜制2、率先得到21分的一方赢得当局比赛;3、如果双方比分打成20比20,获胜一方需超过对手2分才算取胜;4、如果双方比分打成29比29,则率先得到第30分的一方取胜;5、首局获胜一方在接下来的一局比赛中率先发球;二、说明1、每球得分21分制21分制,任何一方只要将球打“死”在对方的有效位置,或者因为对方出现违例或失误,均可得分。
2、技术暂停除非特殊情况(比如地板湿了,球打坏了),球员不可再提出中断比赛的要求。
但是,每局当一方分数首先到达11分时,双方交换场区。
比赛进行1分钟的技术暂停,让比赛双方进行擦汗、喝水……3、平分后的加分赛每局双方打到20平后,一方领先2分即算该局获胜;若双方打成29平后,一方领先1分,即算该局取胜。
三、发球得分者方有发球权,如果本方得单数分,从左边发球;得双数分,从右边发球。
只有发球方在得分时才交换发球区。
得分者方有发球权,如果本方得单数分,从左边发球;得双数分,从右边发球。
除此以外,运动员继续站在上一回合的各自发球区不变,以此保证发球员的交替。
例子:1。
如果双方在A/B一对组合和C/D组合之间进行,A/B一方选择先发球。
假如说A站在两人的右手区域,那么A先发球给对角线位置上的C(假设)。
2.如果A/B一方得分,那么A和B需要交换彼此的站位元区,还有由A来发球,将球发给D(A/B一方得分C和D两人不换位置)。
3。
如果此时C/D一方得分,那么双方四名队员都不换位置,发球权交给C/D一方,由刚才接发球的D来发球,D发球给对方刚才发球的选手A。
4。
如果D发球后C/D一方得分,那么C和D交换位置继续由D发球给B。
5.如果D发球后得分的是A/B一方,那么双方队员不用换位,发球权交给B。
四、比赛中的站位:单打:(1)发球员的分数为0或双数时,双方运动员均应再各自的右发球区发球或接发球。
(2)发球员的分数为单数时,双方运动员均应再各自的左发球区发球或接发球。
羽毛球双打发球规则图解
羽毛球双打发球的基本规则为:谁得分谁发球,单数分在左区发球,0或双数分在右区发球。
只有发球方在得分时才交换发球区,对方不动。
除此以外,运动员继续站在上一回合的各自发球区不变。
假设A、B方与C、D方进行双打比赛。
A、B方赢了挑边并选择了发球。
(一)比赛开始,0-0,由A从右区发球(0或双数分在右区发球),C接发球。
(二)A、B方得分,1-0,因此,A和B得到发球权并交换发球区(谁得分谁发球,只有发球方在得分时才交换发球区,对方不动)。
新的一回合开始。
A从左区发球(单数分在左区发球),D接发球。
上一回合的各自发球区不变)。
新的一回合开始。
D从左区发球(单数分在左区发球),A接发球。
上一回合的各自发球区不变)。
新的一回合开始。
B从右区发球(0或双数分在右区发球),C接发球。
上一回合的各自发球区不变)。
新的一回合开始。
C从右区发球(0或双数分在右区发球),B接发球。
(六)C、D方得分,2-3,因此, C和D得到发球权并交换发球区(谁得分谁发球,只有发球方在得分时才交换发球区,对方不动)。
新的一回合开始。
C从左区发球(单数分在左区发球),A接发球。
上一回合的各自发球区不变)。
新的一回合开始。
A从左区发球(单数分在左区发球),C接发球。
有发球方在得分时才交换发球区,对方不动)。
新的一回合开始。
A从右区发球(0或双数分在右区发球),D接发球。
下略。
边界说明边界:注意发球区域和打球区域发球说明A和B对C和D的双打比赛。
A和B赢了挑边并选择了发球。
A发球C接发球。
A为首先发球员,而C则为首先接发球员。
单打发球规则与双打发球规则一样,只是发球区和接发球后的边界不一样。
过程及解释比分发球区发球员和接发球员赢球方0-0从右发球区发球(因发球方的分数为双数)A发球,C接发球(A和C为首先发球员和首先接发球员)A和BA和B得1分。
A和B交换发球区,A从左发球区再次发球。
C 和D在原发球区接发球1-0从左发球区发球(因发球方的分数为单数)A发球,D接发球C和DC和D得1分,并获得发球权。
两人均不改变各自原发球区(即原站位)1-1从左发球区发球(因发球方的分数为单数)D发球,A接发球A和BA和B得1分,并获得发球权。
两人均不改变各自原发球区(即原站位)2-1从右发球区发球(因发球方的分数为双数)B发球,C接发球C和DC和D得1分,并获得发球权。
两人均不改变其各自原发球区(即原站位)2-2从右发球区发球(因发球方的分数为双数)C发球,B接发球C和DC和D得1分。
C和D交换发球区,C从左发球区发球。
A和B不改变其各自原发球区(即原站位)3-2从左发球区发球(因发球方的分数为单数)C发球,A接发球A和BA和B得1分,并获得发球权。
两人均不改变各自原发球区(即原站位)3-3从左发球区发球(因发球方的分数为单数)A发球,C接发球A和BA和B得1分。
A和B交换发球区,A从左发球区再次发球。
C和D不改变其各自原发球区(即原站位)4-3从右发球区发球(因发球方的分数为双数)A发球,D接发球C和D注意:发球单左双右。
羽毛球双打发球规则图解羽毛球双打发球的基本规则为:谁得分谁发球,单数分在左区发球,0或双数分在右区发球。
只有发球方在得分时才交换发球区,对方不动。
除此以外,运动员继续站在上一回合的各自发球区不变。
假设A、B方与C、D方进行双打比赛。
A、B方赢了挑边并选择了发球。
(一)比赛开始,0-0,由A从右区发球(0或双数分在右区发球),C接发球。
(二)A、B方得分,1-0,因此,A和B得到发球权并交换发球区(谁得分谁发球,只有发球方在得分时才交换发球区,对方不动)。
新的一回合开始。
A从左区发球(单数分在左区发球),D接发球。
(三)C、D方得分,1-1,因此,C、D方得到发球权(谁得分谁发球,双方继续站在上一回合的各自发球区不变)。
新的一回合开始。
D从左区发球(单数分在左区发球),A接发球。
(四)A、B方得分,2-1,因此,A、B方得到发球权(谁得分谁发球,双方继续站在上一回合的各自发球区不变)。
新的一回合开始。
B从右区发球(0或双数分在右区发球),C接发球。
球区不变)。
新的一回合开始。
C从右区发球(0或双数分在右区发球),B接发球。
(六)C、D方得分,2-3,因此,C和D得到发球权并交换发球区(谁得分谁发球,只有发球方在得分时才交换发球区,对方不动)。
新的一回合开始。
C从左区发球(单数分在左区发球),A接发球。
球区不变)。
新的一回合开始。
A从左区发球(单数分在左区发球),C接发球。
(八)A、B方得分,4-3,因此,A、B方得到发球权并交换发球区(谁得分谁发球,只有发球方在得分时才交换发球区,对方不动)。
新的一回合开始。
A从右区发球(0或双数分在右区发球),D接发球。
羽毛球比赛规则一、单打、双打1、单淘汰赛前两轮以一局一胜支制,双打以三局两胜制;2、率先得到21分的一方赢得当局比赛;3、如果双方比分打成20比20,获胜一方需超过对手2分才算取胜;4、如果双方比分打成29比29,则率先得到第30分的一方取胜;5、首局获胜一方在接下来的一局比赛中率先发球;二、说明1、每球得分21分制21分制,任何一方只要将球打“死”在对方的有效位置,或者因为对方出现违例或失误,均可得分。
2、技术暂停除非特殊情况(比如地板湿了,球打坏了),球员不可再提出中断比赛的要求。
但是,每局当一方分数首先到达11分时,双方交换场区。
比赛进行1分钟的技术暂停,让比赛双方进行擦汗、喝水……3、平分后的加分赛每局双方打到20平后,一方领先2分即算该局获胜;若双方打成29平后,一方领先1分,即算该局取胜。
三、发球得分者方有发球权,如果本方得单数分,从左边发球;得双数分,从右边发球。
只有发球方在得分时才交换发球区。
得分者方有发球权,如果本方得单数分,从左边发球;得双数分,从右边发球。
除此以外,运动员继续站在上一回合的各自发球区不变,以此保证发球员的交替。
四、比赛中的站位:单打:(1)发球员的分数为0或双数时,双方运动员均应再各自的右发球区发球或接发球。
(2)发球员的分数为单数时,双方运动员均应再各自的左发球区发球或接发球。
(3)球发出后,双方运动员就不再受发球区的限制而自由击到对方场区的任何位置,运动员的站位也可以在自己这方场区的界内或界外。
双打:(1)一局比赛开始和获得发球局的一方,都应从右发球区开始发球。
(2)只有接发球员才能接发球;如果它的同伴去接球或被球触及,发球方得一分。
(3)运动员未按以上规则交换场区,已经发现立即交换,以得分数有效。
双打发球:1、发球的时候本方(发球方)分数是偶数时则从右区发球,奇数时从左区发球。
2、一旦发球方失分,则四个人都不动左右的位置,这时拿到发球权的一方(即刚才发球方的对方)如果变成偶数分就由左区的人发给对方右区的人,如果变成奇数分就由右区的人发给对方左区的人;3、如果发球方得分,则发球的人换到另一侧区继续发给对方的另一个人。
羽毛球比赛规则图解羽毛球比赛规则图解1.赛前准备1.1 球场准备- 确保球场地面没有杂物,保持干燥清洁。
- 确保球网的高度和张力符合规定。
- 检查场地边界线的清晰度。
1.2 球拍- 确保球拍没有损坏或破损。
- 确保球拍线的张紧度和选择符合规定。
1.3 球- 使用经认证的比赛球进行比赛,确保球的质量和规格符合要求。
- 检查球的充气程度是否合适。
2.比赛规则2.1 比赛形式- 常见的比赛形式包括:单打、双打和混合双打。
- 每局比赛的胜方是先得到21分的选手/组合,若比分为20.20,则需要继续进行,胜方需连胜2分。
- 比赛胜出的选手/组合是先赢得3局的。
2.2 发球- 每个局的开始由一方进行发球。
- 发球者必须将球从底线上方击出,球必须从发球区域的下方穿过球网。
- 如果发球者的发球失误(落地在界内或界外),对方将得到一分并获得发球权。
2.3 接发球- 接发球者必须站在对方发球区域的对角处接球。
- 接发球者必须等到球穿过球网而不能触碰球之前移动或改变位置。
- 如果接发球者违反规则,则对方将得到一分。
2.4 战术技巧- 比赛中选手可以使用各种战术技巧,如准确的发球、高质量的回球和灵活的移动来获得优势。
2.5 犯规和违规行为- 每局比赛中,选手不得有任何违反规则的行为,如触碰球网、踩界线、干扰对手等。
- 如果选手犯规或违规行为,对方将得到相应的判罚,如得分或发球权。
附件:规则解释图示法律名词及注释:- 发球区域:球场的底线以及离底线前方2.5米的区域。
发球必须从这个区域进行。
- 界内:球在边界线之内。
- 界外:球在边界线之外。
- 判罚:根据比赛规则对违规行为进行处理的行为。
2023羽毛球单打和双打规则(完整文档)羽毛球单打和双打规则1一、羽毛球比赛计分规则1、21分制,一般3局2胜2、每球得分制3、每回合中,取胜的一方加1分4、当双方均为20分时,领先对方2分的一方赢得该局比赛5、当双方均为29分时,先取得30分的一方赢得该局比赛6、一局比赛的获胜方在下一局率先发球二、羽毛球比赛赛间休息与换边规则1、在一局比赛中,当领先的一方达到11分时,双方有60秒休息时间2、在两局比赛间,双方有2分钟的休息时间3、在决胜局的中,当领先的一方达到11分时,双方交换场地三、羽毛球单打比赛规则1、在一局比赛开始时(比分0:0)或发球方得分为偶数时,发球方在右半场进行发球。
当发球方得分为奇数时,在左半场进行发球2、如果发球方取得一分,那么下一回合其继续发球3、如果接发球方取得一分,那么下一回合其成为发球方羽毛球单打和双打规则扩展阅读羽毛球单打和双打规则(扩展1)——单打羽毛球比赛规则3篇单打羽毛球比赛规则1(1)当发球员的分数为0或双数时,双方运动员均应在各自的右发球区发球或接发球。
(2)当发球员的分数为单数时,双方运动员均应在各自的左发球区发球或接发球。
(3)如国“再赛”,发球员应以该局的总得分,按上述规定站位。
(4当)球发出后,由发球员和接发球员交替对击直至“违例”或“死球”。
(5)接发球员违例或因球触及接发球员场区内的地面而成死球,发球员就得一分。
随后,发球员再从另一发球区发球。
羽毛球双打规则介绍羽毛球双打规则参照单扣‘发球顺序,每球得失分,取消第二发球。
羽毛球发球规则介绍(1)在发球时任何一方都不允许非法延误发球。
(2)发球员和接发球员都必须站在斜对角发球区内发球和接发球,脚不能触及发球区的界线;两脚必须都有一部分与地面接触,不得移动,直至将球发出。
(3)发球员的球拍必须先击中球托,与此同时整个球要低于发球员的腰部。
(4)在击球瞬间,球拍杆应指向下方,从而使整个排头明显低于发球员的整个握拍手部。
羽毛球基本规则图解
单打、双打发球有效区域图解蓝色划定的区域为单打发球有效区域。
灰色划定的区域为双打发球有效区域。
单打、双打边界线(得分区域)图解
发球规则:1、发球不过腰;2、奇左偶右;3、形成死球即得分,得分发球发球不过腰(击球点不能高出腰线和手)的图解:
发球顺序“奇左偶右”图解(单打、双打一样)
3、任何情况下,形成死球即得分,得分方就获得发球权,11分制,最后有两分优势分,比如说10:11,则继续打,直到拉开两分差距,但如果到14:14,还没拉开两分差距,谁最先那到15分,则谁获胜。
羽毛球双打简要规则介绍羽毛球双打简要规则介绍计分规则比赛规则实行二十一分的双打比赛规则。
21分制实行每球得分制,即每局双打比赛获胜分皆为21分,最高不超过30分。
每场比赛采取三局两胜制,先到21分的一方赢得当局比赛。
如果双方比分为20比20时,获胜一方需超过对手2分才算取胜;直至双方比分打成29比29时,那么先到第30分的一方获胜。
首局获胜一方在接下来的一局比赛中先发球。
站位规则进攻站位基本原则:进攻必定是前后站位。
谁站前谁站后:首次有机会进攻即扣杀的队友站后场,其同伴在队友进攻时应主动向前上网,站前场。
分工:后场队员负责后场的连续大力扣杀以及两底线球的过渡;前场队员运用快攻、压网前、搓、吊、推、扑等技术,寻找空隙,一举得分。
防守站位基本原则:与进攻相反,防守必定是左右站位,一人一个半区。
防守时采用平抽、平打压住对方后场底线两角,在对方扣杀球时也能以平抽反击或挑高远球至两底角,造成对方回球无力,力求改变防守局势或造成对方进攻失误。
中间球处理:通常左右站位防守时两人各负责左右半个场区,但对于中间位置球一般来说,由对角线的队员防接。
发球规则1、一局比赛开始和每次获得发球权的一方,都应从右发球区发球(内宽外长)。
2、只有接发球员才能接发球;如果他的同伴去接球或被球触及,发球方得一分。
3、自发球被回击后,由发球方的任何一人击球,然后由接发球方的任何一人击球,如此往返直至死球。
4、每局开始首先接发球的运动员,在该局本方得分为0或双数时,都必须在右发球区接发球或发球;得分为单数时,则应在左发球区接发球或发球。
重发球规则遇不能预见或意外的情况,应重发球1、除发球外,球过网后挂在网上或停在网顶,应重发球。
2、发球时,发球员和接发球员同时违例,应重发球3、发球员在接发球员未做好准备时发球,应重发球。
4、司线员未看清,裁判员也不能作出决定时,应重发球。
羽毛球赛间休息规则1、在一局比赛中,当领先的一方达到11分时,双方有60秒休息时间;2、在两局比赛间,双方有2分钟的休息时间;3、在决胜局的中,当领先的一方达到11分时,双方交换场地。
发球:1、发球员的分数为0或双数时,双方运动员均应在各自的右发球区发球或接发球。
2、发球员的分数为单数时,双方运动员均应在各自的左发球区发球或接发球。
3、如“再赛”,发球员应以该局的总得分来站位。
4、球发出后,由发球员和接发球员交替对击直至“违例”或“死球”。
5、接发球员违例或因球触及接发球员场区内的地面而成死球,发球员就得一分。
随后,发球员再从另一发球区发球。
6、发球员违例或因球触及发球员场区内的地面而成死球,发球员即失去发球权。
随后,接发球员成了发球员,双方均不得分。
羽毛球单打比赛规则1.每场比赛采取三局两胜制;2、率先得到21分的一方赢得当局比赛;3、如果双方比分打成20比20,获胜一方需超过对手2分才算取胜;4、如果双方比分打成29比29,则率先得到第30分的一方取胜;5、首局获胜一方在接下来的一局比赛中率先发球;6、当一方在比赛中得到11分后,双方队员将休息1分钟;7、两局比赛之间的休息时间为2分钟;羽毛球双打比赛规则(1)一局比赛开始和获得发球局的一方,都应从右发球区开始发球。
(2)只有接发球员才能接发球;如果它的同伴去接球或被球触及,发球方得一分。
①每局开始首先发球的运动员,在该局本方得分为0或双数时,都必须在右发球区发球或接发球;得分为单数时,则应在左发球区发球或接发球。
②每局开始首先接发球的运动员,在该局本方得分为0或双数时,都必须在右发球区接发球或发球;得分为单数时,则应在左发球区接发球或发球。
③上述两条相反形式的站位适用于他们的同伴。
(3)任何一局的本方发球员失去发球权后,由该局首先发球员发球,然后首先发球员的同伴发球,接着由他们的对手之一发球,然后再有另一对手发球,如此传递发球权。
(4)运动员不得有发球错误和接发球的错误,或在同一局比赛中有两次发球。
(5)一局胜方的任一运动员可在下一局先发球,负方中任一运动员可先接发球。
(6)球发出后就不再受发球区的限制了。
运动员可在本方场区自由站位和将球击到对方场区的任何位置。
羽毛球单打比赛规则
羽毛球双打发球规则图解
羽毛球双打发球的基本规则为:谁得分谁发球,单数分在左区发球,0或双数分在右区发球。
只有发球方在得分时才交换发球区,对方不动。
除此以外,运动员继续站在上一回合的各自发球区不变。
假设A 、B 方与C 、D 方进行双打比赛。
A 、B 方赢了挑边并选择了发球。
(一)比赛开始,0-0,由A从右区发球(0或双数分在右区发球),C接发球。
(二)A、B方得分,1-0,因此,A和B得到发球权并交换发球区(谁得分谁发球,只有发球方在得分时才交换发球区,对方不动)。
新的一回合开始。
A从左区发球(单数分在左区发球),D接发球。
上一回合的各自发球区不变)。
新的一回合开始。
D从左区发球(单数分在左区发球),A接发球。
上一回合的各自发球区不变)。
新的一回合开始。
B从右区发球(0或双数分在右区发球),C接发球。
上一回合的各自发球区不变)。
新的一回合开始。
C从右区发球(0或双数分在右区发球),B接发球。
(六)C、D方得分,2-3,因此,C和D得到发球权并交换发球区(谁得分谁发球,只有发球方在得分时才交换发球区,对方不动)。
新的一回合开始。
C从左区发球(单数分在左区发球),A接发球。
上一回合的各自发球区不变)。
新的一回合开始。
A从左区发球(单数分在左区发球),C接发球。
只有发球方在得分时才交换发球区,对方不动)。
新的一回合开始。
A从右区发球(0或双数分在右区发球),D接发球。