基坑放坡及护坡示意图
- 格式:doc
- 大小:28.50 KB
- 文档页数:1
基坑施工方案(放坡)一、前言基坑工程是建筑工程中重要的一环,其施工方案的设计和执行直接关系到整个工程的顺利进行和安全性。
本文将从基坑施工方案中的放坡设计入手,探讨其重要性、设计原则和实施方法。
二、放坡设计的重要性1. 安全性基坑施工中如果不合理设计放坡,可能会导致坍塌、滑坡等安全事故发生,危及施工人员和周边建筑物的安全。
2. 施工效率合理的放坡设计可以提高基坑施工的效率,减少施工过程中的不必要麻烦,提升整体工程进行的顺利程度。
3. 土壤保护通过放坡设计,可以减少土壤的损失和运输,降低对土地资源的浪费,有利于环境保护和可持续发展。
三、放坡设计原则1. 土质分析在进行放坡设计前,必须对基坑周围的土壤进行详细的勘察和分析,了解土壤的性质、稳定性等信息,为后续设计提供依据。
2. 坡度选择根据土壤的稳定性和工程的要求,选择合适的坡度进行设计,以确保基坑的安全和稳定。
3. 护坡措施在设计放坡时,应考虑采取适当的护坡措施,如设置支撑、加固土壤等,以提高基坑施工的安全性和稳定性。
四、放坡设计的实施方法1. 设计方案确定基于前期的土质分析和坡度选择,确定合适的放坡设计方案,并制定详细的实施计划。
2. 施工实施按照设计方案,采取相应的工程措施和护坡措施,进行基坑的放坡施工,确保施工安全、顺利进行。
3. 定期检查在施工过程中,定期对放坡工程进行检查和监测,发现问题及时处理,确保基坑施工的安全和质量。
五、总结基坑施工中的放坡设计是一个重要环节,关系到整个工程的安全和顺利进行。
合理的放坡设计原则和有效的实施方法是确保基坑施工顺利进行的关键,需要设计人员和施工人员共同努力,保障工程的安全和质量。
以上是关于基坑施工方案中放坡设计的一些探讨,希望能对相关工程人员有所帮助,使基坑施工更加安全、高效。
图文分析六种基坑支护类型简介,一看就懂基坑支护工程是指在基坑开挖时,为了保证坑壁稳定,保护主体地下工程施工时的安全以及周围环境不受损害所采取的工程措施。
一般基坑支护形式的选取主要取决于基坑挖深、场地条件、周边环境(邻近既有建构筑物、市政道路、管线)、场地水文地质条件、项目工期要求等因素,应综合分析合理选取。
一般同等条件下支护形式的造价从低至高依次为:放坡开挖<土钉墙(复合土钉墙)<水泥土重力式挡墙<型钢水泥土搅拌墙(SMW工法)<排桩<地墙。
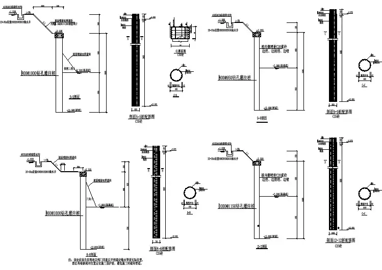
一、放坡开挖图 1 放坡开挖实景照1、坡率应根据土层性质、挖深确定,挖深大于4m应采用多级放坡,多级放坡应设置平台;土质条件较好的地区,应优先选用天然放坡;软土地区大面积放坡开挖的基坑,边坡表面应设置钢筋网片护坡面层;图2 多级放坡示意(注:开挖面在地下水位之下需要设置降水井)2、若开挖面在地下水位之下,坡顶和平台处应采取井点降水措施,提高坡体稳定性;坡顶设置挡水坎或排水沟,防止坑外积水流入坑内,侵蚀坡体;3、坡脚附近如有局部深坑,坡脚与局部深坑的距离应不小于2倍深坑落深,如不能保证,应按深坑的深度验算边坡稳定。
二、土钉墙(复合土钉墙)若场地条件限制无法满足大放坡开挖的需要,可采用土钉墙支护,减少放坡范围。
图 3 土钉墙实景照1、土钉形式有钢管土钉和钢筋土钉,坡面采用钢筋网片喷射混凝土面层;2、当土钉墙后存在滞水时,应在含水层部位的墙面设置泄水孔或采取其他疏水措施,减小墙背后的水压力,提高土钉墙稳定性;3、当采用预应力锚杆复合土钉墙时,预应力锚杆应采用钢绞线锚杆,且锚杆应布置在土钉墙的较上部位;当用于增强面层抵抗土压力的作用时,锚杆应布置在土压力较大及墙背土层较软弱的部位。
三、水泥土重力式挡墙图 4 水泥土重力坝实景照1、重力式挡墙形式:一般选用双轴或三轴水泥土搅拌桩,搅拌桩可按搭接施工,搭接长度控制在150mm~200mm,挡墙顶面宜设置混凝土面板;2、一般土层条件下,搅拌深度小于16m的应优先选用造价更低的双轴,超过16m的应选用三轴,遇到淤泥等软弱土层,水泥掺量适当提高;3、水泥土搅拌桩应按格栅布置,建议格栅布置形式如图所示(以双轴为例)。
常见基坑支护结构形式,结构图及实景图解说一、概述1、基坑工程:建筑物或构筑物地下部分施工时,需开挖基坑,进行施工降水,同时要对基坑四周的建筑物、构筑物、道路和地下管线进行围护及监测,确保正常、安全施工。
这项涉及勘查、设计、施工、监理、监测、应急等内容的综合系统性工程称为基坑工程。
2、支护结构:基坑工程中采用的围护墙、支撑(或土层锚杆)、围檩、防渗帷幕、降排水等结构体系的总称。
3、深基坑:开挖深度超过5M(含5M)或深度虽未超过5M,但地质条件和周围环境及地下管线极其复杂的工程。
4、基坑安全等级:三个安全等级。
一级基坑:(1)软土地区基坑开挖深度大于8M。
(2)支护结构作为主体结构的一部分。
(3)在基坑开挖影响范围内有重要建(构)筑物或需严加保护的管线。
三级基坑:开挖深度小于5M,且周围环境无特殊要求。
二级基坑:除一级和三级以外的基坑。
二、基坑支护结构形式1、放坡开挖(坡率法):利用土体自身的强度保持边坡不发生坍滑、移动、松散或不均匀下沉,达到边坡稳定。
关键是坡度i = H / L ,一般取1 : 0.5 — 1 : 2.0一般适用于杂填土、粘性土或粉性土,且环境条件允许的基坑。
2、土钉墙:由被加固土体、设置于土中的土钉体和挂钢筋网的喷射砼面板等共同作用形成的补强复合土体。
一般适用于:(1)稍密至中密状态的粉性土、砂土;(2)密实的碎石土层;(3)坚硬状态的含砾粘性土及风化岩层;(4)可塑至硬塑状态的一般粘性土;(5)素填土、人工杂填土;以上土层安全等级为二、三级的基坑。
注意:土钉墙在软粘土中(塘泥、淤泥、淤泥质粘土、淤泥质粉质粘土等)要严格控制,特别是周围环境要求较严的基坑点这 .☞免费下载施工技术资料。
3、复合土钉墙土方开挖前施打水泥搅拌桩、振动灌注桩、钢板桩、木桩等,然后按土钉墙的施工方法进行施工。
排桩复合土钉4、水泥重力式挡墙:水泥搅拌桩(旋喷桩)采用格栅形或连续形布置形成重力坝墙。
有时增加砼桩、钢板桩、毛竹等,以增强挡墙的强度。
4 护坡工程4.1 一般规定4.1.1 开发建设项目在基建施工和生产运行中由于开挖地面或堆置弃土、弃石、弃渣等形成的不稳定边坡,都应采取护坡工程。
4.1.2 根据边坡的高度和坡度等不同条件,分别采取不同的护坡工程。
主要有以下几种:1 对边坡高度大于4m、坡度大于1.0:1.5的,应采取削坡开级工程。
2 对边坡小于1.0:1.5的土质或沙质坡面,可采取植物护坡工程。
3 对堆置物或山体不稳定处形成的高陡边坡,或坡脚遭受水流淘刷的,应采取护坡工程。
4 对条件较复杂的不稳定边坡,应采取综合护坡工程。
5 对滑坡地段应采取滑坡治理工程。
4.2 削坡开级4.2.1 土质坡面的削坡开级。
主要有直线形、折线形、阶梯形、大平台形等4种形式。
1 直线形:1)适用于高度小于20m、结构紧密的均质土坡,或高度小于12m的非均质土坡。
2)从上到下,削成同一坡度,削坡后比原坡度减缓,达到该类土质的稳定坡度。
3)对有松散夹层的土坡,其松散部分应采取加固措施。
2 折线形:1)适用于高12m一20m、结构比较松散的土坡,特别适用于上部结构较松散,下部结构较紧密的土坡。
2)重点是削缓上部,削坡后保持上部较缓、下部较陡的折线形。
3)上下部的高度和坡比,根据土坡高度与土质情况,具体分析确定,以削坡后能保证稳定安全为原则。
3 阶梯形:1)适用于高12m以上、结构较松散,或高20m以上、结构较紧密的均质土坡。
2)每一阶小平台的宽度和两平台间的高差,根据当地土质与暴雨迳流情况,具体研究确定。
一般小平台宽1.5m~2.0m,两台间高差6m~12m。
干旱、半干旱地区,两台间高差大些;湿润、半湿润地区,两台间高差小些。
3)开级后应保证土坡稳定。
4 大平台形:1)适用于高度大于30m,或在8度以上高烈度地震区的土坡。
2)大平台一般开在土坡中部,宽4m以上。
平台具体位置与尺寸,需根据《地震区建筑技术规范》对土质边坡高度的限制,研究确定。
3)大平台尺寸基本确定后,需对边坡进行稳定性验算。
放坡基坑施工中,常用的护坡措施(一)放坡基坑施工中常用的护坡措施放坡基坑施工中,为了保证施工安全和基坑的稳定,我们需要采取一系列的护坡措施。
以下是一些常用的护坡措施:1. 切坡•切坡是最常用的护坡措施之一,通过切削或爆破等方式,将边坡的坡度降低,增加边坡的稳定性。
•进行切坡时,需要根据土方特性、边坡高度和坡度要求等因素进行设计和施工,并进行相应的支护工作。
2. 植被护坡•植被护坡是一种环保、经济的护坡方式,通过植物的牢固根系和细腻的根系网,有效地防止坡面土壤的侵蚀和滑坡。
•选择适合当地气候和土壤条件的植物,进行合理布置和养护,可以提高护坡的效果。
3. 砌石护坡•砌石护坡是一种常见的护坡方式,通过石材的堆砌,形成坚固的护坡结构,增加边坡的稳定性。
•砌石护坡可以使用天然石材或人工石材,根据施工需要选择不同的石料和砌筑方式。
4. 钢筋混凝土护坡•钢筋混凝土护坡是一种较为常见的护坡形式,通过钢筋混凝土的浇筑,形成坚固的护坡结构。
•钢筋混凝土护坡可以根据设计要求选择合适的结构形式,如挡土墙、护坡墙等。
5. 梯田护坡•梯田护坡是一种传统的护坡方式,通过将大坡度的农田划分为多个小坡度的梯田,减缓坡度,防止土壤流失和滑坡。
•梯田护坡不仅能够保持土壤肥力,还能提供农田灌溉和畜禽饮水等功能。
6. 钢丝网护坡•钢丝网护坡是一种简单有效的护坡方式,通过将钢丝网铺设在边坡表面,防止土壤的流失和坡体的滑坡。
•钢丝网护坡可以根据坡体和土方的情况选择不同的规格和尺寸,并进行牢固的固定和连接。
以上是放坡基坑施工中常用的护坡措施,每种护坡方式都有其适用的情况和优缺点,施工前需要根据具体情况进行选择和设计。
保证坡面的稳定性和施工安全是施工时的重要任务,合理选择和实施护坡措施对于整个工程的顺利进行至关重要。
基坑放坡喷浆护坡要求咱来说说基坑放坡喷浆护坡的要求哈。
一、放坡方面。
1. 坡度得合适。
这坡度就像滑梯的角度一样,不能太陡也不能太缓。
太陡了,土就容易哗啦啦地滑下来,就像你堆沙子堆得太陡,它肯定会塌。
一般呢,要根据土的性质来定坡度。
像砂土,它比较松散,坡度就得缓一点,可能1:1.5或者更缓;要是黏土呢,相对结实点,坡度可以稍微陡一点,比如1:1左右。
这就好比不同性格的人做事速度不一样,咱得根据土的“性格”来安排坡度。
2. 坡面得平整。
坡面可不能坑坑洼洼的,就像你的脸要是坑洼不平就不好看了一样。
要把坡面修整得平平整整的,这样喷浆的时候才能喷得均匀。
如果坡面高低不平,喷浆的时候有的地方厚,有的地方薄,薄的地方就容易出问题,就像给蛋糕抹奶油,蛋糕表面不平整,奶油也抹不均匀。
二、喷浆方面。
1. 材料要合格。
这喷浆的材料就像做菜的食材一样,得是好的。
水泥得是正规厂家生产的,标号要符合要求,沙子也要干净,不能有太多杂质。
要是水泥质量不好,就像用了过期的面粉做馒头,馒头肯定发不起来,喷浆的强度就不够,护坡就不结实。
2. 配比要准确。
喷浆材料的配比可不能瞎搞。
水泥、沙子和水得按照一定的比例来混合,就像调鸡尾酒一样,每种成分的量都得对。
水多了,喷浆就太稀,喷到坡面上就像水一样流下来,根本起不到护坡的作用;水少了呢,喷浆太干,喷不出去,就像你想把很干的沙子捏成球,根本捏不起来。
3. 喷射要均匀。
在喷浆的时候,要像给墙上刷漆一样,均匀地喷。
不能有的地方喷得厚厚的,像穿了件大棉袄,有的地方又喷得薄薄的,像只穿了件纱衣。
要让喷浆均匀地覆盖在坡面上,这样护坡的强度才一致,不会出现薄弱的地方。
而且喷射的时候,喷头要和坡面保持合适的距离,太近了,喷浆冲击力太大,会把坡面冲坏;太远了,喷浆又不能很好地附着在坡面上。
三、其他方面。
1. 养护不能忘。
喷完浆可不能就不管了,就像种了花要浇水一样,得养护。
要保持坡面有一定的湿度,可以用喷水的方式,在喷浆后的几天里,时不时地给坡面喷点水。