西门子S7-200系列PLC控制水塔水位(含程序)
- 格式:doc
- 大小:1.12 MB
- 文档页数:14
实验三水塔水位控制的模拟
在S23 S7-200模拟实验挂件(三)本实验。
一、实验目的
用PLC构成水塔水位自动控制系统,掌握定时器的使用方法。
二、实验内容
(1)当水池水位低于水池低水位界(S4为ON表示),阀Y打开进水(Y为ON)定时器开始定时;
(2)阀Y打开4秒后,如果S4还不为OFF,那么阀Y指示灯闪烁,表示阀Y 没有进水,出现故障;
(3)S3为ON后,阀Y关闭(Y为OFF)。
当S4为OFF时,且水塔水位低于水塔低水位界时S2为ON,电机M运转抽水。
当水塔水位高于水塔高水位界时电机M停止。
三、水塔水位控制的实验面板图
说明:面板中S1表示水塔的水位上限,S2表示水塔水位下限,S3表示水池水位上限,S4表示水池水位下限,M1为抽水电机,Y为水阀。
四、输入/输出接线列表
五、梯形图参考程序
六、实验注意事项
1、严格按照规定操作。
2、注意安全,不要触摸带电元器件,实验接线完成经指导老师检查后方可
送调试。
3、注意各设备送电顺序,实验完毕后关闭电源。
七、实验报告内容要求
1、实验名称
2、实验目的
3、实验装置介绍
4、实验原理及过程
5、实验过程及程序
6、实验结果及体会
/view/48dd70f90242a8956bece4f4.html /view/1a76d620aaea998fcc220ea9.html /view/3f28254bcf84b9d528ea7a34.html。
PLC控制的水塔液位控制系统摘要本文主要是对一水塔液位控制系统的设计过程,涉及到液位的动态控制、控制系统的建模、PLC控制、PID算法、传感器和调节阀等一系列的知识。
作为单容水塔液位的控制系统,其模型为一阶惯性函数,控制方式采用了PID算法,控制核心为S7-200系列的CPU222以及A/D、D/A转换模块,传感器为扩散硅式压力传感器,调节阀为电动调节阀。
选用以上的器件设备、控制方案和算法等,是为了能最大限度地满足系统对诸如控制精度、调节时间和超调量等控制品质的要求。
在人们生活以及工业生产等诸多领域经常涉及到液位和流量的控制问题, 例如居民生活用水的供应, 饮料、食品加工, 溶液过滤, 化工生产等多种行业的生产加工过程, 通常需要使用蓄液池, 蓄液池中的液位需要维持合适的高度, 既不能太满溢出造成浪费, 也不能过少而无法满足需求。
由于液体本身的属性及控制机构的摩擦、噪声等的影响,控制对具有一定的纯滞后和容量滞后的特点,液位上升的过程缓慢,呈非线性。
因此液位控制装置的可靠性与控制方案的准确性是影响整个系统性能的关键,因此液面高度是工业控制过程中一个重要的参数,特别是在动态的状态下,采用适合的方法对液位进行检测、控制,能收到很好的效果。
可编程控制器(PLC)是计算机家族中的一员,是为工业控制应用而设计制造的,主要用来代替继电器实现逻辑控制。
PID控制(比例、积分和微分控制)是目前采用最多的控制方法。
AbstractThis paper is mainly the design process of a water tower level control system, relates to the dynamic control, liquid level control system modeling, PLC control,PID algorithm, the sensor and the control valve and a series of knowledge. As a single capacity water tower level control system, the model is a one order inertialfunction, control method using the PID algorithm, the control core is S7-200series CPU222 and A/D, D/A conversion module, sensor for diffusion siliconpressure sensor, control valve for the electric control valve. Choose abovedevices, control scheme and algorithm, is in order to maximize meet systemsuch as control precision, time and quantity of regulation and control the quality requirements. In people's daily life and industrial production and other fieldsoften relates to the control problems of liquid level and flow, such as residents living water supply, beverage, food processing, solution filter, chemical production and many other industries in the production process, typically requires the use of a liquid storage tank, storage liquid pool in the the need to maintain the appropriate height, neither too overflow caused by waste, also cannot too little and cannot meet thedemand of. Because of the influence ofproperty and the control mechanism of the liquid itself friction, noise, control with a certain pure lag and lag characteristics of capacity, process level is risingslowly,non-linear. The accuracy and reliability of control scheme so liquid level control device is the key to influence the performance of the whole system, sothe liquid level height is an important parameter in the process of industrial control, especially in the dynamic condition, adopting suitable methods for detection, control of the liquid level, can get good effect. Programmable logic controller (PLC) is a member of the family computer, is designed for industrial control applications in manufacturing, is mainly used to replace relay logic control to achieve. PID control (proportional, integral and differential control) is currently the most used control method.(二)目的与意义可编程控制器PLC因为抗干扰能力强,可靠性好,控制系统结构简单,通用性强,编程方便,易于使用,设计、施工、调试、的周期短,体积小,维护操作方便,易于实现网络化,可实现三电一体化等优势已经成为应用面最广,最广泛的通用工业控制装置,成为当代工业自动化的主要支柱之一。
基于西门子S7-200系列PLC的液位控制系统摘要:可编程逻辑控制器(PLC)是一种数字运算操作电子系统,适用于在工业环境下控制各类机械设备。
液位控制是工业生产中常见的一种过程控制,采用PID控制方法,可以使液位控制系统更好而适应工业生产中的工作条件变化。
本设计是利用PLC自带的PID调节模块,调整比例系数、积分时间、微分时间,输出信号控制电动调节阀的开度,从而控制水箱内部液位的高度。
关键词:PLC;MCGS运行环境;液位控制一、引言本设计利用西门子S7-200系列PLC自带的PID调节模块,不断调节PID的各项参数,通过输出信号对电动调节阀的开度进行控制,比较各个参数下的控制性能,进而控制水箱内部的液位高度。
因此,本设计对液位系统控制原理进行了分析,对控制方式与控制性能进行了比较,对软件设计进行了简要的阐述。
二、控制系统设计及参数上水箱液位自动调节系统设计:本设计中我们需要对上水箱的液位进行控制,其中,SP为给定信号(由操作者通过PC端设定),PV为控制变量。
当水箱中的液位高度小于给定值时,给定值与压力变送器检测到的反馈值之差就是PID调节器的输入偏差信号。
系统开始运行时,单相泵正常运行,打开上水箱的出水阀及其他相关阀门,并通过控制电动调节阀的开度控制水流量。
具体调节方法如下:压力变送器检测到的电信号送入PLC并转换为数字信号,经过PLC的PID程序运算后输出转化为4~20mA的模拟电信号至电动调节阀中,以控制电动阀的开度。
当水箱内的液位高度与给定值达到一致后,PID调节器的输入偏差信号为零,电动调节阀维持当前开度不变,水箱中的进出水量保持一致,水箱内的液位高度也将不会变化。
而比例-积分-微分(PID)调节器是常规调节器中性能最好的一种调节器,PID调节器因其兼具各类调节器的优点,从而能使系统达到更高的控制质量。
本设计中采用的单闭环控制系统参数如下:被控系统液位的最大值和最小值:MAX:37cm ;MIN:0cm;液位检测仪表: PT330-G10KG13型号液位传感器;控制阀: QSTP-16K电动调节阀,手动机械调节阀;控制器:S7-200PLC;控制性:QSTP-16K电动调节阀:单极性;S7-200PLC:单极性;误差:不超过5%;控制界面:以MCGS界面来控制液位,可调节调整比例系数、积分时间、微分时间等参数。
《PLC》水塔水位的模拟控制实验一、实验目的1.学会用PLC构成水塔水位的自动控制系统2.熟练掌握PLC编程软件的编程方法和应用二、实验设备三、面板图1四、控制要求当水池水位低于水池低水位界(SB4为ON表示),阀L2打开进水(L2为ON)定时器开始定时,4秒后,如果SB4还不为OFF,那么阀L2指示灯闪烁,表示阀L2没有进水,出现故障,SB3为ON后,阀L2关闭(L2为OFF)。
当SB4为OFF时,且水塔水位低于水塔低水位界时SB2为ON,电机L1运转抽水。
当水塔水位高于水塔水位界时电机L1停止。
五、端口分配表2六、操作步骤1、按照I/O端口分配表或接线图完成PLC与实验模块之间的接线,将PLC的DI 输入端中的1M、2M公共端接到公共端的M端,将PLC的DO输出端中的1L、2L、3L公共端接到公共端的L+端,实验挂箱的COM端接到公共端的M端。
+24V接到公共端的L+端,认真检查,确保正确无误。
2、打开示例程序或用户自己编写的控制程序,进行编译,有错误时根据提示信息修改,直至无误,用PC/PPI通讯编程电缆连接计算机串口与PLC通讯口,打开PLC主机电源开关,下载程序至PLC中,下载完毕后将PLC的“RUN/STOP”开关拨至“RUN”状态。
3、按下按钮SB4为ON后,阀L2打开进水(L2为ON)。
定时器开始定时,4秒后,如果SB4还不为OFF,那么阀L2指示灯闪烁,表示阀L2没有进水,出现故障。
4、按下按钮SB3为ON后,阀L2关闭(L2为OFF)。
5、松开按钮SB4(SB4为OFF)时,按下SB2(SB2为ON)即水塔水位低于水塔低水位界时,电机L1运转抽水。
6、按下按钮L1电机L1停止。
七、实验总结1.了解并掌握水塔水位模拟控制的的工作原理。
2.能熟练运用编制和调试PLC程序的方法3。
一、水塔水位1、系统描述及控制要求1.1 国内外发展现状调查1.1.1 PLC及西门子S7-200系列PLC介绍20世纪70年代初出现了微处理器。
人们很快将其引入可编程逻辑控制器,使可编程逻辑控制器增加了运算、数据传送及处理等功能,完成了真正具有计算机特征的工业控制装置。
此时的可编程逻辑控制器为微机技术和继电器常规控制概念相结合的产物。
个人计算机发展起来后,为了方便和反映可编程控制器的功能特点,可编程逻辑控制器定名为Programmable Logic Controller(PLC)。
20世纪70年代中末期,可编程逻辑控制器进入实用化发展阶段,计算机技术已全面引入可编程控制器中,使其功能发生了飞跃。
更高的运算速度、超小型体积、更可靠的工业抗干扰设计、模拟量运算、PID功能及极高的性价比奠定了它在现代工业中的地位。
20世纪80年代初,可编程逻辑控制器在先进工业国家中已获得广泛应用。
世界上生产可编程控制器的国家日益增多,产量日益上升。
这标志着可编程控制器已步入成熟阶段。
20世纪80年代至90年代中期,是可编程逻辑控制器发展最快的时期,年增长率一直保持为30~40%。
在这时期,PLC在处理模拟量能力、数字运算能力、人机接口能力和网络能力得到大幅度提高,可编程逻辑控制器逐渐进入过程控制领域,在某些应用上取代了在过程控制领域处于统治地位的DCS系统。
20世纪末期,可编程逻辑控制器的发展特点是更加适应于现代工业的需要。
这个时期发展了大型机和超小型机、诞生了各种各样的特殊功能单元、生产了各种人机界面单元、通信单元,使应用可编程逻辑控制器的工业控制设备的配套更加容易。
西门子S7-200 是一种小型的可编程序控制器,适用于各行各业,各种场合中的检测、监测及控制的自动化。
S7-200系列的强大功能使其无论在独立运行中,或相连成网络皆能实现复杂控制功能。
因此S7-200系列具有极高的性能/价格比。
西门子S7-200系列在集散自动化系统中充分发挥其强大功能。
设计题目:基于PLC的水塔水位控制系统院系:电气工程系专业:电子信息工程年级:2012 级姓名:飞指导教师:西南交通大学峨眉校区年月日课程设计任务书专业电子信息工程姓名飞学号20128092开题日期:年月日完成日期:2014年12月15日题目简易漏电报警器一、设计的目的二、设计的容及要求三、指导教师评语四、成绩指导教师(签章)年月日摘要目前,大量的高位生活用水和工作用水逐渐增多。
因此,不少单位自建水塔储水来解决高层楼房的用水问题。
最初,大多用人工进行控制,由于人工无法每时每刻对水位进行准确的定位监测,很难准确控制水泵的起停。
要么水泵关停过早,造成水塔缺水;要么关停过晚,造成水塔溢出,浪费水资源,给用户造成不便。
利用人工控制水位会造成供水时有时无的不稳定供水情况。
后来,使用水位控制装置使供水状况有了改变,但常使用浮标或机械水位控制装置,由于机械装置的故障多,可靠性差,给维修带来很大的麻烦。
因此为更好的保证供水的稳定性和可靠性,传统的供水控制方法已难以满足现在的要求。
本文采用的是西门子S7-200PLC可编程控制器作为水塔水位自动控制系统核心,对水塔水位自动控制系统的功能性进行了需求分析。
主要实现方法是通过传感器检测水塔的实际水位,将水位具体信息传至PLC构成的控制模块,来控制水泵电机的动作,同时显示水位具体信息,若水位低于或高于某个设定值时,就会发出危险报警的信号,最终实现对水塔水位的自动。
关键词:水位自动控制、西门子S7-200PLC、水泵、传感器目录摘要 (1)第一章绪论 (1)第二章可编程器简介 (2)2.1可编程控制器的产生 (2)2.2 PLC的发展 (3)2.3 PLC的基本结构 (4)2.4 PLC的工作原理 (4)2.5 PLC的主要应用 (6)2.6 西门子S7-200系列PLC的编程元件 (8)第三章水塔水位控制系统方案设计 (12)3.1 传统水塔水位控制 (12)3.2 水塔控制系统的工作原理 (12)3.3 水塔水位控制主电路图 (12)3.4 I/O接口分配 (13)3.5 水塔水位控制系统I/O图 (14)第四章水塔水位控制系统PLC软件设计 (15)4.1 程序流程图 (15)_Toc220324.2 PLC 控制梯形图 (15)4.3 水位控制系统的具体工作过程 (18)第五章总结 (20)参考文献 (21)第一章绪论在工业生产中,电流、电压、温度、压力、液位、流量、和开关量等都是常用的主要被控参数。
PLC控制水塔液位及温度控制程序设计
一:设计目的:
1、用PLC构成水塔液位和温度的自动控制系统。
2、了解PLC在实际生活中的应用。
二:控制要求:
(1)闭合水池低液位开关,驱动电磁阀打开,开始进水同时进行加热和搅拌,使水受热均匀,当水位到达水池高液位时,停止加水,但还可以加热,直到加热到温度为20度到30度之间为止,同时驱动蜂鸣器发出声音提醒。
(2)在蜂鸣器提醒的期间可以打开水塔低液位开关,启动抽水电机向水塔抽水并同时停止加热和搅拌。
直到到达水塔的高液位停止抽水。
三:设计参考:
1、输入:
2、输出:
X1 水塔高液位控制开关S1 Y0 电磁阀
X2 水塔低液位控制开关S2 Y1 抽水电动机
X3 水池高液位控制开关S3 Y2 加热器
X4 水池低液位控制开关S4 Y3 搅拌器
C5 温度传感器S5 Y4 蜂鸣器
四:设计流程图为:
五:水塔控制示意图:
六:硬件连接图如下:
七:由以上的分析可得梯形图如下:
八:从上梯形图可以看出,闭合X4后,一直进行加水并加热,直到水池充满,当热量到达20到30度之间蜂鸣器开始提醒,这之间可以打开水塔的低液位的开关,此时抽水机工作,关闭加热和搅拌,直到到达水塔高液位,整个系统停止工作。
水塔水位控制模拟plc实验报告一、实验目的本实验旨在通过使用PLC进行水塔水位控制模拟,提高学生对于PLC控制系统的理解和应用能力。
二、实验原理1. 水塔水位控制模拟:本实验中,通过使用PLC对水泵进行控制,以达到对于水塔内部水位的控制。
当水塔内部水位过低时,PLC会向电磁阀发送信号,打开电磁阀并启动水泵;当水塔内部水位过高时,PLC会向电磁阀发送信号,关闭电磁阀并停止水泵。
2. PLC控制系统:PLC是一种可编程逻辑控制器,其主要功能是对于各种工业自动化设备进行逻辑运算和数据处理。
PLC由输入输出模块、中央处理器、存储器等组成,并且可以通过编程来实现对于各种设备的控制。
三、实验器材1. PLC:S7-200;2. 电磁阀:24V DC;3. 水泵:220V AC;4. 传感器:浮球开关;5. 电源:220V AC。
四、实验步骤1. 连接电路:将浮球开关连接至输入模块中,并将电磁阀和水泵连接至输出模块中。
2. 编写PLC程序:根据实验要求,编写PLC程序,实现对于水塔内部水位的控制。
具体程序如下:(1) 定义输入输出口:I0.0:浮球开关;Q0.0:电磁阀;Q0.1:水泵。
(2) 编写主程序:当浮球开关状态为1时,即水塔内部水位过低时,PLC向电磁阀发送信号打开,并启动水泵;当浮球开关状态为0时,即水塔内部水位过高时,PLC向电磁阀发送信号关闭,并停止水泵。
3. 上传程序至PLC:使用STEP 7-Micro/WIN软件将编写好的程序上传至PLC中。
4. 进行实验验证:对于实验进行验证,在不同的水位情况下观察电磁阀和水泵的运行情况,并记录数据进行分析。
五、实验结果通过本次实验,成功地使用PLC对于水塔内部的水位进行了控制,并且在不同的情况下进行了验证。
通过观察数据可以得出结论,在不同的情况下,PLC都能够准确地控制电磁阀和水泵的运行,并且达到了预期的效果。
六、实验总结通过本次实验,我们对于PLC控制系统的原理和应用有了更深入的了解,同时也提高了我们的实践能力。
设计题目:基于PLC的水塔水位控制系统院系:电气工程系专业:电子信息工程年级:2012 级*名:**指导教师:西南交通大学峨眉校区年月日课程设计任务书专业电子信息工程姓名李飞学号******** 开题日期:年月日完成日期:2014年12月15日题目简易漏电报警器一、设计的目的二、设计的内容及要求三、指导教师评语四、成绩指导教师(签章)年月日摘要目前,大量的高位生活用水和工作用水逐渐增多。
因此,不少单位自建水塔储水来解决高层楼房的用水问题。
最初,大多用人工进行控制,由于人工无法每时每刻对水位进行准确的定位监测,很难准确控制水泵的起停。
要么水泵关停过早,造成水塔缺水;要么关停过晚,造成水塔溢出,浪费水资源,给用户造成不便。
利用人工控制水位会造成供水时有时无的不稳定供水情况。
后来,使用水位控制装置使供水状况有了改变,但常使用浮标或机械水位控制装置,由于机械装置的故障多,可靠性差,给维修带来很大的麻烦。
因此为更好的保证供水的稳定性和可靠性,传统的供水控制方法已难以满足现在的要求。
本文采用的是西门子S7-200PLC可编程控制器作为水塔水位自动控制系统核心,对水塔水位自动控制系统的功能性进行了需求分析。
主要实现方法是通过传感器检测水塔的实际水位,将水位具体信息传至PLC 构成的控制模块,来控制水泵电机的动作,同时显示水位具体信息,若水位低于或高于某个设定值时,就会发出危险报警的信号,最终实现对水塔水位的自动。
关键词:水位自动控制、西门子S7-200PLC、水泵、传感器目录摘要 (1)第一章绪论 (1)第二章可编程器简介 (2)2.1可编程控制器的产生 (2)2.2 PLC的发展 (3)2.3 PLC的基本结构 (4)2.4 PLC的工作原理 (4)2.5 PLC的主要应用 (6)2.6 西门子S7-200系列PLC的编程元件 (8)第三章水塔水位控制系统方案设计 (11)3.1 传统水塔水位控制 (12)3.2 水塔控制系统的工作原理 (12)3.3 水塔水位控制主电路图 (12)3.4 I/O接口分配 (13)3.5 水塔水位控制系统I/O图 (14)第四章水塔水位控制系统PLC软件设计 (15)4.1 程序流程图 (15)4.2 PLC 控制梯形图 (15)4.3 水位控制系统的具体工作过程 (18)第五章总结 (20)参考文献 (21)第一章绪论在工业生产中,电流、电压、温度、压力、液位、流量、和开关量等都是常用的主要被控参数。
编号:2013020839学院《可编程控制器应用技术》课程设计( 2013届本科)题目:基于S7-200PLC水塔水位控制系(部)院:物理与电子工程学院专业:电子信息科学与技术二班:倩倩指导老师:片春媛完成日期:2016年1月6日目录摘要 (4)第一章绪论 (4)1.1 PLC的发展 (4)1.2 PLC的基本结构 (5)1.3PLC特点 (5)1.4 PLC的工作原理 (6)第二章水塔水位系统PLC硬件设计 (8)2.1要求独立完成水塔水位控制PLC系统设计与调试。
(8)2.2水塔水位系统控制电路 (9)2.3输入/输出分配 (9)2.3.1 列出水塔水位控制系统PLC的输入/输出接口分配表 (10)第三章水塔水位控制系统PLC软件设计 (11)3.1程序流程图 (11)3.2梯形图及语句表 (12)3.3外部接线图模拟仿真结果 (14)3.4模拟仿真结果.................................................................. . (18)第四章设计总结 (20)参考文献 (21)附件:成绩评定表[摘要]在工农业生产过程中,经常需要对水位进行测量和控制。
水位控制在日常生活中应用也相当广泛,比如水塔、地下水、水电站等情况下的水位控制。
而水位检测可以有多种实现方法,如机械控制、逻辑电路控制、机电控制等。
本文采用PLC进行主控制,在水箱上安装一个自动测水位装置。
利用水的导电性连续地全天候地测量水位的变化,把测量到的水位变化转换成相应的电信号,主控台应用MCGS组态软件对接收到的信号进行数据处理,完成相应的水位显示、故障报警信息显示、实时曲线和历史曲线的显示,使水位保持在适当的位置。
[关键词]水位控制、西门子S7-200第一章绪论1.1PLC的发展虽然PLC问世时间不长,但是随着微处理器的出现,大规模,超大规模集成电路技术的迅速发展和数据通讯技术的不断进步,PLC也迅速发展,其发展过程大致可分为三各阶段:早期的PLC一般称为可编程逻辑控制器。
编号:2013020839之袁州冬雪创作新乡学院《可编程节制器应用技术》课程设计( 2013届本科)题目:基于S7-200PLC水塔水位节制系(部)院:物理与电子工程学院专业:电子信息迷信与技术二班姓名:刘倩倩指导教师:片春媛完成日期:2016年1月6日目次摘要4第一章绪论41.1 PLC的发展41.2 PLC的基本布局51.4 PLC的工作原理6第二章水塔水位系统PLC硬件设计82.1要求独立完成水塔水位节制PLC系统设计与调试.82.3输入/输出分配92.3.1 列出水塔水位节制系统PLC的输入/输出接口分配表10第三章水塔水位节制系统PLC软件设计111243.4摹拟仿真成果................................................. (18)第四章设计总结20参考文献21附件:成绩评定表[摘要]在工农业生产过程中,常常需要对水位停止丈量和节制.水位节制在日常生活中应用也相当广泛,比方水塔、地下水、水电站等情况下的水位节制.而水位检测可以有多种实现方法,如机械节制、逻辑电路节制、机电节制等.本文采取PLC停止主节制,在水箱上装置一个自动测水位装置.操纵水的导电性持续地全天候地丈量水位的变更,把丈量到的水位变更转换成相应的电信号,主控台应用MCGS组态软件对接纳到的信号停止数据处理,完成相应的水位显示、故障报警信息显示、实时曲线和汗青曲线的显示,使水位坚持在适当的位置.[关键词]水位节制、西门子S7-200第一章绪论虽然PLC问世时间不长,但是随着微处理器的出现,大规模,超大规模集成电路技术的迅速发展和数据通讯技术的不竭前进,PLC也迅速发展,其发展过程大致可分为三各阶段:早期的PLC一般称为可编程逻辑节制器.这是的PLC多少由电继电器节制装置的替代物的含义,其主要功能只是执行原先由继电器完成的顺序节制、定时等.它在硬件上以计算机的形式出现,在I/O接口电路上作了改进以适应工业节制现场的要求.装置种的器件主要采取分离元件和中小规模集成电路,存储器采取磁芯存储器.别的还采纳了一些措施,以提高其抗干扰的才能.在软件编程上采取广大电器工程技术人员所熟悉的继电器节制线路的方式—梯形图.因此,早期的PLC的性能要优于继电器节制装置,其优点包含简单易懂,便于装置,体积小,能耗低,有故障指示,能重复使用等.其中PLC特有的编程语言—梯形图一直沿用至今.在七十年月,微处理器的出现使PLC发生了宏大的变更.美国,日本,德国等一些厂家先后开端采取微处理器作为PLC的中央处理单元(CPU).这样,使PLC的功能大大增强.在软件方面,除了坚持其原有的逻辑运算、计时、计数等功能以外,还增加了算术运算、数据处理和传送、通讯、自诊断等功能.再硬件方面,除了坚持其原有的开关模块以外,还增加了摹拟量快、远程I/O模块、各种特殊功能模块.并扩展了存储器的容量,是各种逻辑线圈的数量增加,还提供了一定数量的数据寄存器,使PLC的应用范围得以扩展.进入八十年月中、后期,由于插大规模集成电路技术的迅速发展,微处理器的市场价格大幅度下跌,使得各种类型的PLC所采取的微处理器的档次普遍提高.而且,为了进一步提高PLC的处理速度,各制造厂商纷纷开辟研制了专用逻辑处理芯片.这样使得PLC软、硬功能发生了宏大变更.1.2 PLC的基本布局PLC实质是一种专用于工业节制计算机,其硬件布局基本上与微型计算机相同,、中央处理单元(CPU),如下图所示.1.3 PLC特点(一) 高靠得住性1. 所有的I/O 接口电路均采取光电隔离使工业现场的外电路与PLC 外部电路之间电气上隔离2. 各输入端均采取R-C 滤波器其滤波时间常数一般为10~20ms.3. 各模块均采取屏蔽措施以防止辐射干扰4. 采取性能优良的开关电源5. 对采取的器件停止严格的筛选6. 杰出的自诊断功能一旦电源或其他软硬件发生异常情况CPU当即采取有效措施以防止故障扩展7. 大型PLC 还可以采取由双CPU 构成冗余系统或有三CPU 构成表决系统,使靠得住性更进一步提高(二) 丰富的I/O 接口模块1. PLC针对分歧的工业现场信号如:交流或直流;开关量或摹拟量;电压或电流;脉冲或电位;强电或弱电等.2. 有相应的I/O模块与工业现场的器件或设备如:按钮;行程开关;接近开关;传感器及变送器;电磁线圈;节制阀.3. 直接毗连别的为了提高操纵性能它还有多种人-机对话的接口模块; 为了组成工业部分网络它还有多种通讯联网的接口模块等等.(三) 采取模块化布局为了适应各种工业节制需要除了单元式的小型PLC 以外,绝大多数PLC 均采取模块化布局,PLC 的各个部件包含CPU 电源I/O 等均采取模块化设计,由机架及电缆将各模块毗连起来,系统的规模和功能可根据用户的需要自行组合.(四) 编程简单易学PLC的编程大多采取近似于继电器节制线路的梯形图形式,对使用者来讲不需要具有计算机的专门知识,因此很容易被一般工程技术人员所懂得和掌握.(五) 装置简单维修方便PLC不需要专门的机房可以在各种工业环境下直接运行,使用时只需将现场的各种设备与PLC 相应的I/O 端相毗连即可投入运行,各种模块上均有运行和故障指示装置,便于用户懂得运行情况和查找故障,由于采取模块化布局,因此一旦某模块发生故障用户可以通过更换模块的方法使系统迅速恢复运行.1.4 PLC的工作原理(1)输入采样阶段在输入采样阶段,PLC以扫描方式依次地读入所有输入状态和数据,并将它们存入I/O映象区中的相应得单元内.输入采样竣事后,转入用户程序执行和输出刷新阶段.在这两个阶段中,即使输入状态和数据发生变更,I/O映象区中的相应单元的状态和数据也不会改变.因此,如果输入是脉冲信号,则该脉冲信号的宽度必须大于一个扫描周期,才干包管在任何情况下,该输入均能被读入.(2)用户程序执行阶段在用户程序执行阶段,PLC总是按由上而下的顺序依次地扫描用户程序(梯形图).在扫描每条梯形图时,又总是先扫描梯形图左边的由各触点构成的节制线路,并按先左后右、先上后下的顺序对由触点构成的节制线路停止逻辑运算,然后根据逻辑运算的成果,刷新该逻辑线圈在系统RAM 存储区中对应位的状态;或者刷新该输出线圈在I/O映象区中对应位的状态;或者确定是否要执行该梯形图所规定的特殊功能指令.即,在用户程序执行过程中,只有输入点在I/O 映象区内的状态和数据不会发生变更,而其他输出点和软设备在I/O映象区或系统RAM存储区内的状态和数据都有能够发生变更,而且排在上面的梯形图,其程序执行成果会对排在下面的凡是用到这些线圈或数据的梯形图起作用;相反,排在下面的梯形图,其被刷新的逻辑线圈的状态或数据只能到下一个扫描周期才干对排在上面的程序起作用.(3)输出刷新阶段当扫描用户程序竣事后,PLC就进入输出刷新阶段.在此期间,CPU依照I/O映象区内对应的状态和数据刷新所有的输出锁存电路,再经输出电路驱动相应的外设.这时,才是PLC的真正输出.第二章水塔水位系统PLC硬件设计水塔水位节制装置图2.1要求独立完成水塔水位节制PLC系统设计与调试.坚持水池的水位在S3—S4之间,当水池水位低于下限液位开关S3,此时S3为ON,水阀打开,开端往水池里注水,当1S以后,此时水池下限液位开关S3为OFF,暗示水位高于下限水位.当页面高于上限水位S4时,则S4为ON,电磁阀关闭.当水塔水位低于水塔下限水位开关S2时,则水塔下限液位开关S2为ON,则驱动电机M开端工作,向水塔供水.当S2为OFF时,暗示水塔水位高于水塔下限水位.当水塔液面高于水塔上限水位开关S1时,则S1为ON,电机M停止抽水.当水塔水位低于下限水位时,同时水池水位也低于下限水位时,电机M不克不及启动.2.3 输入/输出分配这是一个单体节制小系统,没有特殊的节制要求,它有6个开关量,开关量输出触点书有8个,输入、输出触点数共有14个,只需选用一般中小型节制器即可.据此,可以对输入、输出点作出地址分配.2.3.1 列出水塔水位节制系统PLC的输入/输出接口分配表水塔水位节制系统的PLC节制流程图,根据设计要求节制流程图如下:3.2 梯形图及语句表3.3 外部接线图3.4 摹拟仿真成果第四章 设计总结在新乡学院学的所有课程的我,要用我所学的知识作出一个设计,给与我所学知识一个必定.我做的这个题目是有关与PLC 系统实际与实践相连系的设计.在此时对以前学习的知识的挑战与突破.在对这个设计的资料搜索停止独立搜索时,对于办公软件的应用有了进一步的提高.同时在对搜集的资料停止整核,连系所学实际知识,以及实际应用操纵的情况下,提高了实际操纵和独立处理问题的才能.通过这次设计实践.让我更熟练的掌握了PLC软件的简单编程方法,对于PLC的工作原理和使用方法也有了更深刻的懂得.在实际的运用中,也提高了我的工程素质.刚开端学习PLC软件时,由于我对一些细节的不加重视,当我把自己想出来的一些认为是对的程序运用到梯形图编辑时,问题出现了,在实验台停止实验室成果其实不克不及正常显现.这主要是因为我没有把实际和实践相连系,缺乏动手才能而造成的成果,最后通过教师的改正和自己的实际操纵,终于把正确的成果做了出来,同样也看清了自己的缺乏之处.设计过程中得到教师的意见和同学的讨论.再加上上网搜集到的资料,我也大白了不是每个问题都能自己处理的,只有通过自己尽力以及他人的帮忙才干把工作做得更好,古人云:三人行必有我师.所以说学习要善于向他人请教,学思连系.如今课程设计是做完了,这使我有一种成就感,可是我的学习之路还没有完,是这次设计让我大白了人这一辈子不克不及仅仅局限于那一点点知足感,要放眼望去,通过去参与各种实践,提升自己的动手才能,创造属于自己的未来.参考文献[1]何献忠.《可编程节制器应用技术》(西门子S7-200系列)(第2版).清华大学出版社[2]廖常初.《PLC基础及应用》.北京机械工业出版社,2004[3]李俊季、赵拂晓. 《可编程节制应用技术实训指导》. 北京:化学工业出版社,2001[4钟肇新、范建东. 《可编程节制器原理及应用(第三版)》. 广州:华南理工大学出版社,2003[5]汪志峰,《可编程节制器原理及应用》.西安.电子科技大学出版社,2004。
一、水塔水位
1、系统描述及控制要求
1.1 国内外发展现状调查
1.1.1 PLC及西门子S7-200系列PLC介绍
20世纪70年代初出现了微处理器。
人们很快将其引入可编程逻辑控制器,使可编程逻辑控制器增加了运算、数据传送及处理等功能,完成了真正具有计算机特征的工业控制装置。
此时的可编程逻辑控制器为微机技术和继电器常规控制概念相结合的产物。
个人计算机发展起来后,为了方便和反映可编程控制器的功能特点,可编程逻辑控制器定名为Programmable Logic Controller(PLC)。
20世纪70年代中末期,可编程逻辑控制器进入实用化发展阶段,计算机技术已全面引入可编程控制器中,使其功能发生了飞跃。
更高的运算速度、超小型体积、更可靠的工业抗干扰设计、模拟量运算、PID功能及极高的性价比奠定了它在现代工业中的地位。
20世纪80年代初,可编程逻辑控制器在先进工业国家中已获得广泛应用。
世界上生产可编程控制器的国家日益增多,产量日益上升。
这标志着可编程控制器已步入成熟阶段。
20世纪80年代至90年代中期,是可编程逻辑控制器发展最快的时期,年增长率一直保持为30~40%。
在这时期,PLC在处理模拟量能力、数字运算能力、人机接口能力和网络能力得到大幅度提高,可编程逻辑控制器逐渐进入过程控制领域,在某些应用上取代了在过程控制领域处于统治地位的DCS系统。
20世纪末期,可编程逻辑控制器的发展特点是更加适应于现代工业的需要。
这个时期发展了大型机和超小型机、诞生了各种各样的特殊功能单元、生产了各种人机界面单元、通信单元,使应用可编程逻辑控制器的工业控制设备的配套更加容易。
西门子S7-200 是一种小型的可编程序控制器,适用于各行各业,各种场合中的检测、监测及控制的自动化。
S7-200系列的强大功能使其无论在独立运行中,或相连成网络皆能实现复杂控制功能。
因此S7-200系列具有极高的性能/价格比。
西门子S7-200系列在集散自动化系统中充分发挥其强大功能。
使用范围可覆盖从替代继电器的简单控制到更复杂的自动化控制。
应用领域极为广泛,覆盖所有与自动检测,自动化控制有关的工业及民用领域,包括各种机床、机械、电力设施、民用设施、环境保护设备等等。
如:冲压机床,磨床,印刷机械,橡胶化工机械,中央空调,电梯控制,运动系统。
1.1.2水塔水位基本介绍
水塔水位控制系统是我国住宅小区广泛应用的供水系统,传统的控制方式存在控制精度低、能耗大的缺点。
在水资源日益匮乏的今天,节约用水、提高水资源的利用率就显得十分必要。
传统的水塔水位控制位粗放式的,基本没有水泵的合理控制,且多数为人力控制,工作强度大、危险。
所以除了浪费电能外,还造成了人员的浪费。
采用新型PLC控制水位的方式与过去的旧式控制相比在运行的经济性、可靠性、稳定性等方面有显著优势,特别是在提倡低碳的当下,有着优良的节能效果,且由于PLC强大的扩展性可以适应今后城市供水建设的发展需要。
1.2 系统描述
随着科学技术的的不断提高,社会经济的不断发展,人们对控制系统的灵敏度、节能性、易操作性等方面要求日益提高。
居民及工厂供水又是一件极为重要的工作,传统的水塔水位控制方式已经不足以满足今天的要求,所以新的方式是适应时代要求的。
以下便是PLC控制水塔水位的基本描述:
设水塔、水池初始状态都为空着的,当执行程序时,扫描到水池为液位低于水池下限液位时,电磁阀Y打开,开始往水池离境税,如果进水超过8秒,而水池液位没有超过水池下限位,说明系统出现故障,系统就会自动报警。
若8秒之后水池液位按预定的超过水池下限位,说明系统在正常的工作,此时,水池的液位已经超过了下限位了。
系统检测到此信号时,由于水塔液位低于水塔水位下限,水泵M开始工作,向水塔供水,当水池的液位超过水池上限液位时,电磁阀就关闭,但是水塔现在还没有装满,可此时水塔液位已经超过水塔下限水位,水泵继续工作,在水池抽水向水塔供水,水塔抽满时,水塔液位超过水塔上限,但刚刚给水塔供水的时候,水泵已经把水池的水抽走了,此时水塔液位已经低于水池上限,此次给水塔供水完成。
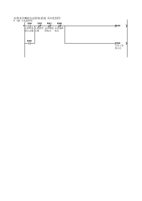
1.3 控制要求
1.3.1控制要求描述
1、保持水池的水位在S4~S3之间,当水池水位低于下限液位开关S4,此时S4为ON,电磁阀打开,开始往水池里注水,当4S以后,若水池水位没有超过水池下限液位开关S4时,则系统发出警报;若系统正常运行,此时水池下限液位开关S4为OFF,表示水位高于下限水位。
当页面高于上限水位S3时,则S3为ON,电磁阀关闭。
2、保持水塔的水位在S2~S1之间,当水塔水位低于水塔下限水位开关S2时,则水塔下限液位开关S2为ON,则驱动电机M开始工作,向水塔供水。
当S2为OFF
时,表示水塔水位高于水塔下限水位。
当水塔液面高于水塔上限水位开关S1时,则S1为ON,电机M停止抽水。
3、当水塔水位低于下限水位时,同时水池水位也低于下限水位时,电机M 不能启动。
1.3.2水塔水位示意图:
图1-1
1.3.3程序流程图
水塔水位控制系统的PLC控制流程图,根据设计要求控制流程图如下:
图1-2
2、设计方案
2.1 组态设计
2.1.1 组态画面设计(如图2-1所示)
图2-1
2.1.2 组态程序设计
1、建立新I/O设备(如图2-2~图2-7所示)
2、建立并关联变量
1)建立变量,设为I/O离散类型。
2)连接所建立设备:新建I/O设备。
3)寄存器关联PLC相应输出端口。
如:Y——Q0.0。
4)将数据类型设置为:Bit。
5)采集频率改为1。
6)将运行系统设置中“特殊“一栏中的运行系统基准频率和时间频率修改为55,以提高与PLC通讯的同步性
3、将变量与画面关联
将图画中水塔水位各个需要控制的部分与设置变量关联。
点击相应要求,表达式与相应变量关联,如:S1中表达式为:\\本站点\s1。
4、编写组态王应用程序命令语言
if(\\本站点\s4==1)
{\\本站点\水池=\\本站点\水池+3;\\本站点\水流2=-10;}
if(\\本站点\s4==0)
{\\本站点\水流2=-255;}
if(\\本站点\s3==1)
{\\本站点\水池=\\本站点\水池-3;\\本站点\水流2=-255;}
if(\\本站点\M==1)
{\\本站点\水池=\\本站点\水池-3;\\本站点\水罐=\\本站点\水罐+3;\\本站点\水流2=-255;\\本站点\水流3=-10;\\本站点\水流4=10;}
if(\\本站点\s1==1)
{\\本站点\水池=\\本站点\水池+0;\\本站点\水罐=\\本站点\水罐-6;\\本站点\水流3=-255;\\本站点\水流4=-255;\\本站点\水流5=10;}
if(\\本站点\s1==0)
{\\本站点\水流5=-255;}
if(\\本站点\M==0 && \\本站点\报警辅助==1)
{\\本站点\水池=\\本站点\水池-3;\\本站点\水罐=\\本站点\水罐-0;\\本站点\水流2=-255;\\本站点\水流3=-255;\\本站点\水流4=-255;}
5、保存程序
2.1.3 组态设计要点
表2-1
2.2 PLC设计
2.2.1硬件选择(写明选择原因)
本课题与同类相比,优越性更大,不过各有各的特点,市场上大部分是单片机做的,而本设计是用S7-300 PLC做的,是用S7-300 PLC的硬件和软件结合起来。
应用S7-200 PLC天塔之光设计的硬件电路,并利用OB1的梯形图控制程序设计。
通过控制S7-20PLC的定时继电器的功能来实现各彩灯按一定的规律点亮和熄灭。
接通延迟定时器SD的特点(如果RLO有正跳沿,则接通延迟定时器启动指令,以设定的时间值启动指令的定时器)。
这种控制电路结构简单,可靠性高,应用性强;软件程序适应范围广,对各彩灯按一定的规律点亮和熄灭的控制,只需要改变相应的定时器的时间接通即可。
进行应用软件设计时可采用模块化程序设计方法,其优点是:
水塔水位控制采用PLC比传统的采用电子线路和继电器具有可靠性高、维护方便、使用简单、通用性强等特点,PLC还可以联成网络,根据需要控制实际水塔供水控制,有效的减轻了人类的体力活动。
2.2.2 I/O分配(做出I/O分配的表格,输入输出分开)
表2-2
2.3
3. I/O接线图(画出原理图,并实际连线,要求有实物照片)1、PLC外部接线图
图2-1
2、实际连线照片
图2-2 2.3.4 PLC程序。