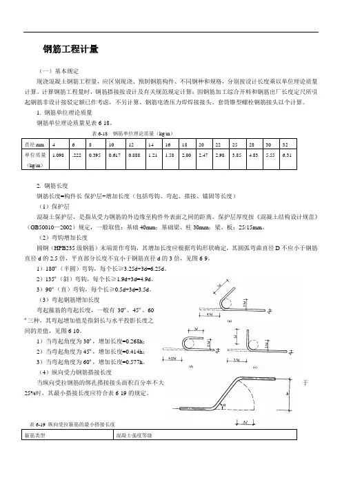
钢 筋 计 算 规 则
- 格式:doc
- 大小:48.50 KB
- 文档页数:5
钢筋工程量计算规则一、钢筋材料分类和牌号:钢筋按纵筋和箍筋分为两类。
按牌号分为HPB300、HRB335、HRB400、HRB500等。
在工程量计算中,需要根据工程的具体要求来选取合适的牌号和规格。
二、钢筋的数量计算:2.钢筋的长度按照实际长度测量,并按照计量单位进行换算,一般为米。
3.钢筋的数量计算公式为:数量=总长度/每根钢筋长度。
三、钢筋的直径:1. 钢筋直径常用的规格有6、8、10、12、14、16、18、20、22、25、28、32、36、40、50等mm。
2.钢筋直径的选择要根据工程的使用要求和结构设计要求进行确定。
四、钢筋的间距:1.钢筋的间距一般根据设计图纸和现场要求确定,可以根据工程要求进行调整。
2.钢筋间距的计算一般按照最大间距来计算。
五、钢筋的弯曲计算:1.钢筋的弯曲计算需要根据工程要求和钢筋的形状来进行计算,可以参考相关规范和标准进行计算。
2.弯曲钢筋的计算可以通过测量其曲线的曲率半径和弧长来进行。
六、钢筋的连接:1.钢筋的连接一般通过焊接、绑扎或机械连接等方式进行。
2.钢筋连接的计算需要根据连接方式和设计要求来进行计算。
七、钢筋的防锈处理:1.钢筋在施工过程中需要进行防锈处理,以防止钢筋锈蚀和破损。
2.钢筋的防锈处理可以采用涂刷防锈漆、喷涂防锈剂等方式进行。
八、钢筋的质量检验:1.钢筋的质量检验包括钢筋的尺寸、牌号、重量、长度等方面的检验。
2.钢筋的质量检验可以通过现场测量、抽样检验等方式进行。
钢筋工程量计算规则是建筑工程中不可忽视的一环。
只有正确掌握钢筋工程量计算的规则,才能保证工程的质量和安全。
因此,在进行钢筋工程量计算时,需要仔细阅读设计图纸和相关规范,并按照规范要求进行计算。
另外,还需要密切配合施工方和监理方的工作,确保钢筋的质量和数量符合设计要求。
2009年造价工程师考试:钢筋工程量计算规则(一)钢筋工程量计算规则1、钢筋工程,应区别现浇、预制构件、不同钢种和规格,分别按设计长度乘以单位重量,以吨计算。
2、计算钢筋工程量时,设计已规定钢筋塔接长度的,按规定塔接长度计算;设计未规定塔接长度的,已包括在钢筋的损耗率之内,不另计算塔接长度。
钢筋电渣压力焊接、套筒挤压等接头,以个计算。
3、先张法预应力钢筋,按构件外形尺寸计算长度,后张法预应力钢筋按设计图规定的预应力钢筋预留孔道长度,并区别不同的锚具类型,分别按下列规定计算:(1)低合金钢筋两端采用螺杆锚具时,预应力的钢筋按预留孔道长度减0.35m,螺杆另行计算。
(2)低合金钢筋一端采用徽头插片,另一端螺杆锚具时,预应力钢筋长度按预留孔道长度计算,螺杆另行计算。
(3)低合金钢筋一端采用徽头插片,另一端采用帮条锚具时,预应力钢筋增加0. 15m,两端采用帮条锚具时预应力钢筋共增加0.3m计算。
(4)低合金钢筋采用后张硅自锚时,预应力钢筋长度增加0. 35m计算。
(5)低合金钢筋或钢绞线采用JM, XM, QM型锚具孔道长度在20m以内时,预应力钢筋长度增加lm;孔道长度20m以上时预应力钢筋长度增加1.8m计算。
(6)碳素钢丝采用锥形锚具,孔道长在20m以内时,预应力钢筋长度增加lm;孔道长在20m以上时,预应力钢筋长度增加1.8m.(7)碳素钢丝两端采用镦粗头时,预应力钢丝长度增加0. 35m计算。
(二)各类钢筋计算长度的确定钢筋长度=构件图示尺寸-保护层总厚度+两端弯钩长度+(图纸注明的搭接长度、弯起钢筋斜长的增加值)式中保护层厚度、钢筋弯钩长度、钢筋搭接长度、弯起钢筋斜长的增加值以及各种类型钢筋设计长度的计算公式见以下:1、钢筋的砼保护层厚度受力钢筋的砼保护层厚度,应符合设计要求,当设计无具体要求时,不应小于受力钢筋直径。
(1)轻骨料砼的钢筋的保护层厚度应符合国家现行标准《轻骨料砼结构设计规程》。
梁钢筋工程计量规则一、楼层框架梁上部钢筋长度的算法1.楼层框架梁上部贯通筋长度的算法(1)当(hc-保护层)即直锚长度>LaE时,表明梁支座足够宽,上部纵筋可以直锚在支座里,即:上部贯通筋长度=通跨净长+左右支座锚固长度 =Ln+2max[(LaE ),(0.5hc+5d )]其中:Ln ——通跨净长;LaE ——锚固长度;hc ——柱截面沿框架方向的高度(即支座宽度);(2)当(hc-保护层)即直锚长度≤LaE时,表明梁支座不能满足直锚长度,上部纵筋必须弯锚在支座里,即:上部贯通筋长度=通跨净长+左右支座锚固长度=Ln+2max[(LaE),(0.4LaE+15d ),(支座宽-保护层+弯折15d )]2.楼层框架梁上部支座负筋长度的算法(1)左、右支座负筋的计算第一排长度=左或右支座锚固+净跨长/3第二排长度=左或右支座锚固+净跨长/4支座锚固=max[(LaE),(0.4LaE+15d),(支座宽-保护层+弯折15d)](2)中间跨支座负筋的计算第一排中间支座负筋长度=hc+Ln/3×2第二排中间支座负筋长度=hc+Ln/4×2注:Ln取左右两跨净跨长较大值3.楼层框架梁上部架立筋长度的算法架立筋长度=净跨-两边负筋净长+150×2二、楼层框架梁侧面纵筋长度的算法1.构造纵筋当梁净高hw≥450时,在梁的两个侧面沿高度配置纵向构造钢筋,纵向构造钢筋间距a≤200;当梁宽≤350时,拉筋直径为6mm;梁宽>350时,拉筋直径为8mm,拉筋间距为非加密区间距的两倍,当设有多排拉筋时,上下两排拉筋竖向错开设置。
梁侧面构造纵筋=Ln+15d×2(Ln为梁通跨净长)2.抗扭纵筋(1)当端支座足够大时,直锚在端支座里抗扭纵筋长度=通跨净长Ln+左右锚入支座内长度2max[(LaE),(0.5hc+5d)](2)当支座不能满足直锚长度时,必须弯锚抗扭纵筋长度=通跨净长Ln+左右锚入支座内长度2max[(LaE),(0.4LaE+15d),(支座宽-保护层+弯折15d)]3.拉筋长度的计算有侧面纵筋一定有拉筋(1)当拉筋同时勾住主筋和箍筋时:拉筋长度=梁宽b-保护层×2+4d+1.9d×2+max(10d,75mm)×2(2)当拉筋只勾住主筋时:拉筋长度=梁宽b-保护层×2+2d+1.9d×2+max(10d,75mm)×24.拉筋根数的计算拉筋间距为非加密区间距的2倍,拉筋根数=(Ln-50×2)/非加密区间距的2倍+1三、楼层框架梁下部纵筋长度的算法1.下部贯通筋长度的计算(1)当端支座足够大时,直锚在端支座里下部贯通筋长度=通跨净长Ln+左右锚入支座内长度2max[(LaE),(0.5hc+5d)](2)当支座不能满足直锚长度时,必须弯锚下部贯通筋长度=通跨净长Ln+左右锚入支座内长度2max[(LaE),(0.4LaE+15d),(支座宽-保护层+弯折15d)]2.下部非贯通筋长度的计算(1)当端支座足够大时,直锚在端支座里下部非贯通筋长度=净跨长+左右锚入支座内长度2max[(LaE),(0.5hc+5d)](2)当支座不能满足直锚长度时,必须弯锚首尾跨下部非贯通筋长度=净跨长+锚入端支座内长度max[(LaE),(0.4LaE+15d),(支座宽-保护层+弯折15d)]+中间支座max[(LaE),(0.5hc+5d)]中间跨下部非贯通筋长度=净跨长+左右锚入支座内长度2max[(LaE),(0.5hc+5d)]四、楼层框架梁箍筋的算法箍筋长度=2(梁宽b-保护层×2+2d)+2(梁高h-保护层×2+2d)+1.9d×2+max(10d,75mm)×2箍筋根数:(1)一级抗震等级楼层框架梁箍筋根数=加密区根数×2+非加密区根数加密区根数:[max(梁高hb×2,500)-50]/加密间距+1非加密区根数: (净跨长-加密区长×2)/非加密间距-1(2)二至四级抗震等级楼层框架梁箍筋根数=加密区根数×2+非加密区根数加密区根数: [max(梁高hb×1.5,500)-50]/加密间距+1非加密区根数: (净跨长-加密区长×2)/非加密间距-1五、吊筋的算法吊筋长度=次梁宽b+2×50+2×(梁高-2×保护层)/sin45°(或60°)+2×20d六、附加箍筋的算法附加箍筋长度算法和箍筋计算方法一样附加箍筋间距为8d且≤100,附加根数按图纸标注计算七、屋面框架梁钢筋的算法屋面框架梁上部贯通筋长度=通跨净长+(左端支座宽-保护层)+(右端支座宽-保护层)+弯折(梁高-保护层)×2屋面框架梁上部负筋长度=净跨/3(4)+(左端支座宽-保护层)+弯折(梁高-保护层)例题:解:KZ1:450mm×450mm;抗震等级二级;C30混凝土;c=25mm;LaE=34d hc-c=450-25=425mm<LaE=34d=850mm,钢筋需要弯锚上部贯通筋:(10800-450)+2×850=12050mm N=2支座负筋:第一排左 (6600-450)/3+850=2900mm N=2中 (6600-450)/3×2+450=4550mm N=2右 (4200-450)/3+850=2100mm N=2第二排左 (6600-450)/4+850=2387.5mm N=2中 (6600-450)/4×2+450=3525mm N=2右 (4200-450)/4+850=1787.5mm N=2架立筋:第一跨 (6600-450)-(6600-450)/3×2+150×2=2350mm N=2第二跨(4200-450)-(6600-450)/3-(4200-450)/3+150×2=750mm N=2下部非贯通筋:第一跨(6600-450)+2×850=7850mm N=4第二跨(4200-450)+2×850=5450mm N=3构造筋:(10800-450)+15×2×12=10710mm N=4拉筋(只勾住主筋,直径取6mm):(300-2×25+2×6)+1.9×2×6+2×75=434.8mm根数:(6600-450-2×50)/(2×200)+1+(4200-450-2×50)/(2×200)+1=28根箍筋:2×(300-2×25+2×10)+2×(700-2×25+2×10)+1.9×2×10+2×100=2118mm 根数:第一跨加密区 (1.5×700-50)/100+1=11根 2×11=22根非加密区(6600-450-2×1.5×700)/200-1=20根第二跨加密区 (1.5×700-50)/100+1=11根 2×11=22根非加密区(4200-450-2×1.5×700)/200-1=8根箍筋总根数=22+20+22+8=72根柱钢筋工程计量规则一、基础层插筋计算(1)柱直接生根于基础板;(2)柱生根于基础梁上基础插筋长度=弯折长度a+竖直长度h1+非连接区hn/3+搭接长度LIEa的取值:h-c≥0.5LaE,max(12d,150)h-c≥0.6LaE,max(10d,150)h-c≥0.7LaE,max(8d,150)h-c≥0.8LaE,max(6d,150)h:基础厚度;h-c=h1二、柱纵筋长度的算法1.-1层柱子纵筋长度纵筋长度=-1层层高-(-1层非连接区hn/3)+1层非连接区hn/3+搭接长度LlE如果出现多层地下室,只有基础层顶面和首层顶面是hn/3,净高其余均为max(1/6净高、500、柱截面长边)2.1层柱子纵筋长度纵筋长度=1层层高-1层非连接区hn/3+max(hn/6,hc,500)+搭接长度LlE3.中间层柱子纵筋长度纵筋长度=中间层层高-当前层非连接区+(当前层+1)非连接区+搭接长度LlE非连接区=max(hn/6,hc,500)4.顶层柱纵筋计算(1)顶层中柱纵筋计算中柱纵筋长度=顶层层高-顶层非连接区-梁高+(梁高-保护层)+12d非连接区=max(hn/6,hc,500)注:当直锚长度<laE,且顶层为现浇混凝土板,其强度等级≥C20,板厚≥80mm时(2)顶层边柱纵筋计算情况A:当顶层梁宽小于柱宽,又没有现浇板时,边柱外侧纵筋只有65%锚入梁内;顶层边柱纵筋长度:1号纵筋长度=顶层层高-顶层非连接区长度-梁高+1.5LaE(65%)2号纵筋长度=顶层层高-顶层非连接区长度-保护层+(与弯折平行的柱宽-2×保护层)+8d(35%)3号纵筋长度=顶层层高-顶层非连接区长度-保护层+(与弯折平行的柱宽-2×保护层)4号纵筋长度=顶层层高-顶层非连接区长度-保护层+12d5号纵筋长度=顶层层高-顶层非连接区长度-梁高+ LaE情况B:当顶板为现浇板,混凝土强度等级≥C20、板厚≥80mm时,边柱外侧纵筋100%锚入梁及板内;顶层边柱纵筋长度:只有1号钢筋和4号钢筋情况C:当柱外侧纵向钢筋配率大于1.2%时,边柱外侧纵筋分两批锚入梁内,50%根数锚固长度为1.5LaE,50%根数锚固长度为1.5LaE+20d;顶层边柱纵筋长度:边柱外侧纵筋分两批锚入梁内,50%根数锚固长度为1.5LaE,50%根数锚固长度为1.5LaE+20d1号纵筋长度(外侧根数一半)=顶层层高-顶层非连接区长度-梁高+1.5LaE1号纵筋长度(外侧根数一半)=顶层层高-顶层非连接区长度-梁高+1.5LaE+20d(3)顶层角柱纵筋计算顶层角柱两面有梁,其纵向钢筋的计算方法和边柱一样,只是外侧是两个面,外侧纵筋总跟数为两个外侧总根数之和计算5.柱变截面位置纵向钢筋构造(1)柱纵向钢筋连接接头相互错开,在同一截面内的钢筋接头面积百分率:对于绑扎搭接和机械连接不宜大于50%,对于焊接连接不应大于50%(2)框架柱纵向钢筋直径d>28时,不宜采用绑扎搭接接头三、柱箍筋根数的算法1.基础箍筋根数计算根数=(基础高度-基础保护层)/间距-12.-1层箍筋根数计算根部根数=[hn(-1层)/3-50]/加密间距+1梁下根数=[hn(1层)/3]/加密间距+1梁高范围根数=梁高/加密间距非加密区根数=非加密区长度/非加密间距-13.1层箍筋根数计算根部根数=[hn(1层)/3]/加密间距+1梁下根数=max[hn(2层)/6,hc,500]/加密间距+1梁高范围根数=梁高/加密间距非加密区根数=非加密区长度/非加密间距-14.顶层箍筋根数计算(假如房屋只有两层)根部根数=max[hn(2层)/6,hc,500]/加密间距+1梁下根数=max[hn(2层)/6,hc,500]/加密间距+1梁高范围根数=梁高/加密间距非加密区根数=非加密区长度/非加密间距-1例题:楼层框架梁均为300mm×650mm,混凝土等级C30,板厚100mm,抗震等级二级,基础为800mm的筏板基础,计算:柱的钢筋工程量,钢筋采用电渣压力焊连接。
钢筋计算规则建筑工程钢筋量的计算,首先要熟悉施工图纸,其次要了解国家现行的规范与标准图集,对钢筋工程施工顺序与施工方法一定的了解,这样才能准确计算出工程量。
一般框架梁钢筋的计算的规则1、上部通长筋的计算通长钢筋伸入支座应不小于Lae(受拉钢筋抗震锚固长度,详见03G101-1第34页),平直端长度自支座外边缘扣除一个保护层(25mm),并扣除一根框架柱钢筋直径(一般取25mm);弯钩长度应不小于15d,当不满足锚固长度时可延长,见下式:梁的外包尺寸-(25+25)*2当框架梁跨度过大或为连续梁时,通长筋在跨中1/3处连接,并相互错开,连接方式具体要求如下:帮扎接头:连接区段长度:1.3l1e;机械连接:连接区段为35d;焊接接头:连接区段为35d且≥500mm;同一区段钢筋连接要求详见06G101-6第41页。
当受拉钢筋为三级钢时不宜采用焊接,采用搭接或机械连接均可;当受拉钢筋直径大于28时,宜采用机械连接或等强对接焊接,(闪光对接焊)。
受拉钢筋搭接长度与结构的抗震等级、砼的强度以及搭接接头的面积百分率有关,具体见03G101-1第34页;如是在做钢筋的预决算,不计算钢筋的搭接长度,只计算钢筋两端的锚固长度,钢筋的搭接计算在钢筋用量的损耗当中。
在安徽省2000年综合定额对钢筋用量调整,其中对于非预应力钢筋损耗率为2.5%,先张法预应力钢筋为5%,后张法预应力钢筋为13%。
当上部既有通长钢筋又有架立钢筋时,其架立筋的下料长度一般为:ln/3+150*2架立筋与支座负筋的搭接长度为150mm,钢筋的计算要求详见03G101-1第54页。
2、上部支座负筋及二排负筋的计算一排支座负筋延伸到净跨的1/3处断开,二排负筋延伸到净跨的1/4处断开,锚固长度的计算同通长筋;当在中间支座相邻两跨不相等时,延伸到短跨的长度应与长跨相等,即为2/3的净长跨长度加支座的宽度,当图纸设计有三排钢筋时,三排负筋深入梁内的长度为净跨的1/5,锚固长度的计算规则都是一样;以上钢筋的构造要求在03G101-1第54页都有具体要求。
钢筋算量基本理论一、钢筋工程量计算步骤(1)确定构件砼的强度等级和抗震级别;(2)确定钢筋保护层的厚度;(3)计算钢筋的锚固长度La,抗震锚固长度Lae,钢筋的搭接长度Ll,抗震搭接长度Lle;(4)计算钢筋的下料长度和重量(5)按不同直径和钢种分别汇总现浇构件钢筋重量(6)计算或查用标准图集确定预制构件钢筋重量;(7)按不同直径和钢种分别汇总预制构件钢筋重量二、钢筋工程量基本计算规则及公式(1)计算规则:钢筋工程量应区分不同钢筋类别、钢种和直径分别以吨(t)计算其重量。
(2)计算公式:钢筋工程量=钢筋下料长度(m)×相应钢筋每米重量(kg/m)式中:钢筋下料长度(m) =构件图示尺寸-砼保护层厚度+钢筋弯钩增加长度+弯起钢筋弯起部分的增加长度-量度差(钢筋弯曲调整值)+图中已经注明的搭接长度钢筋长度=净长+节点锚固+搭接+弯钩(一级抗震)(3)计算钢筋工程量时,设计已规定钢筋搭接长度的,按规定搭接长度计算;自然接头损耗及下料损耗已包括在钢筋的损耗率之内,不得另计。
钢筋的电渣压力焊、套筒挤压等接头,以"个"计算。
三、梁的钢筋计算规则及公式1、单跨梁钢筋的计算公式:直钢筋净长=L-2C;弯起钢筋净长=L-2C+2×0.414(0.268或0.577)×弯起高度;弯起钢筋两端带直钩净长=L-2C+2×0.414(0.268或0.577)×弯起高度+2×(梁高-保护层厚度×2);2、多跨梁钢筋的计算公式(1)首跨钢筋的计算:上部贯通筋长度=通跨净跨长+首尾端支座锚固值端支座负筋长度=设计构造长度+端支座锚固值;下部钢筋长度=净跨长+左右支座锚固值(2)中间跨钢筋的计算:中间支座负筋长度=两边跨设计构造长度+中间支座值;(3)箍筋:箍筋长度=(梁宽-2×保护层+2 d)×2+(梁高-2×保护层+2 d)×2+14 d或24 d 箍筋根数=(梁净长-100mm)/设计间距+1,加密区另计。
梁的钢筋计算规则及公式
1、单跨梁钢筋的计算公式
直钢筋净长=L-2C;
弯起钢筋净长=L-2C+2×0.414(0.268或0.577)×弯起高度;
弯起钢筋两端带直钩净长=L-2C+2×0.414(0.268或0.577)×弯起高度+2×(梁高-保护层厚度×2)
2、多跨梁钢筋的计算公式
(1)、首跨钢筋的计算:上部贯通筋长度=通跨净跨长+首尾端支座锚固值
端支座负筋长度=设计构造长度+端支座锚固值;下部钢筋长度=净跨长+左右支座锚固值
(2)、中间跨钢筋的计算:中间支座负筋长度=两边跨设计构造长度+中间支座值;
(3)、箍筋:箍筋长度=(梁宽-2×保护层+2 d)×2+(梁高-2×保护层+2 d)×2+14 d或24 d
箍筋根数=(梁净长-100MM)/设计间距+1,加密区另计。
(4)、腰筋、拉筋、吊筋应按构造要求计算其长度。
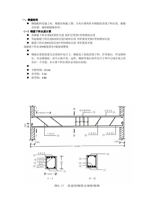
一、钢筋配料⏹钢筋配料是施工时,根据结构施工图,分布计算构件各钢筋的直线下料长度、根数及质量,编制钢筋配料单。
(一)钢筋下料长度计算⏹直钢筋下料长度=直构件长度-保护层厚度+弯钩增加长度⏹弯起钢筋下料长度=直段长度+斜段长度-弯折量度差值+弯钩增加长度⏹箍筋下料长度=直段长度+弯钩增加长度-弯折量度差值或箍筋下料长度=箍筋周长+箍筋调整值⏹⏹钢筋长度的度量方法系指外包尺寸,钢筋加工前按直线下料,经弯曲后,外边缘伸长,内边缘缩短,而中心线不变。
这样,钢筋弯曲后的外包尺寸和中心线长度之间存在一个差值,在计算下料长度时必须加以扣除。
⏹⏹半圆弯钩:6.25d⏹直弯钩:3.5d⏹斜弯钩:4.9d2.计算钢筋下料长度①号钢筋下料长度(6240+2×200-2×25)-2×2×25+2×6.25×25=6802(mm) ②号钢筋下料长度6240-2×25+2×6.25×12=6340(mm)③号弯起钢筋下料长度上直段钢筋长度240+50+500-25=765(mm)斜段钢筋长度(500-2×25)×1.414=636(mm)中间直段长度6240-2×(240+50+500+450)=3760(mm) 下料长度(765+636)×2+3760-4×0.5×25+2×6.25×25=6824(mm)④号钢筋下料长度计算为6824mm。
⑤号箍筋下料长度宽度200-2×25+2×6=162(mm)高度500-2×25+2×6=462(mm)Φ6:91.78Kg; Φ12:112.60kg;。
钢筋工程量计算规则(一)钢筋工程量计算规则1、钢筋工程,应区别现浇、预制构件、不同钢种和规格,分别按设计长度乘以单位重量,以吨计算。
2、计算钢筋工程量时,设计已规定钢筋塔接长度的,按规定塔接长度计算;设计未规定塔接长度的,已包括在钢筋的损耗率之内,不另计算塔接长度。
钢筋电渣压力焊接、套筒挤压等接头,以个计算。
3、先张法预应力钢筋,按构件外形尺寸计算长度,后张法预应力钢筋按设计图规定的预应力钢筋预留孔道长度,并区别不同的锚具类型,分别按下列规定计算:(1)低合金钢筋两端采用螺杆锚具时,预应力的钢筋按预留孔道长度减0.35m,螺杆另行计算。
(2)低合金钢筋一端采用徽头插片,另一端螺杆锚具时,预应力钢筋长度按预留孔道长度计算,螺杆另行计算。
(3)低合金钢筋一端采用徽头插片,另一端采用帮条锚具时,预应力钢筋增加0. 15m,两端采用帮条锚具时预应力钢筋共增加0。
3m计算。
(4)低合金钢筋采用后张硅自锚时,预应力钢筋长度增加0. 35m计算。
(5)低合金钢筋或钢绞线采用JM, XM, QM型锚具孔道长度在20m以内时,预应力钢筋长度增加lm;孔道长度20m以上时预应力钢筋长度增加1.8m计算。
(6)碳素钢丝采用锥形锚具,孔道长在20m以内时,预应力钢筋长度增加lm;孔道长在2 0m以上时,预应力钢筋长度增加1.8m.(7)碳素钢丝两端采用镦粗头时,预应力钢丝长度增加0。
35m计算。
(二)各类钢筋计算长度的确定钢筋长度=构件图示尺寸-保护层总厚度+两端弯钩长度+(图纸注明的搭接长度、弯起钢筋斜长的增加值)式中保护层厚度、钢筋弯钩长度、钢筋搭接长度、弯起钢筋斜长的增加值以及各种类型钢筋设计长度的计算公式见以下:1、钢筋的砼保护层厚度受力钢筋的砼保护层厚度,应符合设计要求,当设计无具体要求时,不应小于受力钢筋直径,并应符合下表的要求。
(2)处于室内正常环境由工厂生产的预制构件,当砼强度等级不低于C20且施工质量有可靠保证时,其保护层厚度可按表中规定减少5mm,但预制构件中的预应力钢筋的保护层厚度不应小于15mm;处于露天或室内高湿度环境的预制构件,当表面另作水泥砂浆抹面且有质量可靠保证措施时其保护层厚度可按表中室内正常环境中的构件的保护层厚度数值采用。
钢筋结算手册目录一、钢筋结算前期准备 (4)二、钢筋结算过程资料的收集 (4)三、钢筋算量软件计算设置 (8)四、钢筋算量软件建模输入 (8)五、算量应特别注意的地方 (11)六、对量 (12)前言为统一规划钢筋结算,做到经济适用,促进结算工作的顺利进行,特制定本规则,总结了以前结算中遇到的问题及总结的经验教训,结合分公司钢筋精算中心的工作使命,特制本手册。
钢筋结算手册编制的主要依据:《建设工程工程量清单计价规范》 GB500500-2013《混凝土结构施工图平法整体表示方法制图规则和构造详图》(现浇混凝土框架、剪力墙、梁、板)(16G101-1)(现浇混凝土板式楼梯)(16G101-2)(独立基础、条形基础、筏形基础、桩基础)(16G101-3)《混凝土结构钢筋排布规则与构造详图》(现浇混凝土框架、剪力墙、梁、板)(12G901-1)(现浇混凝土板式楼梯)(12G901-2)(独立基础、条形基础、筏形基础、桩基础)(12G901-3)《钢筋机械连接技术规程》 GBJ107-2016《混凝土结构工程施工规范》 GB50666-2011《混凝土结构工程施工质量验收规范》 GB50204-2015《混凝土结构设计规范》 GB50010-2010本手册仅用于钢筋精算中心对钢筋结算管理工作的指导,难免存在疏漏欠妥之处,在使用过程中请采纳手册内容,并殷切希望和欢迎提出宝贵意见。
一、钢筋结算前期准备1、熟悉总包合同、定额计算规则、图纸会审、设计变更、施工方案、技术交底。
2、熟悉图纸,明确嵌固部位、设计抗震等级、各部位混凝土强度、环境类别及保护层厚度、特殊节点做法、钢筋连接方式,钢筋接头面积百分率。
3、熟悉现场,施工工艺,流水段划分。
4、熟悉钢筋算量软件,软件设置及节点设置。
二、钢筋结算过程资料的收集结算过程资料是我们结算过程需要提供的影像资料证据,一是合同要求必须提供的资料证据,二是避免在结算中可能出现的争议需要提供的资料支撑,下方列表主要列举了图纸未明确说明做法部位需要收集的资料,图纸有明确要求的只需留存按图施工照片及隐蔽资料即可。
钢筋的比重计算公式就是:D*D*0.00617(D为钢筋直径)比如6厘的钢筋就是:6*6*0.00617=0.222KG每米10厘的钢筋每米就是:10*10*0.00617=0.617kg每米钢筋理重量计算公式2008-03-06 14:18一、简单说明1、每米钢筋的重量(圆钢)=2×3.14×r×1×7.85(7.850是钢的密度) 。
2、每米钢筋的重量(圆钢)=直径的平方×0.00617×1m 。
0.00617是φ10的钢筋理论重量,直径12及以下的保留三位小数;直径12以上的保留两位小数;保留时候6舍7入!二、计算表格钢筋容重kg/m 外径mmφ6 0.222φ8 0.395φ10 0.617 11.3φ12 0.888 13.5Φ16 1.580 18Φ20 2.466 22Φ22 2.98 24Φ25 3.85 27Φ28 4.833 30.5三、例子每米计算公式L乘以0.222除以36乘以D的平方等于N千克例:直径28的钢筋,长500米,求多少吨?500*0.222/36*28*28=2417.33kg就是2.42吨钢筋直径自相乘单位厘米要记清再乘零点六一七就是钢筋每米重1、螺旋箍筋计算方法:在圆柱形构件(如图形柱、管柱、灌注桩等)中,螺旋箍筋沿主筋圆周表面缠绕,其每米钢筋骨架长的螺旋箍筋长度,可按下式计算:l=2000лa/p×[1-e^2/4-3/64(e^2)^2 –5/256(e^2)^3]其中a=√(p^2+4D^2)/4e2=(4a^2-D^2)/( 4a^2)式中l——每1m钢筋骨架长的螺旋箍筋长度(㎜);p——螺距(㎜);л——圆周率,取3.1416;D——螺旋线的缠绕直径;采用箍筋的中心距,即主筋外皮距离加上一个箍筋直径(㎜)。
公式中括号内最后一项5/256(e^2)^3数值很小,一般在计算时略去。
首先要说明的一点是,我们平时所说的钢筋预算和实际的钢筋下料是不一样的。
我们所说的钢筋预算就是按照建筑的规范或标准平法图集的要求计算出来的钢筋。
而下料还要考虑很多施工现场的要求,例如我们的钢筋断点的位置在实际的施工中是有规定的,必须断在跨中1/3的范围内,构件交错的地方要注意钢筋的避让等。
在我们拿到结构图纸后,首先分析此建筑是什么结构形式、大致有哪些构件、基础是什么类型。
然后我们一般剪力墙按照从下向上的顺序,也就是施工的先后顺序进行计算。
(一)基础:这里介绍几中常见的基础。
1、独立基础:框架结构中用的较多,在计算钢筋中要注意的就是底板受力钢筋的长度,可取边长或宽度的0.9倍,并交错布置;2、筏板基础:一般用于剪力墙结构,我们可以仔细学习一下04G101-3中的内容,例如对于下沉子筏板中的钢筋中的钢筋应伸出板边LA(最小锚固长度)等方面一些具体要求。
3、条形基础:一般用于砖混结构。
(二)上部构件:1、柱:柱钢筋比较简单,只有纵筋和箍筋。
纵筋要注意底层的基础插筋问题,顶层柱纵筋对于边柱、中柱、角柱的锚固长度的区别可以参见(03G101);箍筋要注意加密区长度的取值问题:底层柱根加密>=Hn/3,柱上部加密长度>=Hn/6、>=500取大值,还要注意柱搭接范围内应该加密。
(其中,Hn是指所在楼层的柱净高)2、梁:梁钢筋应按照03G101进行计算。
梁有上部通长筋、支座负筋(一排1/3Ln,二排1/4Ln,Ln是左右两跨较大值),底筋一般按照每跨分别向两边支座伸入锚固长度的情况进行计算的。
3、剪力墙:剪力墙中的构件一定要计算完全。
其中包括:墙体分布钢筋(有水平钢筋和纵向钢筋,要注意墙和墙交接部位的水平钢筋的锚固、各种转角锚固要求是不一样的)、翼柱的钢筋(墙和墙交接的部位形成的柱子)、剪力墙的连梁钢筋(门窗洞口上面形成的连梁)、暗柱钢筋(门窗洞口两侧形成的暗柱)、端柱钢筋(剪力墙端头的柱子)、暗梁钢筋(由于构造的要求在墙体中所配置的梁)。
钢筋结算审核细则钢筋结算审核,首先需要明确算量文件的计算范围,检查套价文件的钢筋总工程量与算量软件的汇总量是否相同,再逐项检查定额子目对应规格钢筋量的计算结果。
如果有使用EXCEL表格计算(比如细石砼钢筋网)、或使用另外的算量文件(比如二次结构)计算的工程量,也需要了解各自计取范围,避免重复。
对于综合体大型商业体,要注意界面划分,塔楼与地库工程量是否重复,特别注意单构件里面钢筋。
广联达钢筋软件计算的工程量,可以依照工程设置、绘图输入、单构件三个模块的顺序进行审核。
具体如下:一、工程设置(包括六大项):1、工程信息:根据结构施工图设计总说明,选择平法计算规则(03G 或11G);汇总方式为“按中轴线计算钢筋(考虑弯曲调整值)”,原因是钢筋弯折加工时,外皮尺寸会被拉长,按钢筋中轴线计算符合实际施工用量,一般结算都按中心线长度计算。
2、比重设置:如图纸设计为A6,需提供设计变更为A6.5,才可以调整比重。
如果工程中使用三级钢C6,需注意C6无需调整比重,市场有相应规格钢材。
3、弯钩设置:箍筋弯钩平直段勾选“按照图元抗震考虑”:抗震箍筋弯钩是11.9d,非抗震的是6.9d。
抗震工程中,某些构件仍然是按非抗震设计的。
如果选择“图元抗震考虑”则非框架梁、基础梁等非抗震构件的箍筋弯钩长度按非抗震考虑;如果选择“工程抗震考虑”,非框架梁、基础梁等非抗震构件的箍筋弯钩长度仍按抗震考虑计算有误。
选择图元抗震4、损耗设置:不计算损耗5、计算设置:共297项。
根据合同附件说明、施工图设计说明、平法规则,并结合现场施工情况进行设置。
一般来说,需要修改软件默认值的有以下设置项:(1)按设计间距排布的各类构件钢筋(箍筋、拉筋、墙钢筋、梁腰筋等)根数计算方式:按“四舍五入+1”规则。
钢筋施工对精度要求较低,即使施工验收规范也允许钢筋间距有±2CM的偏移。
按间距排布的钢筋是施工单位节省钢材的关键部位之一,比较而言,“四舍五入+1”计算量能满足施工规范要求,比“向上取整+1”更接近施工实际,是地产公司使用较普遍的设置。
钢筋计算的规则钢筋计算的规则如下:编制预算时,钢筋工程量可暂按构件体积(或水平投影面积、外围面积、延长米)×钢筋含量;结算时按设计要求,无设计按下列规则计算。
(一)一般规则:1、钢筋工程应区别现浇构件、预制构件、加工厂预制构件、预应力构件、点焊网片等及不同规格分别按设计展开长度(展开长度、保护层、搭接长度应符合规范规定)乘理论重量以吨计算。
2、计算钢筋工程量时,搭接长度按规范规定计算。
当梁、板(包括整板基础)Φ8以上的通筋未设计搭接位置时,预算书暂按8m一个双面电焊接头考虑,结算时应按钢筋实际定尺长度调整搭接个数,搭接方式按已审定的施工组织设计确定。
3、先张法预应力构件中的预应力和非预应力钢筋工程量应合并按设计长度计算,按预应力钢筋定额(梁、大型屋面板、F板执行Φ5外的定额,其余均执行Φ5内定额)执行。
后张法预应力钢筋与非预应力钢筋分别计算,预应力钢筋按设计图规定的预应力钢筋预留孔道长度,区别不同锚具类型分别按下列规定计算:(1)低合金钢筋两端采用螺杆锚具时,预应力钢筋按预留孔道长度减350mm,螺杆另行计算。
(2)低合金钢筋一端采用墩头插片,另一端螺杆锚具时,预应力钢筋长度按预留孔道长度计算。
(3)低合金钢筋一端采用墩头插片,另一端采用帮条锚具时,预应力钢筋增加150mm,两端均用帮条锚具时,预应力钢筋共增加300mm计算。
(4)低合金钢筋采用后张砼自锚时,预应力钢筋长度增加350mm计算。
4、电渣压力焊、锥螺纹、套管挤压等接头以“个”计算。
标底、标书中,底板、梁暂按8m长一个接头的50%计算;柱按自然层每根钢筋1个接头计算。
结算时应按钢筋实际接头个数计算。
5、桩顶部破碎砼后主筋与底板钢筋焊接分别分为灌注桩、方桩(离心管桩按方桩)以桩的根数计算。
每根桩端焊接钢筋根数不调整。
6、在加工厂制作的铁件(包括半成品铁件)、已弯曲成型钢筋的场外运输按吨计算。
各种砌体内的钢筋加固分绑扎、不绑扎应分别按吨计算。
钢筋工程量计算规则有哪些
钢筋是建筑结构中重要的一部分,正确计算钢筋的工程量对工程质量和经济影响都很大。
钢筋工程量的计算主要有以下几点规则:
1. 根据施工图进行断面测算。
根据设计图的不同分区,计算每段断面所需要的钢量。
需要注意钢筋是否需要折旧或增加。
2. 计算弯曲钢筋和联接钢筋。
计算弯头和交叉部位需要额外增加的钢量。
3. 考虑节点部位和弯曲部位的钢筋加粗。
部分节点和弯曲位置需要根据实际情况适当增加钢筋直径,增加强度。
4. 计算每类钢筋材料的直角长度。
计算筋间距、弯曲半径等参数,确定钢筋总长。
5. 考虑工艺亏损率。
实际施工中会有一定的钢筋损耗,通常考虑5%左右的亏损。
6. 按标准计算配钢笔数量。
计入配钢笔的数量可以保证施工质量。
7. 核对施工图和参数,三次复核计算结果。
多次核对可以避免计算错误。
以上就是钢筋工程量计算的主要规则,正确应用这些规则可以保证计算的准确性。
梁钢筋计算规则一、框架梁上部钢筋计算钢筋部位及其名称计算公式说明附图上部通长筋长度=各跨长之和L -左支座内侧a2-右支座内侧a3+左锚固+右锚固03G101-1P54抗震楼层框架梁KL纵向钢筋构造GB50010-2002P186图10.4.1梁上部纵向钢筋在框架梁中间层端节点内的锚固注:如果存在搭接情况,还需要把搭接长度加进去图49左、右支座锚固长度的取值判断:当hc-保护层(直锚长度)>LaE时,取Max(LaE ,0.5hc+5d)当hc-保护层(直锚长度) ≤LaE时,必须弯锚,算法:min(hc-保护层, 0.4LaE)+15d钢筋部位及其名称计算公式说明附图端支座负筋第一排钢筋长度=本跨净跨长/3+锚固;03G101-1P54抗震楼层框架梁KL纵向钢筋构造注:1、锚固同梁上部贯通筋端锚固;2、当梁的支座负筋有三排时,第三排钢筋的长度计算同第二排。
图51 第二排钢筋长度=本跨净跨长/4+锚固;中间支座负筋第一排钢筋长度=2*Ln/3+支座宽度;第二排钢筋长度=2*Ln/4+支座宽度;03G101-1P54抗震楼层框架梁KL纵向钢筋构造注:Ln为相邻梁跨大跨的净跨长架立筋长度=本跨净跨长-左侧负筋伸入长度-右侧负筋伸入长度+2*搭接注:当梁上部既有贯通筋又有架立筋时,搭接长度为150mm二、框架梁下部钢筋计算钢筋部位及其名称计算公式说明附图下部通长筋长度=各跨长之和-左支座内侧a2-右支座内侧a3+左锚固+右锚固注:1、端支座锚固长度取值同框架梁上部钢筋取值;2、如果存在搭接情况,还需要把搭接长度加进去。
图51下部非通长钢筋长度=净跨长度+左锚固+右锚固03G101-1P54抗震楼层框架梁KL纵向钢筋构造注:端部取值同框架梁上部钢筋取值;中间支座锚固长度为:Max {LaE,0.5Hc+5d }下部不伸入支座筋净跨长度-2*0.1Ln(Ln为本跨净跨长度) 03G101-1P60不伸入支座的梁下部纵向钢筋断点位置图52(图52)三、梁附加钢筋钢筋部位及其名称计算公式说明附图侧面纵向构造钢筋当hw≥450mm时,需要在梁的两个侧面沿高度配置纵向构造钢筋,间距a≤200;长度=净跨长度+2*15d03G101-1P24、62梁侧面纵向构造筋和拉筋,分为一级抗震和二至四级抗震等级注:1、hw指梁的腹板高度;2、梁侧面构造纵筋和受扭纵筋的搭接与锚固长度取值可参见(03G101-1P24)第4.2.3条第五款的注1与注2,即:梁侧面构造钢筋其搭接与锚固长度可取为15d,梁侧面受扭纵向钢筋其搭接长度为L l或L lE,其锚固长度与方式同框架梁下部纵筋。
钢筋计算规则建筑工程钢筋量的计算,首先要熟悉施工图纸,其次要了解国家现行的规范与标准图集,对钢筋工程施工顺序与施工方法一定的了解,这样才能准确计算出工程量。
一般框架梁钢筋的计算的规则1、上部通长筋的计算通长钢筋伸入支座应不小于Lae(受拉钢筋抗震锚固长度,详见03G101-1第34页),平直端长度自支座外边缘扣除一个保护层(25mm),并扣除一根框架柱钢筋直径(一般取25mm);弯钩长度应不小于15d,当不满足锚固长度时可延长,见下式:梁的外包尺寸-(25+25)*2当框架梁跨度过大或为连续梁时,通长筋在跨中1/3处连接,并相互错开,连接方式具体要求如下:帮扎接头:连接区段长度:1.3l1e;机械连接:连接区段为35d;焊接接头:连接区段为35d且≥500mm;同一区段钢筋连接要求详见06G101-6第41页。
当受拉钢筋为三级钢时不宜采用焊接,采用搭接或机械连接均可;当受拉钢筋直径大于28时,宜采用机械连接或等强对接焊接,(闪光对接焊)。
受拉钢筋搭接长度与结构的抗震等级、砼的强度以及搭接接头的面积百分率有关,具体见03G101-1第34页;如是在做钢筋的预决算,不计算钢筋的搭接长度,只计算钢筋两端的锚固长度,钢筋的搭接计算在钢筋用量的损耗当中。
在安徽省2000年综合定额对钢筋用量调整,其中对于非预应力钢筋损耗率为2.5%,先张法预应力钢筋为5%,后张法预应力钢筋为13%。
当上部既有通长钢筋又有架立钢筋时,其架立筋的下料长度一般为:ln/3+150*2架立筋与支座负筋的搭接长度为150mm,钢筋的计算要求详见03G101-1第54页。
2、上部支座负筋及二排负筋的计算一排支座负筋延伸到净跨的1/3处断开,二排负筋延伸到净跨的1/4处断开,锚固长度的计算同通长筋;当在中间支座相邻两跨不相等时,延伸到短跨的长度应与长跨相等,即为2/3的净长跨长度加支座的宽度,当图纸设计有三排钢筋时,三排负筋深入梁内的长度为净跨的1/5,锚固长度的计算规则都是一样;以上钢筋的构造要求在03G101-1第54页都有具体要求。
3、框架梁下部受力钢筋的计算框架梁下部钢筋锚固长度的计算同上部钢筋的计算规则一样,当框架梁为高度相等的连续梁或支座的截面积比较大,满足钢筋的抗震锚固长度(Lae),可以直锚,但同时钢筋深入支座的长度不应小于0.5hc+5d。
梁为受拉构件,下部受拉钢筋,严禁在跨中连接,如需连接时可在梁的1/4范围内连接,尽量采用焊接或机械连接。
4、框架梁侧面构造钢筋(G打头)与抗扭钢筋(N打头)的计算框架梁侧面构造钢筋锚入支座的长度为15d,且不小于250mm,并伸入支座中心线,也可才用搭接的方式,不考虑搭接的位置;当梁腹板hw≥450时,在梁的两个侧面应沿高度配置纵向构造钢筋。
抗扭钢筋锚固长度应满足Lae,同时不小于250mm,并伸入支座中心线。
5、箍筋及拉筋的计算框架梁箍筋下料长度的计算:梁的图示长度减去四个保护层厚度,再加上四个钢筋的直径,加两个1350弯钩长度,箍筋及拉筋弯钩长度的计算详见03G101-1第35页。
当箍筋为多肢复合箍筋时,应采用大箍套小箍的形式,大箍长度的计算同两肢箍,小箍高度同大箍,宽度是按照等分上部钢筋间距,加上两个箍筋直径组成,其弯钩的计算规则是一样的。
箍筋根数是按照建筑物的抗震等级,框架梁的高度来计算,如下:一级抗震:加密区范围为2hb;二至四级抗震:加密区范围为1.5 hb;(hb为梁高)第一道箍筋的设置在支座边50mm,那么箍筋的计算式如下:箍筋根数=加密区根数+非加密区根数加密区根数=加密区长度/100+1非加密区根数=(Ln-100-加密区长度*2)/非加密区间距-1Ln为梁的净跨长当有主次梁交叉时,主梁在次梁口的两侧应设置不少于3道的加密箍筋,加密箍筋间距为50mm,加密箍筋直径除注明外,一般同梁箍直径,次梁区域的正常箍筋照设;在计算箍筋时还应加上次梁两侧的加密箍筋。
当上部通长筋采用帮扎接头时,接头区段的箍筋应全加密。
拉筋的计算:因拉筋要拉在箍筋的外侧,所以拉筋的长度应为箍筋的宽度加两个拉筋的直径再加两个1350的长度,一般情况之下,拉筋的直径同箍筋的直径,这与03G101-1图集62-64页说明中不符;拉筋的间距是非加密区间距的2倍,当有多排侧面钢筋时,上下两排拉筋竖向相互错开设置。
顺便提一下,国家标准图集的制定本身就有冲突,如03G101-1与03G329-1之间关于封顶框架柱的处理就有冲突,03G329是建筑物抗震详图。
6、附加吊筋的计算附加吊筋的锚固长度为20d,不考虑结构的抗震等级与砼的强度,且不考虑钢筋的级别,当附加吊筋为光圆钢筋时,应做1800弯钩;下部支座宽度为它所承受的次梁的宽度两侧各加50mm,即:次梁宽度+100;斜长的计算,主梁的高度扣除上下两个保护层厚度再减去一个主梁的通常钢筋直径(一般取25mm),另外再减去吊筋与通长筋之间的一个保护层厚度(一般亦取25mm)即:(主梁高度-100)*ii的取值范围如下:主梁高度≤800时,取450,i=1.414;主梁高度>800时,取600,i=1.155;当框架梁的上部通长筋大于25mm时,附加吊筋的锚固与通长筋之间的保护层为30mm,且不小于通长筋的钢筋直径。
主次梁高度差距比较大时,附加吊筋的支座应在次梁底下50mm处,那么斜长的计算应为,次梁高减去一个保护层厚度再减去通长筋的直径,及通长筋与吊筋锚固之间的保护层厚度,加50mm再乘以i。
二、L梁钢筋的计算1、L梁上部钢筋的计算L梁上部锚入支座的长度应不小于la(受拉钢筋的做小锚固倍数),平直端的长度自支座的外边缘扣除一个保护层厚度,再扣除一根主梁的主筋的直径(一般取25mm),弯钩长度应不小于15d,当不满足锚固长度时可以延长,见下式:梁的全长-(25+25)*2当梁的跨度过大或为连续梁时,上部通长筋可在净跨的1/3除进行连接,其连接方式具体要求同框架梁。
当上部钢筋既有通长筋又有架立筋时,其架立筋的下料长度一般为ln/3+150*2架立筋与支座负筋的搭接长度为150mm,的计算要求详见03G101-1第65页。
2、上部支座负筋及二排负筋的计算一排支座负筋延伸到净跨的1/3处断开,二排负筋延伸到净跨的1/4处断开,锚固长度的计算同通长筋;当在中间支座相邻两跨不相等时,延伸到短跨的长度应与长跨相等,即为2/3的净长跨长度加支座的宽度,以上钢筋的构造要求在03G101-1第65页都有具体要求。
3、下部纵筋的计算次梁下部纵筋锚入支座的长度一般为12d,当支座为端支座或相邻两跨梁的下部标高不相等时,锚固长度不能满足12d,可以向上弯锚;当次梁为弧形梁时,其下部纵筋的锚固长度按la(受拉钢筋的最小锚固长度)计算,直锚不能满足时,弯钩长度不得小于15d。
3、侧面构造钢筋(G打头)与抗扭钢筋(N打头)的计算侧面构造钢筋与抗扭钢筋的的计算同框架梁的计算,详见35G101-1第65页。
4、箍筋与拉筋的计算箍筋的计算:箍筋下料长度的计算同框架梁箍筋的计算规则相同,当箍筋为多肢复合箍时,应采用大箍套小箍的形式,其计算方法同框架梁箍筋的计算方法。
次梁箍筋一般不做加密,第一道箍筋设置在距离支座边50mm,计算式如下:箍筋根数=(梁的净长-100)/箍筋间距+1梁上部钢筋如采用帮扎接头,其接头区段箍筋应全加密。
拉筋的计算:拉筋的计算见前面第3页。
三、悬挑梁的计算当框架梁或L梁有悬挑时,除注明外,一般两根角筋弯起,计算式如下:弯起平直端为20d,不计结构的抗震等级以及砼强度;斜长计算同附加吊筋的计算;支座端(下端)长度为LL梁的截面宽度+50mm;高度为悬挑梁高扣除上下两侧保护层厚度悬挑端一般不宜做连接,如需连接可在悬挑梁后的连续梁跨中进行连接,连接部位在框架梁或L梁的净跨1/3与悬挑端净跳长度取较大值;悬挑端上部支座负筋的长度计算,框架梁或L梁的净跨1/3与悬挑端净跳长度取较大值,即时:负筋长度=(ln/3与1.0L取较大值)+1.0L+hc其中:ln为框架梁或L梁的净跨,L为净悬挑,hc为支座宽。
当设计有二排钢筋时,二排钢筋的计算如下:二排筋长度=(ln/4与0.75L取较大值)+0.75L+hc当悬挑梁1m<L≤1.5m时,设一排鸭筋;1.5m<L≤2.2m时,设两排鸭筋;L>2.2m时,设三排鸭筋;一排鸭筋的计算同附加吊筋的计算,详见吊筋的计算规则,只是安装时向反;当设计有二排鸭筋时,二排鸭筋的支座宽度在一排鸭筋的支座宽度上再加上一个悬挑梁高,而三排鸭筋的支座宽度在二排鸭筋的支座宽度上再加一个悬挑梁高。
因悬挑是反向受力,所以悬挑梁箍筋安装时锚固朝下,同时悬挑梁下部钢筋为构造钢筋,锚入支座的长度为12d且不小与250mm。
当悬挑梁为纯悬挑梁时,上部受力钢筋锚入支座应不小于lae,且应伸至柱对边(柱纵筋内侧),弯钩长度为15d,当不满足lae时可延长,上部支座负筋及二排负筋同时要满足上述规则。
详见03G101-1第66页。
四、现浇板钢筋的计算1、现浇板筋下料长度的计算现浇板筋应伸至梁中心线过5d,再加两个1800弯钩的长度,计算式如下:下料长度=梁中到梁中的尺寸+5d*2+6.25d*2第一根板筋设置在距离支座边50mm,那么板筋的下料根数为:下料根数=(净板尺寸-100)/间距+12、板面负筋的计算当板面负筋图示长度一般为支座中心线的长度,在图纸说明当中,一般给于说明;板面负筋的长度应是图示长度(当图示长度为到支座中的长度),加上一半支座的长度扣除一个保护层的厚度,另加两个弯钩的长度,弯钩的长度为现浇板的厚度减去一个板保护层的厚度,当锚入支座的一端不能锚固长度时,锚入支座的一端的弯钩可以延长,计算式:下料长度=图示长度+支座/2-一侧保护层厚度+弯钩长度*2如果图示长度就是到支座外边缘的长度,那么只要按照图示长度减去一个保护层厚度再加上两个弯钩长度,即:下料长度=图示长度-一侧的保护层厚度+弯钩长度*2当板面负筋为中间支座负筋,那么下料长度为两侧的图示长度之和加上两的弯钩长度。
当板面负筋为连续设置时,其可以在支座或梁上端开设置,亦可在跨中lo/3至lo/2处进行连接,lo为板的净跨长,其连接要求如下:当采用帮扎搭接连接,同一连接区段内两纵向受拉钢筋帮扎接头中心线之间的距离应不小于1.3l1;当采用机械连接时,同一连接区段内两纵向受拉钢筋连接接头之间的距离应不小于35d;当采用焊接连接时,同一连接区段内两纵向受拉钢筋焊接接头之间的距离应不小于35d且不小于500mm;详见04G101-4第24-26页。
3、分布筋的计算分布筋在混凝土构件中只是起到固定受力筋的作用,使受力筋均匀受力;对于分布筋,国家现行规范对此无明确要求,一般分布筋伸至梁中心线即可。