地基验槽记录-1(轴线)
- 格式:xls
- 大小:18.50 KB
- 文档页数:2
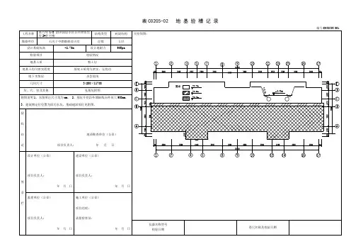
地基验槽记录工程名称洛阳赛阳硅业有限公司生产调度中心基槽底设计标高-3.600m施工单位安阳建工(集团)有限责任公司设计要求地质土层粉质粘土验槽日期年月日实际地质土层粉质粘土内容及草图:本工程采用机械挖土,满堂红开挖。
1.轴线尺寸情况:经检查,轴线位置正确,基坑尺寸均符合要求,满足施工需要。
2.地质底层符合情况:经清槽后观察,基底为粉质粘土,与设计要求相符,经观察槽壁,土层厚度及走向与勘察报告情况基本一致。
3.脏土及有机物处理情况:地表下无脏土和有机物。
4.设计标高误差情况:本工程设计基槽底标高-3.600m,实际基槽底标高-4.680m,清槽后水准仪观察测量,最大误差-30mm,在规范允许偏差之内。
验收结论:基槽开挖后,经建设单位、勘察单位、设计单位、监理单位、施工单位共同检验,地基采用3:7灰土垫层进行加固处理。
地基处理后经检测满足设计要求后方可进行下道工序的施工。
建设单位:(章)勘察单位:(章)设计单位:(章)监理单位(章)施工单位:(章)项目负责人:年月日项目负责人:`年月日项目负责人:年月日监理工程师:年月日项目经理:年月日地基验槽记录工程名称洛阳赛阳硅业有限公司餐厅、宿舍综合楼基槽底设计标高-3.600m施工单位安阳建工(集团)有限责任公司设计要求地质土层粉质粘土验槽日期2009年9月28日实际地质土层粉质粘土内容及草图:本工程采用机械挖土,满堂红开挖。
1.轴线尺寸情况:经检查,轴线位置正确,基坑尺寸均符合要求,满足施工需要。
2.地质底层符合情况:经清槽后观察,基底为粉质粘土,与设计要求相符,经观察槽壁,土层厚度及走向与勘察报告情况基本一致。
3.脏土及有机物处理情况:地表下无脏土和有机物。
4.设计标高误差情况:本工程设计基底标高-3.600m,实际基槽底标高-3.830m,清槽后水准仪观察测量,最大误差-30mm,在规范允许偏差之内。
验收结论:基槽开挖后,经建设单位、勘察单位、设计单位、监理单位、施工单位共同检验,地基采用3:7灰土垫层进行加固处理,地基处理后经检测满足设计要求后方可进行下道工序的施工。
地基验槽(坑)检查记录Q/CSG表BJ2-38-1号:MJKGZ-DTQ-001Q/CSG 表 BJ2-38-2号.编旦 TGY-DTQ-CD001附简图:挡墙顶设计高程:2028气基底高程:2025.165基底高程:2024.63+ 64基底高程:2022.68基底高程:2023.305•••••+ 52+ 37+ 10+ 22.7段挡土墙基槽剖面图------------------- 1 *------- r3644%----- » 、5+ 52 92£~字栏地基验槽(坑)检查记录-〜匚會:£$段挡土墙基槽平面图地基验槽(坑)检查记录Q/CSG表BJ2-38-1 编号TGY-DTQ-CD002检查意见:地基验槽(坑)检查记录Q/CSG表BJ2-38-2 编号TGY-DTQ-CD002+ 76附简图:挡墙顶设计高程:2028.4 自然地 面_____ . — — — _ _ _ _ _ 一一 L JT一一 -~^: 一 ----- - -- "• “基底高程:2025.69「、y—+ 64 I 二+3 £二+ / 1段挡土墙基槽剖面图+64' + 76:匸"~+7f 段挡土墙基槽平面图Q/CSG表编号:TGY-DTQ-CD003 BJ2-38-1编号:Q/CSG 表 BJ2-38-2TGY-DTQ-CD003附简图:挡墙顶设计高程:2025.4基底高程:2023.50 .基底高程:2021.63+ 14 基底高程:2019.685.8 + 20+ 26 + 36 + 486.2 10.6 12.45.86.2 10.6 12.4■〜段挡土墙基槽剖面图〜■段挡土墙基槽平面图TGY-DTQ-CD004 附简图:挡土墙顶高程:2028.4自然地基底高程:2026.35基底高程: +76 +88挡土墙顶高程:2028 4一面2026.59 |段挡土墙基槽剖面图+ 20L、1+8I:+ 768T"+ 88 :二+〜段挡土墙基槽平面图签字栏建设单位监理单位设计单位勘察单位施工单位地基验槽(坑)检查记录14+ 15131212_ +15+ 28+ 40+ 52地基验槽(坑)检查记录TGY-DTQ-CD005 附简图:挡墙顶设计高程:2033.4挡墙顶设计基底高程:2030.05 ]自设计高程:2033然M 〜2028.4-段挡土墙基槽剖面图段挡土墙基槽平面图+ 52基底高程:2028.89签施工单位地基验槽(坑)检查记录Q/CSG表编号:TGY-DTQ-AB001检查意见:地基验槽(坑)检查记录Q/CSG表BJ2-38-2 编号TGY-DTQ-AB001附简】+ 3 4 .8钢筋混凝土扶壁式挡土墙基Q/CSG 表 BJ2-38-1挡土墙顶设计高程:2 0 3 1 . 9 3自然地面基底高程 :2 0 1 3 . 86-+ 3 4 .诽冈筋混凝土扶壁式挡土墙基签字 栏建设单位监理单位设计单位勘察单位施工单位编号:TGY-DTQ-CD006编号:K ---------------- 1r th, ------------- ■ ---------- S Fk ----------- F+ 11+ 22+ 34+ 46+ 58-+70C J +1地基验槽(坑)检查记录Q/CSG 表 BJ2-38-2 TGY-DTQ-CD006 附简图:挡墙顶设计高程:2028.4自然地面—一 :::一―,1 '基底高程: 2031.5基底高程:2031.4基底高程:2031.2ri 基底高程:2031.3 |基底高程:2031.0r+ 34+ 46T + 22+ 58 + 70+ 11段挡土墙基槽剖面图'段挡土墙基槽平面图施工单位Q/CSG表BJ2-38-1地基验槽(坑)检查记录编号:TGY-DTQ-BC001地基验槽(坑)检查记录Q/CSG表BJ2-38-2 编号TGY-DTQ-BC001附简基底设计高程:2028.0 |基底设计高程:2028.28基底设计高程:2027.4- | ---------------------------------地面基底设计高程:2029.77基底设计高程:2030.03,“基底设计高程:2029.51---------------------------------|>1 ------1 +L4建设单位 监理单位 设计单位 勘察单位施工单位Q/CSG 表 BJ2-38-1挡土墙顶设计高程:2033.4_〜段挡土墙基槽剖面图编号:TGY-DTQ-HJK001基底设计高程:2031.4262 ,段挡土墙基槽平面图.]6编号:Q/CSG 表 BJ2-38-2TGY-DTQ-HJK001附简图:〜.段挡土墙基槽剖面图签字栏建设单位监理单位设计单位勘察单位施工单位挡土墙顶设计高程:2039.91I〜段挡土墙基槽平面图编号:地基验槽(坑)检查记录Q/CSG 表 BJ2-38-2 TGY-DTQ-MN001 附简图:建设单位 监理单位 设计单位 勘察单位 施工单位挡土墙顶标高:2033.4〜2034.67段挡土墙基槽剖面图段挡土墙基槽剖面图然地 面地基验槽(坑)检查记录Q/CSG表编号:TGY-DTQ-CD007地基验槽(坑)检查记录Q/CSG表BJ2-38-2 编号TGY-DTQ-CD007附简图:4 | 48段挡土墙基槽剖面图Q/CSG表BJ2-38-1 挡土墙顶标高:2028.4 ,作 C ote〜段挡土墙基槽剖面图编号:TGY-DTQ-MN002编号:建设单位监理单位 设计单位 勘察单位施工单位地基验槽(坑)检查记录Q/CSG 表 BJ2-38-2 TGY-DTQ-MN002 附简图:挡土墙顶标高:2034 66〜2035. 08_____ . 4 2基底高程:2030.9+巴〜・X 段挡土墙基槽剖面图kt\〜 段挡土墙基槽平面图自然地 面_ 一 ■一 ------------------- -------地基验槽(坑)检查记录Q/CSG表编号:TGY-DTQ-MN003地基验槽(坑)检查记录Q/CSG表BJ2-38-2 编号TGY-DTQ-MN003附简图:Q/CSG表BJ2-38-1 挡土墙顶标高:2°眨08〜2°3乩5自然地面基底高程2031.0-4-段挡土墙基槽剖面图+ 48〜|段挡土墙基槽平面图签字栏建设单位监理单位设计单位勘察单位施工单位编号:TGY-DTQ-KM001编号:建设单位 监理单位 设计单位 勘察单位施工单位地基验槽(坑)检查记录Q/CSG 表 BJ2-38-2 TGY-DTQ-KM001 附简图:扌当土墙顶标高:203& 635-2038. 823/-一 一 • -一 -一 -—r ——■—■—'自一然地面十……………二一”………■壬基底高程2031.1⑴\ /-------- ------------------------------------------------------------------------------- —7 + )< , V + / ^'/ n+ 58.3〜’+兀匚段挡土墙基槽剖面图158.3〜 段挡土墙基槽平面图地基验槽(坑)检查记录Q/CSG表编号:TGY-DTQ-MN004地基验槽(坑)检查记录Q/CSG表BJ2-38-2 编号TGY-DTQ-MN004附简图:自然地基底高程2031.0基底高程2031.1扌为土墙顶标高:2035. 5~2p36■輕- | \ + ./ HI + 60〜「点1段挡土墙基槽剖面图-60〜段挡土墙基槽平面图编号:TGY-DTQ-BC002 Q/CSG表BJ2-38-1地基验槽(坑)检查记录Q/CSG表BJ2-38-2TGY-DTQ-BC002编号:附简图:挡土墙顶高程:2033.4挡土墙顶高程:2032.491挡土墙顶高程:2032.185基底高程:2025.1挡土墙顶高程:2032.797挡土墙顶高程:2033.103基底高程:2025.9基底高程:2026.21-〜+40段挡土墙基槽剖面图-段挡土墙基槽平面图建设单位监理单位设计单位勘察单位施工单位地基验槽(坑)检查记录Q/CSG表编号:TGY-DTQ-KM002地基验槽(坑)检查记录Q/CSG表BJ2-38-2 编号TGY-DTQ-KM002Q/CSG 表BJ2-38-1附简图:拦土墙顶标高:2038. 275-2038. 635.X. / - ----- ・ ” ' ------ ■■— ----------------- ----- -自然地 面L ——―— — _基底高程2031.1i基底高程2031.1斗3 / , 2; V+ 34.25〜「+段挡土墙基槽剖面图hH 34.25〜忡心 段挡土墙基槽平面图签字 栏建设单位监理单位设计单位勘察单位施工单位编号:TGY-DTQ-KM003编号:70. 上段挡土墙基槽剖面图地基验槽(坑)检查记录Q/CSG 表 BJ2-38-2 TGY-DTQ-KM003 附简图:挡土墙顶标高:2°3& 823—2039. 003自然地 面~一一 ________________________________ __ — —- -■ _j-一一" 一 一—__斗 _基底高程2031.1「+ .870.8〜 段挡土墙基槽平面图施工单位建设单位监理单位设计单位勘察单位。
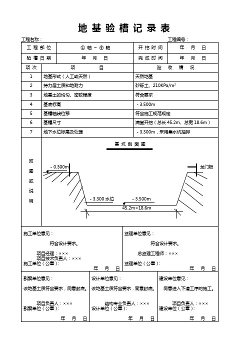
地基验槽记录表GB50300- 2001地基验槽记录表GB50300- 2001验收结论:地基验槽记录表GB50300- 2001内容:E、轴线尺寸情况:轴线尺寸误差均在土4 mm以内。
F、地质土层符合情况:符合地质勘察报告及设计要求。
G脏土及有机物处理情况:无脏土及有机杂物。
H 设计标高误差情况:标高误差均在—50 m〜0之间。
验收结论:地基验槽记录表GB50300- 2001内容:I、轴线尺寸情况:轴线尺寸误差均在土4 mm以内。
J、地质土层符合情况:符合地质勘察报告及设计要求。
K、脏土及有机物处理情况:无脏土及有机杂物。
L、设计标高误差情况:标高误差均在—50 m〜0之间。
验收结论:地基验槽记录GB50300- 2001内容:M 轴线尺寸情况:轴线尺寸误差均在土4 mm以内。
N地质土层符合情况:符合地质勘察报告及设计要求。
O 脏土及有机物处理情况:脏土及有机杂物已清理干净。
P、设计标高误差情况:标高误差均在—50 m〜0之间。
后应附钎探审核意见一由漯河市勘测规划设计院出具注:施工方应填好钎探记录分析验收结论:钎探记录表表GB50300- 2001钎探记录表表GB50300- 2001钎探记录表表GB50300- 2001钎探记录表表GB50300- 2001钎探记录表表GB50300- 2001钎探记录表表GB50300- 2001注:在施工单位部位盖工项目部工章需钎测多少点则制表记录到多少点后应附钎探平面图(画点及轴线)。