热轧滑轮组滑轮系列表型号对照
- 格式:xlsx
- 大小:70.88 KB
- 文档页数:2
热轧滑轮制造标准1、直径D的圆跳动公差t1:0≤t1≤D/1000 D:单位mm 2、槽底半径R允许偏差t2:R t1≤15+1.0>15 +1.53、轮缘宽度b允许偏差t3:轮缘号t31+223+345+467+58 4、外径D1的允许偏差t4:D1 t4≤250-0.5>250—500 -1.0>500—1000 -1.5>1000—1200 -2.0>1200—1500 -2.5>1500—1800 -3.0>1800—2000 -3.55、绳槽内侧向跳动公差t5:t5≤2D/1000 D:单位mm6、绳槽表面硬度为HB=140~220订货说明1、用户可根据钢丝直径d、滑轮名义直径D0与钢丝直径d比值D0/d、轴承型号、使用环境(需一般密封或严密密封(A型),按滑轮系列表选择即可。
(表1-4为一般密封型、表5-8为严密密封型)。
标注方法如下:如果选用一般轮缘,D0/d值为20、轴承型号为211的一般密封型滑轮,标注WJ1201。
2、本厂可按用户要求制造特殊规格的、可通过钢丝绳头的滑轮等。
3、本厂可代为用户设计、制造滑轮或滑轮组滑轮系列表(一般密封型)Pulley Serice Form(Ordinary Sealed Type)D0/d=20 表11 、D0=D+d2 、参考重量不包括轴承重量D0/d=25 表21 、D0=D+d2 、参考重量不包括轴承重量D0/d=28 表31 、D0=D+d2 、参考重量不包括轴承重量D0/d=32 表41 、D0=D+d2 、参考重量不包括轴承重量滑轮系列表(严密密封型)Pulley Serice Form(Tightly Sealed Type) D0/d=20 表51 、 D0=D+d2 、参考重量不包括轴承重量D0/d=25 表61 、 D0=D+d2 、参考重量不包括轴承重量D0/d=28 表71 、 D0=D+d2 、参考重量不包括轴承重量D0/d=32 表81 、 D0=D+d2 、参考重量不包括轴承重量。
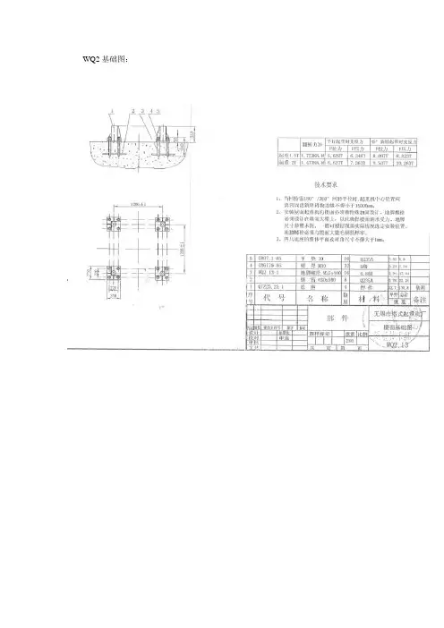
WQ2基础图:WQ2各部件重量表序号 部件名称 外形尺寸 数量 单重 1 吊钩 215×710×940 1 150406×840×2460 1 258 2 平衡臂421×852×2770 1 3333 起重臂架 15205×780×503 10 最重1804 下支座 600×1300×1300 1 3865 起升机构 1800×1200×800 1 13006 变幅机构 1500×900×2100 1 13007 变幅定滑轮组 590×550×250 16 508 前撑杆 3660×820×160 1 1329 后拉杆 2600×820×315 1 12610 上支座 406×840×2460 1 28011 变幅动滑轮组 700×350×600 1 9512 起升机构部件 1 30013 回转机构 500×500×1230 1 29414 电器总控制箱 350×1300×1450 1 18015 平衡重框 406×840×2460 1 10016 平衡重 2900起重性能WQ2起重性能表:WQ2技术参数: 起升机构 M5 回转机构 M4机构工作级别变幅机构 M4工作仰角 80° 15° 工作幅度 3.5m 14m 最大起重量 2t 1.5t电机型号 YZR160M-6 电机功率 7.5KW 减速机型号 JZQ500-2-Ⅷ-F起升速度 10m/min 制动器型号 YWZ300/45 绳筒直径295φmm起 升 机 构钢丝绳规格 6*19W-11-1550-FC电机型号 YZR132M-6 回 电机功率 2.2KW 转 减速机型号 XX4-40-157.5 机 回转速度 0.78r/min 构 回转支撑 0.11.40.900 m=8 z=130电机型号 Y112M-4 变 电机功率 4KW 幅 变幅速度 2.44m/min 机 构 钢丝绳 6*19(w)-9-155 操纵形式 操作台转换开关、按钮WQ2外形:WQ2部件尺寸及重量:序号名称外形尺寸(mm)数量重量(kg)15011 吊钩 215*710*940103812 臂架 15205*780*5033 平衡臂406*840*2460 1 258421*852*2770 1 33313244 底座 350*350*3513885 下支座 600*1300*13001 13006 起升机构 1800*1200*8001 507 变幅定滑轮组 590*550*25013218 前撑杆 3660*820*16012619 后拉杆 2600*820*315280110 上支座 1284*1030*4501 3011 变幅动滑轮组 535*300*20412 操纵箱231 29413 回转机构 500*500*123014 平衡重2900。
滑轮规格————————————————————————————————作者:————————————————————————————————日期:热轧滑轮制造标准1、直径D的圆跳动公差t1: 0≤t1≤D/1000 D:单位mm2、槽底半径R允许偏差t2: R t1≤15+1.0>15 +1.53、轮缘宽度b允许偏差t3: 轮缘号t31 +223 +345+467 +58 4、外径D1的允许偏差t4:D1 t4≤250-0.5>250—500 -1.0>500—1000 -1.5>1000—1200 -2.0>1200—1500 -2.5>1500—1800 -3.0>1800—2000 -3.55、绳槽内侧向跳动公差t5:t5≤2D/1000 D:单位mm6、绳槽表面硬度为HB=140~220订货说明ﻫ1、用户可根据钢丝直径d、滑轮名义直径D0与钢丝直径d比值D0/d、轴承型号、使用环境(需一般密封或严密密封(A型),按滑轮系列表选择即可。
(表1-4为一般密封型、表5-8为严密密封型)。
ﻫ标注方法如下:如果选用一般轮缘,D0/d值为20、轴承型号为211的一般密封型滑轮,标注WJ1201。
2、本厂可按用户要求制造特殊规格的、可通过钢丝绳头的滑轮等。
3、本厂可代为用户设计、制造滑轮或滑轮组滑轮系列表(一般密封型)Pulley Serice Form(Ordinary Sealed Type)D0/d=20表1滑轮代号钢丝绳直径主要尺寸推荐轴承型号参考重量DD1R b w fD2 D3BWJ120110-14 28 5 63 63 21114.5WJ1202 60 6966212 15WJ1203 65 75 68213 16WJ12047080 70 21416WJ2201>14-19 355 49074216 26WJ220285 96 78 217 27.5 WJ2203 9 .5WJ2204 9510886 219 30WJ3201>19-23.5 4540WJ3202 1 1.5 WJ320311 4WJ320412WJ4201>23.5-30 56 6 73WJ420214WJ42030 79 WJ420416WJ5201>30-3771 216 124WJ520217020203236132WJ5204198135 WJ6201>37-438 2 1216 159WJ6202 170202 .5WJ6203236 166 WJ620419 8 168 WJ7201>43-509981419 8 278WJ7202240 275 WJ720322 4 305WJ7204240278WJ8201>50-58112 4842238 385WJ8202 240 384 WJ820322 4 417WJ8204 240 2781 、D0=D+d2 、参考重量不包括轴承重量D0/d=25表2滑轮代号钢丝绳直径主要尺寸推荐轴承型号参考重量D D1 R DD1R DWJ125110-14 35543 63 21118WJ125260 6966 212 185365 75 68 213 19.5WJ125470 807021421WJ2251>14-194580 907421632.5WJ225285 9678217 34WJ22539WJ225495 108 86 219 38 WJ3251>19-23.5 5652WJ325213WJ325311 5WJ325412WJ4251>23.5-30 716 95WJ425214WJ4253 0 102 WJ425416 5WJ5251>30-37 9 21216 160WJ5252 170202WJ5253236 170 WJ5254 198175 WJ6251>37-43 1 4821216 206WJ6252170 202WJ6253236 220WJ625419 8 226 WJ7251> 43-50125814198 393.8WJ7252 2 40393.8WJ725322 4 424.6WJ7254240278.9WJ8251>50-581448 42238503.8WJ8252240 502.7 WJ825322 4 537.9WJ8254 240278.21 、D0=D+d2 、参考重量不包括轴承重量D0/d=28 表3滑轮代号钢丝绳直径主要尺寸推荐轴承型号参考重量DD1R DD1R DWJ128110-14 45563 63 21121WJ1282 66966212 21WJ1283 65756821323WJ1284 70 8070214 24WJ2281>14-195 880 90 74 21638WJ228285 9678217 39WJ22839 .5WJ2284 9510886 21942WJ3281>19-23.5 6352WJ3282 1 1WJ3283 11 3.5WJ3284 12WJ4281>23.5-30826 108WJ428214 0 WJ4283 0 113WJ4284 167WJ5281>30-371721216 186WJ5282 17202WJ5283236 194.5WJ528419 8 199 WJ6281> 37-43 1122 1216243WJ6282170202WJ6283 236 254 WJ628419 8 260 WJ7281>43-50 148 42238 243WJ72822 40 249WJ7283 224 254WJ7284 240278WJ82>5016 142238 598.81-58 484WJ8282 2 40 601.7 WJ828322 4634.7WJ8284240278.81 、D0=D+d 2、参考重量不包括轴承重量D0/d=32 表4滑轮代号钢丝绳直径主要尺寸推荐轴承型号参考重量DD1R D D1 R DWJ132110-14 45 5 636321125WJ13226069 66 212 25WJ13236575 68 213 26.5WJ1324 70 807214 26.5WJ2321>14-19 5680 907421640WJ2322 85 96 78217 44WJ23239WJ2324 9510886 219 50WJ3321>19-23.571 69WJ33221 1WJ332311 4 WJ332124WJ4321> 23.5-30 926128WJ432214 2 WJ43230 136WJ432416 0 WJ5321> 30-37 1121216 218WJ532217202WJ5323236 225WJ5324 19 8 228 WJ6321>37-431251216 290WJ6322170 202WJ6323236 296.5 WJ632419 8298 WJ7321> 43-5016 981419 8 531.3WJ7322240 534.6WJ7323 22 4 567.6WJ732424278.4WJ8321>50-58 3511842238699.6WJ83222 40705.1WJ8323 22 4739.2WJ8324 240 27.48 1、D0=D+d 2、参考重量不包括轴承重量滑轮系列表(严密密封型)Pulley Serice Form(Tightly Sealed Type)D0/d=20表5滑轮代号钢丝绳直径主要尺寸推荐轴承型号参考重量D D1 R b w fD2D3 BWJ 1201A10-1428 5 65 86 21115WJ 1202A 6070 88 212 16WJ1203A 6575921316.5WJ1204A 70892 214 18WJ 2201A>14-19 355 490 96 21627WJ 2202A 8595100217 28WJ2203A90WJ 2204A 95110112219 32WJ3201A> 19-23.5 459 43WJ3202A1 44 WJ 3203A11 6 WJ3204A12 .5WJ4201A>23.5-30 566 76WJ4202A 149WJ4203A083WJ 4204A 16WJ5201A> 30-3771 216019WJ5202A 174 133WJ5203A 236137 WJ5204A19 8 141 WJ6201A> 37-438 2 1216019WJ6202A17 4 169 WJ 6203A236 169WJ 6204A198175WJ 7201A>43-509 98 1419 8 280.5WJ 7202A 240279.4WJ 7203A 22 4310.2WJ7204A24 8 286WJ 8201A >50-581127242238 375.5WJ 2 40 388.38202AWJ8203A 22 4 422.4WJ8204A248399.31、D0=D+d2、参考重量不包括轴承重量D0/d=25表6滑轮代号钢丝绳直径主要尺寸推荐轴承型号参考重量DD1R b w fD2D3BWJ 1251A10-14 355 4 3 86 21119WJ 1252A60 69 88 212 19WJ 1253A 657590 21321WJ1254A 708092 214 22WJ2251A>14-19 4580 90 96216 33WJ2252A859610021735WJ2253A9 7WJ 2254A 95108112 219 39WJ 3251A>19-23.5 569 53WJ3252A1 54WJ3253A11 8 WJ 3212WJ4251A> 23.5-30716 98.5WJ 4252A141WJ4253A0 105 WJ4254A 16 9 WJ 5251A>30-37 9 21216 169WJ 5252A 17 4 175 WJ5253A236 175 WJ5254A 198180 WJ6251A>37-431 4821216 215WJ 6252A17 4 219 WJ6253A236 219WJ 6254A198 225WJ7251A>43-50125 8 14198396WJ7252A2 40 398.2 WJ 7253A 22 4 430.1WJ 7254A 248408.1WJ 8251A>50-58 147242238 507.1WJ8252A 2 40507.1WJ 822 4 213.4WJ 8254A248 522.51 、D0=D+d2、参考重量不包括轴承重量D0/d=28表7滑轮代号钢丝绳直径主要尺寸推荐轴承型号参考重量DD1R b w fD2D3BWJ1281A10-14 45565 86211 21.5WJ 1282A60 70 88 21222WJ1283A 65 7590 21324WJ 1284A70 80 92 214 25WJ2281A> 14-19 5 8 8090 9621639WJ 2282A8595100217 40WJ2283A 9 2WJ 2284A95110112219 45WJ3281A>19-23.5639 61WJ3282A163WJ3283A 11 6WJ328412WJ4281A> 23.5-30 826 114WJ 4282A 1416WJ4283A0 121WJ4284A165WJ 5281A> 30-371721216019WJ5282A17 4198WJ5283A236 198WJ5284A19 8 203 WJ 6281A>37-431122 1216019WJ6282A17 4258 WJ6283A236 258 WJ6284A19 8 265 WJ7281A>43-50142 42238 451WJ7282A2 40456 WJ7283A22 4488WJ7284A 248 470WJ8281A >50-58 16 172 42238 6018282A2 40 606WJ8283A 224 640WJ 8284A 248 6301 、D0=D+d2 、参考重量不包括轴承重量D0/d=32表8滑轮代号钢丝绳直径主要尺寸推荐轴承型号参考重量DD1Rbw fD2D3 BWJ1321A10-14 455 65 8621125WJ1322A 60 70 88 212 26.5 WJ 1323A65 75 90213 28 WJ1324A70 80 92 214 28WJ2321A>14-19 5689096216 44WJ2322A85 95 100 21747 WJ2323A9 8WJ 2324A 95110112219 50WJ 3321A>19-23.571969WJ3322A1 73 WJ 31 6323A 1 WJ3324A12 WJ4321A>23.5-30 9 26 131WJ4322A14 34 WJ 4323A0 139 WJ4324A16 4WJ 5321A>30-37112121619WJ 5322A17 4 228WJ5323A236 228WJ 5324A 198 233WJ6321A>37-43 1251216019WJ6322A17 4 300 WJ 6323A236 298WJ 6324A 198 302WJ7321A>43-50 16981419 8533.5WJ7322A2 40 539 WJ7323A22 4573.1WJ 7324A24 8 556.6WJ >50- 1 242238 701.88321A58WJ8322A2 407.9.5WJ 8323A 224744.7WJ 8324A 248 732.61、D0=D+d 2 、参考重量不包括轴承重量。
6 滑轮的设计计算6.1滑轮的概述6.1.1 滑轮的定义滑轮是一个周边有槽,能够绕轴转动的小轮。
[由可绕中心轴转动有沟槽的圆盘和跨过圆盘的柔索(绳、胶带、钢索、链条等)所组成的可以绕着中心轴转动的简单机械叫做滑轮。
]滑轮是变形杠杆,属于杠杆类简单机械,用途很广。
中心轴固定不动的滑轮叫定滑轮,是变形的等臂杠杆,不省力但可以改变力的方向。
中心轴跟重物一起移动的滑轮叫动滑轮,是变形的不等臂杠杆,能省一半力,但不改变力的方向。
实际中常把一定数量的动滑轮和定滑轮组合成各种形式的滑轮组。
滑轮组既省力又能改变力的方向。
工厂中常用的差动滑轮(俗称手拉葫芦)也是一种滑轮组。
滑轮组在起重机、卷扬机、升降机,高压线上坐滑轮等机械中得到广泛应用。
6.1.2滑轮的分类按制作材质分:木滑轮、钢滑轮和工程塑料滑轮;按使用方法分:定滑轮、动滑轮以及动、定滑轮组成的滑轮组;按滑轮数目分:单滑轮、双滑轮、三滑轮、四滑轮以至多轮等多种;按滑轮作用分:导向滑轮、平衡滑轮;按连接方式分:吊钩式、链环式、吊环式和吊链式。
6.1.3滑轮的结构与材料滑轮的结构示意图如图6-1直径较小的滑轮可以做成实体轮(如图a),直径较大的应做成辐板轮(如图b)或者辐条轮,对于大型或者单件生产的滑轮可采用型钢与钢板焊接而成。
图6-1 滑轮的结构示意图铁滑轮的材质有:铸铁,球墨铸铁以及铸钢等。
铸铁滑轮,加工比较容易,使用时,对钢丝绳的损伤较小。
缺点是强度和脆性较大,滑轮的轮缘易损坏。
球墨铸铁滑轮强度较高,加工性能也好,有韧性,不易破碎。
铸钢滑轮主要用在大型设备中,天上的韧性好,强度高,但铸造性能差,表面硬度高,对钢丝绳的磨损大,同时成本也高。
滑轮的材料见表6-1表6-1 滑轮材料根据本次设计要求,选取铸造滑轮,材料为HT20—40。
滑轮尺寸的表示方法主要有生草稚京尺寸和滑轮尺寸。
滑轮绳操尺寸应能保持钢丝绳顺利夺得绕过并使接触面积尽可能大。
舌槽半径R是根据钢丝绳直径最大允许偏差为+7%确定的。
初中物理滑轮组知识点总结归纳滑轮组是物理学中一个重要的力学实验装置,通过一系列相互连接的滑轮和绳索,可以实现力的传递和运动的变换。
在初中物理学习中,滑轮组是一个常见的重点内容。
本文将对初中物理滑轮组的知识点进行总结归纳,帮助同学们更好地理解和掌握滑轮组的原理和应用。
一、滑轮组的定义和构成滑轮组是由多个滑轮组成的组合体,滑轮由轮轴、转轮和滑轮槽三部分构成。
滑轮组通常由定滑轮和动滑轮构成,在实际应用中可以根据需要选择滑轮的数量和排列形式。
二、滑轮组的作用原理1. 力的传递:通过滑轮组中的绳索,可以将施加在一个滑轮上的力传递到其他滑轮或物体上。
根据滑轮组的结构和力的方向,可以实现力的放大、缩小或者改变方向的作用。
2. 力的平衡:在滑轮组中,当各个滑轮都保持静止或者以一定的速度运动时,绳索会产生一定的拉力。
根据力的平衡原理,可以计算出滑轮组中各滑轮和绳索的力。
三、滑轮组的性质1. 力的放大性质:滑轮组可以通过改变力的方向和力臂的长度,实现力的放大作用。
根据滑轮组的结构和滑轮数量,可以计算出力的放大倍数。
2. 利用滑轮组提升物体:通过合理设计滑轮组的结构和运动方式,可以实现对重物的提升。
根据滑轮组的原理,可以计算出提升物体所需的力和工作量。
四、滑轮组的应用1. 提升机械:滑轮组广泛应用于提升重物的机械装置中,如吊车、电梯等。
通过合理配置滑轮组的结构和数量,可以实现对重物的安全、高效提升。
2. 绳索传输:滑轮组可以用于实现长距离的力的传输,如井上的打水设备。
利用滑轮组的力的放大性质,可以减小需要施加的力量,减轻操作的负担。
3. 力学分析:通过研究滑轮组的原理和作用,可以进行力的分析和计算。
滑轮组是力学分析中的重要模型,对于理解力的平衡和作用有重要意义。
五、滑轮组的注意事项1. 摩擦损耗:在滑轮组的实际应用中,要注意减小摩擦力,减少能量的损耗。
可以采取润滑、调整绳索等措施,提高滑轮组的效率。
2. 绳索的选择:在设计滑轮组时,要选择适合的绳索材料和直径,以保证滑轮组的安全和稳定性。
滑车及滑车组滑车和滑车组是电力线路检修和施工装置的常用工具之一,它能凭借起重绳子而发生旋转运动,然后改动效果力的方向。
因为滑车运用方便并且便于带着,因而,在线路检修和施工装置中被广泛运用。
一、滑车结构和类型滑车主要由吊钩(链环)、滑轮、轴、轴套(或轴承)以及夹板组成,如图所示。
滑车的类型较多。
按滑车的轮数可分为单轮滑车、双轮滑车和多轮滑车;按原料可分为铁滑车和铝滑车;按用处可分为起重滑车和放线滑车;按作业状态又可分为定滑车和动滑车。
滑车的吊点悬挂办法可制作成吊钩式、链环式和卸克式。
二、滑车运用1.定滑车定滑车又名导向滑车。
定滑车的滚轮装置在固定的方位,它只是用来改动绳子和拉力的方向,而不能改动速度,也不省力,一般定滑车可作为转向滑车和平衡滑车运用,如图C-24所示。
从图C-24可看出,物体Q在力F的效果下上升或移动时,其上升或移动的效果力与物体的阻力相等,但方向相反。
从理论上说,F和Q的阻力应相等,但因有摩擦力的存在,所以F有必要大于Q的阻力才能使物体上升或移动。
因而,当用定滑车起吊物体时,其效果力F为式中 Q——起吊物体的阻力,等于其质量;——定滑车功率,<1。
2.动滑车动滑车的滚轮装置在运动的轴上,它与被牵引的物体一同升降,能省力;但不能改动效果力的方向,如图C-25所示。
从图C-25(a)能够看出,在力F的效果下,物体Q上升,因为绳子一端固定,物体Q的重力由两根绳子担负,其上升行程为绳子行程的一半,方向与效果力F的方向相同。
因而,当动滑车起吊物体时,则所需的效果力F为:式中——动滑车功率。
选用滑车应先依据起吊分量和需求的滑轮数,按规程选用滑车槽底的直径和配合运用的钢丝绳直径。
按规则:运用于钢丝绳的滑车,滑轮槽底的直径D应大于钢丝绳的直径d的10—11倍。
即D≥(10—11)d运用于麻绳的滑车,滑轮槽底的直径D应大于麻绳的直径d的10倍。
(人力驱动)即D≥10d用来放、紧线运用的铝合金滑车,自行设计制作时,要考虑其直径是导线直径的10—11倍。
钢丝绳和滑轮匹配标准钢丝绳和滑轮是机械传动中常见的组件,它们的匹配关系对于机械传动的效率和安全性至关重要。
本文将介绍钢丝绳和滑轮的匹配标准,以帮助读者更好地理解和应用这些组件。
一、钢丝绳的分类和规格钢丝绳是由多股钢丝扭绞而成的一种绳索,具有高强度、耐磨损等特点。
根据用途和结构形式的不同,钢丝绳可分为普通钢丝绳、非旋转钢丝绳、平行钢丝绳、绞距大钢丝绳等多种类型。
钢丝绳的规格一般按照直径来标识,常见的规格有6mm、8mm、10mm、12mm等。
二、滑轮的分类和选择滑轮是一种旋转部件,主要用于改变传动方向和传动力的大小。
根据用途和结构形式的不同,滑轮可分为定向滑轮、传动滑轮、张紧滑轮、调节滑轮等多种类型。
选择滑轮时需要考虑负载、转速、径向力等因素,以确保其能够正常运转并满足传动要求。
三、钢丝绳和滑轮的匹配标准1. 直径匹配钢丝绳和滑轮的直径应该匹配,以确保钢丝绳能够顺畅地通过滑轮,并减少因直径不匹配而产生的摩擦损失。
一般来说,滑轮的直径应该大于钢丝绳的直径的1.5倍以上。
2. 材质匹配钢丝绳和滑轮的材质应当匹配,以确保其具有相似的强度和耐磨性。
一般来说,滑轮的材质应该比钢丝绳的材质硬度稍高,以充分发挥其耐磨性能。
3. 滑轮的数量和布局钢丝绳和滑轮的数量和布局应当合理,以确保传动效率和安全性。
一般来说,滑轮的数量应该尽量少,布局应当合理,避免出现过大的张力和摩擦损失。
4. 滑轮的转速和径向力钢丝绳和滑轮的转速和径向力应当匹配,以确保其能够正常运转。
一般来说,滑轮的转速应该低于其额定转速的80%左右,径向力应当小于其额定径向力的90%左右。
四、注意事项1. 钢丝绳和滑轮的匹配应当根据具体的传动要求和工作环境来选择,避免出现失配现象。
2. 在使用钢丝绳和滑轮的过程中,应当注意定期检查和维护,及时更换磨损的部件,以确保其正常运转和安全性。
3. 在选择和使用钢丝绳和滑轮时,应当遵守相关的国家标准和安全规范,以确保其符合法律法规和技术标准的要求。
热轧滑轮制造标准1、直径D的圆跳动公差t1:0≤t1≤D/1000 D:单位mm 2、槽底半径R允许偏差t2:R t1≤15+>15+3、轮缘宽度b允许偏差t3:轮缘号t31+223+345+467+584、外径D1的允许偏差t4:D1t4≤250>250—500>500—1000>1000—1200>1200—1500>1500—1800>1800—20005、绳槽内侧向跳动公差t5:t5≤2D/1000 D:单位mm6、绳槽表面硬度为HB=140~220订货说明1、用户可根据钢丝直径d、滑轮名义直径D0与钢丝直径d比值D0/d、轴承型号、使用环境(需一般密封或严密密封(A型),按滑轮系列表选择即可。
(表1-4为一般密封型、表5-8为严密密封型)。
标注方法如下:如果选用一般轮缘,D0/d值为20、轴承型号为211的一般密封型滑轮,标注WJ1201。
2、本厂可按用户要求制造特殊规格的、可通过钢丝绳头的滑轮等。
3、本厂可代为用户设计、制造滑轮或滑轮组滑轮系列表(一般密封型)Pulley Serice Form(Ordinary Sealed Type)D0/d=20 表1D0/d=25 表2D0/d=28 表3D0/d=32 表4滑轮系列表(严密密封型)Pulley Serice Form(Tightly Sealed Type) D0/d=20 表5D0/d=25 表6D0/d=28 表7D0/d=32 表8。
热轧滑轮制造标准1、直径D的圆跳动公差t1:0≤t1≤D/1000 D:单位mm 2、槽底半径R允许偏差t2:R t1≤15+1.0>15 +1.53、轮缘宽度b允许偏差t3:轮缘号t31+223+345+467+58 4、外径D1的允许偏差t4:D1 t4≤250-0.5>250—500 -1.0>500—1000 -1.5>1000—1200 -2.0>1200—1500 -2.5>1500—1800 -3.0>1800—2000 -3.55、绳槽内侧向跳动公差t5:t5≤2D/1000 D:单位mm6、绳槽表面硬度为HB=140~220订货说明1、用户可根据钢丝直径d、滑轮名义直径D0与钢丝直径d比值D0/d、轴承型号、使用环境(需一般密封或严密密封(A型),按滑轮系列表选择即可。
(表1-4为一般密封型、表5-8为严密密封型)。
标注方法如下:如果选用一般轮缘,D0/d值为20、轴承型号为211的一般密封型滑轮,标注WJ1201。
2、本厂可按用户要求制造特殊规格的、可通过钢丝绳头的滑轮等。
3、本厂可代为用户设计、制造滑轮或滑轮组滑轮系列表(一般密封型)Pulley Serice Form(Ordinary Sealed Type)D0/d=20 表11 、D0=D+d2 、参考重量不包括轴承重量D0/d=25 表21 、D0=D+d2 、参考重量不包括轴承重量D0/d=28 表31 、D0=D+d2 、参考重量不包括轴承重量D0/d=32 表41 、D0=D+d2 、参考重量不包括轴承重量滑轮系列表(严密密封型)Pulley Serice Form(Tightly Sealed Type) D0/d=20 表51 、 D0=D+d2 、参考重量不包括轴承重量D0/d=25 表61 、 D0=D+d2 、参考重量不包括轴承重量D0/d=28 表71 、 D0=D+d2 、参考重量不包括轴承重量D0/d=32 表81 、 D0=D+d2 、参考重量不包括轴承重量。
电梯导轨重量对照表电梯导轨是电梯井道的基础支撑件,它包括定位销、滑块、导向轮系统(以直线导轨为基础)。
它通常被用在导引曳引机的轿厢与导轨间。
滑块,是在导向轮上安装轴承并以一定角度固定在滚子轨道上的装置。
滑块是导轨中最重要的部件之一,它可以控制或限制曳引机运行时所产生的运动轨迹。
滑动块主要用于控制和限制滚动轴承产生噪音或震动,使其能稳定运行,避免因为运行速度过大而影响电梯使用性能。
滑块中有一个滑轮组,它被安装在一个有两个滑轮组的小导轨中以减少摩擦噪声和振动。
在运行中,滑轮组将轴承固定住并以一定角度移动定位销及导向轮来限制运行的噪音,从而保证了电梯的运行质量[1]。
一、将滑轮组(轴承)安装在导向轮上,以限制轴承的转动角度及噪音。
如图所示,滑轮的结构可分为两种:滑动轴承和滚动轴承。
导向轮都有2个轴,轴上分别有4个轴承。
电梯曳引机导向轮一般采用外径Φ340 mm直径Φ840 mm或Φ340 mm直径Φ850 mm 的不锈钢制直线轴体。
由于制造工艺的不同,电梯导轨型号规格与直径也有差异,常见的电梯导轨型号规格有直径为Φ420 mm、厚度为Φ100 mm以及Φ1520 mm等四种。
根据结构特点有以下两种型号:(1)平面轴承:其直径方向为300 mm~600 mm,可用于曳引机导轨中承受曳引机本身的力来旋转运转,可提高曳引机本身运行的稳定性,提高曳引机使用寿命。
二、根据电梯运行速度不同,滑轮组会保持一定的工作距离。
滑轮组工作距离越大,噪音就越大,因为它们可能会因制动装置不能正常工作而使电梯失去保护,甚至不能正常停止。
为使安装滑轮组的直线导轨系统能够顺利实现高速运行、平稳、噪音小、寿命长等要求,安装滑块时必须考虑两个因素:一是对润滑环境要求;二是受力状态要求;三是噪音要求。
滑车组尺寸越小,对摩擦噪声要求越高;因此滑车组不能太小也不能太大,以保证稳定运行。
由于电梯运行的速度越快,电梯运行中的摩擦声也就越大(如在正常运行时),使乘客在上下车和开门时更加吵闹、妨碍安全等,因此滑车组必须设计得小一些、合理一些才能实现高速运行。
起重、吊装设备计算与选型(卷扬机倒链等)4.4.1 滑轮和滑轮组的使用应符合下列规定:1 使用前,应检查滑轮的轮槽、轮轴、夹板、吊钩等各部件有无裂缝和损伤,滑轮转动是否灵活,润滑是否良好。
2 滑轮应按其标定的允许荷载值使用(见表C .0.1)。
对起重量不明的滑轮,应先进行估算,并经负载试验合格后,方可使用。
3 滑轮组绳索宜采用顺穿法,但“三三”以上滑轮组应采用花穿法。
滑轮组穿绕后,应开动卷扬机或驱动绞磨慢慢将钢丝绳收紧和试吊,检查有无卡绳、磨绳的地方,绳间摩擦及其它部分是否运转良好,如有问题,应立即修正。
4 滑轮的吊钩或吊环应与所起吊构件的重心在同一垂直线上。
如因溜绳歪拉构件,而使滑轮组歪斜,应在计算和选用滑轮组前予以考虑。
5 滑轮使用前后都应刷洗干净,并擦油保养,轮轴应经常加油润滑,严防锈蚀和磨损。
6 对重要的吊装作业、较高处作业或在起重作业量较大时,不宜用钩型滑轮,应使用吊环、链环或吊梁型滑轮。
7 滑轮组的上下定、动滑轮之间应保持1.5m 的最小距离。
8 暂不使用的滑轮,应存放在干燥少尘的库房内,下面垫以木板,并应每三个月检查保养一次。
9 滑轮和滑轮组的跑头拉力、牵引行程和速度应按下列规定计算:1)滑轮组的跑头拉力,应按下式计算:Q F α= (4.4.1-1)11)1(--+-=m n m ξξξα (4.4.1-2) 式中:F ——跑头拉力;α——滑轮组的省力系数,其值按(4.4.1-2)式计算或按表C .0.2选用。
Q ——计算荷载,等于吊重乘以动力系数1.5;m ——滑轮组工作绳数;n ——导向滑轮个数。
当跑头由定滑轮引出时,n 为实际导向滑轮组数加1;当跑头由动滑轮引出时,n 为实际导向滑轮组数;ξ——单个滑轮的阻力系数:滚珠轴承取1.02,有钢衬套取1.04,无衬套轴承取1.06。
当04.1=ξ时,α值可按表C .0.2选用。
2)滑轮跑头牵引行程和速度应按下式计算:mh u = (4.4.1-3)1mv v = (4.4.1-4)式中:u ——跑头牵引行程;m ——滑轮组工作绳数;h——吊件的上升行程;v——跑头的牵引速度;v——吊件的上升速度。
起重滑轮设计参数1. 引言起重滑轮是一种用于改变力的方向和大小的机械装置,常用于吊装和起重工作中。
合理设计起重滑轮的参数对于确保起重设备的安全和有效运行具有至关重要的意义。
本文将深入探讨起重滑轮的设计参数,包括起重滑轮的类型、材料、尺寸、轴承以及安全因素等。
2. 起重滑轮的类型起重滑轮的类型根据其结构和用途可以分为单滑轮、复式滑轮和滑轮组。
单滑轮适用于较小的起重设备,复式滑轮通常用于大型起重设备,而滑轮组则是多个滑轮组合在一起使用。
2.1 单滑轮单滑轮由一个滑轮和一个支架组成,它可以改变力的方向但无法改变力的大小。
在设计单滑轮时,需要考虑滑轮的直径、宽度以及滑轮与支架之间的间隙等参数。
2.2 复式滑轮复式滑轮由两个或更多个滑轮和一个支架组成,它可以改变力的方向并且能够改变力的大小。
在设计复式滑轮时,需要考虑每个滑轮的直径、宽度以及滑轮之间的间距等参数。
2.3 滑轮组滑轮组由多个滑轮和一个支架组成,它可以通过组合不同大小的滑轮来改变力的大小和方向。
在设计滑轮组时,需要考虑每个滑轮的直径、宽度以及滑轮之间的间距等参数。
3. 起重滑轮的材料起重滑轮的材料通常选择高强度和耐磨损的材料,如合金钢、铸钢和尼龙等。
根据起重滑轮的使用环境和要求,可以选择不同的材料。
4. 起重滑轮的尺寸起重滑轮的尺寸是根据所需要起重的物体的重量和尺寸来确定的,尺寸的设计需要考虑滑轮的直径、宽度以及杆的长度等因素。
4.1 滑轮直径滑轮的直径会影响到起重滑轮的承载能力和使用寿命,一般情况下,滑轮的直径越大,承载能力就越大,但滑轮直径过大,会增加滑轮自身的重量和成本。
4.2 滑轮宽度滑轮的宽度会影响到起重滑轮的稳定性和牵引效果,一般情况下,滑轮的宽度越宽,稳定性就越好,但滑轮宽度过宽,可能会增加滑轮与支架之间的摩擦力。
4.3 杆的长度杆的长度是指连接滑轮和支架的杆的长度,杆的长度会影响到起重滑轮的高度和使用范围,一般情况下,杆的长度越长,滑轮使用范围就越广,但杆的长度过长,可能会增加起重滑轮的重量和成本。
推荐轴承型号参考重量(kg)D D1Rb W fD2D3B WX120155636421111WX120260696621211WX120365756821312WX120470807021412WX220180907421620WX220285967821721WX2203901028221822WX2204951088621923WX3201951089021935WX32021001139422036WX320311012410222238WX320412013510322439.5WX420113014510622663WX420214015811022866WX420315017011623069WX420416018012223271WX520116018812842232108WX520217020213642234112WX520318021213642236113WX520419022514242238117WX620116018812842238138WX620217020213642240143WX620318021213642244144WX620419022514242248148WX720119022514842238253WX720220023515442240250WX720322026016842244277WX720424027818242248260WX820119022514842238350WX820220023515442240349WX820322026016842244379WX82042402781824224836150-5811201292291351101243-5090010522612398148009262210414821030-377108221992721223.5-3056065015735737-43819-23.54505211260461014-19355415105038滑轮代号钢丝绳直径d(mm)主要尺寸10-12280325737288推荐轴承型号参考重量(kg)D2D1Rb W fD2D3B wx125155636421114wx125260696621214wx125365756821315wx125470807021416wx225180907421625wx225285967821726wx2253901028221828wx2254951088621929wx3251951089021945wx32521001089422045wx325311011310222248wx325412013510622450wx425113014610622683wx425214015811022886wx425315017011623089wx425416018012223292wx525116018812842232144wx525217020213642234148wx525318021213642236149wx525419022514242238153wx625116018812842232184wx625217020213642234189wx625318021213642236190wx625419022514242238194wx725116022514842238358wx725217023515442240358wx725318026016842244386wx725419027818242248369wx825119022514842238458wx825220023515442240457wx825322026016842244489wx82542402781824224847250-5814001572291351101243-5012501402261299814100011262210414821030-3790010121992721223.5-3071080015735737-43819-23.55606311260461014-19450510105038滑轮代号钢丝绳直径d(mm)主要尺寸10-12355400737288推荐轴承型号参考重量(kg)D D1Rb W fD2D3B wx132155636421119wx132260696621219wx133365756821320wx133470807021420wx232180907421633wx232285967821735wx2323901028221836wx2324951088621939wx3321951089021960wx33221001139422061wx332311012410222264wx332412013510622466wx4321130146106226112wx4322140158110228115wx4323150170116230118wx4324160180122232122wx532116018812842232190wx532217020213642234195wx532318021213642236195wx532419022514242238199wx632116018812842232252wx632217020213642234257wx632318021213642236257wx632419022514242238259wx732119022514842238483wx732220023515442240486wx732322026016842244516wx732424027818242248504wx832119022514842238636wx832220023515442238641wx832322026016842240672wx83242402781824224466450-5818001972291351101243-5016001752261239814125013762210414821030-37112012321992721223.5-3090099015735737-43819-23.57107811260461014-19560620105038滑轮代号钢丝绳直径d(mm)主要尺寸10-12450495737288推荐轴承型号参考重量(kg)D D1Rb W fD2D3B wx125155636421114wx125260696621214wx125365756821315wx125470807021416wx225180907421625wx225285967821726wx2253901028221828wx2254951088621929wx3251951089021945wx32521001139422045wx325311012410222248wx325412013510622450wx425113014610622683wx425214015811022886wx425315017011623089wx425416018012223292wx525116018812842232144wx525217020213642234148wx525318021213642236149wx525419022514242238153wx625116018812842232184wx625217020213642234189wx625318021213642236190wx625419022514242238194wx725116022514842238358wx725217023515442240358wx725318026016842244386wx725419027818242248369wx825119022514842238458wx825220023515442240457wx825322026016842244489wx82542402781824224847250-5814001572291361101243-5012501402261239814100011262210414821030-3790010121992721223.5-3071080015735737-43819-23.55606311260461014-19450510105038滑轮代号钢丝绳直径d(mm)主要尺寸10-12355400737288推荐轴承型号参考重量(kg)D D1Rb W fD2D3B wx1201A 55658621111wx1202A 60708821211.5wx1203A 65759021312.5wx1204A 70809221413wx2201A 80909621620.5wx2202A 859510021721.5wx2203A 9010510821823.5wx2204A 9511011221924.5wx3201A 9511011421937wx3202A 10011511822038wx3203A 11012512822240wx3204A 12013013222441wx4201A 13014013422666wx4202A 14016013822869wx4203A 15017014423072wx4204A 16018015423274wx5201A 16019015642232111wx5202A 17020016442234116wx5203A 18022016442236116wx5204A 19022017042238121wx6201A 16019015642232141wx6202A 17020016442234147wx6203A 18022016442236147wx6204A 19022017042238152wx7201A 19022015642238255wx7202A 20024016442240254wx7203A 22026016442244282wx7204A 24028017042248260wx8201A 19022017242238352wx8202A 20024017842240353wx8203A 22026019642244384wx8204A2402802104224836350-5811201292291351101243-5090010522612398148009262210414821030-377108221992721223.5-3056065015735737-43819-23.54505211260451014-19355415105038滑轮代号钢丝绳直径d(mm)主要尺寸10-12280325737288推荐轴承型号参考重量(kg)D D1Rb W fD2D3B wx1251A 55658621114.5wx1252A 60708821214.5wx1253A 65759021316wx1254A 70809221416.5wx2251A 80909621626wx2252A 859510021727wx2253A 9010510821829wx2254A 9511011221930wx3251A 9511011421946wx3252A 10011511822047wx3253A 11012512822250wx3254A 12013013222452wx4251A 13014013422686wx4252A 14016013822888wx4253A 15017014423092wx4254A 16018015423295wx5251A 16019015642232147wx5252A 17020016442234152wx5253A 18022016442236152wx5254A 19022017042238157wx6251A 16019015642232187wx6252A 17020016442234193wx6253A 18022016442236193wx6254A 19022017042238198wx7251A 19022017242238360wx7252A 20024017842240362wx7253A 22026019642244391wx7254A 24028021042248371wx8251A 19022017242238461wx8252A 20024017842240461wx8253A 22026019642244494wx8254A2402802104224847550-5814001572291351101243-5012501402261239814100011262210414821030-3790010121992721223.5-3071080015735737-43819-23.55606311260461014-19450510105038滑轮代号钢丝绳直径d(mm)主要尺寸10-12355400737288推荐轴承型号参考重量(kg)D D1Rb W fD2D3B wx1281A 55658621116.5wx1282A 60708821216.5wx1283A 65759021318wx1284A 70809221418.5wx2281A 80909621630wx2282A 859510021731wx2283A 9010510821832wx2284A 9511011221934wx3281A 9511011421953wx3282A 10011511822054wx3283A 11012512822257wx3284A 12013013222458wx4281A 13014013422699wx4282A 140160138228101wx4283A 150170144230105wx4284A 160180154232109wx5281A 16019015642232166wx5282A 17020016442234173wx5283A 18022016442236172wx5284A 19022017042238177wx6281A 16019015642232219wx6282A 17020016442234224wx6283A 18022016442236224wx6284A 19022017042238230wx7281A 19022017242238411wx7282A 20024017842240414wx7283A 22026019642244444wx7284A 24028021042248427wx8281A 19022017242238546wx8282A 20024017842240551wx8283A 22026019642244582wx8284A2402802104224857050-5816001772291351101243-5014001552261239814112012462210414821030-37100011121992721223.5-3080089015735737-43819-23.56307011260461014-19500560105038滑轮代号钢丝绳直径d(mm)主要尺寸10-12400445737288推荐轴承型号参考重量(kg)D D1Rb W fD2D3B wx1321A 55658621119wx1322A 60708821219.5wx1323A 65759021321wx1324A 70809221421wx2321A 80909621634wx2322A 859510021736wx2323A 9010510821837wx2324A 9511011221940wx3321A 9511011421961wx3322A 10011511822063wx3323A 11012512822266wx3324A 12013013222467wx4321A 130140134226114wx4322A 140160138228117wx4323A 150170144230121wx4324A 160180154232125wx5321A 16019015642232193wx5322A 17020016442234199wx5323A 18022016442236199wx5324A 19022017042238203wx6321A 16019015642232255wx6322A 17020016442234261wx6323A 18022016442236260wx6324A 19022017042238263wx7321A 19022017242238485wx7322A 20024017842240490wx7323A 22026019642244521wx7324A 24028021042248506wx8321A 19022017242238638wx8322A 20024017842240645wx8323A 22026019642244677wx8324A2402802104224866650-5818001972291351101243-50160017522612398141125013762210441821030-37112012321992721223.5-3090099015735737-43819-23.57107811260461014-19560620105038滑轮代号钢丝绳直径d(mm)主要尺寸10-12450495737288。