配料防错系统项目改造方案
- 格式:doc
- 大小:88.50 KB
- 文档页数:5
2010.No.11我单位有2000t/d 生产线,其生料入窑喂料系统由德国申克公司DLD 固体流量计、计量校正仓和电动流量阀门等组成,1992年投入运行。
入磨熟料配料采用3台深圳科尔达公司的DEL-1020型定量给料机,该秤采用弯梁式传感器及秤体尾轮加装光电编码器测量皮带速度方式,2002年投入运行。
在生产中,我们针对性地对这两套计控系统进行了改进,以保证生产的正常运行。
1生料DLD 固体流量计系统1.1校正仓阀门的控制在原控制系统中,FCO431仪表控制系统根据计量仓仓重信号输出4~20mA 信号,去控制料仓的加料阀门开度,以稳定料仓的料位,保证固体流量计计量精度。
阀门由DIW-25双向可控硅去控制电动机开停,由于厂家调试人员对FCO431仪表中参数调整不太合理(主要是仪表控制仓侧阀门开度参数),使得双向可控硅动作频繁,运行半年后,双向可控硅烧坏。
此可控硅价格昂贵,且无备件,因生产的需要,我们采用西门子接触器按电动机正反转的接法对可控硅进行替代,在接触器线圈并联加装阻容保护电路,防止线圈受冲击,同时调整FCO431仪表中控制仓侧阀门参数,使接触器在合理范围内动作,并定期更换接触器,此方法一直延续至今。
同时,对生料库侧阀门控制方式也进行了相同的改造。
1.2阀门限位开关的改进仓侧阀门和库侧阀门电气限位均采用凸轮压式开关,因现场粉尘较大,密封不好,经常造成限位开关触点不通,影响阀门正常开关。
我们采用接近开关替代机械式开关,即在阀门转轴上安装空心尼龙棒,钻眼攻丝,固定2个螺栓,螺栓夹角为100°(阀门最大开度),其结构示意见图1。
当阀门带动螺栓转动与接近开关平行时,调整接近开关与螺栓距离为5mm,接近开关断开,并将接近开关接入电气控制回路中,将阀门控制在0~100°之间。
通过使用接近开关替代机械压式开关,阀门控制故障率大大降低。
图1阀门限位开关的结构示意1.3控制仪表与DCS 系统的通讯控制系统中,FCO431仪表与远程控制器采用串行接口通讯,操作员通过远程控制器可以操作喂料系统,包括设定流量、反馈流量、故障报警和开停设备等。
自动化配料系统策划书一、自动化配料系统简介1.自动化配料系统是指采用自动传输机械设备和计算机检测技术实现自动化配料的技术方案。
该系统可以实现配料材料的自动化采集、测量、计量和对多种配料材料进行自动搅拌到可能进行其他加工步骤。
2.自动化配料系统包括自动采集系统、自动计量控制系统、自动搅拌系统等。
它可以满足业界对便捷操作、节省时间、提高工作效率等方面的要求。
二、自动化配料系统的原理1.基于计算机技术的机电一体化开发技术,可以实现对自动化配料系统的完全控制和管理。
2.使用各种电子控制元件和传感器,将采集的信号和控制信号转换成可控的触发信号,使各部分功能块达到最佳效果,以此实现自动化配料系统检测、采集和调整输出。
三、自动化配料系统功能与特点1.自动化配料系统具备完善的可操作性能,可以满足客户的要求。
2.自动采集系统,可以实现对多种物料进行自动采集,精确调整物料量,确保配料效果。
3.计量控制系统,可以实现自动检测及智能控制,实现对物料计量的智能化调整。
4.自动搅拌系统,设备的搅拌方式多样,具有稳定的性能,可以自动控制物料搅拌,确保物料搅拌效果。
四、自动化配料系统应用领域1.食品制造行业:自动化配料系统可以用于食品生产过程中配料过程,可以保证物料的密度和配比以保证生产的质量。
2.饮料酿造行业:针对饮料酿造行业,自动化配料系统可以用于精确量化模拟物料的搭配,节省酿造费用以及保证搭配的稳定性和可控性。
3.医药业:自动化配料系统在医药领域应用较多,可以精确控制药物组份、密度和组成,以此来确保药物质量及保证人体健康。
五、自动化配料系统发展前景1.配料技术的发展急剧,以及致力于提高生产效率的发展,自动化配料系统发展前景广阔。
2.随着生产企业不断完善自动化配料系统,自动化配料系统未来将会得到更多应用,自动化配料系统将会把生产效率提高到前所未有的水平。
3.由于自动化配料系统可以降低人工开销,大大提高了运行效率,未来自动化配料系统将会是市场上重要的产品。
制药行业配料称重系统方案——智能制造/营销部海得控制可以为客户提供制药工艺各个工序的配料称重解决方案,包括:配料、配液、物料管理、物料分装,成品检重等环节。
构建高安全、质量和生产效率的制药行业解决方案。
一、配料系统介绍原辅料配料系统根据制药生产工艺规程,将原辅料按一定比例混合在一起;是针对一种或者多种物料按预先设定好的值和误差进行加料和放料的过程。
配料工艺要求无粉尘,可复核可追溯,并最大限度地降低粉体物料转运过程中污染、交叉污染以及混淆、差错等风险。
1、配料工艺路径:2、配料称重系统:3、自动配料称重系统1)按制药生产配方自动进行配料2)全过程密闭执行3)电子记录配料过程数据4)自动生成配料报告,实现物料正反向追踪4、手动配料称重系统1)称重及配料程序按照GMP要求进行2)条码标签扫描防止用错材料3)生成符合要求的称重报告二、系统结构与信息流程1、制药称重自动化系统海得e-Control PLC控制器通过串口总线协议与电子称重仪器、条码扫描仪、变频器等设备连接,PLC出厂预设程序或netSCADA组态软件自带的电子秤驱动包括:1)Mettler SICS(梅特勒);Mettler Toledo(梅特勒托利多) Terminals ID1,ID2,ID3, ID5, ID7, GD12 using the MMR protocol;2)Sartorius (赛多利斯)XBPI and MP8 using the xBPI protocol。
2、举例:中药称重系统电子记录当配料通过条形码识别器被添加进去时,中药称重系统会自动查找产品资源和可用原材料之间的关系。
它也会为每一个批处理过程产生唯一的识别数量,并投放相应数量的带条形码的配料。
当配料添加进来时,它们会被通过条形码扫描器扫描和确认。
中药称重系统采用电子记录的最大优点就是它不允许无序操作,减少了人为错误发生的机率。
三、netSCADA 配料称重系统主要功能1、统计与质量控制提供配置灵活的统计报表功能,包括基本报表和MES报名,采用独特的技术方案有效的解决了复杂的SQL查询,多维数据建模等问题。
药材配料称量防错系统药材配料称量防错系统广泛应用于对产品的质量进行追溯的生产性企业,如医药、生物科技、食品、化工、橡胶、塑料、饲料等行业,实现小料配料的智能化、网络化管理,使成品和原料可进行双向追溯,生产决策与生产控制无缝衔接,提高生产执行力,提高实时准确的生产数据作为管理者决策的依据,预防质量事故的发生系统概述:配料称量防错系统在借鉴国外化工制品企业的生产工艺基础上,将原料库存管理、配方管理、配料称量融为一体,采用条形码识别、机电、计算机接口等技术自主开发完成配料称量与库存管理系统,防止配料中出现异物品,确保称量精度,使每批配料都有记录可追溯,并在原料出库时遵循先进先出原则,有效解决了在配料工序操作上的人为因素影响。
系统已通过多家著名汽车制造商的审核并在其配套企业中使用。
系统特征:1、原料先进先出控制。
使用条形码系统对原料进行库存管理,可以大大提高工作效率,减少错误的发生。
原料出库时遵循先进先出原则,配料称量成功后系统自动登记原料出库2、配方登录管理。
将每种配方都登录到计算机中,配料称量前只需调取配方编号即可,并可根据需要设定一周内的生产计划,以便跟踪配料的完成情况3、防止异物品。
通过指示灯提示操作工人原料所在仓位,并在称量前使用扫描枪检测原料是否正确、是否遵循先进先出的原则、是否过质保期,当出现上述错误时亮红色警报灯,并且不能进行下步操作。
4、确保称量精度。
采用两种或多种规格的电子秤,可以获得不同的分辨精度,分别用来称量主原料和辅助药品。
称量过程中,只有在公差范围内才能对下个原料进行称量。
5、配料记录可追溯性。
每个配方配料成功后,系统保存详细的配料记录,包括:每种原料的批号、实际称量值、公差、配料时间、配料人等。
并可选择打印配料标识卡。
6、操作简便。
即使对于无专业技能人员,也能按屏幕上出现的信息进行操作,从而获得准确的称重和操作效率。
系统组成:电脑配料终端PLC柜显示器平台秤无线扫描枪自动给料转盘原料防错称量不锈钢料桶系统优点1、防错功能:避免少配、漏配、称量不准等人为因素,确保称量准确。
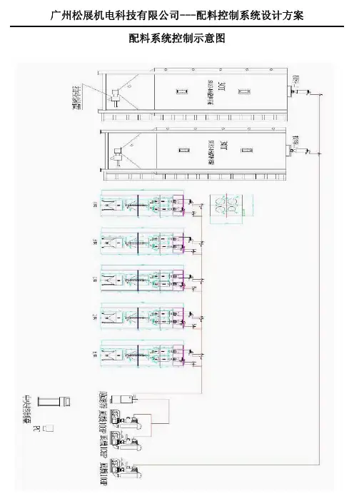
广州松展机电科技有限公司---配料控制系统设计方案配料系统控制示意图控制要求1.配料种类为4种粉体原料。
2.最大配料100KG(120KGmax),误差±100G。
3.有手自动控制功能,正常工作为自动功能由计算机完成控制 。
当计算机出现异常时由电子秤 独立完成控制(通过选择手动开关控制)。
4.各条配料生产现由中央控制台负责监控配料生产,若产线发生异常现象,可由中央控制台调 配其它生产线生产。
5.现埸有工作状态指示灯提示工作人员进行操作或异常排除配料控制系统方案说明※系统组成:此系统规划采中央控制,独立生产线规划,所有配方及数据透过以太网络储存于中控室计算机中,并由现场中央控制台负责所有配方数据传输及当日生产纪录收集,并统一调配生产线的进料控制。
各生产线为独立模块,可依照客户需求做不同规划,并加大其扩充性能。
※系统组成方块图:7.各条生产线透过手动/自动切换,并向中央控制台申请手动控制授权后,方可由专门维修人员作手动操作。
各生产配料控制电柜配有手动操作按钮5.台申请补料,并由中央控制台授权确认后,方可开启 补料阀门开始动作。
6.各条生产线为独立运作,不会互相引响。
动配料。
仪表重量讯息透过RS485传送到PLC 。
3.配料系统采减重式控制,配料时,四种物料同时落入 搅拌槽中。
4.计量完成时,由PLC 控制搅拌及落料程序。
搅拌完成 后,由三色警示灯通之操作人员做放泄阀门开启确 认,以防止误操作。
及指示灯。
可完全由现场手动操作配料。
配料生产线电气控制原理流程图※ 配料生产线配置说明:1.每条生产线配置4个储料槽,每个储料槽配置3只秤 重传感器(100KG),感测各储槽原料的重量。
2.各储料槽重量由秤重仪表显示,并可透过仪表作手※中央控制台配置说明:1.中央控制台由一10.4吋HMI及PLC所组成。
透过RS485通讯接口与各配料生产线作信息交换及生产监控,全中文图形化接口。
并设置密码保护,防止非相关人员操作。
加料系统智能改造实施方案一、项目背景。
随着科技的不断发展,加料系统在工业生产中扮演着越来越重要的角色。
然而,传统的加料系统存在着诸多问题,如操作复杂、效率低下、精准度不高等,已不能满足现代化生产的需求。
因此,对加料系统进行智能改造已成为当前迫切需要解决的问题之一。
二、改造目标。
1. 提高加料系统的智能化水平,实现自动化操作;2. 提升加料系统的精准度和稳定性,减少人为干预;3. 优化加料系统的工作效率,提高生产效益。
三、改造方案。
1. 引入先进的传感技术,实现对原料的实时监测和控制,确保加料的精准度;2. 配备智能化控制系统,实现加料过程的自动化操作,减少人为干预,提高工作效率;3. 采用先进的数据分析算法,对加料系统进行智能优化,提升系统稳定性;4. 结合物联网技术,实现对加料系统的远程监控和管理,提高生产管理的便利性和效率。
四、实施步骤。
1. 确定改造计划,明确改造目标和时间节点;2. 进行现有加料系统的全面评估,找出存在的问题和瓶颈;3. 选取合适的传感技术和智能化控制系统,进行系统升级;4. 开展数据分析算法的研究和优化工作,提升系统稳定性;5. 结合物联网技术,建立远程监控平台,实现对加料系统的远程管理;6. 进行系统测试和调试,确保改造后的加料系统能够稳定运行。
五、预期效果。
1. 加料系统的智能化水平得到显著提升,实现自动化操作;2. 加料精准度和稳定性得到大幅提高,减少人为干预;3. 加料系统的工作效率得到明显提升,生产效益得到提高。
六、总结。
通过对加料系统进行智能改造实施方案的研究和实施,可以有效提高加料系统的智能化水平和工作效率,实现生产过程的智能化和自动化,为企业的生产管理带来显著的效益和价值。
希望本文提出的改造方案能够为相关企业在加料系统智能改造方面提供一定的参考和借鉴。
称重自动配料系统规划方案随着科学技术的不断发展以及工业制造业的大力发展,无论是在生产、加工或是销售等方面,都对于装配线、生产线以及配料系统提出了更高的要求。
针对传统人工配料方式,由于其低效、易出错、不稳定性等问题,逐渐被人们所淘汰。
为了更好地适应市场的需求以及提高自身竞争力,我们计划开发一款称重自动配料系统。
本文将从计划、需求、功能模块和系统架构等方面进行详细讲述。
1. 计划为了更好地实施称重自动配料系统,并使其能够顺利地运营,我们将会遵循以下计划:1.1 确定团队成员及各自职责。
团队成员包括负责人、设计师、系统工程师、软件工程师、测试工程师、运维工程师等。
1.2 制定时间表,明确开发周期以及各个阶段时间节点。
1.3 确立开发预算,包括硬件、软件成本以及劳动力成本等。
1.4 确定开发环境及所需设备。
2. 需求2.1 硬件需求对于硬件方面,称重自动配料系统需要使用称重传感器、PLC、伺服电机、气动执行器等设备,同时还需要配备计算机控制系统。
2.2 软件需求系统需要使用的软件包括系统控制软件、数据库软件、人机交互软件等。
2.3 功能需求系统需要实现以下功能:2.3.1 自动化调配原材料,实现配方自动配比、称重。
2.3.2 可以进行在线监测,保证生产质量。
2.3.3 可以实现数据共享并提供分析,可以实现数据历史查询并输出报表。
3. 功能模块为了实现上述需求,系统需要包含以下功能模块:3.1 数据采集模块:该模块用于采集机器传感器的称重数据,同时也可以实现其他数据的采集。
3.2 数据处理模块:该模块用于处理采集到的数据,保证数据质量及准确性,支持数据分析等功能。
3.3 控制逻辑模块:该模块用于控制系统与用户之间的交互,通过人机交互界面实现用户对系统的控制与辅助。
3.4 数据存储模块:该模块用于存储系统采集到的数据,并按照时间顺序存储。
4. 系统架构4.1 硬件架构硬件架构主要由计算机、PLC、称重传感器、气动执行器、伺服电机等设备组成,计算机作为控制系统的核心控制装置,通过PLC来与气动执行器、伺服电机进行通信;称重传感器则是系统中不可或缺的重要部件。
防错改善案例总结摘要本文总结了一些防错改善案例,通过对这些案例的分析,我们可以了解到在工作中存在的问题和隐患,并提出相应的改善方案,以减少错误和提高工作效率。
1. 案例一:生产线上的设备故障导致生产停工1.1 问题描述在某工厂的生产线上,设备故障频繁发生,导致生产不稳定,甚至停工。
经过调查,发现故障主要是由于设备未及时维护和保养导致的。
1.2 改善方案•定期维护和保养设备,确保设备的正常运行。
•建立设备故障报警系统,及时发现并解决设备故障。
•增加设备备件库存,以备紧急情况下的更换。
•培训操作人员,提高他们对设备故障的识别和解决能力。
2. 案例二:人为错误导致的产品质量问题2.1 问题描述在某食品加工厂,由于操作人员的疏忽和不符合标准的操作,导致产品质量下降,严重影响了企业的声誉和销售。
2.2 改善方案•强化操作人员培训,确保其理解并遵守操作规范。
•定期进行产品质量检查和抽样检验,对不合格品进行处理和追溯。
•建立质量管理团队,负责监督和改进产品质量。
•提供操作指南和检查清单,帮助操作人员正确操作。
3. 案例三:信息系统漏洞导致的安全问题3.1 问题描述某公司的信息系统存在漏洞,导致公司的重要数据被泄露,给公司带来了巨大的损失。
3.2 改善方案•更新信息系统软件和补丁,修复已知漏洞。
•建立网络安全团队,负责监督和改进网络安全。
•定期进行安全漏洞评估和渗透测试,发现和修复潜在的安全问题。
•加强员工的信息安全意识培训,提高他们对信息安全的重视程度。
4. 案例四:项目管理不善导致的进度延误和成本超支4.1 问题描述某公司的项目经常出现进度延误和成本超支的情况,给公司带来了巨大的经济损失。
4.2 改善方案•制定详细的项目计划,包括任务分解、里程碑和关键路径的确定。
•设立项目管理团队,负责项目的进度和成本控制。
•建立项目监控系统,实时追踪和监测项目进展情况。
•定期进行项目评估和总结,总结经验教训,并对项目管理流程进行改进。
错混料改善专案报告一、引言在工业生产中,错混料是指在生产过程中发生的原料错误混入以及产品错误混装的现象。
这种错误会导致产品质量下降,增加生产成本,并且可能对消费者造成影响。
为了解决这一问题,本报告将提出一份错混料改善专案报告,旨在通过改善管理和生产流程,减少错混料的发生,提升产品质量和生产效率。
二、问题分析1. 错混料的原因分析错混料的原因可以归结为以下几点:a) 人为因素:操作失误、操作疏忽等人为因素是造成错混料的一个主要原因。
b) 设备故障:设备故障可能导致原料的错误混入或产品的错误装配。
c) 操作流程不合理:流程设计不合理或流程执行不规范也可能导致错混料的发生。
2. 错混料造成的影响错混料对企业和消费者都会造成一定的影响:a) 产品质量下降:错混料会导致产品的配比错误,从而降低产品的质量和性能。
b) 增加生产成本:错混料会导致废品的产生,增加了生产成本。
c) 影响客户满意度:错混料会降低产品的可靠性和稳定性,从而影响客户的满意度和忠诚度。
三、解决方案1. 强化员工培训通过提供全面、系统和专业的培训,提高员工的操作技能和操作意识,减少操作失误和疏忽所带来的错混料风险。
具体措施包括:a) 建立培训计划:制定培训计划,包括理论培训和实践操作培训,确保员工全面掌握正确的操作流程。
b) 培训宣传:通过内部宣传和培训推广活动,提高员工对培训的重视和参与度。
c) 定期考核:定期对员工进行考核,对培训效果进行评估,并提供相应的奖惩措施。
2. 设备维护和监控保持设备的正常运转和良好状态对减少错混料至关重要,具体措施包括:a) 定期检修:确保设备的正常运转,及时发现和修复潜在的故障点,减少设备故障导致的错混料。
b) 设备监测:引入监测系统,对设备的运行状态进行实时监测,及时发现异常情况并采取相应措施。
3. 流程优化对操作流程进行优化,以减少错混料的发生:a) 标准化操作:制定详细的操作规程和作业指导书,确保操作的一致性和规范性。
配料防错系统介绍星火包装设备有限公司2011-08-17系统实际硬件配置以合同签订配置为准系统基本操作流程• 1.下达配料任务,通过数据主机下达配料产品种类、计划配料量。
通过数据主机两人两次确认来输入使用那个投料设备,保证投料设备选用正确。
• 2.配料人员选择准备要称料的配料任务后根据系统提示的辅料用量称量,当电子秤显示数值在理论用量范围内时,进行身份验证后系统打印出辅料投料标签。
• 3.投料人员将辅料运送到投料区域,通过现场PLC电柜的二维码扫描枪扫描辅料上的辅料投料标签同时验证投料人身份后现场操作屏显示在那个设备投料,同时相应投料设备的投料口开启、指示灯亮。
现场设备分配情况加香区:所有罐配电磁锁、指示灯、接近开关PLC系统包括:24V、5V开关电源,PLC模块一套, 手持二维码扫描器,指纹机(ID卡机),电气柜:配料区配料区:混料机、加酸罐等配电磁锁、指示灯、接近开关 PLC系统包括:24V、5V开关电源,PLC模块一套, 手持二维码扫描器,指纹机(ID卡机),电气柜现场设备分配情况称重区:称重区:全防护工业计算机一台,电子秤一台,手持二维码扫描器一台,指纹机(ID卡机)一个,二维码打印机一台, (可选配:智能香精柜系统一套)数据主机:研华工控机一台,指纹机(ID卡机)一个, 网络交换机一个,报表打印机一台主要监控点1.为了防止生产任务中使用的配料设备、加香罐等初始信息录入出现人为失误,此系统在配料设备、加香罐信息录入时采用双人二次确认,即通过两个不同操作员互相看不到对方的输入信息情况下各输入一次配料设备信息,只有两人输入的信息完全一致才会使该生产任务的配料设备信息录入系统。
主要监控点2.在生产任务下达后,系统根据生产任务中的产品类型和计划产量自动列出该任务所需的所有辅料列表和各辅料的数量,操作员根据系统提示,选择称量哪种辅料,该辅料的理论用量自动显示在屏幕上,辅料有条码的系统不提供手动选择功能,只能使用扫描枪扫描输入辅料名称,防止拿错辅料,没有条码的辅料才可以手动选择辅料。
mes防错料系统方案书一、背景介绍随着制造业的发展,企业追求更高的产品质量和生产效率已成为当务之急。
然而,由于人为因素或系统缺陷等原因,生产过程中常常会出现错料问题,导致损失和延误。
为了解决这一问题,本文提出了MES防错料系统方案。
二、系统目标本系统的目标是:1. 提高制造企业的生产效率和产品质量;2. 减少错料导致的资源浪费和生产延误;3. 实现自动化管理和数据追溯。
三、系统设计1. 系统架构MES防错料系统由以下模块组成:- 条码扫描模块:用于扫描原材料或零部件条码,获取相关信息。
- 数据库模块:存储和管理扫描得到的条码信息。
- 逻辑判断模块:通过与企业内部数据库进行比对,判断是否为正确的材料或零部件。
- 报警模块:在发现错误情况时,及时向负责人发送报警信息。
- 数据追溯模块:记录每一次扫码信息,以便后期查询和分析。
2. 系统流程- 步骤一:原材料或零部件到货后进行条码扫描。
- 步骤二:条码信息与企业内部数据库进行比对。
- 步骤三:根据比对结果,判断是否为正确的材料或零部件。
- 步骤四:如果判断为错误材料或零部件,发出报警信息。
- 步骤五:扫码信息存入数据库。
- 步骤六:记录并分析扫码数据,为后期优化提供参考。
四、系统优势1. 自动化管理:通过条码扫描和数据库管理,实现了材料和零部件的自动化管理,减少人为错误。
2. 即时报警:系统能够及时发出报警信息,让负责人能够迅速采取措施,避免错误材料或零部件进入生产线。
3. 数据追溯:每一次扫码信息都会被记录并存储,方便后期查询和分析,为企业提供数据支持。
4. 效率提升:减少人为错误和错料问题,提高了生产效率和产品质量,降低资源浪费和生产延误的风险。
五、系统实施计划1. 需求分析:与企业相关部门进行需求沟通,明确系统功能和操作流程。
2. 系统开发:开发人员根据需求进行系统架构设计和编码实现。
3. 系统测试:进行系统功能测试和用户验收测试,确保系统正常运行。
饲料配料系统流程及改造方案
一、供料系统:
假设配料秤称量为300kg,由AB两种物料组成,设A种配方为150kg,B种为80kg,当A种物料预置点设置为150kg,按启动,螺旋供料电机开始工作,当达到设定的预置点时,A种物料电机停止工作。
B种物料电机开始运行,直到达到B 种物料预置点,电机才开始停止工作,整个配料过程完成。
二、卸料系统
通过PLC编程,配料完工,卸料开始工作。
那么在什么情况下,配料秤的物料可以往混合机投料。
1、混合机下料阀必须关闭,且料位开关处于报警状态,同时混合电机是不运行的。
2、时间延时设定,以混合机一斗料全部放完且混合机下限料位开关红色报警灯亮时为准。
3、混合机输送带只有在防堵器料位开关报警灯亮时才停止工作,反之是不停的工作。
例析生产线配料系统改造1 概况上海梅山钢铁股份有限公司磁性材料厂(以下简称“磁材厂”)2万吨预烧料生产线是以热轧铁鳞为主要原料,通过烘干、氧化、配料、球磨、烧结、冷却等工艺生产铁氧体磁性材料。
配料系统主要由料仓、控制阀门、称重传感器、输送螺旋、输送皮带等主要设备构成,主要功能是完成原料与小辅料配比过程,配料系统稳定性和配料精度,是影响产品质量好坏的关键控制环节。
2 配料系统现状及精度偏差原因分析从2013年6月份开始,配料系统料仓出现下料不畅,且精度出现较大偏差,每个班次都会出现几组配料不合格,经过数据收集与分析,配料准确率只有91%,对产品质量有很大的影响。
通过对配料过程各个环节现场检查和设备厂家技术指导分析,确定配料系统出现偏差主要有以下原因:1)钢平台的刚性不足,钢梁变形较大,在配料过程中随着配料量的增加,配料精度偏差加大。
2)配料钢结构平台与主厂房钢结构相连,未独立分开,由于配料系统精度要求较高,其它设备振动会影响配料精度。
3)所用配料秤量程是实际料量的2倍,对于计量较少的物料存在精度不足。
4)小辅料配料输送螺旋受场地空间限制,选型长度较短,在配料过程中会出现冲料,影响配料精度。
5)配料料仓下料口为方形口,易出现下料不畅,造成料量不稳,影响配料精度。
3 解决方案与施工难点(一)解决方案:原配料系统设备安装在厂房钢结构上,而且小辅料配料精度要求较高,其它设备振动对配料精度有很大影响。
为彻底解决振动干扰,必须重新浇筑基础,安装钢结构,将配料设备安装在新建钢结构上,形成独立的配料系统,阻断振动传递路径。
经过多次现场勘验及方案论证,针对问题产生原因,形成了一套切实可行的的解决方案:1)为消除钢梁变形和其它设备振动对配料精度的影响,重新浇筑混凝土基础,安装钢结构配料平台,将配料秤等设备安装在新建钢结构平台上,脱离与厂房钢结构连接,彻底消除其它设备对配料精度的干扰。
2)根据计量设备选用标准,选用与实际料量相匹配的配料秤,更换现用配料秤。
防错料系统方案书MES防错料系统方案书一.来料管理1.客户信息建立A.客户名称B.客户代码等(新客户自动生成代码)2.BOM信息维护A.BOM信息属于哪个客户(选择客户代码)B.归档日期,产品名称,ECNC.手工上传BOM到系统(支持固定格式,自动解析,并保存BOM信息)D.报表(可根据客户代码查询到所有生产过的BOM信息等)E.备注:BOM文档的命名规则需要规范,支持固定的EXCEL或TXT格式维护3.物料入库A.来料属于哪个客户公司(选择客户代码)B.来料属于哪个产品(选择BOM,ECN,对应产品名称等)C.选择AB项后,查找到BOM的系统信息记录D.根据料号入库,输入来料最小包装量以及盘数(包数),批量生成自有条码E.给所有来料盘(包)都贴上自有条码4.剪料(分料)A.扫描料盘(或包)自有条码,自动显示物料信息(客户,BOM,料号等)B.填写分料数量,自动生成新的自有条码C.新条码贴到新分料盘二.产线物料防错1.料栈表管理A.选择客户代码,带出BOM,ECN信息B.选择BOM,ECN,产品信息等C.料栈表上传(固定格式,每次料栈表更新后,都需要重新上传)D.根据料栈表名,或者客户代码,BOM,可检索到料栈表信息E.建议增加料栈表和BOM的信息比较功能,防止料栈表出错2.产线工单A.选择产线B.选择料栈表,预定生产时间,进行绑定(料栈表必须已经上传)C.生产过程中更换料栈表或者生产结束后可进行解绑,然后重新绑定D.仓库根据派单信息进行备料和发料3.PDA上料防错A.给所有的SMT栈位都贴上条码,条码名和料栈表中料栈名规则必须一致B.机台电脑--选择线别,自动显示所有栈位料号C.操作员PDA上料,扫流水号条码以及SMT线别条码,栈位条码D.所有栈位上料检查PASS后,开始生产E.生产过程中接料必须扫描三.硬件需求1.仓库增加条码打印机以及普通电脑一台,手持扫描枪1-2把2.每条产线增加显示电脑一台(或者大电视)3.每条产线增加无线PDA设备一台4.增设普通服务器一台用于系统安装四.数据库表的简单设计1. custmon:ID,name,custmon_code2. bom_ecn: ID, custmon_id, created_time,bom_name,product_name,ecn。
化工配料防错机制
在化工生产中,防错机制是非常重要的,它有助于避免因为错误操作或错误使用配料而引发的安全问题和产品质量问题。
以下是一些化工配料防错机制的常见做法:
1.标签和标识:每种化学品都应该有明确的标签和标识,包括化学名称、CAS号码、危险性符号、安全操作说明等信息。
这有助于工作人员正确辨认和使用化学品。
2.颜色编码:可以使用颜色编码系统,将不同种类的化学品用不同颜色的容器或标签进行标识,帮助人员快速识别。
3.专用容器:将不同的化学品存放在专用容器中,以减少混淆的可能性。
容器上应有清晰的标识和说明。
4.工艺流程控制:在生产过程中,通过控制系统确保配料的正确投放,可以使用自动化系统来减少人为错误。
5.培训和教育:对工作人员进行充分的培训,使其了解各种化学品的性质、用途和安全操作规程,从而降低错误的可能性。
6.工作程序和检查:制定明确的工作程序,包括正确的配料顺序和操作步骤,并设立检查点确保操作的准确性。
7.使用辅助工具:使用辅助工具,例如计量设备、防溢漏装置等,以确保准确投放和防止配料泄漏。
8.双重确认:重要的配料投放步骤可以采用双重确认机制,确保多个工作人员确认操作的准确性。
配料防错系统项目改造方案
配料防错系统改造方案 S7-200系列
一、引言
考虑自动工厂、手动工厂、半自动工厂的不同情况。
手动工厂预处理各个模块不能联网,全部单独使用,各步骤必须单独使用。
根据工厂的实际情况,防错系统需满足以下几个方面,分别是库存管理、配方监控、精确称量、精确投料和报表自动生成五个方面。
改造后可以实现以下几个功能:
1、激光扫描枪识别条形码并上传给工控机进行产品确认。
2、电子秤与工控机联网实时读取并上传给工控机称重数据与配方对比。
最大量程50kg
或100kg(根据实际称重需求),精度正负0.1g。
3、工业中控机1套,配备防尘、防腐、防水电柜1套,外部涂有绝缘漆,并且有工业
键盘、显示屏摆放口,内有电柜具有端子排、接线柱、风扇、绝缘板等设施。
4、配料罐罐口设电子锁,无授权人员不能打开灌口
5、激光扫描枪识别条形码,打印机即可打印条码又可打印报表功能。
6、每天工作时间:24小时/天
7、适用车间温度:5-40℃。
二、框图
三、施工方案
○库存管理:
1、库存预警机制设立:生产计划所需原料的品项、数量与车间原料库存自动校对,对相应原料的需求数量全部列出,可以自动生产与供应库房的原料打料单;
2、入库管理:各种辅料如香精、小料、色素、菌种、白糖等要有各自的条码,此条码既可以由辅料厂家统一提供,也可以由防错系统厂家进行编写提供,统一由激光扫描枪进行确认。
激光扫描枪和电脑进行无线连接,当对一种辅料进行扫描时,有指示灯进行提示,防止辅料放错地方,避免为后续工作带来麻烦。
并且可以输入辅料放入的重量,进行库存管理。
库存根据每次入库、配料用量自动算出当前的库存量,同时具备盘点功能,以便不定期盘点库存情况。
○配方监控
1、配方管理:配方预设在管理系统中并设定管理权限,配料工进行称料操作时在确认生产任务后,会自动将配方要求中全部物料品种、代码和所需量自动排列出来,同时对称料过程的品种、数量、容许误差实施系统控制,实现防错纠偏,通过系统符合确认才能打印出二维码标签并粘贴在对应的物料上(此二维码标签已经记录物料品种、数量、生产品项、生产罐号、下步投料口位置、时间等);
2、配方执行控制:操作工在电脑桌面上创建配料任务时,在配方栏目进行选择,将事先输入的配方调出,根据配料量能够自动显示配方中各种辅料的代码,自动计算添加量,自动确认添加次序,并且在整个称量过程中自动记录重量、品种、次序,如果其中一项不符合配方要求,配料过程将不能向下进行,一直到合格为止。
○精确称量
高精度的电子称和电脑相连接,每次称量时有自动去皮和手动去皮两种选择,使称量更加精确,称量的信息第一时间输入电脑,在称量前要根据辅料的种类选择误差值,此误差值由操作工确认,对称重量较少的辅料如色素,要精确到0.1克,误差值也可以设定为±0.1克,可以保证辅料的添加量更精确,同时记录下称量信息。
○精确投料
各种辅料称量选择齐全后,要进行下一步罐口添加,此项为控制的最后关键点,将称量好的辅料在罐口添加前要有必要的再次确认,一般情况下,要有锁和指示灯进行控制,需要添加时,指示灯亮,锁自动打开,但此环节也有错误情况,例如同时配几个品种时,就不清楚向哪个罐内添加,需要增加一套控制环节,当超过两种料配完需要投放的情况下,避免操作工投错罐。
操作工在添加时,要在罐口处按一下按钮,按钮信号同系统中的配方一致时,罐口的锁才能自动打开;不一致时,锁不打开,使配方和罐口得到有效控制。
○报表自动生成:
1、投料完毕后系统会自动生成领料表且与打印机连接直接进行打印;
2、系统会记录每次打料与领料数量并作出统计,最后生成原料当班耗用及结存报
表,每班上交办公室进行保存;
3、系统自动保存每次投料的数量,批次,投料时间,以及投料口,有助于原料的追溯;
4、系统自动对每一个班次的配料物料进行结存,对所有物料的领用及超耗情况都
有一个详细的数据记录。
一、系统组成
注:以上配置更具工厂实际配置情况进行变更
二、供货
1.自合同签订后一个月内到货。
2.客户现场交货。
3.负责包装运输。
4.负责安装调试。
每套防错系统工程的施工工期为15个工作日,我公司将尽量提前完成。
三、售后服务
1培训使用人员和系统维护员。
2所有部件非人为损坏,保修一年。
提供一年免费保养、维修服务;
3提供终身维护服务。
保修期后收取材料成本及人工等费用。
4提供免费咨询。
5可以根据客户要求增加功能,费用另议。
6客户要求,可24小时内到达现场。
四、技术支持
我公司在系统调试交接后,将提供完整的完工图纸,软、硬件文档,操作、维护手册,设备清单等,并帮助建立系统的运行、管理和维护文档,以便在发生故障时能及时提供资料,迅速找到并排除故障。
五、投标报价表
项目名称:配料防错系统
投标总价:
投标单位:(盖章)包头市鼎业机电科技有限公司
法人授权代表:(签字)
日期:年月日。