二类汽车修理厂规划图及配置表
- 格式:docx
- 大小:460.22 KB
- 文档页数:5
二类汽车维修1、有与其经营业务相适应的维修车辆停车场和生产厂房。
租用的场地应当有书面的租赁合同,且租赁期限不得少于1年;厂房场地平面图2、有与其经营业务相适应的设备、设施,所配备的计量设备应当符合国家有关技术标准要求,并经法定检定机构检定合格;3、企业(法人代表)负责人、企业各类人员的居民身份证、专业技术等级证书原件及复印件(各1份)、资金证明4、必要的技术人员:⑴各配备至少1名技术负责人员和质量检验人员,技术负责人员和质量检验人员应持有相应的资格证书;⑵各配备至少1名从事机修、电器、钣金、涂漆的维修技术人员,上述维修技术人员应持有相应的资格证书;5、有健全的维修管理制度:包括质量管理制度、安全生产管理制度、车辆维修档案管理制度、人员培训制度、设备管理制度及配件管理制度;(至少应包括机具设备管理制度、车辆进出厂交接制度、计量管理制度、质量管理制度、竣工车辆保修制度、安全生产管理制度、财务管理制度、汽车维修收费规范和环境保护管理制度)6、有必要的环境保护措施。
(上述许可条件的具体要求按照国家标准《汽车维修业开业条件》(GB/T16739)相关条款的规定执行)一、汽车整车维修经营设备配置表(代查验记录表)2、企业应配备表1至表3所列的通用设备、专用设备及检测设备,其规格和数量应与其生产纲领和生产工艺相适应。
3、各种设备应符合相应的产品技术条件等国家标准和行业标准的要求。
4、各种设备应能满足加工、检测精度的要求和使用要求。
表3所列检测设备应通过型式认定,并按规定经有资质的计量检定机构检定合格。
5、允许外协的设备,应具有合法的合同书,并能证明其技术状况符合要求。
6、安全保护设施、消防设施等应符合有关规定。
(1)使用、存储有毒、易燃、易爆物品,腐蚀剂,压力容器等均应有相应的安全防护措施和设施。
(2) 生产厂房和停车场应符合安全、环保和消防等各项要求。
(3)有害物质存储区域应界定清楚,必要时应有隔离、控制措施。
附件三:浙江省机动车修理经营许可登记表〔适用于:一、二类整车、危急货物运输车辆修理业户〕企业根本状况企业名称 经营地址所在区域〔乡镇街道〕申请类别 〔打 2〕主修车型 〔打 2〕XXXXXX 修理店XXX 市 XXX 路 XXX 号法人代表或企业负责人 联系人或 业务XXX联系 手机号码 经办人XXX联系 手机号码经营场所 总面积 m 2经营场所 使用性质□自有产权□租赁场地〔租期年〕接待室面积〔客户休息m 2停车场面积m 2生产厂房面 积m 2室〕 危运车辆专m燃气汽车专m 2档案治理室m 2 用修理车间用修理车间企业员工总 数人治理人员人 机修人员人以上全部信息由本企业供给,本企业承诺以上信息真实有效,如有虚假,担当相 应法 企 业律责任。
承 诺 法定代表人〔或企业负责人〕签名:〔公章〕 年 月 日注:1、企业经营场所面积要求参照《附 2: 机 动 车 整 车 维 修 企 业 经 营 场 所 配 备 审 核 要 求 》XXX 市 XXX 街道邮政编码□一类整车□危运车辆修理□二类整车经济类型□小型汽车 □大型货车 □大、中型客车 □事故汽车 □危运车辆 □燃气汽车□能源汽车□其它机动车浙江省道路运输治理局制专用修理设备配置状况序设备名称大中型客大型小型号车货车汽车自查其它要求备注审核数量1 废油收集设备齿轮油加注设备液压油加注设备一、专用设备V制动液更换加注器脂类加注器2 轮胎轮辋拆装设备V3 轮胎螺母拆装机V V -4 车轮动平衡机V5 四轮定位仪- V V 二类允许外协6 四轮定位仪或转向轮定位仪V V -二类允许外协7 制动鼓和制动盘修理设备V V -8汽车空调冷媒回收净化加注设V备大货车允许外协9总成吊装设备或变速箱等总成V顶举设备10汽车举升设备V一类应不少于五个,二类应不少于两个。
具有安全逃命通道的地沟可代替举升机11汽车故障电脑诊断仪12冷媒鉴别仪13畜电池检查、充电设备14无损探伤设备1516171819202122VVVV - -二类允许外协二类允许外协允许外协二类大中型客车允许外协23V喷油泵试验设备〔针对柴油车〕允许外协车身清洗设备打磨抛光设备除尘除垢设备VVV--VV车身整形设备车身校正设备- V- V车架校正设备悬架试验台V-V--V喷烤漆房及设备V - V序设备名称号24喷油器试验设备25调漆设备大中型客大型小型其它要求备注车货车汽车- V 允许外协自查数量审核26自动变速器修理设备V 允许外协27氮气置换装置〔针对压缩天然V -V 气、液化石油气汽车〕气瓶支架强度校验装置〔针对28压缩自然气、液化石油气汽车〕V - V 允许外协二、检测设备1尾气或不透光烟度计V2汽车前照灯检测设备可用手动灯光仪V或投影板检测V 可用单板侧滑台可用制动力、制动距离、制动减速度的检验设备之一用于鉴别燃气浓度及报警3台钻〔含台钳〕V4电焊设备〔大中型客车、大型V 货车修理〕5气体保护焊设备6压床7空气压缩机8抢修效劳车1漆膜测量仪2车身电子测量仪3电阻点焊机4铝车身焊接机5救援车VVVV四、修理事故车所需仪表及设备VVVVV五、危急货物运输车辆修理所需的设备1工业温度计V2可燃气体防爆测试仪V3 侧滑试验台4 制动性能检验设备V5 便携式气体检漏仪V三、通用设备1 计算机V2 砂轮机V序 号3 设备名称大中型 客 车 有毒、有害气体探测仪 大型 货车 V小型汽车其它要求 备注自查数量审核4 铜质专用工具 V 6 7 空调检漏设备 轮胎气压表 8 外径千分尺 9 内径千分尺 10 量缸表 11 12 游标卡尺 扭力扳手V V V V V V V 13 气体压力及流量检测仪 燃气汽车修理企业〕〔针对V 14 便携式气体检漏仪〔针对燃气汽车修理企业〕V注:V 丧求具备,-不要求具备。
二类汽车维修1、有与其经营业务相适应的维修车辆停车场和生产厂房。
租用的场地应当有书面的租赁合同,且租赁期限不得少于1年;厂房场地平面图2、有与其经营业务相适应的设备、设施,所配备的计量设备应当符合国家有关技术标准要求,并经法定检定机构检定合格;3、企业(法人代表)负责人、企业各类人员的居民身份证、专业技术等级证书原件及复印件(各1份)、资金证明4、必要的技术人员:⑴各配备至少1名技术负责人员和质量检验人员,技术负责人员和质量检验人员应持有相应的资格证书;⑵各配备至少1名从事机修、电器、钣金、涂漆的维修技术人员,上述维修技术人员应持有相应的资格证书;5、有健全的维修管理制度:包括质量管理制度、安全生产管理制度、车辆维修档案管理制度、人员培训制度、设备管理制度及配件管理制度;(至少应包括机具设备管理制度、车辆进出厂交接制度、计量管理制度、质量管理制度、竣工车辆保修制度、安全生产管理制度、财务管理制度、汽车维修收费规范和环境保护管理制度)6、有必要的环境保护措施。
(上述许可条件的具体要求按照国家标准《汽车维修业开业条件》(GB/T16739)相关条款的规定执行)一、汽车整车维修经营设备配置表(代查验记录表)2、企业应配备表1至表3所列的通用设备、专用设备及检测设备,其规格和数量应与其生产纲领和生产工艺相适应。
3、各种设备应符合相应的产品技术条件等国家标准和行业标准的要求。
4、各种设备应能满足加工、检测精度的要求和使用要求。
表3所列检测设备应通过型式认定,并按规定经有资质的计量检定机构检定合格。
5、允许外协的设备,应具有合法的合同书,并能证明其技术状况符合要求。
6、安全保护设施、消防设施等应符合有关规定。
(1)使用、存储有毒、易燃、易爆物品,腐蚀剂,压力容器等均应有相应的安全防护措施和设施。
(2) 生产厂房和停车场应符合安全、环保和消防等各项要求。
(3)有害物质存储区域应界定清楚,必要时应有隔离、控制措施。
汽修店场地规划方案一、项目背景随着汽车保有量的增加,汽修行业也得到了快速发展。
汽修店作为汽车维修保养的重要场所,对场地规划非常重要。
合理科学的场地规划能够提高汽修店的工作效率,提升服务品质,满足客户需求。
本文将针对汽修店场地规划方案进行详细阐述。
二、场地选择选择合适的场地是汽修店规划的首要任务。
一般来说,应选择位于繁华地段交通便利、周边人口密集的地方,以便吸引更多的顾客。
此外,场地面积也是一个重要的考虑因素,一般情况下,汽修店的场地面积应在1000平方米以上,以满足各类汽车维修保养的需求。
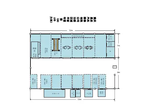
三、功能分区为了提高工作效率和服务质量,汽修店应进行科学合理的功能分区。
一般来说,可以划分为维修区、检测区、洗车区、办公区、待客区和储藏区等。
1.维修区:主要用于进行汽车维修和保养工作。
应设有多个维修工位,并配备各类维修工具和设备,如起重机、千斤顶、扳手等。
维修工位之间应保持足够的间距,方便操作和通行。
2.检测区:用于进行汽车故障诊断和性能测试。
应配备先进的检测设备,如车载诊断仪、排气分析仪等。
检测区应安装适当的通风和排气系统,保证工作人员的健康和安全。
3.洗车区:用于进行汽车清洁和护理工作。
应配备洗车设备,如洗车机、高压水枪等,以满足不同客户的需求。
洗车区应设计合理的排水系统,避免造成环境污染。
4.办公区:用于车辆接待、信息管理、订单处理等工作。
应配置舒适的办公桌椅和必要的办公设备,如电脑、打印机等。
办公区应与维修区隔离,以避免尘埃和噪音对办公工作的干扰。
5.待客区:用于等待车辆维修或检测的客户休息和娱乐。
应提供舒适的座椅、报刊杂志、无线上网等服务,以提高客户满意度。
6.储藏区:用于存放各类汽车配件和维修工具。
应配备合适的货架和货柜,保持储藏物品的整齐和易取用。
四、安全设施汽修店作为一个危险性较高的场所,应配置相应的安全设施,保证员工和客户的安全。
1.疏散通道:应设置足够宽敞的疏散通道,保证员工和客户在紧急情况下能够迅速疏散。
汽车整车维修企业设备设施记录表注:1、应配备与其所承修车型相适应的量具、机工具及手工具。
量具应定期进行检定。
2、应配备的通用设备、专用设备及检测设备,其规格和数量应与其生产纲领和生产工艺相适应。
3、各种设备应符合相应的产品技术条件等国家标准和行业标准的要求。
4、各种设备应能满足加工、检测精度的要求和使用要求。
表3所列检测设备应通过型式认定,并按规定经有资质的计量检定机构检定合格。
5、允许外协的设备,应具有合法的合同书,并并附外协单位的经营许可证复印件。
其他设备可另附表填写。
ﻬ4、设施情况注(1)企业应设有接待室,一类的面积不少于40m2,二类面积不少于20m2。
(2)接待室应整洁明亮,明示各类证、照、主修车型、作业项目、工时定额及单价等,并有客户休息设施。
2.停车场(1)企业应有与承修车型、经营规模相适应的合法停车场地,一类企业的面积不少于200m2,二类企业的面积不少于150m2。
(2) 企业租赁的停车场地,应具有合法的书面合同书。
(3)停车场地面平整坚实,区域界定标志明显。
3.生产厂房(1)生产厂房应与承修车型、经营规模相适,地面应平整坚实,面积应能满足设备的工位布置、生产工艺和正常作业,一类企业的面积不少于800m2,二类企业的面积不少于200m2。
(2)租赁的生产厂房应具有合法的书面合同书。
(3)配备消防设施,废水排放设施,废气排放通风设施等;涂漆车间有废水排放设施、粉尘收集设施、通风设施,调试车间有尾气收集净化装置。
单位外貌影像资料停车场地影像资料维修从业人员情况记录表注:1、“从事专业或工种”栏应分类填写企业负责人及技术负责人(应具有汽车维修相关专业的大专以上毕业证或中级以上专业技术职称);质量检验员、价格核算员、业务接待员、维修技术人员(机修、电器、钣金、涂漆等)、车辆技术评估(检测)等关键岗位人员,明确岗位工种;2、表格不够,可加附页。
管理人员情况记录表注:填写企业负责人、技术负责人、生产经营、配件管理、档案管理、财务等人员信息,持证人员应提交资格证书(可加附页)安全生产管理领导小组及安全管理员名单注:填写法定负责人、安全分管负责人、安全科科长及安全管理员等人员信息(可加附页)。
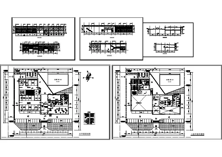
面积:2000平方米
二类汽车维修企业开业条件设备中级报价
本系列产品是在实用型根底把局部设备的档次提升了一些,并严格按照汽修二类开业标准将所有设备加上,增加了喷漆除水设备。
二类汽车维修厂设备报价清单(2021中档)
序号品名产地型号数量单价金额备注一:维修通用加工设备
1 简易压力机上海衡臣20T 1 650 650 详细介绍
2 空压机上海闪电 1 3250 3250 详细介绍
3 储气罐上海申江 1 2680 2680
4 冷冻枯燥机浙江 1 2980 2980
5 管路油水格〔烤漆房〕浙江嘉美C002 3 450 1350
6 电焊机上海沪工200A 1 800 800
7 气割焊套装上海沪工6件套 1 520 520
8 钻床浙江16mm 1 650 650
二:机修车间维修养护设备
1 四轮定位仪上海衡臣HC003 1 32000 32000 详细介绍
2 四轮定位四柱举升机上海安特力 1 15500 15500 详细介绍。
二类修理厂申请条件
二类修理厂是指具备一定规模和技术水平的汽车维修企业,其主要业务是对汽车进行维修、保养和检测等服务。
二类修理厂的申请条件是比较严格的,需要满足一定的要求才能够获得相关的资质和认证。
二类修理厂需要具备一定的经营规模和资金实力。
一般来说,二类修理厂的经营面积应该在200平方米以上,同时需要有一定的设备和工具,以及足够的人员配备。
此外,二类修理厂还需要有一定的资金实力,以应对日常经营和维护的需要。
二类修理厂需要具备一定的技术水平和人员素质。
二类修理厂的技术水平是其核心竞争力,需要具备一定的技术实力和专业知识。
同时,二类修理厂还需要有一支高素质的员工队伍,包括技术人员、管理人员和服务人员等。
二类修理厂需要具备一定的管理能力和服务意识。
二类修理厂的管理能力是其经营成功的关键,需要具备一定的管理经验和管理能力。
同时,二类修理厂还需要具备良好的服务意识,以提供高质量的服务和满足客户的需求。
二类修理厂还需要具备一定的法律法规意识和社会责任感。
二类修理厂需要遵守相关的法律法规,保证经营合法合规。
同时,二类修
理厂还需要具备一定的社会责任感,积极参与社会公益事业,为社会做出贡献。
二类修理厂的申请条件是比较严格的,需要满足一定的要求才能够获得相关的资质和认证。
只有具备一定的经营规模和资金实力、技术水平和人员素质、管理能力和服务意识、法律法规意识和社会责任感等条件,才能够成为一家合格的二类修理厂。
地理位置的选择:厂区地理位置的选择应遵循以下原则:1)交通方便。
车辆容易进出,最好在道路交叉点或环形交叉点、|路面宽度40m以上的车流密集开阔路段。
=j2)便于寻找,尽量选择有广告空间的店面。
要求无高层建筑f天桥、高架线等外观障。
并在今后市政规划中也无此类计划,以适应长期规划。
3)便于布局。
四方形且平坦,无洪水、地陷等自然灾害隐患。
4)“三供”齐全且租金经济。
具备供电、供水、供热条件及排污顺畅,场地费用较低。
5)选择距离汽车配件市场较近的地点,避开汽修密集地带。
6)如果经营项目很有特色,要有“借光?”意识。
比如,与著名连锁店或强势品牌店有互补或比较明显优势,可考虑将维修企业开在它们附近。
1.厂区布置的要求厂区布置应根据车辆进厂报修到修竣出厂全部维修过程安排最合理的汽车修理工艺流程,将办公接待区、维修车间和设备合理布局,按工序需要合理安排人员,构成最有效的劳动组合,让客户舒心、安心、放心,使顾客产生信赖感。
l。
厂区规划布置科学有序的厂区规划与布置是给客户留下第一印象的重要规划项目,显示企业对顾客需求的全面关注和快捷、高质量的维修水平,反映出企业服务客户的理念和精神,从而提高企业信誉,,增加企业经济效益。
1)大型汽车维修企业:。
要在关键路段设置醒目标志,设置服务标示牌,要有足够的停车位,企业内外装修颜色协调,给客户一种清爽宜人的感觉。
设置能够展示企业经营特色、特种服务形式V具有创新意向的企业文化活动场所或设施,如教室、学习园地、服务板报等,既宣传了企业形象,又加深了员工对企业文化内涵的理解。
2)中小型汽车维修企业:占地面积相对较小,所以一定要合理利用空间,最大度地发挥土地资源的优势,厂内的每_个地方都要干净、整齐,给客户一种层次分明、简洁利落的感觉。
2.业务厅布置汽车维修企业的业务是维修车辆,但真正的服务对象是车主。
业务大厅作为为车服务的最直接场所,也是客户透视企业文化内涵的重要场所,必须重点规划、优化布局。
编号:一、二类汽车维修企业经营许可登记申请表(征求意见稿)企业名称: 企业地址: 邮政编码: 经营类别: 经营范围: 联系电话: 联系人: 电话: 填表日期: 年月日填表说明一、企业名称:按工商营业执照的业户名称填写。
二、企业地址:按详细通讯地址填写。
三、经营类别:分为一类汽车维修和二类汽车维修。
一、二类汽车维修企业若为连锁型企业应在上述经营类别之后增加“(连锁型总店)”、“(连锁型直营店)”或“(连锁型加盟店)”。
四、经营范围:一、二类汽车维修企业经营范围分为乘用车维修、客车维修(小型客车维修)、客车维修、货车维修(小型货车维修)和货车维修。
经营危险品运输车辆维修的一类汽车维修企业,在经营范围中应增加“危险品运输车辆维修”;符合汽车二级维护以上竣工质量检测条件,并经设区的市级以上道路运输管理机构组织专家评审合格并公布的一、二类汽车维修企业,在经营范围中应增加“竣工检测”或“竣工自检”。
五、经济类型:按工商营业执照经济类型填写。
六、人员配备情况:按从业人员主要承担的工作岗位或工种填写。
七、所在国省道代码:所处国、省道的名称,如G104;路线名称:国、省道路线起讫点,如北京—福州;桩号里程:所处具体路线桩号里程位置,如2329K+875。
八、设备清单中,未列出的设备或者型号等项目不同的设备,可在“空格栏”中填报或另加页。
九、从事危险货物运输车辆维修的一类汽车整车维修企业,除填报相应一类汽车维修经营申请表外,还应另填报危险货物运输车辆维修的附加申请表。
模式、规模、期限等;2、汽车维修企业从业人员基本情况、厂址方位示意图、厂房工艺布置图等。
三、核查与许可意见四、组织管理条件五、人员条件六、从业人员配备一览表备注:此表按企业管理负责人等管理人员、技术负责人、质量检验人员、业务接待员、价格结算员、机修工、电器维修工、钣金工、涂漆工、检测工和其他人员等自上而下填写。
七、安全生产与环境保护条件八、设施条件九、汽车维修企业设备配备条件备注:1.各种设备应能满足加工、检测精度的要求和使用要求,并应符合相关国家标准和行业标准的要求,计量器具及检测设备应按规定检定合格。
二类汽车修理厂资质简介设备条件、设施条件、人员条件、质量管理及其他条件分类的。
二类汽车维修企业开业条件(中华人民共和国国家标准GB/T16739.1-16739.3-1997)一、设备条件企业配备的设备型号、规格和数量应与其生产纲领、生产工艺相适应,设备技术状况应完好,满足加工、检测精度要求和使用要求;允许外协的设备必须具有合法的技术经济合同书应具备下列专用设备,试验、检测与诊断设备,通用设备,计量器具以及主要手工具(一)清洁作业设备1、汽车外部清洗设备2、零件清洗设备(二)补给、润滑、紧固作业设备1、举升设备或地沟2、机油加注器3、齿轮油加注器4、润滑脂加注器5、各种工作介质加注器6、轮胎螺母拆装机或专用拆装工具7、悬架弹簧螺母拆装机或专用拆装工具(三)检查、调整作业设备1、试验、检测与诊断设备⑴发动机综合检测仪⑵气缸漏气量检测仪⑶曲轴箱窜气测量仪⑷润滑油质量检测仪⑸润滑油分析仪⑹工业纤维内窥镜⑺电器试验台⑻废气分析仪(从事汽油车维修)⑼烟度计(从事柴油车维修)⑽声级计⑾汽油泵、化油器、试验设备(从事汽油车维修)⑿喷油泵、化油器、试验设备(从事柴油车维修)⒀电控汽油喷射系统检测设备(从事电空汽油喷射式轿车维修)⒁无损探伤设备⒂转向盘转动量检测仪⒃车轮动平衡机⒄转向轮定位仪⒅前照灯检测设备(允许外协)⒆制动检测设备(允许外协)⒇车速表试验台(允许外协)2、专用设备①磨气门机②气门座铣削及气门与气门座研磨设备或工具③充电机④喷烤漆房(从事轿车维修)或喷漆设备⑤制动鼓和制动盘修理设备⑥制动蹄磨擦片和制动块磨擦块修理设备⑦轮胎、轮辋拆装设备(四)通用设备1、钻床2、电焊设备3、氧-乙炔焊设备4、钎焊设备5、液压或机械压力机6、空气压缩机7、砂轮机8、钳工工作台及设备(五)计量器具计量器具须经计量检定机构检定,并取得计量检定合格证1、量具①外径千分尺②游标卡尺③内径百分表,内径千分表④百分表⑤平尺⑥平板⑦前束尺⑧厚薄规⑨量杯2、计量仪器(仪表)①万用电表②电解液比重计③高频放电叉④转速表⑤轮胎气压表⑥气缸压力表⑦发动机检测专用真空表⑧温度计3、主要手工具①千斤顶②扭力板手③各种板手④手电钻⑤各种拉压器⑥各种手动铰刀二、设施条件(一)生产厂房和停薪的设备1、生产厂房和停车场的结构、设施必须满足汽车维护和汽车小修作业的要求,并符合安全、环境保护、卫生和消防等有关规定,地面应坚实、平整2、停车场地界定标志明显,不准占用道路和公共场所进行维护、小修作业和停车(二)生产厂房和停车场的面积企业生产厂房和停车场的面积应与其生产纲领和生产工艺相适应1、主要总成和零部件的维护和小修作业应在生产厂房内进行。
二类汽修厂所需汽保设备清单二类汽修厂所需汽保设备清单。
相应的一级品牌工具,产品质量优良,并且终身保修,国内汽保工具性价比高,有需要批发这些汽车修理工具的厂家和商家,可以联系我们,我们将给给予比较有竞争性的价格优势,折扣较多!该类清单为最基本的所学设备,是实用的二类汽修厂的所选:一、二类汽修厂所需维修通用加工设备01简易轴承压力机02皮带式空压机03电焊机04气割焊套装05台式钻床二、二类汽修厂所需机修车间维修养护设备01蓝牙CCD四轮定位仪02四轮定位平台四柱举升机03底板式二柱液压举升机04废油接油抽油机05轮胎轮辋拆装设备06车轮动平衡机07解码器08蓄电池充电设备09总成吊装设备10工作灯鼓11工作气鼓12工具小车13风动扳手14真空泵+表三、二类汽修厂所需油漆喷涂车间设备01烤漆房设备02喷枪03打腊抛光设备四、二类汽修厂所需钣金车间设备01地八卦系列02钣金用点焊机03二氧化碳焊机五、二类汽修厂所需清洗设备及美容产品01车身清洁设备02除尘除垢设备03泡沫机六、二类汽修厂所需工具类01个人工具组上海汽保汽修公司位于嘉定汽配城,与公司合作生产的拆胎机平衡机,举升机,四轮定位仪,大梁校正架等设备,我们联合各大汽保汽修生产厂家,为汽车修理厂服务整套解决方案,对在销售产品在安装,售后方面的有控制能力,并且保证售后配件的供给及时有货。
汽车维修设备按常用设备分类如下:举升机校正仪扒胎机焊接设备拆胎机真空泵烤漆房净化系统压胎机整形机补胎机钣金设备烤漆机拆装机扩胎机调漆设备硫化机修复机铰压机珩磨镗机换顶机磨合机烙印机废气抽排车盘机光毂机维修台其它维修设备汽车保养设备按常用设备分类如下:吸尘机吸水机充电机清洗设备充氮机充氟机充气机电洗车机泡沫机抛光机清洗机无尘干磨加注机缓冲器喷雾器抽注油机洗车房更换机刷地机油水分离抛光机打蜡机放电器接换油器汽修手动工具按常用分类如下:扳手套筒手柄钳子工具车风批接头接杆曳车工具架工具箱拉压器夹具其它汽修手动工具汽修轮胎店、补胎店设备、汽保汽修工具明细汽车轮胎修补设备、工具、耗材:包括工程胎硫化机、局部硫化机、局部气囊、轮胎修补模具、补胎机、打磨机、胎撑、气动液压千斤顶、轮胎压条取出器、扩胎机、定做各种规格补胎模具、及新一代补胎材料、钢丝胶、帘线胶、浆胶、钢丝帘子布、钢丝胶垫(旧轮胎鞍)、各种帘线外胎斜交胎、钢丝子午胎胶垫等系列补胎产品。