08年造价员考试工程计量
- 格式:doc
- 大小:79.50 KB
- 文档页数:22
2008年全国造价工程师《建设工程技术与计量(土木建筑工程)》真题及详解一、单项选择题(共60题,每题1分。
每题的备选项中,只有1个最符合题意)1.按工业建筑用途分类,机械制造厂的热处理车间厂房属于()。
A.生产辅助厂房B.配套用房C.生产厂房D.其他厂房答案:C解析:生产厂房是指进行产品的备料、加工、装配等主要工艺流程的厂房,如机械制造厂中的铸工车间、电镀车间、热处理车间、机械加工车间和装配车间等。
2.关于钢筋混凝土基础,说法正确的是()。
A.钢筋混凝土基础的抗压和抗拉强度均较高,属于刚性基础B.钢筋混凝土基础受刚性角限制C.钢筋混凝土基础宽高比的数值越小越合理D.钢筋混凝土基础断面可做成锥形,其最薄处高度不小于200mm答案:D解析:钢筋混凝土基础,其底部配置有受力钢筋,利用钢筋抗拉,基础可以承受弯矩,也就不受刚性角的限制,所以钢筋混凝土基础又称为柔性基础。
钢筋混凝土基础断面可做成锥形,最薄处高度不小于200mm,也可做成阶梯形,每踏步高300~500mm。
3.钢筋混凝土圈梁的宽度通常与墙的厚度相同,但高度不小于()mm。
A.115B.120C.180D.240答案:B解析:圈梁有钢筋混凝土圈梁和钢筋砖圈梁两种。
钢筋混凝土圈梁的宽度一般同墙厚,对墙厚较大的墙体可做到墙厚的2/3,高度不小于120mm。
4.房屋中跨度较小的房间,通常采用现浇钢筋混凝土()。
A.井字形肋楼板B.梁板式肋形楼板C.板式楼板D.无梁楼板答案:C解析:房屋中跨度较小的房间(如厨房、厕所、贮藏室、走廊)及雨篷、遮阳等常采用现浇钢筋混凝土板式楼板。
根据周边支承情况及板平面长短边边长的比值,板式楼板可分为单向板、双向板和悬挑板。
5.在刚性防水屋面上设置分格缝,正确的做法是()。
A.设缝位置一般在结构构件的支承位置B.屋面总进深在12m以内,可在屋脊处设一道纵向分格缝C.横向分格缝可每隔6~12m设一道,缝口位置无规定要求D.设缝位置不得位于屋面分水线处答案:A解析:分格缝应设在屋面板的支撑端、屋面转角处、防水层与突出屋面结构的交接处,并应与板缝对齐。
08年造价师工程技术与计量(安装)知识三各位读友大家好,此文档由网络收集而来,欢迎您下载,谢谢2)铸铁牌号的表示方法:①用各种铸铁相应汉语拼音字母的第一个大写字母作为铸铁的代号,当两种铸铁名称的代号字母相同时,可在大写字母后加小写字母表示。
②在牌号中一般不标注常规元素C.Si、Mn、S和P的符号,但当它们有特殊作用时才标注其元素符号和含量。
提供③牌号中代号后面的一组数字表示抗拉强度值(如灰口铸铁HT100),有两组数字时,第一组数字表示抗拉强度值,第二组数字表示伸长率值(如球墨铸铁QT400-18),两组数字之间用“-” 隔开。
3)工程中常用铸铁的性能和特点:①灰口铸铁。
基体可以是铁素体,珠光体或铁素体加珠光体,相当于钢的组织。
②球墨铸铁。
球墨铸铁综合机械性能接近于钢。
可用球墨铸铁来代替钢制造某些重要零件,如曲轴、连杆和凸轮轴等。
③蠕墨铸铁。
蠕墨铸铁的强度接近于球墨铸铁,并具有一定的韧性和较高的耐磨性;同时又有灰口铸铁良好的铸造性能和导热性。
蠕墨铸铁在生产中主要用于生产汽缸盖、汽缸套、钢锭模和液压阀等铸件。
④可锻铸铁。
可锻铸铁可以部分代替碳钢。
提供⑤耐磨铸铁。
耐磨铸铁是在磨粒磨损条件下工作的铸铁,应具有高而均匀的硬度。
⑥耐热铸铁。
耐热铸铁是在高温下工作的铸件,如炉底板、换热器、钳锅、热处理炉内的运输链条等。
⑦耐蚀铸铁。
耐蚀铸铁是主要用于化工部件,如阀门、管道、泵、容器等。
2、有色金属l)铝及其合金。
工业纯铝可制作电线、电缆、器皿及配制合金。
铝合金可用于制造承受较大载荷的机器零件和构件。
①防锈铝合金(LF)。
主要用于焊接件、容器、管道或以及承受中等载荷的零件及制品,也可用作铆钉。
②硬铝合金(LY)。
低合金硬铝塑性好,强度低。
主要用于制作铆钉,常称铆钉硬铝;标准硬铝合金强度和塑性属中等水平。
主要用于轧材、锻材、冲压件和螺旋浆叶片及大型铆钉等重要零件;高合金硬铝合金元素含量较多,强度和硬度较高,塑性及变形加工性能较差。
浙江省2008年度《全国建设工程造价员资格》考试试卷建筑工程计价试题(闭卷)一、单项选择题(10题,每题1分,共10分。
将正确答案选项的编号填入答题卷内相应位置,选对得分,不选、选错均不得分。
)1、某工程桩基采用φ800、C25混凝土灌注桩,设计有效桩长30m,成孔长度为35m,总桩数为100根。
其灌注水下混凝土工程量为( A )m3。
3.14*(0.8/2)2*(30+0.8)*100A、1548B、1533C、1568D、1759 设计加灌长度2、某五层厂房工程设有一室外无顶盖楼梯,其外围尺寸为9000×3600,则该室外楼梯的建筑面积为( A )m2。
9*3.6*4*1/2 有永久性顶盖室外楼梯水平投影面积一半无永久性顶盖室外楼梯不计算A、64.8B、129.6C、81D、1623、地下室底板下翻承台采用标准砖模时,其砖模应套用( A )定额子目。
A、3-13B、3-21C、4-317D、4-3184、某附属工程铺设φ450水泥排水管一道,延续长度为300m,中间布置内径分别为50cm、60cm的砖砌圆形窨井各15只,则按定额规则计算的排水管工程量为( A )m。
10定额P365 300-0.6*15内径<50cm,不扣除;>50cm 扣除A、291B、283.5C、300D、292.55、某工程檐沟宽度500mm,侧板高600mm,其抹灰应套用( B )定额。
A、檐沟抹灰B、檐沟抹灰与墙面抹灰C、檐沟抹灰加侧板增高抹灰D、檐沟抹灰与零星抹灰6、规格为32×57mm的弧形榉木装饰线条安装的人工费为( D )元/m。
A、1.17B、1.29C、1.23D、1.357、建筑工程如发生甲供材料时,下列说法正确的是( B )。
A、施工企业应按材料预算价退还甲方B、采购保管费由施工企业全额收取C、采购保管费的60%由施工企业收取D、运杂费均应退还甲方8、以下关于金属构件定额使用的叙述中,正确的是( A )。
2008年全国一级造价工程师考试《建设工程技术与计量(安装工程)》真题及详解必做部分一、单项选择题(共40题,每题1分。
每题的备选项中,只有1个最符合题意)1.能够使钢材的强度、硬度提高,而塑性、韧性不显著降低的化学元素为()。
A.碳B.硅C.磷D.硫〖答案〗B〖解析〗钢中主要化学元素为铁,另外还含有少量的碳、硅、锰、硫、磷、氧和氮等,这些少量元素对钢的性质影响很大。
钢中碳的含量对钢的性质有决定性影响,含碳量低的钢材强度较低,但塑性大,延伸率和冲击韧性高,质地较软,易于冷加工、切削和焊接;含碳量高的钢材强度高(当含碳量超过1.00%时,钢材强度开始下降)、塑性小、硬度大、脆性大和不易加工。
硫、磷为钢材中有害元素,含量较多就会严重影响钢材的塑性和韧性,磷使钢材显著产生冷脆性,硫则使钢材产生热脆性。
硅、锰等为有益元素,它们能使钢材强度、硬度提高,而塑性、韧性不显著降低。
2.与奥氏体不锈钢相比,铁素体-奥氏体型不锈钢的主要性能为()。
A.韧性较低B.屈服强度较高C.可焊性较差D.应力腐蚀较大〖答案〗B〖解析〗铁素体-奥氏体不锈钢的屈服强度约为奥氏体型不锈钢的两倍,可焊性良好,韧性较高,应力腐蚀、晶间腐蚀及焊接时的热裂倾向均小于奥氏体型不锈钢。
3.在石油、化工、有色金属冶炼工业中,常用于高温、高压、高浓度或混有不纯物等各种苛刻腐蚀环境的比较理想的金属材料为()。
A.铝及铝合金B.铜及铜合金C.镍及镍合金D.镁及镁合金〖答案〗C〖解析〗镍及镍合金是化学、石油、有色金属冶炼、高温、高压、高浓度或混有不纯物等各种苛刻腐蚀环境的比较理想的金属材料;A选项,铝及铝合金在电气工程、一般机械和轻工业中都有广泛的用途;B 选项,铜及铜合金主要用于制作电导体及配制合金;D选项,镁及镁合金主要特性是密度小、化学活性强、强度低。
4.耐酸酚醛塑料管是一种具有良好耐腐蚀性和热稳定性的非金属管材,但不能用其输送的介质为()。
A.碱C.低浓度硫酸D.中等浓度硫酸〖答案〗A〖解析〗耐酸酚醛塑料是一种具有良好耐腐蚀性和热稳定性的非金属材料,是用热固性酚醛树脂为黏合剂,耐酸材料如石棉、石墨等作填料制成。
08年造价工程师技术与计量(土建)——地基与基础复习指导各位读友大家好,此文档由网络收集而来,欢迎您下载,谢谢二、地基与基础(一)地基与基础的关系基础是建筑物的地下部分,是建筑物的一个组成部分。
地基是指基础以下的土层,地基不是建筑物的组成部分。
(二)地基的分类地基分为天然地基和人工地基两大类。
天然地基如岩土、砂土、粘土等。
应尽量采用天然地基。
人工地基是指经过人工处理的土层。
人工处理地基的方法主要有:压实法、换土法、化学处理法、打桩法等。
(三)基础的类型基础按受力特点及材料性能可分为刚性基础和柔性基础;按构造的方式可分为条形基础、独立基础、片筏基础、箱形基础等。
1.按材料及受力特点分类(1)刚性基础:刚性基础所用的材料如砖、石、混凝土等,它们的抗压强度较高,但抗拉及抗剪强度偏低。
刚性基础中压力分布角a称为刚性角。
在设计中,应尽力使基础大放脚与基础材料的刚性角相一致,目的:确保基础底面不产生拉应力,最大限度地节约基础材料。
受刚性角限制的基础称为刚性基础。
构造上通过限制刚性基础宽高比来满足刚性角的要求。
1)砖基础。
大放脚每一阶梯挑出的长度为砖长的1/4(即60mm)。
为保证基础外挑部分在基底反力作用下不至发生破坏,大放脚的砌法有两皮一收和二一间隔收两种。
在相同底宽的情况下,二一间隔收可减少基础高度。
2)灰土基础。
灰土基础即灰土垫层,是由石灰或粉煤灰与粘土加适量的水拌和经夯实而成的。
灰土与土的体积比为2:8或3:7.灰土每层需铺22-25cm,夯层15cm 为一步;三层以下建筑灰土可做二步,三层以上建筑可做三步。
由于灰土基础抗冻、耐水性能差,所以灰土基础适用于地下水位较低的地区,并与其他材料基础共用,充当基础垫层。
3)三合土基础。
三合土基础是由石灰、砂、骨料(碎石或碎砖)按体积比1:2:4或1:3:6加水拌和夯实而成。
每层虚铺22cm,夯至15cm.三合土基础宽不应小于600mm,高不小于300mm.三合土基础一般多用于地下水位较低的四层和四层以下的民用建筑工程中。
2008年重庆市全国建设工程造价员资格考试试题《计量与计价实务》(建筑专业)( A )一、单项选择题(共20题,每题1分。
每题的备选项中,只有一个最符合题意。
)1、如果按厂房跨度尺寸来划分单层工业厂房,下列说法中正确的是( C )。
A .小跨度厂房是指跨度在10m ~15m 的厂房B .小跨度厂房是指跨度小于或等于15m 的厂房C .大跨度厂房是指跨度在15~36m 的厂房D .大跨度厂房是指跨度在36m 以上的厂房2、一般情况下,砖混结构房屋必须设置圈梁的部位有(B )。
A .门窗洞口上部B .檐口和基础处C .楼梯平台梁处D .楼板标高处3、在关于钢筋混凝土板式楼板的下列说法中错误的是( D )。
A .单向板长短边比值大于或等于3,两边支承,仅短边受力B .单向板(长短边比值大于或等于2,两边支承,仅短边受力C .双向板长短边比值小于3,四边支承,长短边双向受力D .双向板长短边比值小于2,四边支承,长短边双向受力4、按规范规定,搁置在墙上的板和600mm 高的梁其搁置长度分别不小于( C )。
A .90,120B .120,180C .120,240D .180,3705、为了防止因温度变化产生无规则裂缝,通常在刚性防水屋面上设置分格缝。
其设置位置及间距一般有( D )要求。
A .应设在结构构件的非支承位置B .应设在非屋面转角处C .屋面总进深在12m 以内,可在屋脊处设一道纵向分仓缝D .纵横间距不宜大于6m6、在各种墙面装饰做法中,最有发展前途的是( B )。
A .瓷砖类B .涂料类C .石材类D .墙纸类 7、在下述几种对水泥质量做出的判断中,正确的是( C )。
A .硅酸盐水泥初凝时间等于1 h ,报废B .硅酸盐水泥终凝时间等于6h ,不合格C .安定性不合格,废弃D .碱含量超标,降级使用 8、抗拉性能是钢筋最主要的性能,下列各项中哪项是表征钢筋抗拉性能的主要技术指标( C )。
08年造价员资格(湖北省)考试试卷及参考答案试专业:建筑、装饰工程考试科目:建设工程计量与计价试题一(请建筑、装饰专业的考生作答,15分)某宾馆大堂改造工程,业主与承包方签订了工程施工合同,施工合同规定:石材及主要设备由业主供应,其他建筑材料由承包方采购。
施工过程中,订购了一批钢材(H型钢),钢材运抵施工现场后,经检验发现承包方未能提交该材料的产品合格证、质量保证书和材质化验单,且这批材料外观质量不合格。
业主经与设计单位商定,对主要装饰石材指定了材质、颜色和样品,并向承包方推荐厂家,设计单位向施工单位进行设计交底和图纸会审后,承包方与生产厂家签订了石材供货合同。
厂家将石材按合同采购量送达现场,进场时经检查该批材料颜色有部分不符合要求,监理工程师通知承包方该批材料不得使用。
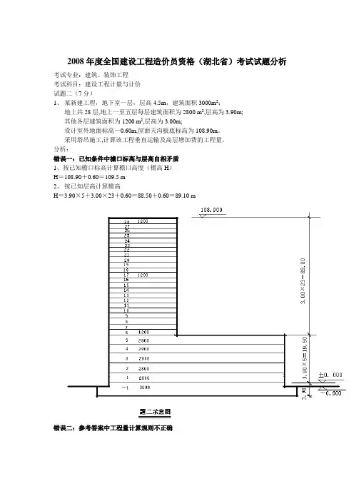
承包方要求厂家将不符合要求的石材退换,厂家要求承包方支付退货运费,承包方不同意支付,厂家要求业主在应付承包方工程款中扣除上述费用。
问题:1、对上述钢材质量问题应如何处理?为什么?2、业主指定石材材质、颜色和样品是否合理?3、承包方要求退换不符合要求的石材是否合理?为什么?4、厂家要求承包方支付退货运费,业主代扣运费款是否合理?为什么?试题二(7分)1、某新建工程,地下室一层,层高4.5m,建筑面积3000m2 ;地上共28层,地上一至五层每层建筑面积为2800m2 ,层高为3.9m;其他各层建筑面积为1200m2 ,层高为3m;设计室外地面标高-0.6m,层面天沟板底标高为108.9m。
采用塔吊施工,计算该工程垂直运输及高层增加费的工程量。
(请建筑专业的考生作答)2、某住宅楼厕所平面、立面如图所示,隔断及门采用木质材料制作,试计算厕所木隔断工程量。
(请装饰专业的考生作答)试题三(50分)某单位新建传达室工程如图所示,已知条件如下:1、建筑场地土为Ⅲ类,框架结构、结构抗震等级为三级,单层,层高3.6m,独立基础,基础势层原槽浇灌;2、所有构件混凝土强度等级均匀为c20,采用现场搅拌,挑檐与层面板一起现浇,采用木模板木支撑;混凝土保护层厚度:梁、柱为25mm,基础为40mm;现浇砼板厚为100mm,KL3、KL4均与外墙平齐。
08年造价师工程技术与计量(安装)知识一各位读友大家好,此文档由网络收集而来,欢迎您下载,谢谢一、内容提要二、重点、难点三、内容讲解第一章基础知识第一节安装工程常用材料基础知识一、工程材料的分类(二)非金属材料非金属材料包括耐火材料、耐火隔热材料、耐蚀(酸)非金属材料和陶瓷材料等。
(1)耐火材料。
耐火材料是指能承受高温下作用而不易损坏的材料。
常用的耐火材料有耐火砌体材料、耐火水泥及耐火混凝土。
提供(2)耐火隔热材料。
耐火隔热材料又称为耐热保温材料。
常用的隔热材料有硅藻土、蛙石、玻璃纤维(又称矿渣棉)、石棉以及它们的制品。
(3)耐蚀(酸)非金属材料。
耐蚀(酸)非金属材料的组成主要是金属氧化物、氧化硅和硅酸盐等,在某些情况下它们是不锈钢和耐蚀合金的理想代用品。
常用的非金属耐蚀材料有铸石、石墨、耐酸水泥、天然耐酸石材和玻璃等。
(4)陶瓷材料。
(三)高分子材料高分子材料种类很多,工程上通常根据机械性能和使用状态将其分为三大类:(1)塑料。
分热塑性塑料和热固性塑料两种。
(2)橡胶。
(3)合成纤维。
(四)复合材料复合材料就是用两种或两种以上不同材料组合的材料。
二、常用工程材料的性能和特点(一)金属材料1、黑色金属含碳量小于2.11%(重量)的合金称为钢,合碳量大于2.11%(重量)的合金称为生铁。
(1)钢及其合金的分类。
钢的力学性能决定于钢的成分和金相组织。
钢中碳的含量对钢的性质有决定性影响。
在工程中更通用的分类为:l)按化学成分分类。
可分为碳素钢、低合金钢和合金钢。
2)按主要质量等级分类:①普通碳素钢、优质碳素钢和特殊质量碳素钢;②普通低合金钢、优质低合金钢和特殊质量低合金钢;③普通合金钢、优质合金钢和特殊质量合金钢。
各位读友大家好,此文档由网络收集而来,欢迎您下载,谢谢。
2008年度全国建设工程造价员资格(湖北省)考试试题分析
考试专业:建筑、装饰工程
考试科目:建设工程计量与计价
试题二(7分)
1、某新建工程,地下室一层,层高4.5m,建筑面积3000m2;
地上共28层,地上一至五层每层建筑面积为2800 m2,层高为3.90m;
其他各层建筑面积为1200 m2,层高为3.00m;
设计室外地面标高-0.60m,屋面天沟板底标高为108.90m。
采用塔吊施工,计算该工程垂直运输及高层增加费的工程量。
分析:
错误一:已知条件中檐口标高与层高自相矛盾
1、按已知檐口标高计算檐口高度(檐高H)
H=108.90+0.60=109.5 m
2、按已知层高计算檐高
H=3.90×5+3.00×23+0.60=88.50+0.60=89.10 m
错误二:参考答案中工程量计算规则不正确。
08年造价师工程技术与计量(安装)知识二各位读友大家好,此文档由网络收集而来,欢迎您下载,谢谢(2)钢牌号的表示方法。
按照国家标准《钢铁产品牌号表示方法》规定,我国钢铁产品牌号采用汉语拼音字母、化学符号和阿拉伯数字相结合的表示方法,即:l)牌号中化学元素采用国际化学元素表示。
提供2)产品名称、用途、特性和工艺方法等,通常采用代表该产品汉字的汉语拼音的缩写字母表示。
3)钢铁产品中的主要化学元素含量(%)采用阿拉伯数字表示。
合金结构钢的牌号按下列规则编制。
数字表示含碳量的平均值。
合金结构钢和弹簧钢用二位数宇表示平均含碳量的万分之几,不锈耐酸钢和耐热钢含碳量用千分数表示。
平均含碳量<%(用“0”表示;平均含碳量<%,用“00” 表示=。
合金工具钢平均含碳量>%时,不标合碳量,否则用千分数表示。
高速工具钢和滚珠轴承钢不标含碳量,滚珠轴承钢标注用途符号“C”。
平均合金含量<%者,在牌号中只标出元素符号,不注其含量。
例:在钢的分类中,优质钢是按照()来分类的。
A.化学成分B.用途C.冶炼质量D.冶炼方法答案:C(3)工程中常用钢及其合金的性能和特点。
l)碳素结构钢。
提供碳素结构钢生产工艺简单,有良好工艺性能(如焊接性能、压力加工性能等)、必要的韧性、良好的塑性以及价廉和易于大量供应,通常在热轧后使用。
在桥梁、建筑、船舶上获得了极广泛的应用。
某些不太重要、要求韧性不高的机械零件也广泛选用。
2)低合金高强度结构钢。
低合金高强度结构钢比碳素结构钢具有较高的韧性,同时有良好的焊接性能、冷热压力加工性能和耐蚀性,部分钢种还具有较低的脆性转变温度。
3)合金结构钢。
合金结构钢广泛用于制造各种要求韧性高的重要机械零件和构件。
形状复杂或截面尺寸较大或要求韧性高的淬火零件,一般为合金结构钢。
4)不锈耐酸钢。
它在化工、石油、食品机械和国防工业中广泛应用。
按不锈钢使用状态的金相组织,可分为铁素体、马氏体、奥氏体、铁素体加奥氏体和沉淀硬化型不锈钢五类。
411.钢筋绑扎要求:同一构件中相邻纵向受力钢筋的绑扎搭接接头宜相互错开;绑扎结头钢筋的横向净距不应小于钢筋直径,且不应小于25mm;钢筋扎接头连接区段的长度为1.3L1,L1为搭接长度;凡搭接接头中点位于该区段的长度内的搭接接头均属于同一区段;同一连接区段内,纵向受接钢筋搭接接头面积百分率应符合设计要求;当设计无具体要求时,应符合下列规定:对梁类、板类及墙类构件,不宜大于25%;对柱类构件,还宜大于50%;当工程确有必要增大接头面积百分率时,对梁类构件不应大于50%;对其他构件,可根据实际情况放宽;412.在梁、柱类构件的纵向受力钢筋搭接长度范围内,应按设计要求配置箍筋,无设计要求时按下列规定:箍筋直径不应小于搭接钢筋较大直径0.25倍;受拉搭接区段的箍筋间距不应大于搭接钢筋较小直径的5倍,且不应大于100mm;受压搭接区段的箍筋间距不应大于搭接钢筋较小直径的10倍,且不应大于200mm;当柱中纵向受力钢筋直径大于25mm时,应在搭接接头两端外100mm范围内各配置2个箍筋,其间距50mm;413.钢筋的机械连接包括套筒挤压连接和螺纹套管连接;414.钢筋安装或现场绑扎应与模板安装配合,柱钢筋现场绑扎时,一般在模板安装前进行;柱钢筋采用预制时,可先安装钢筋骨架,然后安柱模,或先安三面模板,待钢筋骨架安装后再钉第四面模板;梁的钢筋一般在梁模安装好后再安装或绑扎,梁断面高度罗大或跨度较大,钢筋较密的大梁,可留一面侧模,待钢筋绑扎或安装后再钉;楼板钢筋绑扎应在楼板模板安装后进行,并应按设计先划线,然后摆料、绑扎;415.模板是保证混凝土浇筑成型的模型,钢筋混凝土结构的模板系统是由模板、支撑及紧固件等组成;支架的作用是保护模板形状和位置;416.木模板是由一些板条钉拼而成的模板系统;组合模板是一种工具式模板,是工程中使用最多的一种模板;大模板是一种大尺寸的工具式模板,由主肋、次肋、支撑架、稳定机构及附件组成;滑升模板是一种工具式模板,由模板系统、操作平台和液压系统组成;爬升模板简称爬模,国外称跳模,是施工剪力墙体系和筒体体系的钢筋混凝土结构层建筑的一种有效的模板体系,我国已推广使用;台模是一种大型工具式模板,主要用于浇筑平板式或带边梁的楼板;隧道模是用于同时整体浇筑墙体和楼板的大型工具式模板;永久式模板是指一些施工时起模板作用而浇筑混凝土后又是结构本身组成部分之一的预制板材;417.模板安装的要求:安装现浇结构的上层模板及其支架时,下层楼板应具有承受上层荷载的承受力;在涂刷模板隔离剂时不得沾污钢筋和混凝土接槎处;模板的接缝严密,不应漏浆;浇筑前应先浇水湿润模板;模板与混凝土接触面应刷隔离剂;浇筑混凝土前,模板内杂物应清除干净;对清水混凝土或装饰混凝土工程,应使用达到设计效果的模板;用作模板的地坪、胎模等应平整光洁;对跨度不小于4米的钢筋混凝土梁、板其模板应按设计要求起拱;固定在模板上的预埋件、预留孔均不得遗漏;模板安装应保证结构和构件各部分的形状、尺寸和相互间位置的正确性;构件简单,装拆方便,能多次使用;08设备备品备件申购管理制度1 设备、备品备件申购管理制度页码1/2 文件编号XFWI-PM-08编写审核批准 1 目的规范设备、备品配件采购、管理工作程序。
2008年造价工程师考试《建设工程技术与计量》课本浓缩精华十451. 后张法张拉机具:拉杆式千斤顶、穿心式千斤顶、锥铺式双作用千斤顶、孔道的留设是后张法构件制作的关键工序之一;孔道留设的方法有以下几种:钢管抽芯法;胶管抽芯法;预埋波纹管法;452. 结构吊装工程中常采用的起重机具包括索具包括索具设备与起重机械;结构吊装中的起重机有自行杆式起重机、塔式起重机和桅杆式起重机等;自行杆式起重机包括履带式起重机、汽车式起重机和轮胎式起重机等;453. 塔式起重机有轨道式塔式起重机、爬升式塔式起重机、附着式塔式起重机;454. 混凝土结构吊装分为构件吊装和结构吊装两大类;其中构件的吊装包括构件的制作、运输、堆放、吊装;结构吊装分为单层工业厂房结构吊装和多层装配式框架结构吊装;455. 预制构件重叠数一般不宜超过四层;上、下层间一般要做好隔离层,上层构件的浇筑要等到下层构件设计强度的30%以后才可进行;对砼运输的基本要求是达到设计强度75%456. 预制构件吊装过程一般包括绑扎、吊升、就位、临时固定、校正和最后固定等工序;457. 按柱身吊起后是否能保持垂直状态,分为斜吊法和直吊法,相应的绑扎方法有:斜吊绑扎法和直吊绑扎法;柱的起吊方法,按柱在吊升分配痛苦各程中柱身运动的特点分为旋转法和滑行法;按使用起重机的数量,有单机起吊和双机起吊;458. 起重机的选择要根据所吊装构件的尺寸、重量及吊装位置来确定,可选择的机械有履带式起重机、塔式起重机或自升式塔式起重机;履带式起重机适宜于安装4层以下结构,塔式起重机适宜于4-10层结构,自升式塔式起重机适于10层以上结构;459. 起重机的三个工作参数:超重量;起重高度;起重幅度;460. 起重机的平面布置分为单侧布置和双侧布置、跨内单行和跨外环形布置;461. 结构吊装方法与吊装顺序:分件吊装法(单层工业厂房使用较多);综合吊装法;462. 工程中常用的吊装方法有整体吊装法、平移法、顶升法及提升法;463. 大跨度屋盖结构整体吊装法有多机抬吊法和桅杆吊升法两种;464. 大跨度屋盖结构整体平移法施工分滚动平移和滑动平移法;465. 顶升法和提升法的共同特点是:网架在地面进行拼装,然后用起重设备垂直地安装到设计标高;区别是:顶升法的千斤顶在网架之下,提升法的起重设备在网架之上;提升法适宜于周边支承的网架;顶升法适宜于点支承的网架;466. 升板结构的特点:柱网布置灵活,设计结构单一;各层板叠浇制作,节约大量模板;提升设备简单,不用大型机械;高窗作业减少,施工罗为安全;劳动强度减轻,机械化程度提高;节省施工用地,适宜狭地施工;但用钢量大,造价偏高;467. 一般抹灰按建筑物要求分为普通抹灰,中级抹灰、高级抹灰三个等级;468. 一般抹灰工程中的普通抹灰表面应光滑、洁净、接槎平整,分格缝应清晰;469. 一般抹灰分为:水泥砂浆抹灰;混合砂浆抹灰;石灰砂浆抹灰;石膏灰抹灰;纸筋灰抹灰;聚合物水泥砂浆抹灰;470. 一般抹灰的构造层次:底层;中层;面层;471. 水泥砂浆地面压光要三遍成活;普通硅配盐水泥终凝时间不大于2小时;472. 水泥砂浆地面一般在夏天24小时后养护,春秋季节在48小时后养护,养护不少于7天,矿渣水泥延长到14天,在水泥砂浆面层强度达不到5MPa之前,不得在上面行走;473. 木地板的装修做法:粘贴式木地板;实铺式木地板;架空式木地板;474. 地毯有块毯和卷材两种形式,不同的铺设方式和铺设位置分活动式铺设、固定式铺设;475. 裁割地毯时应沿地毯经纱裁割,只割断纬纱,不割经纱,对于有背衬的地毯,应从正面分开绒毛,找出经纱和纬纱后裁割;用胶粘贴的地毯,24小时内不得踩踏;476. 外墙面铺贴,镶贴顺序应自下而上发层分段进行,每段内内镶贴顺序也应是自下而上进行,而且应先贴附墙柱面,后贴大墙面,再贴窗间墙;477. 建筑涂料的选择原则:建筑的装饰效果;耐久性;经济性;478. 建筑涂料的选择方法:按建筑的装饰部位;按不同的建筑结构材料;按建筑物所处的地理位置和施工季节选择涂料;479. 涂层的形成:底涂料;中间层涂料;面层涂料;480. 常见的涂装方式有:刷涂;喷涂;滚涂;弹涂;481. 玻璃钢幕墙强构形式:一是饰面的玻璃;二是固定玻璃的骨架;482. 玻璃幕墙结构:型钢骨架;铝合金型材骨架;无骨架玻璃幕墙;483. 铝合金骨架分为明框、隐框、半隐框;484. 玻璃幕墙施工方法:安装紧固连接件;固定竖向主龙骨;固定横向主龙骨;安装玻璃;485. 框内两侧密缝材料,一般是由两部分组成,一部分是填缝材料,二部分是防水密封胶;486. 路基施工包括路基土石方施工、路基整修、路基排水及防护工程等;487. 路基施工基本方法有以下几种:人工施工;简易机械化施工;水力机械化施工;爆破法施工;机械化施工;488. 路基土方作业的工作内容:由开挖、运输、填堆、压实、整修五个环节组成;489. 路堤坝填筑方法有水平分层填筑法、竖向填筑法、纵向分层填筑法竖向填写筑法和混合填筑法;490. 路堑的开挖有横挖法;纵挖法;混合法几种;491. 爆破作业的施工程序:对爆破人员进行施工技术培训和安全教育 -对爆破器材进行检查-试验-清除表土-选择炮位-凿孔-装药-堵塞-敷设起爆网络-设置警介线-起爆-清方等;主要工序有:炮位选择、凿孔、装药、药孔堵塞、起爆、清方;492. 装药的方式:集中药包;分散药包;药壳药包;坑道药包;493. 在选择清方机械时应考虑以下技术经济条件:工期所要求的生产能力;工程单价;爆破岩石的块度和岩堆的大小;机械设备进入工地的运输条件;爆破时机械撤离和重新进入工作面是否方便等;就经济性业说,运距在30-40米以内,采用推土机较好;40-60米用装载机自铲运较好;100米以上用挖掘机配合自卸汽车较好;494. 路面施工包括备料、路床施工、路面基层施工、路面面层施工、路容整修等;495. 现行规范规定:高速公路和一级公路的稳定土基层,应采用集中厂绊法施工;496. 中心厂拌法与路拌法施工的主要区别:第一,水泥稳定土混合料在中心站用强制式拌和机等厂拌设备进行集中拌和;第二,混合料用摊铺机进行摊铺;配料精度高,混合料拌和质量好,缩短了延迟时间,摊铺的厚度均匀,平整度好;497. 水泥稳定土施工时,必须采用流水作业法,使各工序紧密衔接,特别要缩短从拌和到碾压终了之间的延迟时间;一般情况下,每一作业段以200米为宜;498. 沥青路面按施工方法分为层铺法、路拌法和厂拌法;层铺法是分层洒布沥青、分层铺撒矿料和碾压的方法修筑路面(主要路面层铺式沥青表面处治和沥青贯入式两种);路拌法是在施工现场以不同方式将冷料热油或冷料拌和摊铺和压实的方法;厂拌法是集中设置拌和基地,采用专门设备,将具有规定级配的矿料和沥青加热拌和,然后将混合料运至工地热铺热压或冷铺冷压的方法;499. 热拌沥青混合料路面的施工过程包括四个方面:混合料的拌制、运输、摊铺和压实成型;500. 沥青混合料的分层厚度不得大于10cm,压实应校初压、复压、终压三个阶段进行;。
2008年云南省工程建设造价员考试试卷土建专业技术与计量一、单选题:(70题,每题1分,共70分)1.形体被剖切后形成的截面轮廓线,用( B )绘制。
[P35]A.虚线 B.粗实线 C.中粗线 D.粗线2.建筑制图的国家标准《建筑制图标准》(GB/T50104—2001)中“GB/T”为( B )。
[P1]A.强制性国家标准代号 B.推荐性国家标准代号C.行业标准代号 D.地方标准代号3.建筑施工图包括总平面图、平面图、立面图、剖面图和( D )。
[P53]A.结构详图 B.系统图 C.电气设备布置平面图 D.构造详图4.在平面整体表示法中,柱配筋常采用( A )方式来表达。
[P92]A.列表法和截面法 B.平面法和列表法C.平面法和截面法 D.平面法、列表法和截面法5.根据钢筋混凝土结构设计规定,通常板、墙的保护层最小厚度为( B )。
[P79] A.10~15mm B.15~20mm C.25~30mm D.35mm6. 工业建筑按层数分类,划分为( B )类。
[P101]A.二 B.三 C.四 D.五7.( C )直接承受着由基础传来的全部荷载,包括建筑物自重和其他荷载。
[P116]A.地面 B.基础 C.地基 D.楼梯8.毛石混凝土基础中毛石掺入量不超过混凝土体积的( C ),否则不易振捣密实。
[P123] A.15% B.20% C.25% D.30%9.下列地基必须进行加固的是( B )。
[P117]A.岩石 B.杂填土 C.碎石土 D.砂土10.( B )俗称18墙。
[P133]A.半砖墙 B.3/4砖墙 C.一砖墙 D.一砖半墙11.砖混结构构造柱与砖墙的连接必须( A )。
[P144]A.先砌墙后浇柱 B.先浇柱后砌墙 C.浇柱砌墙同时进行 D.其他12.楼层地面的基本构造层次为( C )和基层。
[P174]A.垫层 B.结合层 C.面层 D.防水层13.下列关于悬吊式顶棚的描述,不正确的是( D )。
08年造价员考试工程计量模拟试题一2008年09月24日 11:06 阅读次数:1046一、单项选择题1.民用建筑分[B ]两大部分。
A生活建筑和公共建筑B 居住建筑和公共建筑C居住建筑和文化建筑D生活建筑和公共建筑解析:民用建筑指的是供人们活动的建筑。
包括居住建筑和公共建筑两大部分。
2.严寒地区受动荷载作用的焊接结构,应选用碳素结构钢的品种是[ ].A.q235-afB.q235-bC.q235-a.bD.q235-d答案:D解题要点:碳素结构钢按脱氧程度分镇静钢、半镇静钢和沸腾钢。
镇静钢最好,质量等级自a到d逐次提高,在低温承受动荷载的焊接结构,工作环境恶劣,应选用d级的镇静钢。
3.调制罩面用的石灰浆不得单独使用,应掺入麻刀和纸筋等以[ ]A.节省石灰B.防止开裂C.易于施工D.增加美观度答案:B解题要点:石灰浆在空气中硬化时有体积收缩现象,为防止抹面因收缩而开裂,应掺入麻刀或纸筋抵抗收缩拉力,防止裂缝。
4.其他条件一定时混凝土强度随水灰比的增大而[ ].A.增大B.不变C.降低D.不一定答案:C解题要点:决定混凝强度的因素有水泥标号、水灰比、骨料性质、温湿度、龄期等。
水灰比越大,多余的水越多(因水泥水化所需水量是一定的)。
多余的水在混凝土中会形成水泡或蒸发形成气孔,从而使强度降低。
5.试配c35混凝土,容重为2 450kg/m3,现已知单位水泥用量428 kg,单位用水量182kg,则该混凝土1 立方米所需的砂石总重量为[ ]kg.A.1 284B.1 840C.1 498D.1 584答案:B解题要点:1立方米,混凝土重2450k8,是由4种成分组成。
现已知水和水泥的用量,所以砂石总重量应为2 450—(428+182);1 840kg.6.某混凝配比设计中,、已知单位用水量为180 kg,水灰比为0.7,重量砂率为35%,则单位石子用量为[ ]kg.A.687B.1 362C.1 276D.733答案:C解题要点:已知单位用水量及水灰比可求单位水泥用量为180/0.7=257kg,1 立方米混凝土重量为2 400kg,则砂石总重量为2 400—(180+257)=1 963 kg,又知砂率为35%,则石子含率为65%,所以石子重量应为1 963x0.65=1 276kg.7.欲设计c30普通混凝土(σ=5),其试配强度为[ ]mpa.A.21.8B.38.2C.30D.40答案:B解题要点:试配强度fcu = fcu.k +1.645σ=30+1.645*5=38.2mpa.8.工业建筑的分类中多层厂房指层数在[ ]层及以上的厂房。
A、1B、2C、3D、6答案:B分析:工业建筑的分类按层数分(1)单层厂房。
(2)多层厂房。
指层数在二层及以上的厂房,常用的层数为二-六层。
(3)层次混合的厂房。
指单层工业厂房与多层工业厂房混合在一幢建筑中。
9.柔性基础断面可做成梯形,最薄处高度不小于[ ] mm;A、100B、200C、300D、350答案:B分析:柔性基础。
在混凝土基础底部配置受力钢筋,利用钢筋受拉,这样基础可以承受弯矩,也就不受刚性角的限制。
所以钢筋混凝土基础也称为柔性基础。
在同样条件下,采用钢筋混凝土基础比混凝土基础可节省大量的混凝土材料和挖土工程量,钢筋混凝土基础断面可做成梯形,最薄处高度不小于200mm;也可做成阶梯形,每踏步高300-500mm.10.有一公路工程,借土填方,土源为地面存土,运距3 km,完成这一作业应选用的机械为[ ]A.铲运机B.正铲挖土机十自卸汽车+推土机C.反铲挖土机+自卸汽车+推土机D.推土机答案:B解题要点:推土机、铲运机虽具备独立挖土、运土、卸土的性能,但运距有限,3 km 超过其最佳运距。
另外土源为地面存土,只有用正铲挖土机挖土,当然要配自卸汽车运至路基处卸土,仍需用推土机推成填土路基。
所以正确的机械选用应是b项。
11.流水节拍是指一个专业队[ ]A.整个工作的持续时间B.在一个施工段上的持续时间C.最短的持续工作时间D.转入下一施工段的间隔时间答案:B解题要点:流水节拍是时间参数中的一个,是指某个专业队在一个施工段上的作业时间。
12.某工作有两项紧前工作a、b,其持续时间为a=3,b=4,其最早开始时间是a=5,b=6,则本工作的最早开始时间是[ ]A.5B.6C.8D.10答案:D解题要点:本工作有两个紧前工作,则本工作最早开始时间必须在两个紧前工作都完成后方能开始,而a工作第5天(实际是第5天末)开始,持续3天,就是第8天末完成,月工作第6天开始(实际是第6天末)开始,持续4天,须第10天末完成,因此本工作最早的开始时间是第10天末。
13.某项施工过程有两项紧后施工过程c、d,c的最迟完成时间是第20天,d的最迟完成时间是第15天,c、d的施工过程持续时间分别为第7天和第12天,则本施工过程的最迟完成时间应是[ ]天。
A.20B.15C.3D.13答案:C解题要点:一施工过程如有两个以上的紧后施工过程,则本施工过程的最晚完成时间应是紧后施工过程最迟开始时间中的最小值。
c施工过程的最晚开始时间应为20—7=13,d过程的最晚开始时间应为15—12=3.所以本施工过程的最迟完成时间应是第3天。
14.一六层住宅,勒脚以上结构的外围水平面积,每层为600m2,六层无围护结构的挑阳台的水平投影面积之和为200m2,则该工程的建筑面积为[ ]m2.A、700B、3700C、3800D、3600答案:B解题要点:建筑物的建筑面积是勒脚以上结构外围面积各层之和。
无围护结构的阳台其建筑面积为其水平投影面积之半。
据以上两条规则,该建筑的建筑面积应为600*6+200/2=3700平米15.[ ]常在跨径大于100m的桥梁上选用;A、悬臂浇筑施工B、悬臂拼装法C、伸缩臂拼装法D、顶推法施工答案:A分析:悬臂浇筑施工简便,结构整体性好,施工中可不断调整位置,常在跨径大于100m 的桥梁上选用;悬臂拼装法施工速度快,桥梁上下部结构可平行作业,但施工精度要求比较高,可在跨径100m以下的大桥中选用;16.墩台混凝土水泥应优先选用[ ].A、硅酸盐水泥B、矿山渣水泥C、普通硅酸盐水泥D、高标号普通硅酸盐水泥答案:B分析:墩台混凝土特别是实体墩台均为大体积混凝土,水泥应优先选用矿山渣水泥、火山灰水泥,采用普通水泥时标号不宜过高。
当墩台截面小于或等于100m2时应连续灌筑混凝土,以保证混凝土的完整性;17.钻爆法开挖隧洞,最先起爆的炮眼是()A.周边眼B.掏槽眼C.底板眼D.掘进眼答案:B分析:中心掏槽孔附近各组之间采用毫秒延迟雷管起爆;靠外边几组可采用秒延迟雷管,各相隔1s或2s起爆。
18下列叙述正确的是[ ].A.在软土和新填土中宜采用爆扩灌注桩B.爆扩灌注桩成孔简便,节省劳力,成本低,桩的承载力大C.当桩基设计标高不同时,打桩顺序是先浅后深D.当桩规格不同时,打桩顺序是先细后粗,先短后长答案:B解题要点:爆扩灌注桩是利用炸药爆炸后,气体急剧膨胀,压缩周围土体形成的桩孔,所以桩孔壁土体密实度增大,从而增大桩的承载力。
而对软土和新填土,因其松软,空隙率大,造成填塞不好,爆破效果差,孔形不规则,所以在软土和新填土中不宜采用,备选项b 是正确的。
19、无合同工期的工程工期,[ ].A、甲方指定工期为准B、以实际工期为准学易网提供C、工期定额为最长工期限制D、施工防计划工期为准答案:C分析:工期应控制在合同工期以内,无合同工期的工程工期,以工期定额为最长工期限制。
20、地下工程的防水,在设计时应优先考虑[ ]A、sbs防水结构B、机械排水C、防水混凝土自防水结构D、卷材防水结构答案:C分析:地下工程的防水,应考虑地表水、潜水、上层滞水、毛细管水等的作用,以及人为因素引起的附近水文地质改变的影响。
在设计时应优先考虑自流排水和防水混凝土自防水结构,21、延缓工期则会使[ ]提高A、设计费费B、管理费用C、材料费D、单体试车费答案:B分析:工期与造价有着对立统一的关系。
这是因为,加快工期需要增加投入,而延缓工期则会导致管理费用的提高。
因此,要经过优化确定合理的工期。
22、选择施工机械时,首先应该选择[ ]的机械。
A、租赁B、大型C、主导工程D、进口答案:C分析:选择施工机械时,首先应该选择主导工程的机械,根据工程特点决定其最适宜的类型。
23、降低成本措施。
降低成本措施的制定应以[ ]为尺度,A、概算B、标底C、施工预算D、结算答案:C分析:降低成本措施。
降低成本措施的制定应以施工预算为尺度,以企业(或基层施工单位)年度、季度降低成本计划和技术组织措施计划为依据进行编制。
要针对工程施工中降低成本潜力大的(工程量大、有采取措施的可能性、有条件的)项目,提出措施,并计算出经济效果和指标,加以评价、决策。
24、适合砌筑处于潮湿环境下的砌体的沙浆是()。
A .石灰砂浆B .水泥沙浆C .大比例石灰沙浆D .A、C均可答案:B水泥砂浆属于水硬性材料,强度高,适合砌筑处于潮湿环境下的砌体。
石灰砂浆属气硬性材料,强度不高,多用于砌筑次要的建筑地面以上的砌体。
强度等级分m0.4,m1…。
m15.25.工程施工组织设计的编制原则正确的是[ ]A、尽量不利用正式工程,以免污染,损坏。
B、一次完成所有的施工准备工作,可以节省投资。
C、与施工项目管理相结合D、必须安排分期分批建设,配套投产或交付使用答案:C分析:相关原则有:(1)严格遵守工期定额和合同规定的工程竣工及交付使用期限。
应根据生产的需要,安排分期分批建设,配套投产或交付使用,必须注意使每期交工的一套项目可以独立地发挥效用,使主要的项目同有关的附属辅助项目同时完工,(2)合理安排施工程序与顺序。
①要及时完成有关的施工准备工作,可以一次完成或分期完成;②正式施工时应该先进行平整场地,铺设管网、修筑道路等全场性工程及可供施工使用的永久性建筑物,然后再进行各个工程项目的施工;(3)尽量利用正式工程、原有或就近的已有设施,以减少各种暂设工程;(4)与施工项目管理相结合。
对于小型企业或大型建设项目的某个系统,由于工期较短或生产工艺的要求,亦可不必分期分批建设,采取一次性建成投产。
26.下列项目应计算建筑面积是[ ].A.地下室的采光井B.室外台阶C.建筑物内的操作平台D.穿过建筑物的通道答案:D解题要点:室外台阶,建筑物内的操作平台明确规定不计算建筑面积,地下室要计算建筑面积但不计算采光井,所以本题计算建筑面积的只有d项。
27、地基强夯[ ].A、按设计图示尺寸以体积计算B、按设计图示尺寸以面积计算C、按实际尺寸以面积计算D、按设计图示尺寸外扩2m以面积计算答案:B分析:地基强夯按设计图示尺寸以面积计算,计量单位为平米.28.雨篷、阳台计量不正确的是[ ]A、按设计图示尺寸以外墙外边线以外部分的体积计算B、伸出墙外的牛腿和雨篷反挑檐不计算C、伸出墙外的牛腿合并在体积内计算D、伸出墙外的雨篷反挑檐合并在体积内计算答案:B分析:雨篷、阳台按设计图示尺寸以外墙外边线以外部分的体积计算,计量单位为立方米.伸出墙外的牛腿和雨篷反挑檐合并在体积内计算。