三层独院式新农村住宅设计方案图纸
- 格式:dwg
- 大小:1.00 MB
- 文档页数:1
底层带商铺农村自建房
一、建筑概况
建筑高度:12米(含屋顶)
结构形式:砖混结构;
占地:本工程的占地面积为195平方米
总建筑面积:为448平方米
层数:三层
二、建筑功能
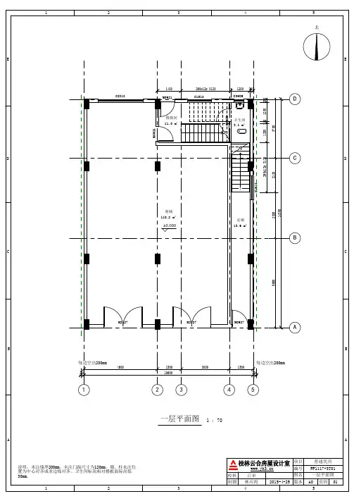
一层:主客厅、过道、卫生间、老人卧室、商铺
二层:卧室、起居客厅、卫生间、厨房、阳台
三层:休闲区、露台厨房、餐厅、储物室、卧室、卫生间
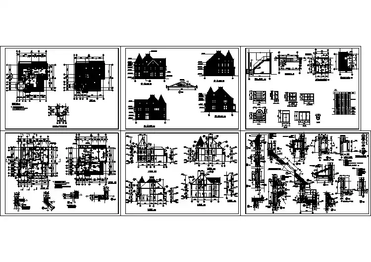
三、图纸目录
建筑:一层平面图、二层平面图、屋顶平面图,按乡镇报建图标准绘制。
效果图:外立面图、一层室内图。
四、图纸文件
1、效果图
2、建筑平面图
1、效果图
首层老人房
首层客厅、老人房、卫生间视角
2、建筑平面图。
三层带车库新农村房屋设计图纸及效果图图纸属性
编号:
DC0157层数:
三层结构形式:
砖混结构主体造价:22-26万
开间:
11.04米进深:
11.94米占地面积:
116.7平方米建筑面积:
325.01平方米图纸内容
建筑图:
建筑设计说明、一层平面图、二层平面图、三层平面图、屋顶平面图、正立面图、背立面图、左立面图、右立面图、剖面图、楼梯详图、节点详图
结构图:
结构设计总说明、基础平面图、基础详图、柱结构平面图、一层梁结构平面图、一层结构平面图、二层梁结构平面图、二层结构平面图、三层梁结构平面图、三层结构平面图、屋顶梁结构平面图、屋顶结构平面图、楼梯结构图
给排水图:
给排水设计说明与图例、一层给排水平面图、二层给排水平面图、三层给排水平面图、屋顶给排水平面图、给排水系统图
电气图:
电气设计说明与图例、配电系统图、弱电系统图、总等电位联接示意图、卫生间局部等电位联结详图、一层照明平面图、二层照明平面图、三层照明平面图、一层插座平面图、二层插座平面图、三层插座平面图、一层弱电平面图、二层弱电平面图、三层弱电平面图
设计功能
一层:
走廊、客厅、卧室、厨房、餐厅、卫生间、车库
二层:
客厅(附阳台)、主卧(附衣帽间,卫生间)、2卧室、卫生间
三层:
客厅(附阳台)、2卧室、卫生间、露台。