地下室外墙止水螺栓大样图
- 格式:dwg
- 大小:63.94 KB
- 文档页数:1
住宅五大部位的防渗漏措施--附细部节点图做法随着社会的进步和发展以及业主对住宅品质的高要求,对防渗漏施工提出更高要求。
结合现场实际施工要求,对地下室、外墙、厨卫、出屋面、外门窗等部位采取一定防渗抗漏措施,确保实现无渗漏工程。
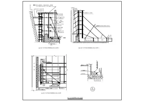
一、地下室防渗漏(1)地下室止水螺杆要求1、止水片焊缝必须饱满;2、拆模后螺栓凹槽部位用密封材料封堵,凹槽深度不小于20mm;3、基层处理工作必须在侧墙大面积防水卷材及涂层施工前完成。
(2)地下室施工缝要求1、地下室施工缝必须使用止水钢板;2、止水钢板必须进行搭接,搭接长度不得小于25mm,且必须进行双面满焊;3、施工缝二次浇筑前,应将其表面浮浆和杂物清除;4、施工缝位置必须进行防水附加施工。
(3)地下室套管要求1、穿墙套管必须为刚性止水套管;2、套管防水附加层施工必须严格按照节点做法进行;3、套管位置必须施工防水附加层。
(4)地下室阴阳角要求1、凡地下室顶板或挡墙涉及阴阳角部分都必须使用大面同规格的卷材施工附加层;2、阴阳角处必须做圆弧或折角;3、阴阳角防水附加层必须先施工验收合格后才能进行大面卷材的铺贴。
4、桩头钢筋设置止水环,桩头处涂刷水泥基渗透结晶防水涂料。
二、外墙防渗漏(1)穿墙套管处理要求1、拆模后螺栓套管应剔除(至少剔除20mm以上)满足基层堵漏条件;2、外侧用1:2干硬性膨胀水泥砂浆封堵,20~30mm深,从内侧往螺栓孔中注入聚氨酯发泡胶,可打满孔洞,且在发泡胶未干时将外露的发泡胶按入洞内;3、该工序应在内、外墙体抹灰或保温施工前完成,并作为一个专项隐蔽验收内容,验收合格后方可进行下一道工序施工。
(2)外墙砌筑要求1、外墙混凝土反坎必须凿毛验收后方可关模,反坎关模不得使用穿墙套管、铁丝等进行关模,必须使用混凝土进行浇筑,混凝土浇筑时,应使用铁钎或振动棒进行振捣且一次性浇筑到位;2、外墙砌筑预留孔洞,必须使用混凝土包管,不得直接将套管放入砌体施工;3、外墙构造柱不得使用步步紧穿墙加固,应使用对拉螺杆加固;4、外墙砖缝不应出现灰缝不饱满、未勾缝、瞎缝现象;5、外墙脚手眼封堵应按照构造柱施工进行封堵,设簸箕口、细石混凝土浇筑密。
止水螺杆施工方案
地下工程防水技术规范GB50108-2008第4.1.28 防水混凝土结构内部设置的各种钢筋或绑扎铁丝,不得接触模板。
用于固定模板的螺栓必须穿过混凝土结构时,可采用工具式螺栓或螺栓加堵头,螺栓上应加焊方形止水环。
拆模后应将留下的凹槽用密封材料封堵密实,并应用聚合物水泥砂浆抹平(图4.1.28)。
我公司结合本工程特点及地下工程防水技术规范GB50108-2008。
第4.1.28的要求,现特编制地下室、正负零以下剪力墙、梁、柱等用止水螺杆的施工方案,所有外墙的全部用φ12国标止水螺杆750mm,横向间距是@300,纵向间距是@450,中间对拉止水杆的长度根据墙体实际厚度进行调整加工,无法回收,止水螺杆焊三个止水钢片。
支地下外墙模板前应将模板拼好,在拼号的模板上按上述横纵向间距弹线,打螺杆眼。
然后先支一侧模板,从另一侧开始放螺杆,在剪力墙上把螺杆水平固定在钢筋上,然后支内模。
螺杆每端用现个螺帽、两个山形卡。
混凝土浇筑等到强度达到50%后开始松动螺杆的内外螺帽,强度达
100%后割螺杆两端。
割螺杆前应用尖钻子把止水螺杆两端的密封塑料圈凿除。
然后再开始割螺杆。
杜绝因混凝土未达到强度来拆模或割螺杆而将止水螺杆松动,影响以后螺杆部分的渗水。
外
墙
止
水
螺
杆
施
工
方
案
建筑工程有限公司2015年12月
地下室、正负零下外剪力墙、柱等用止水螺杆的施工设计为:
根据施工设计图纸要求及地下工程防水技术规范GB50108-2008第4.1.28 防水混凝土结构内部要求,各种钢筋或绑扎铁丝,不得接触模板。
用于固定模板的螺栓必须穿过混凝土结构时,采用工具式螺栓或螺栓加堵头,螺栓上应加焊方形止水环。
拆模后应将留下的凹槽用密封材料封堵密实,并应用聚合物水泥砂浆抹平(图4.1.28)。
我公司结合本工程特点及地下工程防水技术规范GB50108-2008。
第4.1.28的要求,对地下室、正负零下外剪力墙、柱等用止水螺杆的施工,地下室外墙用于固定模板的螺杆必须采用φ12一次性止水对拉螺杆。
横向间距@250纵向间距@450,止水螺杆焊三个止水片。
支地下外墙模板前应先将模板拼好,在拼好的模板上按上述横纵向间距弹线,打螺杆眼。
然后先支一侧模板,从另一侧开始放螺杆,
在剪力墙上把螺杆水平固定在钢筋上,然后支内模。
螺杆每端用现个螺冒、两个山形卡。
混凝土浇筑等强度达到50%后开始松动螺杆的内外螺冒,强度达100%后割螺杆两端。
割螺杆前应先用尖钻子把止水螺杆两端的密封塑料圈凿除。
然后再开始割螺杆。
杜决因混凝土未达到强度来拆模或割螺杆而将止水螺杆松动,影响以后螺杆部位的渗水。
螺杆部位直径≥100mm,深度≥50mm部位先行凿毛;螺杆切割结束后用防锈漆将螺杆两端刷两遍;浇水湿润,刷两遍水泥浆;再用1∶2干硬性水泥聚合物防水砂浆补螺杆洞两遍压实抹平;养护一个星期。
地下室外墙防水做法地下室外墙防水常规做法外墙施工程序与方法按墙体结构与卷材施工的先后顺序可分为外贴法和内贴法两种程序。
(1)外贴法:墙体结构→防水→保护特点:结构及防水层质量易检查,可靠性强;需肥槽宽,工期长。
(2)内贴法:垫层、保护墙→防水层→底板及结构墙特点:槽宽小,省模板;损坏无察觉,可靠性差,内侧模板不好固定。
用于场地小,无法采用外贴法的情况下。
外贴法防水构造内贴法防水构造SBS卷材防水施工工艺(1)施工工法灵活SBS卷材防水系统的施工安装方法有:满粘法、条粘法、点粘法、空铺法等,当辅助采用机械固定时,系统性能更加优越。
地下工程的底板部分采用空铺,基层潮湿无影响,可极大提高施工速度,缩短施工工期。
侧墙部分采用满粘施工,可取得最佳的刚柔无间隙结合的防水效果。
(2)使用环境情况北方地区气候干燥,温差较大,钢筋混凝土的蒸发干燥速度极快,现浇混凝土结构微细裂缝普遍存在;SBS卷材防水系统因其高强胎体存在,能够有效避免结构变形引起的防水层“零延伸断裂”现象。
并且SBS卷材在-10℃气温下亦能施工,材料在-50℃仍能保持防水功能。
1.节点处理(1)外侧增设钢筋网片地下室外墙外侧的钢筋混凝土保护层厚度一般较大,容易产生干缩裂缝,给外墙渗水带来隐患,为此,可与设计协商在外墙外侧增设一道ф4@150的钢筋网片(见下图),防裂效果明显。
(2)止水钢板处节点做法(焊接)注意箍筋节点处理(3)水平施工缝防水节点1)浇筑混凝土前,应将其表面浮浆和杂物清除,然后铺设净浆,并及时浇筑混凝土。
2)墙体水平施工缝应留设在高出底板表面不小于300mm的墙体上。
3)止水钢板应加工成“〔”状,钢筋不宜穿止水钢板,采取补焊的方法无法保证质量。
有箍筋的构件,箍筋在此处宜采取将箍筋断开,弯折10d以上与止水钢板焊接的工艺方法。
4)止水钢板接头必须采用搭接焊接,搭接长度应≥50mm,焊接必须为4个方向焊接。
注:尽量用钢板止水带替代膨胀止水条和橡胶止水带。
地下室混凝土外墙防水套管安装工法JLJGGF029-2009吉林**集团有限公司1.前言随着现代城市建设的不断发展,地下室防渗墙、水池防水技术越来越成为工程施工中得技术重点,尤其对承受振动和伸缩变形的穿墙管道套管制作安装要求也越来越高。
针对目前传统的防水柔性套管制作成本高,施工定位难,操作难度大等问题,在建筑给排水标准图02S404柔性防水套管的基础上进行改进,创新了一种新型柔性防水套管制作与安装工法,又称为墙面平齐型柔性防水套管制作与安装工法。
该套管与传统的柔性防水套管相比增加了贮丝仓,缩短了套管长度(图1),具有制作简单、施工方便、性能可靠、省工省料等特点。
2.工法特点2.1新型的墙面平齐型柔性防水套管与传统的柔性防水套管相比具有用料少、施工方便、安装快捷、省工省料、使用安全可靠等优点。
2.2与传统柔性防水套管相比不损坏模板,减少土建支模工序,免除混凝土二次浇注,止水效果好,且降低了土建粉刷墙面时的难度和工作量。
2.3贮丝仓的添加可使用套管法兰缩进混凝土墙内,从而有效缩短了整个套管的长度,同时保证了法兰压盖将止水环充分压紧,压盖螺栓由原来使用双头螺栓改为单头、双头均能使用,且贮丝仓内可填充黄油便于以后维修拆卸。
2.4与传统柔性防水套管相比不用投入大量人力配合,即可保证定位准确,且不会跑模、涨模,杜绝了墙体补洞修复的工作量,提高了工程质量,简化了安装与土建的配合工序,加快了工程进度,降低了工程成本。
3.使用范围本工程使用与公共、民用建筑给排水管道工程的施工。
特别适用于用防水要求的地下室防渗外墙,生活、消防水池等对止水、振动有特殊要求的穿墙管道的定位连接。
可推广应用于其他建筑安装工程中对止水、振动有特殊要求的穿墙管道施工。
4.工艺原理该工法是在建筑给排水标准图02S404关于柔性防水套管制作安装的基础上创新而成。
由传统的两端露出墙体一定长度的柔性防水套管通过增加贮丝仓使法兰压盖的固定螺栓深入到混凝土中,不与混凝土面直接接触,从而使整个套管缩短至墙体厚度,两端与墙面平齐。
中国建筑第八工程局有限公司 山东省交通科学研究所研发基地项目
对拉螺栓加固模板方案
1.止水对拉螺栓:
1.1 使用部位:1)地下室砼外墙及外墙柱。
2)有防水要求的砼墙体,如结构实验楼水池、
汽车侧翻台,道路楼的1-2/A-D 轴预留实验室、8-17/D-F 轴水池墙体。
1.2 设置要求:墙:竖向底部第一排离地200mm ,以上竖向间距500mm ,水平向间距500mm
1.3 施工简图:
2.普通对拉螺栓: 2.1 使用位置: 1)砼内墙。
2)非地下室外墙的框架柱,柱截面≥600时,设对拉螺栓加固。
3)框架梁:当梁高度≧600mm ,设一道对拉螺栓;当梁高度≧1000mm ,在梁高度1/3、2/3处设两道对拉螺栓。
2.2 使用间距:1)墙体: 竖向底部第一排从200mm 起、一排以上竖向、水平均为500mm 。
2)框架柱:竖向底部第一排从200mm 起、一排以上竖向间距500mm 。
3)对拉螺栓沿梁长方向间距600 mm 。
2.3 制作简图:
14对拉螺栓16PVC 套管。
A2施工方案报审表工程名称:岳阳碧桂园芭蕉湖项目一期二地块一批次一标段编号: 致:湖南省硅谷项目管理有限公司(监理单位)我方已根据施工合同的有关规定完成了地下室外墙止水螺杆专项施工方案的编制并经我单位上级技术负责人审查批准,请予以审查。
附:1、地下室外墙止水螺杆专项施工方案承包单位〔章〕项目经理日期审查意见:监理单位(章)专业/总监理工程师日期 _ _ 审核意见:建设单位(章)专业/总工程师日期—审核意见:区域工程技术部(章) __________________专业/总工程师日期______________________________ 岳阳碧桂园芭蕉湖项目一期二地块一批次一标段地下室外墙止水螺杆专项施工方案编制人:审核人:审批人:广东腾越建筑工程有限公司二O—六年目录1、编制依据..........................2、工程概况..........................3、使用要求..........................地下室外墙止水螺杆专项施工方案1、编制依据《建筑施工模板安全技术规范》JGJ162-2008《防水工程技术规范》2、工程概况本工程为岳阳碧桂园芭蕉湖项目一期二地块一批次,位于岳阳市临港北路东侧,芭蕉湖西侧,建筑面积 5.68万川,共41栋。
工程规模包括:三层住宅建筑,型号有BJ240N( 3C)、BJ260S(3C)、BJ350N(3S);十八层住宅建筑,型号有YJ125T-1、YJ140T-4、16层住宅建筑,型号为YJ260T;配套变配电房及地下室。
建设单位为岳阳市碧桂园房地产开发有限公司,设计单位为广东省博意建筑设计院有限公司,监理单位为湖南省硅谷项目管理有限公司。
岳阳市地区工程抗震设防烈度为7度。
工程别墅采用钢筋混凝土框架结构,高层采用框剪结构,建筑结构安全等级为二级,设计施工年限为50年。
工程拟采用桩基础。
3、施工要求防水工程技术规范GB50108-2008防水混凝土结构内部要求各种钢筋或绑扎铁丝,不得接触模板。
3.5.涂刷第一遍防水涂料:待螺杆孔砂浆干燥后,在以止水螺杆洞为中心直径50mm范围内的圆形区域内涂刷 0.5mm厚的聚氨酯防水涂料。
3.6.涂刷第二、第三遍防水涂料:以止水螺杆洞为中心直径 40mm范围内的圆形区域内涂刷 0.5mm厚的聚氨酯防水涂料。
3.7.墙内侧打入发泡剂:将墙体外侧已封堵完成的止水螺杆洞内侧打入发泡剂,必须打入饱满,填塞完成待聚氨酯发泡剂硬化达到强度后再进行砂浆封堵。
3.8.洒水润湿:使用喷壶将墙内侧打入发泡剂的止水螺杆洞口进行喷水润湿。
3.9. 抗裂砂浆封堵:用铁抹子将干硬性抗裂砂浆塞入墙外侧止水螺杆孔,填实深度大于 20mm。
3.10.抹平:用铁抹子将墙体内侧止水螺杆孔处将露出的砂浆铲除并与外墙面抹平。
螺杆孔封堵示意图
五、其他部位止水螺杆洞封堵
1、地下室电梯井螺杆洞封堵方法同外墙外侧止水螺杆洞封堵方法。
2、楼内剪力墙螺杆洞封堵方法同正负零以上外墙内侧止水螺杆洞封堵方法。
六、施工技术要点
1、孔边松散混凝土必须凿除。
1、本表由施工单位填写,交底单位与接受交底单位各存一份。
目录一、编制依据 (2)二、工程概况 (2)三、施工准备 (2)四、工艺及技术措施 (3)五、质量要求 (9)六、质量保证措施 (10)七、注意事项及成品保护 (11)八、安全文明施工要求 (13)一、编制依据1.1、施工图纸1.2、本工程施工组织设计1.3、《地下防水工程质量验收规范》GB50208-20111.4、《地下工程防水技术规范》GB50108-2008二、工程概况2.1、“山水雅苑”小区公租房A2标段位于乌市水磨沟区八道湾村,本工程地下室的底板和外墙防水采用聚乙烯丙纶复合防水卷材(FS2 400g/m2)防水卷材防水层做法。
2.2、根据设计图纸,本工程地下室防水等级为一级。
2.3、地下室底板做法从下至上(1)素土夯实;(2)100厚C20垫层;(3)20厚1:2.5防水砂浆找平层;(4)FS2(400g/㎡)复合防水卷材;(5) 50厚C20防水保护层;(6)抗渗混凝土底板,抗渗等级为P6。
地下室外墙做法从里向外(1)抗渗混凝土墙体(P6);(2)20厚1:2.5防水砂浆找平层;(3)FS2(400g/㎡)复合防水卷材;(5) 50厚XPS挤塑聚苯板保护层。
三、施工准备3.1、技术准备1)、施工作业人员及施工管理人员熟悉施工图纸,了解施工方法及特殊节点部位施工要求。
2)、施工作业人员已经过技术交底及安全交底。
3.2、机具准备毛刷、300mm硬橡胶刮板、搅拌器具、剪刀、制浆容器、腻刀、清扫工具等。
3.3、材料准备1)、聚乙烯丙纶复合防水卷材(FS2 400g/㎡)2)、水泥3)、胶黏剂。
3.4、现场准备1)、现场基层C20混凝土垫层浇筑已完成,为更好的配合防水层施工,要求垫层面压光处理,阴阳角做圆弧,圆弧半径≥50mm。
基层要求干净、干燥、无起砂现象,含水率不得大于9%,检查方法可采用1㎡卷材覆盖2小时候翻看,无明显水渍即可施工。
2)、确定管理机构、作业班组,根据项目部进度计划要求配备充足劳动力。
地下室剪力墙止水对拉螺栓施工方案Revised by Petrel at 2021剪力墙模板止水对拉螺栓施工方案工程概况工程概况1.本工程系武汉汇博苑1#、2#、3#住宅楼及地下室工程,地处武汉市洪山区东湖高新开发区。
东临喻家湖路,南北侧为虹景花园小区。
建设单位:武汉联峰房地产开发有限公司监理单位:武汉平安建筑工程项目管理有限公司设计单位:深圳市中外建建筑设计有限公司武汉分公司勘察单位:武汉市勘测设计研究院施工单位:湖北楚安建筑工程有限公司2.武汉汇博苑1#、2#、3#住宅楼工程为地下一层、地上一栋30层(1#楼)两栋31层(2#、3#楼)。
结构类型为剪力墙结构,基础采用;墩基础;地下室结构类型为框架结构,基础采用柱下独立基础,地下室剪力墙混凝土强度等级为C45,抗渗等级为S6。
本工程建筑结构安全等级为二级,地基基础设计等级为甲级,抗震设防烈度为6度,建筑抗震等级为三级,建筑场地类别为Ⅱ类,防火分类为一类,耐火等级为一级,设计使用年限50年。
3.本项目地下室建筑面积较大达12707.59m2,其中人防区域建筑面积为1977.1m2。
3.本工程主要的技术参数如下:地下室结构层高为4.3m,主楼地下室层高为5.4m;地上一层为架空层层高为6.0m,二层以上为标准层层高3.0m。
编制依据1、深圳市中外建建筑设计有限公司武汉分公司设计的图纸。
2、国家相关规范、规定及省、市建设部门颁布的有关文件、规定。
(1)《建设工程项目管理规范》GB/T50326-2006(3)《混凝土结构工程施工规范》GB50666-2011(4)《地下工程防水技术规范》GB_50108-2008(5)《建筑用穿墙防水对拉螺栓套具》JG/T478-2015(6)《建筑工程施工质量验收统一标准》GB50300-2013(7)《工程建设标准强制性条文》2013(8)《建筑施工安全检查标准》J1334-20113、湖北楚安建筑有限公司相关的技术档案资料。
各阶段施工要点及节点大样图一、施工各阶段工作及验收要点3.1 地基与基础阶段3.2 主体结构阶段3.3 装修阶段二、部分节点大样三、防水工程验收要点(一)防水工程试水验收要点防水施工基层交接卡本表由总包单位填写,防水施工单位检查确认,交监理工程师确认后监理处存档1份。
凡出现监理处无本表存档记录,现场已开始防水施工,每1处处罚防水施工单位500元。
本表格检查以同一楼层或同一单元的同一楼层或同一层不少于4套房为一个检验批进行验收。
40防水施工基层交接卡本表由总包单位填写,防水施工单位检查确认,交监理工程师确认后监理处存档1份。
凡出现监理处无本表存档记录,现场已开始防水施工,每1处处罚防水施工单位500元。
本表格检查以同一楼层或同一单元的同一楼层或同一层不少于4套房为一个检验批进行验收。
防水工程交接卡本表由防水施工单位填写,监理及总包单位检查确认,交总包及监理处存档1份。
凡出现监理处无本表存档记录,现场已开始下步施工,对总包单位执行相应处罚。
本表格检查以同一楼层或同一单元的同一楼层或同一层不少于4套房为一个检验批进行验收。
第四部分:其它工程分部分项管理与控制要点1 天然地基基础基槽检验要点1.1 基槽开挖后,应检验下列内容:1.1.1 核对基坑的位置、平面尺寸、坑底标高;1.1.2 核对基坑土质和地下水情况;1.1.3 空穴、古墓、古井、防空掩体及地下埋设物的位置、深度、性状。
1.2 在进行直接观察时,可用袖珍式贯入仪作为辅助手段。
1.3 遇到下列情况之一时,应在基坑底普遍进行轻型动力触探: 1.5.1 持力层明显不均匀;1.5.2 浅部有软弱下卧层;1.5.3 有浅埋的坑穴、古墓、古井等,直接观察难以发现时;1.5.4 勘察报告或设计文件规定应进行轻型动力触探时。
1.4 采用轻型动力触探进行基槽检验时,检验深度及间距按表1.1执行:表1.1 轻型动力触探检验深度及间距表(m)1.5 遇下列情况之一时,可不进行轻型动力触探:1.5.1 基坑不深处有承压水层,触探可造成冒水涌砂时;1.5.2 持力层为砾石层或卵石层,且其厚度符合设计要求时。
剪力墙对拉螺栓∙剪力墙的对拉螺栓如何计算有防水要求的剪力墙的对拉螺栓是止水型的,是留在混凝土中,把2头突出的螺栓头切割掉就可以没有要求的,把螺栓取出后,用砂浆堵死查看原帖 ...∙在剪力墙结算时,对拉螺栓是否另做签证处理?在剪力墙结算时,对拉螺栓是不用另做签证处理的,模板内容里已包括在内了 ...∙地下室剪力墙模板对拉螺栓加工图?1、丝杆总长度=剪力墙厚度+2*模板厚度+2*方木厚度+2*钢管直径+2*预留丝杆长度2、注意地下室外墙增加止水板,做成止水螺栓3、一般情况下配料计算时候剪力墙厚度要适当减少3-5mm,这样浇筑完毕后模板一张,断面尺寸正合适4、端头割丝的长度要比预留长度长一点,便于现 ...∙地下室剪力墙300厚的如何计算对拉螺栓的长度300厚,加上两层模板的厚度,再加上两倍木方的厚度,记住木方是立着放得,然后加上两个钢管的直径,再加个十公分就好了! ...∙剪力墙对拉螺栓孔如何处理没有要求的剪力墙对拉螺栓孔,把螺栓取出后,把两头扩大再用防水砂浆堵死 ...∙对拉螺栓一种建筑施工中固定两侧墙模板位置的对拉螺栓,由三段组合而成,内拉杆由建筑用圆钢筋和两端焊接的螺帽构成,外拉杆由两端加工有能与螺帽进行螺纹配合结构的建筑用圆钢筋形成,具有成本低廉、价格便宜、就地取材的优点,易于广泛推广应用。
水工混凝土中的模板对拉螺栓,在浇筑混凝土后是 ...∙竹胶合板大模在全现浇剪力墙结构工程中的应用工。
2 材料和设备模板采用覆膜竹胶合板,支撑体系采用工具式快拆钢支柱,剪力墙模板采用ф48钢管配合使用蝶形钢卡和ф10对拉螺栓加固,其余材料和设备同一般模板工程。
覆膜竹胶合板大模幅面大,表面光洁,拼缝少,密度适中,吸水率低,不易变形,可用于对模板耐磨性和周转使用次数有 ...∙对拉螺栓端头封堵处理个人认为如果是楼层上的对拉螺栓是没得批价,我做建筑20多年了,也第一次听说乙方要求为对拉螺栓孔补贴的。
...∙对拉螺栓有施工规范吗?这不是一定非要梁截面高度超过700mm需设置对拉螺栓,但一般在施工方案里如果没其他措施的话,就要加上对拉螺栓,以保证梁的截面尺寸了,如果你采取了有效的保证措施,经计算满足要求后也可以不拉的 ...∙竹胶合板大模在剪力墙结构工程中的应用系采用工具式快拆钢支柱,剪力墙模板采用ф48钢管配合使用蝶形钢卡和ф10对拉螺栓加固,其余材料和设备同一般模板工程。