电锅炉房的电气设计
- 格式:docx
- 大小:16.90 KB
- 文档页数:5
(建筑电气工程)电锅炉房的电气设计电锅炉房的电气设计日期:2005-05-17作者:解克勤壹概述电锅炉是壹种高效、节能、安全可靠、减少环境污染的新型电加热设备。
利用它能够将电网夜间低谷电力用于加热水且保温储存,供白天使用或供热。
对于充分利用电网低谷电力,增加电力有效供给,提高电网的负荷率是壹种非常有效的手段。
电锅炉突出优点如下:1电锅炉全套设备占地面积小,不需烟囱、燃料渣堆放场所。
产品成套组装出厂,在现场只需接上电源,水管,即可投入运行,可大大节省基建投资及安装费用。
2热效率高,输送方便,损失很小。
电锅炉运行热效率在95%之上。
启停调节方便,比煤锅炉、油锅炉更能节约能源。
电热锅炉和其它锅炉运行费用比较见表1。
几种锅炉运行费用比较表表1注:供暧面积以10000M2,采暧以每天10小时计算,采暧季为4个月。
因各地区电价参数不同,此表数据仅供参考。
3自动化程度高、运行安全可靠壹般电锅炉都采用自动控制,快速平稳地控制电加热管组的循环投切。
且且具有漏电保护、短路保护、过电流保护、过电压保护、压力超限保护、水位过低保护等多项保护功能。
产品实现了机电壹体化,不需专职锅炉运行工、节省费用,避免了人为因素的影响而发生事故。
4保护环境、造福大众电锅炉不会排出如二氧化硫、二氧化碳等有害气体,无黑烟、灰尘,没有废物需要处理,无噪声、无污染,从环境保护角度来见,最为优越。
5适用范围广电锅炉产品规格品种多,可满足各种用途、各种环境和各种条件下的需要。
仍可根据用户的特殊要求进行加工订货。
二电锅炉房的主要设备电锅炉房的主要设备有:电锅炉本体,电锅炉电控柜,蓄热水箱、蓄热水泵、循环水泵、补水泵及其控制箱,软水器等。
电锅炉本体主要由钢制壳体、电加热管、进出水管及检测仪表等组成。
电锅炉的加热方式有电磁感应加热方式和电阻加热方式俩种。
由于电磁感应加热方式为间接加热,因而热效率较低,约为96%。
而电阻加热方式热效率高,可达98%。
电阻加热方式即采用电阻式管状电热元件加热,在结构上易于叠加组合,控制灵活,更换方便。
锅炉房动力设备电气控制设计解析摘要:锅炉产生的蒸汽(含热水)既可以为公司生产工艺设备提供热能,同时也可以给人们日常生活供暖,还可以转化为动能用于供电、或是其他的方面。
对于现代社会来说,是非常重要的能源之一,而对于国家来说,它也具有强大的推动作用。
对此,本文就研究关于锅炉房动力设备电气控制设计的问题。
关键词:锅炉房;动力设备;电气控制;设计在进行锅炉房动力设备电气控制设计时,需要对锅炉房的环境进行有针对性的了解,以及一些可能损坏电气设备、导线等情况和问题的出现,并通过分析和计算来采取一些相应的措施进行处理。
1.锅炉房概况锅炉在启动的时候,需要有机组来提供辅助的动力以保证供锅炉的正常运行。
如果锅炉没有提供辅助的动力来推动锅炉的正常运行,机组设备就需要配备单独的燃油、天然气、煤气等设施来为锅炉提供启动和正常运行。
常见的锅炉所需燃料有煤、煤气、天然气和燃油等,根据其蒸汽量,可分为三种型号的锅炉:小型锅炉,中型锅炉和大型锅炉。
小型锅炉一般用于采暖和工业生产,其蒸汽量在每小时10吨以下;而中型锅炉和大型锅炉多用于发电厂发电和大型的机械加工和制造业,其蒸汽量在每小时10吨以上,而大型锅炉更是每小时在75吨以上。
本文所研究和设计的锅炉是每小时蒸汽量在15吨左右的中型锅炉。
锅炉辅助设备的系统主要由以下几个方面构成:点火系统、燃气供给系统、燃气检测报警系统、水循环系统、水处理系统、补水系统、送风系统等。
2.锅炉房动力设备电气控制设计2.1动力设备电气控制的配电设计由于本文所研究和设计的锅炉的蒸发量在每小时15吨燃气锅炉,用于工业生产。
因此,需要为该锅炉配备低压的配电室进行系统的设计。
其配电系统属于二级负荷,其电源系统采用的是380/220V电压。
将锅炉的动力设备与电气照明系统同时连接在母线上,并将锅炉的辅助设备做放电式配电,根据其设备的功能以及功率大小情况进行配电,其配电柜选用的是MNS低压配电柜。
如下图所示:是MNS低压配电柜的锅炉房的总平面图。
暖通中电锅炉房电气自动化设计随着全球气候的恶化,人们越来越多地意识到保护环境的重要性,低碳经济的提出就是一个实例。
暖通中电锅炉房的电气自动化设计就是很符合低碳经济标准的一个措施。
暖通中电锅炉房的电气化设计是以节能环保,节约成本,提高工作效率为主要目标的一个设计。
在用热量大而集中的区域,实行锅炉房电气自动化设计,不仅有利生产,方便生活,也是经济合理地利用能源、节约能源的行之有效途径。
本文就是针对此设计的几点分析。
暧通中电锅炉房供电电源本工程属于重要的城市基础设施,关系判广大市民的日常生活用水和工业企业的正常运行。
所以负荷等级属于二级负荷。
应采用双电源供电。
电源引自福庄110kV变电站,引入两回lokV电源,接至锅炉房10kV 配电所,变电所10kV采用单母线分段接线方式,两段母线之间设联络开关,平时两路电源同时供电、分列运行,互为备用。
母联开关需与进线开关闭锁,不允许两路电源并联运行,380/220V配电采用单母线分段系统。
暖通中电锅炉房的节能措施降低排烟热损失、提高运行控制水平的节能潜力较大,最值得关注,降低锅炉排污热损失,降低燃气热水锅炉系统补水率,提高燃气蒸汽锅炉凝结水回收率有一定的节能潜力,值得关注。
由于能源结构的变化和我国能源供应日趋紧张,如何进一步合理利用能源、节约能源,已引起垒社会的关注和重视,也为从事能源利用研究的科技人员提出了更新更高的要求。
根据北京市的统计资料,北京市天然气全年用气量的20%为居民用气,供暖用气量约占全年用气量的60%,在供暖用气中,绝大部分为燃气供热锅炉房用气。
因此,进一步提高燃气供热锅炉房的节能水平。
就显得尤为重要。
锅炉房运行时应根据供热需求进行运行管理,锅炉房供热量越接近实际需求量,锅炉房能源利用率就越高、越节能。
由于传统燃煤锅炉房自动化程度较低,特别是没有自控系统的中小型燃煤锅炉房,运行控制只能靠经验决定,常常为保证供热质量,超需求供热,造成能源的极大浪费。
电锅炉房的电气设计摘要:电锅炉是一种高效、节能、安全可靠、减少环境污染的新型电加热设备。
利用电锅炉可以将电网夜间低谷电力用于加热水并保温储存,供白天使用或供热。
对于充分利用电网低谷电力,增加电力有效供给,提高电网的负荷率是一种非常有效的手段。
关键词:电锅炉,电热水锅炉,电热锅炉,蒸汽电锅炉一、概述电锅炉是一种高效、节能、安全可靠、减少环境污染的新型电加热设备。
利用它可以将电网夜间低谷电力用于加热水并保温储存,供白天使用或供热。
对于充分利用电网低谷电力,增加电力有效供给,提高电网的负荷率是一种非常有效的手段。
电锅炉突出优点如下:1电锅炉全套设备占地面积小,不需烟囱、燃料渣堆放场所。
产品成套组装出厂,在现场只需接上电源,水管,即可投入运行,可大大节省基建投资及安装费用。
2热效率高,输送方便,损失很小。
电锅炉运行热效率在95%以上。
启停调节方便,比煤锅炉、油锅炉更能节约能源。
电锅炉与其它锅炉运行费用比较见表1。
几种锅炉运行费用比较表表1注:供暧面积以9000m2,采暧以每天10小时计算,采暧季为4个月。
因各地区电价参数不同,此表数据仅供参考。
3电锅炉自动化程度高、运行安全可靠一般电锅炉都采用自动控制,快速平稳地控制电锅炉电加热管组的循环投切。
并且电锅炉具有漏电保护、短路保护、过电流保护、过电压保护、压力超限保护、水位过低保护等多项保护功能。
电锅炉产品实现了机电一体化,不需专职电锅炉运行工、节省费用,电锅炉避免了人为因素的影响而发生事故。
4电锅炉保护环境、造福大众电锅炉不会排出如二氧化硫、二氧化碳等有害气体,无黑烟、灰尘,没有废物需要处理,无噪声、无污染,从环境保护角度来看,最为优越。
5适用范围广电锅炉产品规格品种多,可满足各种用途、各种环境和各种条件下的需要。
还可根据电锅炉用户的特殊要求进行加工订货电锅炉。
二、电锅炉房的主要设备电锅炉房的主要设备有:电锅炉本体,电锅炉电控柜,电锅炉蓄热水箱、电锅炉蓄热水泵、电锅炉循环水泵、电锅炉补水泵及电锅炉控制箱,电锅炉软水器等。
仅供参考[整理] 安全管理文书锅炉房的电气、通风防火设计日期:__________________单位:__________________第1 页共5 页锅炉房的电气、通风防火设计锅炉的供电负荷级别和供电方式,应根据工艺要求、锅炉容量、热负荷的重要性和环境特征等因素,按照现行《供配电系统设计规范》的有关规定执行。
电气线路采用穿金屑管布线,并不宜沿锅炉热风道、烟道、热水箱和其他载热体表面敷设。
燃气调压间、油箱间、燃油泵房、油加热间、煤粉制备间、碎煤机间和运煤走廊等有爆炸和火灾危险场所的电气设计必须符合现行《爆炸和火灾危险环境电力装置设计规范》的有关规定。
燃气锅炉房应当设置可燃气体浓度探测器,并与锅炉燃烧器上的燃气速断阀联动,以便在紧急情况下自动切断燃气来源。
燃气调压间等有爆炸危险的房间,应有不少于3次/h的换气量,当自然通风不能够满足要求时,应设置机械通风装置,并应用不少于8次/h换气量的事故通风装置。
通风装置应防爆。
燃油泵房应有10次/h换气量的机械通风装置,油箱间应有6次/h换气量的机械通风装置,燃油泵房、油箱间的通风装置应防爆。
设在建筑内的燃气锅炉房,应有不少于3次/h换气量。
燃气锅炉房通风换气装置应与可气体浓度探测装置联动控制。
当锅炉房设置在地下室时,应采取强制通风措施。
锅炉房自身的排烟系统不得跨越水平防火分区,应直接通向室外,通向室外处不得留有任何的孔洞或缝隙。
锅炉的供电负荷级别和供电方式,应根据工艺要求、锅炉容量、热负荷的重要性和环境特征等因素,按照现行《供配电系统设计规范》的有关规定执行。
电气线路采用穿金屑管布线,并不宜沿锅炉热风道、烟道、热水箱和其他载热体表面敷设。
燃气调压间、油箱间、燃油泵房、油加热间、煤粉制备间、碎煤机间和运煤走廊等有爆炸和火灾危险场所的电气设计必须符合现行《爆炸和火灾危险环境电力装置设计规范》的有关规定。
燃气锅炉房应当设置可燃气体浓度第 2 页共 5 页探测器,并与锅炉燃烧器上的燃气速断阀联动,以便在紧急情况下自动切断燃气来源。
锅炉房的电气、通风防火设计背景介绍锅炉房是工业生产中不可或缺的关键部分,其安全运行一直是大家关注的焦点。
而在锅炉房的设计和运行中,电气系统、通风系统、防火系统等十分重要。
此文将着重讨论锅炉房的电气、通风防火设计内容。
电气设计设计基准在锅炉房的电气设计中,需满足以下基准:•保证设备的正常运行•防止火灾事故•防止电气打击•防止线路短路、过载等电气事故设计要点1.设计电气总线系统在锅炉房的电气设计中,采用电气总线系统可以使线路极大程度上减少,降低电气故障点。
电气总线系统可以在接口处切断带电部分,有利于设备的检修和维护。
同时,采用电气总线系统可大大降低电气故障的维修强度。
2.设计保护线路在电气设计中,需要特别加强对于保护线路的考虑。
保护线路是指在电器过载、短路、接地故障等故障状态下,采用过载保护、短路保护、接地保护等措施,使设备及电路安全运行。
保护线路必须四重保护,即电气保护器、断路器、接地保护器、温控器四种保护器具缺一不可。
3.设计地线在电气安装中,必须设置良好的地线系统,为电气设备提供良好的接地条件。
同时在锅炉房的建筑物周边,还要进行大面积地栓接,以保证人身和设备安全。
通风设计设计基准在锅炉房的通风设计中,需满足以下基准: - 保证空气流通,排除有害气体 - 控制温度,减少能源消耗 - 控制湿度,防止阴霾、霉变等对设备的影响设计要点1.设计通风道路通风道路应经过良好规划和设计,通风道应有通风口、风机管理、蓄能和控制器等设备。
2.设计换气系统在锅炉房内,需设置自动换气系统,根据现场真实情况进行安装。
锅炉房需要根据设备型号量定换气空气。
3.设计防烟系统锅炉房应设置防烟系统,以控制温度,减小火灾的严重程度。
防火设计设计基准在锅炉房的防火设计中,需满足以下基准: - 保证锅炉房内的设备能正常运作 - 防止火势蔓延 - 防止漏电等安全事故设计要点1.安装火灾探测器火灾探测器可以实现自动探测火灾,并通过警报声、语音和其他方式指引人们进行相应救援。
第一章设计意义和方案论证本次课程设计是对某锅炉房的配电设计,共分为锅炉房的动力工程、照明工程及防雷、接地工程的设计,课程设计是学习过程中的重要环节,课程设计可以巩固所学理论知识,掌握配电设计的基本方法,通过解决各种实际问题,培养独立分析和解决实际工程技术问题的能力,同时对电力及建筑行业的有关政策、方针、技术规范有了一定了解,在计算、绘图等方面也得到了训练,为今后更好的工作奠定基础。
锅炉房电气设计强电部分的设计主要包括低压配电系统、动力照明干线系统、配电箱系统和导线电缆的敷设等,这一部分设计的基本要求是可靠性、灵活性、安全性。
通常在设计中只要满足规范的要求就基本上能满足上述三点要求,但经济性同样是设计电气各系统的重要原则。
考虑经济问题时,必需从整个建筑的全局出发,根据建筑本身的特点,经济合理地设计电气的各系统,然而可靠性与经济性二者之间既有矛盾的一面也有统一的一面,如果过分强调可靠性,以配电系统为例,大部分设备由变配电所低压母线放射式供电,势必造成设备增多,投资增大,导致不必要的浪费,使经济性下降;如果过分强调经济性,减少设备,简化结线,就必然会影响可靠性,当发生事故时会造成较大面积的停电,从而又会带来损失,可见这样的结果是不但降低了可靠性,同时经济性也降低。
因此在处理这些矛盾时,应当先满足可靠性的同时再提高经济性。
为了降低设计电气设备的成本下面两个方面分析:1)减少低压柜的出线回路当我们做一个工程的电气设计时,首先将负荷的种类和位置确定,将同一区域内相同性质的负荷,由低压母线馈出的一个回路供电,这里的同一区域可以是同一层内,也可以是不同楼层但轴线位置相同的区域,这样做可以减少低压柜的出线回路,减少低压柜的台数,降低设备成本,缺点是当出线端故障或馈电回路检修时会造成大范围的断电。
然而此种情况在现实中发生的可能性非常低。
2)正确选择需要系数,同时系数以及功率因数需要系数直接影响到电气设备的投资。
功率因数选用是否准确直接影响到计算电流,从而影响电缆(导线)、保护开关的大小;需要系数选用是否准确亦直接影响到计算电流,从而影响电缆(导线)、保护开关的大小;同时系数取值还直接影响变压器大小的选择,若取值偏大而选择大容量变压器时,会造成将来变压器运行时损耗的增大。
概述电锅炉是一种高效、节能、安全可靠、减少环境污染的新型电加热设备。
利用它可以将电网夜间低谷电力用于加热水并保温储存, 供白天使用或供热。
对于充分利用电网低谷电力,增加电力有效供给,提高电网的负荷率是一种非常有效的手段。
电锅炉突出优点如下:1电锅炉全套设备占地面积小,不需烟囱、燃料渣堆放场所。
产品成套组装岀厂,大大节省基建投资及安装费用2 热效率高,输送方便,损失很小。
电锅炉运行热效率在95%以上。
启停调节方便,比煤锅炉、油锅炉更能节约能源。
电热锅炉与其它锅炉运行费用比较见表 1。
几种锅炉运行费用比较表表1电锅炉房的电气设计日期:2005-05-17作者:解克勤在现场只需接上电源,水管,即可投入运行,可注:供暧面积以1 0 0 0 0 M2,采暧以每天10小时计算,采暧季为4个月。
因各地区电价参数不同,此表数据仅供参考3自动化程度高、运行安全可靠一般电锅炉都采用自动控制,快速平稳地控制电加热管组的循环投切。
并且具有漏电保护、短路保护、过电流保护、过电压保护、压力超限保护、水位过低保护等多项保护功能。
产品实现了机电一体化,不需专职锅炉运行工、节省费用,避免了人为因素的影响而发生事故。
4保护环境、造福大众电锅炉不会排出如二氧化硫、二氧化碳等有害气体,无黑烟、灰尘,没有废物需要处理,无噪声、无污染,从环境保护角度来看,最为优越。
5适用范围广电锅炉产品规格品种多,可满足各种用途、各种环境和各种条件下的需要。
还可根据用户的特殊要求进行加工订货。
二电锅炉房的主要设备电锅炉房的主要设备有: 电锅炉本体,电锅炉电控柜,蓄热水箱、蓄热水泵、循环水泵、补水泵及其控制箱,软水器等。
电锅炉本体主要由钢制壳体、电加热管、进出水管及检测仪表等组成。
电锅炉的加热方式有电磁感应加热方式和电阻加热方式两种。
由于电磁感应加热方式为间接加热,因而热效率较低,约为96 %。
而电阻加热方式热效率高,可达98 %。
电阻加热方式即采用电阻式管状电热元件加热,在结构上易于叠加组合,控制灵活,更换方便。
目前电锅炉基本上都采用电阻式管状电热元件加热。
采用电阻式管状电热元件加热方式,其电气特点是锅炉中的水不带电。
但当电热元件漏水或爆裂时,也会使锅炉中的水带电,即称之为漏电。
另外,受电热元件绝缘导热层的绝缘程度的影响,电热管也存在着一定的漏电电流。
按照国家标准, 漏漏电流应不大于0.5mA 。
因此,电气线路上都应设漏电保护。
电加热管是电锅炉的心脏,其性能好坏直接关系到电锅炉性能的好坏。
电加热管一般选用管状形式,由金属管、电热丝、引出棒、连接座和填料等组成。
一般情况下,电加热管使用寿命在10000-30000 小时。
电加热管的使用寿命主要取决于电加热管的材料,表面热负荷和用户的运行管理水平。
电加热管为镍铬不锈钢管材,表面热负荷为6-9 W/cm2 。
此外,电加热管的额定电功率也是一个非常重要的性能指标。
在额定工况下,根据国标规定,电功率偏差绝对值不应大于 5 %。
电加热管的连接方式,一般采用三相,对称地接成星形(Y)或三角形(△)「根据容量大小分成两组或多组。
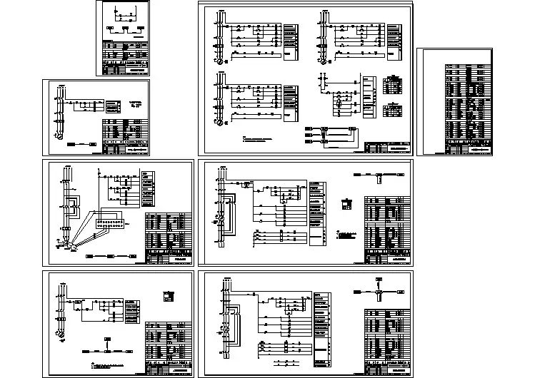
图1为750kW 电锅炉主接线原理图。
电锅炉的控制技术。
从电气角度来讲,电锅炉是一台大功率的电力调功设备,锅炉的输出功率越高,电功率的输出也就越大。
电功率的输出调节分有级功率调节和无级功率调节两种。
无级功率调节适用于调节精度较高的场合,而有级功率调节则适用于调节精度要求较低的场合。
由于对电锅炉的输出热功率调节精确度一般要求都不很高,因此国内绝大多数电热锅炉均采用有级功率调节方式。
有级功率调节采用交流接触器控制,无级功率调节则采用可控硅控制。
可控硅也可用于有级功率调节,其优点是无机械动作噪声,寿命长。
缺点是主回路不能完全关断,过电流和过电压能力差,自身耗电量大,需要强迫散热,价格较高。
而交流接触器的优点是可实现主回路电气完全隔离,过电压和过电流的能力较强,自身耗电量小,发热量小,价格便宜。
因此,一般电锅炉均采用交流接触器作为控制器件。
电锅炉的加热控制是超大电流的控制,这是与燃油、燃气锅炉和燃煤锅炉控制上的最大差别。
电锅炉在控制技术方面有以下几方面特点:1.为了减少对电网的冲击影响,采取电加热管组逐级投切方式。
各组加热器投切之间间隔时间叫做逐级投切间隔时间。
每组的功率越大,间隔时间越长。
因此间隔时间因应根据需要可以任意设定。
2.为了延长电加热管的使用寿命,尽量使电加热管使用均衡,避免过多地使用管某一组或某几组电加热,。
同时由于交流接触器在大电流下工作, 也应均衡使用。
因此,控制原则是保证每组电加热管总使用时间相同。
控制方式采用多级控制,循环投切。
即先投者先切,后投者后切,先停的先启动,后停的后启动。
这样就可以保证交流接触器的动作次数完全相同,电加热管的工作时间也大致相同。
大大延长电锅炉的使用寿命。
3.容量大的电锅炉电流将达到几百安培甚至几千安培,这么大的强大电流将对电锅炉控制装置产生干扰。
因此,需要采取可靠的抗电磁干扰措施。
4 .电锅炉的加热控制系统是一个大滞后的二阶惯性系统,采用一般的控制装置很难达到最佳的控制效果,往往产生交流接触器动作频繁,甚至反复振荡。
国内已根据这一特点开发研制出了电锅炉电脑控制器。
国内电锅炉的控制方式有四种:(1)手动+温度显示控制仪表控制并温度显示;(2 )顺序控制器或PLC 控制+温度显示控制仪表控制并温度显示;(3)完全用PLC 控制,包括温度输入模块和显示单元(液晶显示或触摸屏显示);(4 )专用电锅炉电脑控制器控制并温度显示。
由于其控制性能好,功能全,性价比高,得到了普遍应用。
专用电锅炉电脑控制器为一体化机箱,触摸屏操作。
触摸屏可实时动感地显示电加热管的运行状态和锅炉系统运行模拟图。
还可用数码方式显示温度、压力等参数值,并设有全方位的在线帮助, 多级中文弹出式菜单和故障维修指南,适合任何层次的操作人员使用。
采用了现代先进的模糊控制技术,能够快速平稳地控制加热组循环投切,提高加热管使用寿命。
电加热管组投切动作采取间隔控制,降低对电网的干扰。
间隔时间可任意设定。
取得了很好的控制效果。
电热锅炉控制柜与电热锅炉配套供应,作为电热锅炉的控制装置。
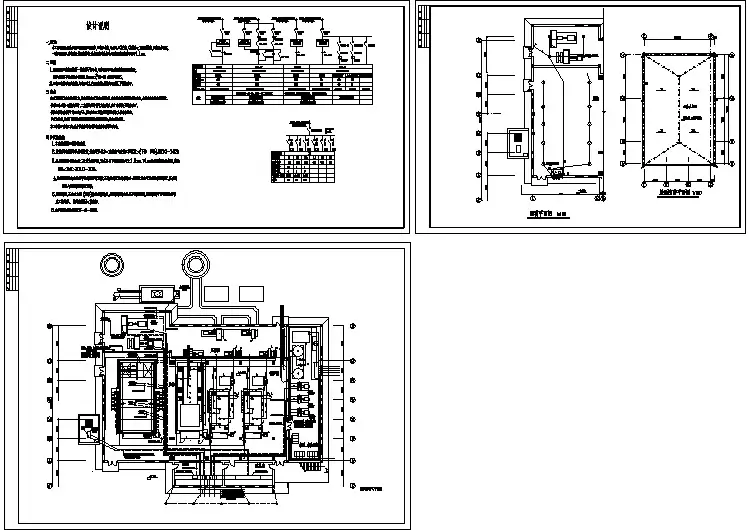
控制柜主要由柜体、低压断路器、交流接触器、电脑控制器、测量仪表等组成,与电锅炉配套的蓄热水泵、循环水泵、补水泵等的控制装置一般单设电控柜(箱),根据用户要求也可装在电锅炉控制柜中。
小型电热锅炉可与控制柜作成一体,以减小电锅炉房建筑面积。
三电锅炉房的电气设计一般电锅炉房的电气设计包括电源设计、配电系统线路设计、热工检测系统设计及照明设计等。
照明设计与一般锅炉房设计相同,这里不作介绍。
主要对电源设计、电锅炉房的线路设计作一介绍。
1电源设计(1)变压器台数及容量的选择对于较大容量电锅炉房的应专设变配电所。
为减少电能损耗、便于接线和节省投资,变配电所应邻近电锅炉房。
容量较小的电锅炉房可由原有的公用变电所供电。
专用变压器容量或由公用变电所提供的容量应满足电锅炉、蓄热水泵、循环水泵、补水泵等设备的总用电量要求,并应考虑10 %-20 %的富裕量。
多台电锅炉可共用一台变压器,但不允许多台变压器供一台电锅炉。
如电锅炉房设置两台700KW 电锅炉,则应配置两台800KW 变压器。
(2 )变配电所低压配电柜配电开关及线路要求变配电所低压配电柜配电开关及线路应与电锅炉房的用电负荷容量相匹配。
如有两台700KW 电锅炉,变配电所低压配电柜应设置两个1500A 的低压断路器和两条配电线路引至电锅炉房。
配电线路可采用带N 线和PE 线的五芯电缆,如变配电所邻近电锅炉房,可采用封闭式母线槽。
如蓄热水泵、循环水泵、补水泵等附属设备单设控制箱,但用电量与电锅炉相比很小,供电电源线路可由电锅炉控制柜引接。
2电锅炉房的线路设计电锅炉房的线路包括电力线路和热工检测信号和控制线路。
(1)电力线路设计电锅炉控制柜至电锅炉电加热管的电力线路一般采用四芯YJV 交联聚氯乙烯铜芯电缆或四根BV 铜芯塑料电线,其中一根为PE 线。
电缆规格及根数见表2 。
电缆或电线敷设方式一般采用穿钢管埋地敷设,也可采用电缆桥架敷设或地沟敷设。
(2 )热工检测信号和控制线路热工检测信号线路包括温度、压力和水位检测线路,分别由装在电锅炉本体上的温度、压力和水位传感器接到电锅炉控制柜中的电脑控制器上。
为避免干扰、确保检测的准确性,检测信号线应采用屏蔽线,并与电力线路分开敷设。
敷设方式可在地坪下穿钢管暗埋或架空明敷设。
控制线路主要是蓄热水泵、循环水泵、补水泵等附属设备单设控制箱时,电锅炉控制柜与附属设备控制箱之间的控制及联锁线路,一般采用1.5 平方毫米的BV 铜芯塑料电线。
敷设方式可采用在地坪下穿钢管暗埋。
一般锅炉房设有软化水装置,其用电量不大,在软化水装置附近墙上设置一个三孔电源插座即可。
(3) 电锅炉控制柜布置设计电锅炉容量较大、台数较多的电锅炉房,电锅炉控制柜、水泵控制柜及自动化控制台等应设在控制室内。
如改造工程由于条件限制,单独设置控制室有困难,或电锅炉容量较小、台数又很少时,电锅炉控制柜和水泵控制箱也可设在电锅炉房内,但应远离水泵和水处理设备,并设置50-100 mm 的基础。
容量大的电锅炉控制柜一般为离墙安装,单面(正面)操作,双面开门维修。
根据《10kV 及以下变电所设计规范》GB50053 -94 规定,背面离墙距离应不小于1000mm ,正面操作距离应不小于1500mm 。
容量较小的电锅炉控制柜控制柜可靠墙安装,正面操作距离也不应小于1500mm 。
(4) 接地系统设计接地系统型式应采用TN-S 系统。
电源进线N 线应作重复接地。
电锅炉控制柜、水泵控制箱、电锅炉、水泵及其它电气设备的金属外壳、电缆电线穿线管等均应可靠接地。
接地电阻要求小于 1 Q。
并按《低压配电设计规范》GB 50054-95 要求做好等电位联结。
四电锅炉房电气设计中存在的问题随着我国对环保的重视,最近几年电锅炉的生产和应用发展非常迅速。
但由于电锅炉在我国起步较晚,相关电锅炉技术方面的规范、标准还不够完善,各生产厂家各自为战,产品自定型号规格,自成系列。
这给设计人员对电锅炉的选型,对电锅炉房的布置设计带来一定的困难。
特别是电锅炉房设计以暖通、给排水专业为主,电锅炉的选择和订货由暖通、给排水专业负责,电气专业设计人员对电锅炉产品的技术性能和对电气专业的设计要求了解不够,使得电锅炉房电气设计中出现一些问题。
据笔者了解的情况,主要存在着以下四个问题。
1 电源容量与电锅炉房用电负荷不匹配。
主要表现在改造工程项目上,或新建电锅炉房,但变配电所未改造,使得变配电所中变压器容量满足了电锅炉房用电要求,或变压器容量能满足要求,但引到电锅炉房的线路出线开关容量不够。
希望建设单位在改建锅炉房时,应根据电锅炉房的负荷容量,对原变配电所增容扩建和改造。